Viherkallionkuja 5 A
02710, Viherlaakso, Espoo
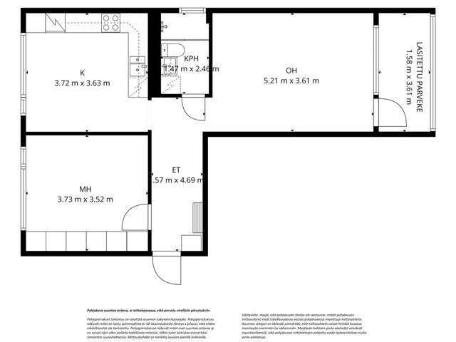
2 h, k, kph/wc, las. parveke
129 000 € (2 263,16 € / m²)
57 m²

Tätä asuntoa myy Harto Pasonen, Myyntineuvottelija, BBA
Roof Espoo | ROOF LKV Espoo Oy

Sijainti
Asuntoesittely
Edullinen avarapohjainen kaksio linjasaneeratussa taloyhtiössä luonnonläheisessä Viherlaaksossa
Viherlaakson rauhallisella ja vehreällä alueella sijaitsee tämä tilava ja valoisa kaksio, joka tarjoaa erinomaiset puitteet viihtyisään asumiseen ja oman näköiseksi päivittämiseen. Taloyhtiön mittava linjasaneeraus on valmistunut vuonna 2024 ja sen yhteydessä asunnon kylpyhuone/WC on uusittu kokonaisvaltaisesti, tarjoten huolettomuutta ja modernia käyttömukavuutta pitkälle tulevaisuuteen.
Asunnon pohjaratkaisu on toimiva ja avara. Tilava olohuone kutsuu viihtymään ja tarjoaa monipuoliset sisustusmahdollisuudet. Olohuoneesta on käynti lasitetulle parvekkeelle, jolta avautuvat rauhalliset näkymät taloyhtiön vehreälle piha-alueelle itään. Parveke toimii mainiona lisätilana aikaisesta keväästä myöhäiseen syksyyn.
Makuuhuone on poikkeuksellisen tilava ja sen yhteydessä olevat komerot tarjoavat runsaasti säilytystilaa mm. vaatteille. Makuuhuoneen ikkunat avautuvat länteen, mikä tuo tilaan iltapäivän ja illan miellyttävän valon. Keittiö ja muut asuintilat ovat siistikuntoisia, mutta pintojen voidaan olettaa kaipaavan uuden omistajan mieltymysten mukaista päivitystä – erinomainen mahdollisuus toteuttaa omia sisustusratkaisuja ilman suuria rakenteellisia remontteja.
Viherlaakso tunnetaan viihtyisästä asuinympäristöstään, hyvistä ulkoilu- ja lenkkeilymaastoistaan sekä sujuvista liikenneyhteyksistään. Läheltä löytyvät niin päivittäispalvelut, koulut ja päiväkodit kuin bussiyhteydet Leppävaaraan ja Kauniaisiin. Omalla autolla liikkuminen on vaivatonta ja kehäteille liittyminen sujuvaa.
Tämä koti sopii erinomaisesti niin ensiasunnoksi, sijoitukseen kuin rauhallista ja luonnonläheistä asumista arvostavalle. Tässä on mahdollisuus hankkia tilava kaksio hyvin peruskorjatusta yhtiöstä ja viimeistellä siitä juuri omannäköinen koti.
WHY YOU’LL LOVE THIS HOME
Green and peaceful location | Quiet Viherlaakso setting with greenery, outdoor paths and a relaxed residential atmosphere
Renovated bathroom | Pipe renovation completed in 2024 and the bathroom/WC fully renewed for worry-free living
Spacious rooms | Exceptionally large living room and bedroom offer comfort and flexible furnishing options
Glazed balcony, green views | East-facing glazed balcony overlooks the housing company’s lush courtyard
Light from both sides | Windows to the east and west bring in natural light throughout the day
Make it your own | Tidy condition with the opportunity to update surfaces to your personal style
Easy connections | Smooth public transport links and easy access by car to nearby hubs and services
Onko nykyinen asuntosi vielä myymättä? Kutsu minut veloituksettomalle arviokäynnille, niin saat kilpailukykyisen välitystarjouksen ja asiallesi omistautuneen välittäjän, joka toimii täysipainoisesti jokaisen asiakkaansa myyntitavoitteen toteutumiseksi.
Ota yhteyttä ja varaa oma yksilöllinen esittelyaikasi jo tänään ennen asunnon virallista ensiesittelyä:
Harto Pasonen
myyntineuvottelija, BBA
ROOF LKV Espoo Oy
050 529 9768
[email protected]
Get a roof.
www.roof.fiPerustiedot
- Sijainti
- Viherkallionkuja 5 A, 02710, Viherlaakso, Espoo
- Omistusmuoto
- Omistusasunto
- Huoneluku
- 2
- Asuinpinta-ala
- 57 m²
- Kokonaispinta-ala
- 57 m²
- Pinta-alan peruste
- Yhtiöjärjestyksen mukainen, Isännöitsijäntodistuksen mukainen, (Pinta-ala ei ole tarkistusmitattu ja todellinen pinta-ala voi olla suurempi tai pienempi, kuin ilmoitettu)
- Lisätiedot pinta-alasta
- Pinta-ala voi siis olla edellä mainittua pienempi tai suurempi. Huoneiston pinta-ala on yhtiöjärjestyksen, isännöitsijäntodistuksen ja myyjän ilmoituksen mukaan 56,0 m2. Kohteen markkinoinnissa käytetään mittatiedoilla varustettua pohjapiirrosta. Pohjapiirroksen tarkoitus on helpottaa ostajan ostopäätöstä ja selvittää asunnon nykyinen huonejako. Pohjapiirroksessa näkyvät mitat ovat suuntaa antavia ja ne voivat näin ollen poiketa todellisista mitoista. Välitysliike, myyjä, eikä pohjakuvan laatija ole vastuussa, mikäli pohjakuvan mittasuhteet eivät todellisuudessa vastaa pohjakuvauvassa mainittuja mittasuhteita.
- Kohteen tyyppi
- Kerrostalo
- Kerros
- 1 / 2
- Rakennusvuosi
- 1972
- Käyttöönottovuosi
- 1972
- Kohde myydään vuokrattuna
- Ei
- Vapautuminen
- Heti
- Lisätietoja vapautumisesta
- Asunto vapautuu kaupanteossa.
Hinta ja kustannukset
- Velaton hinta
- 129 000 €
- Myyntihinta
- 67 422,72 €
- Velkaosuus
- 61 577,28 €
- Yhtiövastike
- Hoitovastike 285 € / kk (2,50 € / os.), Rahoitusvastike 429,78 € / kk, Yhtiövastike yhteensä 714,78 € / kk
- Lisätietoja vastikkeista
- Yhtiökokouksessa 25.3.2025 päätettiin yksimielisesti myöntää hallitukselle valtuutus periä yksi ylimääräinen hoitovastike tarvittaessa ja tarvittaessa määritellä pääomavastikkeet ja sähköautojen latauksesta perittävät sähkömaksut uudelleen, mikäli kulut muuttuvat oleellisesti. Asunto-osakkeelle kohdistuvat pääomavastikkeet: RL6 Putkiurakan suunnittelu, 4,56 €/kk; RL7 Vesikattojen uusiminen, 45,60 €/kk; RL8 Putket, Sähköautot, Kaukolämpö 14,82 €/kk; RL9 Linjasaneeraus 364,80 €/kk.
- Autopaikkamaksu
- 15 € / kk
- Saunamaksu
- 10 € / kk
- Vesimaksu
- 20 € / hlö / kk
- Neliöhinta
- 2 263,16 € / m²
- Lisätietoja maksusta
- Vesimaksua peritään ennakoivasti 20,00 €/hlö/kk. Yhtiössä on käytössä huoneistokohtaiseen mittaukseen perustuva vesilaskutus. Vesimittarit on luettava omistajan vaihtuessa. Myyjän ja ostajan tulee huolehtia vesimittareiden luennasta ja ilmoittaa lukema/lukemat Rettan asiakaspalveluun laskutusta varten. Jos mittaria ei lueta, niin tasauslasku edellisestä lukemasta asti jää uuden omistajan maksettavaksi. Autopaikkamaksu, sähköauton latauspiste 15,00 €/kk. Lämmin autopaikka 10,00 €/kk. Kylmä autopaikka 5,00 €/kk. Taloyhtiön hallitukselle on annettu valtuutus periä (tai olla perimättä) ylimääräistä vastiketta yhtiön taloudellisen aseman tai maksuvalmiuden sitä vaatiessa
Tilat ja materiaalit
- Keittiön kuvaus
- Vaaleasävyinen keittiö, jossa runsaasti kaappitilaa sekä yhdistelmäliesi/uuni, liesituuletin sekä jääkaappipakastin. Asennusmahdollisuus astianpesukoneelle ja tila mikroaaltouunille.
- Keittiön lattiat
- Laminaatti
- Keittiön seinät
- Maali
- Keittiön varusteet
- Jääkaappipakastin, uuni, liesi, ja liesituuletin
- Liesi
- Valurautaliesi
- Kylpyhuone
- Moderni, linjasaneerauksen yhteydessä vuonna 2024 täydellisesti uudistettu kylpyhuone/WC-tila. Pesukoneliitäntä ja lattialämmitys.
- Kylpyhuoneen seinät
- Kaakeli
- Kylpyhuoneen lattiat
- Laatta
- Kylpyhuoneen varusteet
- WC-istuin, suihku, suihkuseinä, pesukoneliitäntä, lattialämmitys, peilikaappi, allaskaappi, ja pyyhekuivausteline
- Makuuhuoneet
- Tilava makuuhuone, jossa runsaasti komerotilaa vaatesäilytykselle. Ikkunasta näkymät länteen.
- Makuuhuoneiden lukumäärä
- 1
- Makuuhuoneiden seinät
- Maali
- Makuuhuoneiden lattiat
- Laminaatti
- Olohuone
- Avara olohuonetila, josta käynti asunnon lasitetulle, itään antavalle parvekkeelle.
- Olohuoneen seinät
- Maali
- Olohuoneen lattiat
- Laminaatti
- Säilytystilojen kuvaus
- Asunnon säilytystilat eteisessä sekä makuuhuoneen kaapistoissa. Taloyhtiön yhteistiloissa sijaitseva huoneistokohtainen kellarikomero kuuluu asunnon varustukseen.
- Kohteen säilytystilat
- Kellarikomero ja seinäkaapit
- Sauna
- Ei
Lisätiedot
- Asunnon kunto
- Tyydyttävä
- Lisätietoja kunnosta
- Kylpyhuone/WC-tila kokonaisvaltaisesti uusittu vuonna 2024 toteutetun linjasaneerauksen yhteydessä. Muilta osin asunto tyydyttävässä kunnossa ja pinnat kaipaavat remonttia.
- Näkymät
- Näkymät huoneistosta taloyhtiön piha-alueelle lännen ja idän suuntiin.
- Parveke
- Lasitettu parveke ja sisäänvedetty parveke
- Parvekkeen ilmansuunta
- Itä
- Terassi
- Ei
- Ranta
- Ei rantaa
- Hissi
- Ei
- Kohde on saaressa
- Ei
- Muuta kauppaan kuuluvaa
- Sälekaihtimet.
- Kauppaan ei kuulu
- Irtain.
- Muut kaupan kannalta merkittävät tiedot
- Pintaremonttia kaipaava asunto vehreän puistomaisen piha-alueen ympäröimänä Viherlaaksossa. Lähistöllä paljon ulkoilureittejä ja koirapuisto. Hyvät liikenneyhteydet Espoon muihin kaupunkikeskuksiin. Taloyhtiön märkätilat kokonaisvaltaisesti uusittu linjasaneerauksen yhteydessä 2024.
Taloyhtiö ja kiinteistö
- Taloyhtiön nimi
- Asunto Oy Lehtohovi
- Isännöitsijätoimisto
- Retta Isännöinti Oy
- Isännöitsijän nimi
- Ismo Ruusunen
- Isännöitsijän sähköposti
- [email protected]
- Isännöitsijän puhelin
- 010 228 2000
- Tuotot
- 1866
- Taloyhtiön lisätiedot
- Yhtiökokouksen 2.4.2019 päätöksellä tupakointi on kielletty yhtiön omistaman rakennuksen huoneistoparvekkeilla, asuntoyhteisön hallitsemissa yhteisissä ulkotiloissa rakennuksen sisäänkäyntien ja ilmanottoaukkojen läheisyydessä sekä lasten leikkialueilla. YJ 20 § Vastuu osakkeenomistajan jälkikäteen rakennuttamien huoneistokohtaisten parvekelasien korjaamisesta, kunnossapidosta, niistä aiheutuneista ylimääräisistä kustannuksista sekä mahdollisista vahingoista kuuluu osakkeenomistajalle. Kohde sijaitsee laskeutumisvyöhykkeellä sekä lentomelualueen rajan tuntumassa.
- Tontin pinta-ala
- 5 313 m²
- Tontin omistus
- Oma
- Rakennusmateriaali
- Betoni
- Lämmitysjärjestelmä
- Kaukolämpö
- Ilmanvaihto
- Painovoimainen ilmanvaihto
- Vesijohto
- Kunnallisvesi
- Viemäröinti
- Kunnallinen viemäriverkosto
- Kattotyyppi
- Harjakatto
- Katemateriaali
- Pelti
- Lisätietoja kiinteistönhoidosta
- Huoltoyhtiö
- Kiinteistönhoidon lisätiedot
- Leppävaaran Kiinteistöhoito Oy, Vänrikinkuja 3, 02600 Espoo. Puh. 029 170 2260 ja 041 317 0097 (toimisto avoinna klo 8.00-15.30).
- Taloyhtiössä on
- Jäähdytetty kellari, urheiluvälinevarasto, kuivaushuone, mankeli, väestönsuoja, askarteluhuone, ja kellarikomero
- Lunastusoikeus yhtiöllä
- Ei
- Lunastusoikeus osakkaille
- Ei
- Kohteesta on energiatodistus
- Kyllä
- Energialuokka
- D2018
- Energiatodistuksen voimassaolo
- 18.8.2033
- Lisätietoja energiatodistuksesta
- Tatu Vihro, Raksystems Insinööritoimisto Oy 18.08.2023.
- Liikenneyhteydet
- Bussipysäkki lähellä, sujuvat yhteydet omalla autolla, taksitolppa lähellä, hyvät pyöräilytiet ja hyvä kulkuyhteys
- Lisätietoja liikenneyhteyksistä
- Hyvät liikenneyhteydet Espoon lähiliikenteen busseilla mm. Leppävaaraan, Tapiolaan ja Matinkylään.
- Palvelut
- Alepa Viherlaakso noin 0,7 km. K-Supermarket Lähderanta noin 1,3 km. S-Market Lähderanta noin 1,4 km. Viherlaakson kirjasto noin 1,0 km. Kilon terveysasema noin 3,5 km.
- Koulut
- Viherlaakson ala-aste (1.-6. lk.) noin 0,45 km. Kilon koulu (7.-9. lk.) noin 3,4 km. Leppävaaran lukio noin 1,3 km. Kauniaisten yhteiskoulun lukio noin 2,8 km.
- Lisätietoja huoneiston autopaikasta
- Autopaikkoja saatavilla jonotusmenettelyllä isännöintitoimiston kautta.
- Taloyhtiön autopaikat
- Autopaikkoja saatavilla jonotusmenettelyllä isännöintitoimiston kautta.
- Lisätietoja taloyhtiön autonsäilytyspaikoista
- Kadun varrella olevat pysäköintipaikat ja muut vapaat pysäköintialueet edellyttävät parkkikiekon käyttöä.
- Piha-autopaikkoja
- 28 kpl
- Taloyhtiöllä sauna
- Kyllä
- Kaavatilanne
- Asemakaava
- Lisätiedot kaavoituksesta
- Espoon kaupunki.
- Lisätietoja kunnossapitotarveselvityksestä
- Asunto Oy Lehtohovin hallitus.
- Asbestikartoitus
- Ei
- Lisätietoa asbestikartoituksesta
- Kohde on valmistunut ennen vuotta 1994, eikä asbestikartoitusta ole tehty. Ennen vuotta 1994 valmistuneiden rakennusten korjaustöiden osalta otettava huomioon Laki eräistä asbestipurkutyötä koskevista vaatimuksista 684/2015 sekä Valtioneuvoston asetus asbestityön turvallisuudesta 798/2015. Mikäli huoneistossa aikoo tehdä tai teettää remontin, hänen tulee tietyissä tapauksissa teettää asbestikartoitus purettaviin materiaaleihin. Asbestikartoitusvelvollisuus ei koske rakennuksessa tehtäviä vähäisiä töitä, kuten reikien poraamista seiniin tai kattoon.
- Taloyhtiön kiinnitykset
- 4 500 874,37 €
- Taloyhtiön kiinnitysten päivämäärä
- Isännöitsijäntodistuksen päivämäärän mukainen
Tehdyt remontit
Kunnossapitotarveselvistys esitetty yhtiökokouksessa 23.5.2025.
2024: Putkiremontin toteutus
2024: Palovaroittimien uusiminen osakehuoneistoihin Pelastuslain mukaan
2024: Ilmanvaihtokanavien nuohoaminen ja ilmamäärien mittaus
2024: Kiinteistön lukituksen muutokset yleisiin tiloihin
2023-2024: Putkiremontti sisältäen sähköautojen latausvalmius ja 6 kpl latausasemien toteutus.
2023: Vesi- ja viemäriputket peruskorjaus putkiremontin toteutuksen suunnittelu ja kilpailutus.
2022: Asuntojen märkätilat Peruskorjaus Märkätilakorjaus C16
2020: Julkisivut Peruskorjaus Julkisivun saumauskorjausten suunnittelu, kilpailutus ja toteutus.
2019: Yläpohjarakenteet ja vesikatto varusteineen, Peruskorjaus Vesikaton uusimisen toteutus.
2017: Putkiremontin toteutuksen suunnittelu
2016: Internet, Puhelin, TV, Antennijärjestelmä Peruskorjaus Antenni ilmakaapelin vaihto maakaapeliksi.
2015: Asuntojen märkätilat Peruskorjaus Märkätilakorjaukset C15 ja G40
2015: Yhteiset tilat Peruskorjaus Pyöräkellareiden ovien uusiminen.
2013: Ulko-ovet Peruskorjaus Huoneisto-ovien ja lukkojen uusiminen
2012: Ulko-ovet Peruskorjaus Ovien ja lukkojen uusimisen suunnittelu
2011: Ilmanvaihtojärjestelmä Kunnossapitokorjaus Ilmanvaihtohormien puhdistus
2011: Yhteiset tilat Kunnossapitokorjaus Kerhotilan kunnostuskorjaukset
2011: Yhteiset tilat Kunnossapitokorjaus Rakentamattoman tilan puhdistus ja maan vaihto
2007: Julkisivut Peruskorjaus Julkisivuremontti ja katon maalaus
2004: Lämmitysjärjestelmä Peruskorjaus Lämmönvaihtimen uusiminen ja lämmönsäätö
2001: Talokylmiöt Peruskorjaus Kylmäkellareiden jäähdytyslaitteiden kunnostus
1998: Ikkunat, parvekeovet tai parvekkeet Peruskorjaus Ikkunoiden uusiminen
1997: Salaojat ja -kaivot Peruskorjaus Salaoja ja vesieristystyöt A-talon pääty
Tulevat remontit
Kunnossapitotarveselvitys 2025-2029:
2025 Kiinteistön peruskuntoarvio
2026-2029 Kiinteistön peruskuntoarvion mukaisia mahdollisia korjauksia.
Varsinainen vuosittainen yhtiökokous on pidetty 25.3.2025.
Lukijan on huomattava, että kunnossapitotarveselvitys on hallituksen näkemys kunnossapitotarpeista viiden vuoden aikana. Päätökset mahdollisesti käynnistettävien kunnossapitotöiden ja muutostöiden suunnittelusta, toteutuksesta sekä rahoituksesta tehdään yhtiökokouksessa erikseen. Kunnossapitotarveselvityksessä mainitut toimenpiteet saattavat aikaistua tai myöhentyä. Myyjä ei vastaa taloyhtiön myöhemmin päättämistä kunnossapitotoimenpiteistä ja niistä aiheutuvista huoneistolle tulevista kustannuksista.
