Vanhankaupungintie 100
65610, Sepänkylä, Mustasaari
5h+k+harrastehuone+2xkph+s+khh+at
595 000 €
238 m²

Tätä asuntoa myy Nicklas Sjöblom, Myyntineuvottelija
LKV Muhonen AFM Oy

Sijainti
Asuntoesittely
Uniikki Jämerä-talo 275 m² modernia luksusta ja monipuolisuutta!
Tämä uniikki korkeatasoinen Jämerä-talo tarjoaa avoimen pohjaratkaisun sekä valoisat, modernit ja älykkäät ratkaisut koko perheelle. Lämmitysmuotona toimii maalämpö. Pääkerroksessa on kolme makuuhuonetta, kylpyhuone, erillinen wc, walk-in-closet sekä avokeittiö-olohuoneyhdistelmä, josta kulku suurelle terassille. (terassista osa on lasitettua ja osa avointa)
Kellarikerroksessa on oma sisäänkäynti, kodinhoitohuone, työhuone, takkahuone sekä ylellinen spa-osasto jacuzzilla, saunalla ja suihkuilla. Lisäksi noin 50 m² tila sopii erinomaisesti kuntosaliksi, harraste- tai työtilaksi.
Suuri ja helppohoitoinen tontti tarjoaa aurinkoa koko päivän, autotalli sekä varasto. Terassin alla putkivalmius ulkoporeammeelle. Edustava koti sinulle, joka arvostat laatua, tilaa ja monipuolisuutta.
Unikt Jämerä-hus på 275 m² modern lyx!
Detta högklassiga Jämerä-hus erbjuder en öppen planlösning och moderna ytor för hela familjen. På entrévåningen finns tre sovrum, badrum, separat wc, walk-in-closet samt ett öppet kök samt vardagsrum med utgång till stor terrass (delvis inglasad, delvis öppen). Värmning via bergvärme.
Källarvåningen har egen ingång, tvättstuga, arbetsrum, allrum med eldstad samt en lyxig spa-avdelning med jacuzzi, bastu och duschar. Cirka 50 m² yta passar perfekt som gym, hobby- eller arbetsrum.
Stor, lättskött tomt, garage och förråd. Förberett rördragning under terrassen för utomhusjacuzzi. Ett representativt hem för dig som värdesätter kvalitet, rymlighet och mångsidighet.
Vain Yksityisesittelyt / Bara Privatvisningar
Nicklas Sjöblom
LKV Muhonen AFM OY
0503687772
[email protected]
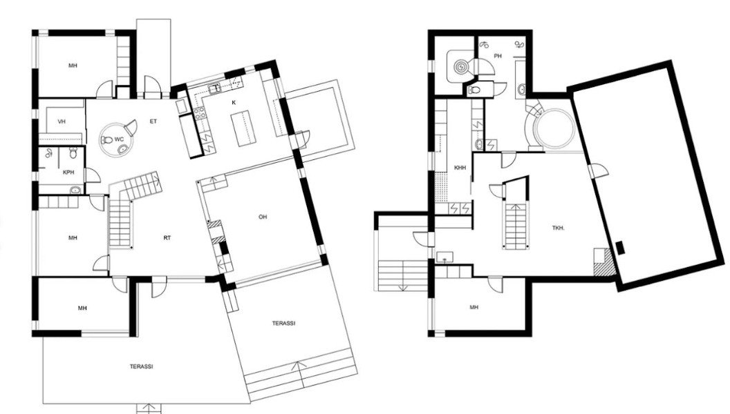
Pohjakuva

Perustiedot
- Sijainti
- Vanhankaupungintie 100, 65610, Sepänkylä, Mustasaari
- Huoneluku
- 5
- Asuinpinta-ala
- 238 m²
- Muu pinta-ala
- 65 m²
- Kokonaispinta-ala
- 303 m²
- Lisätiedot pinta-alasta
- 1. kerros 146 m2, kellari 92 m2, autotalli 65 m2. Pinta-alatiedot rakennuspiirustuksista.
- Kohteen tyyppi
- Omakotitalo
- Kerros
- 2
- Rakennusvuosi
- 2010
- Käyttöönottovuosi
- 2010
- Kohde myydään vuokrattuna
- Ei
- Vapautuminen
- Sopimuksen mukaan
Tilat ja materiaalit
- Keittiön kuvaus
- Puustelli-keittiö
- Keittiön lattiat
- Laminaatti
- Keittiön varusteet
- Jääkaappi, erillinen pakastin, liesi, astianpesukone, mikroaaltouuni, liesituuletin, keittiösaareke, ja uuni
- Liesi
- Induktioliesi
- Kylpyhuoneen seinät
- Kaakeli
- Kylpyhuoneen lattiat
- Laatta
- Kylpyhuoneen varusteet
- WC-istuin, poreamme, suihku, suihkuseinä, lattialämmitys, jacuzzi, ja pesuallas
- WC Lukumäärä
- 2
- WC:n lattiat
- Laatta
- WC:n seinät
- Kaakeli
- Makuuhuoneet
- Ensimmäisessä kerroksessa kolme tilavaa makuuhuonetta. Kellarikerroksessa harrastehuone, joka sopii myös makuuhuoneeksi.
- Makuuhuoneiden lukumäärä
- 3
- Makuuhuoneiden lattiat
- Laminaatti
- Olohuoneen seinät
- Maali ja tapetti
- Olohuoneen lattiat
- Laminaatti
- Kodinhoitohuoneen varusteet
- Pesukoneliitäntä, pöytätaso, ja kurapiste
- Kodinhoitohuoneen seinät
- Kaakeli
- Kodinhoitohuoneen lattiat
- Laatta
- Kohteen säilytystilat
- Vaatehuone, kaapistot ja lämmin ulkovarasto
- Sauna
- Kyllä
- Kiuas
- Heti valmis -sähkökiuas
- Saunan kuvaus
- Heti valmis Jacuzzi
- Takka
- Takka ja 2 kappaletta
Lisätiedot
- Asunnon kunto
- Hyvä
- Terassi
- Kyllä
- Lisätietoja terassista
- Sekä lasitettu että avoin terassi
- Hissi
- Ei
- Muut tilat
- Kellarikerroksen suuri harrastehuone.
- Kauppaan ei kuulu
- Irtain
Taloyhtiö ja kiinteistö
- Tontin pinta-ala
- 2 130 m²
- Tontin omistus
- Oma
- Tontin tyyppi
- Tasamaatontti
- Tontin myyntityyppi
- Koko tontti
- Lisätiedot rakennusmateriaaleista
- Jämerä kivitalo (siporex)
- Rakennusmateriaali
- Kivi
- Lämmitysjärjestelmä
- Maalämpö
- Ilmanvaihto
- Koneellinen ilmanvaihto
- Vesijohto
- Kunnallisvesi
- Viemäröinti
- Kunnallinen viemäriverkosto
- Kattotyyppi
- Pulpettikatto
- Katemateriaali
- Pelti
- Tie perille
- Kyllä
- Kaavatilanne
- Asemakaava
- Kaavoitustiedot
- Mustasaaren kunta
- Rakennusvaihe
- Valmis
