Vakkamäentie 218C
03300, Otalampi, Vihti
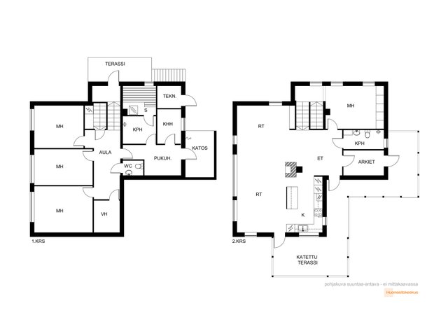
5h + k + vh + kph + s + wc + khh
389 000 €
166 m²

Tätä asuntoa myy Juha Vingisaar, Kiinteistönvälittäjä, Partner, LKV, LVV
Huoneistokeskus Oy | Vihti-Nummela

Sijainti
Asuntoesittely
Oletko etsimässä tilavaa ja valoisaa kotia perheellesi? Tämä upea, vuonna 2008 valmistunut arkkitehdin suunnittelema kivitalo Vihdin Otalammella tarjoaa kaiken, mitä tarvitset mukavaan ja moderniin asumiseen. Talon avarat ja korkeat huoneet tulvivat luonnonvaloa, ja ikkunoista avautuvat kauniit näkymät ympäröivään maaseutuun ja metsään.
Kaksikerroksinen talo on hiljattain remontoitu, ja sisäpinnat sekä talotekniikka ovat saaneet uuden ilmeen. Keittiö on varustettu laadukkailla Puustellin kodinkoneilla, ja tilava olohuone kutsuu viihtymään takkatulen ääreen. Olohuoneessa on 3,1m huonekorkeus ja näyttävä näköala isoista ikkunoista.
Talon neljä makuuhuonetta tarjoavat runsaasti tilaa perheen jokaiselle jäsenelle. Yläkerran makuuhuoneessa on parkettilattia, kun taas alakerrassa on laminaattilattiat. Rentouttava sauna ja tilava kylpyhuone lisäävät asumismukavuutta entisestään. Suurella 5100 neliömetrin tontilla on tilaa lasten leikeille ja ulkoilulle.
Tartu tilaisuuteen ja tule tutustumaan tähän kauniiseen kotiin, joka yhdistää maaseudun rauhan ja modernin asumisen mukavuudet. Tämä talo voi olla juuri se unelmien koti, jota olet etsinyt!
Perustiedot
- Sijainti
- Vakkamäentie 218C, 03300, Otalampi, Vihti
- Huoneluku
- 5
- Asuinpinta-ala
- 166 m²
- Muu pinta-ala
- 34 m²
- Kokonaispinta-ala
- 200 m²
- Pinta-alan peruste
- Pinta-ala ei ole tarkistusmitattu ja todellinen pinta-ala voi olla suurempi tai pienempi, kuin ilmoitettu
- Lisätiedot pinta-alasta
- Ei tarkistusmitattu. Pinta-ala voi siis olla edellä mainittua pienempi tai suurempi.
- Kohteen tyyppi
- Omakotitalo
- Kerros
- 2
- Rakennusvuosi
- 2008
- Lisätietoja rakennusvuodesta
- Asunrakennukselle on suoritettu "vastuu päätyy katselmus" 29.8.2024 ja varsinaista loppukatselmusta ei tarvitse tehdä. Dokumentti löytyy välittäjältä.
- Käyttöönottovuosi
- 2008
- Kohde myydään vuokrattuna
- Ei
- Vapautuminen
- 1-2kk kaupasta
Tilat ja materiaalit
- Keittiön kuvaus
- Puustellin keittiö laadukkailla kodinkoneilla (2020).
- Keittiön lattiat
- Laatta
- Keittiön seinät
- Maali
- Keittiön varusteet
- Liesituuletin, jääkaappi, erillinen pakastin, ja astianpesukone
- Liesi
- Induktioliesi
- Kylpyhuoneen seinät
- Kaakeli
- Kylpyhuoneen lattiat
- Laatta
- Kylpyhuoneen varusteet
- WC-istuin ja suihku
- WC Lukumäärä
- 2
- WC:n lattiat
- Laatta
- WC:n seinät
- Kaakeli
- Makuuhuoneet
- Yläkerran makuuhuoneessa parketti, alakerran makuuhuoneissa laminaatti.
- Makuuhuoneiden lukumäärä
- 4
- Makuuhuoneiden seinät
- Maali
- Makuuhuoneiden lattiat
- Laminaatti ja parketti
- Olohuoneen seinät
- Maali
- Olohuoneen lattiat
- Tammiparketti
- Kodinhoitohuoneen varusteet
- Pesukoneliitäntä
- Kodinhoitohuoneen seinät
- Maali
- Kodinhoitohuoneen lattiat
- Laatta
- Kohteen säilytystilat
- Vaatehuone
- Sauna
- Kyllä
- Kiuas
- Puukiuas
- Takka
- Takka
Lisätiedot
- Asunnon kunto
- Hyvä
- Lisätietoja kunnosta
- Terassi
- Kyllä
- Hissi
- Ei
Taloyhtiö ja kiinteistö
- Tontin pinta-ala
- 5 100 m²
- Tontin omistus
- Oma
- Tontin tyyppi
- Rinnetontti
- Tontin myyntityyppi
- Koko tontti
- Tontin tiedot
- Kunnalla on etuosto-oikeus, kun tontti on yli 5000m2
- Lisätiedot rakennusmateriaaleista
- Kivi, Runko Leca -harkko 380mm, yläpohja puurakenteinen. Myös väliseinät harkkorakenteisia. Seinät rapattu ulkoa ja sisältä. Sisällä "akustiikkakatto". Lukkosaumapeltikatto uusittu 2022
- Rakennusmateriaali
- Leca-harkko ja kivi
- Lämmitysjärjestelmä
- Sähkö Kustannukset: 12500 kWh / vuosi Lattialämmitys 2 X Ilmalämpöpumppu
- Ilmanvaihto
- Koneellinen ilmanvaihto LTO
- Vesijohto
- Porakaivo
- Viemäröinti
- Pienpuhdistamo ja saostuskaivo
- Lisätietoja viemäristä
- Jätevesijärjestelmä uusittu (Iisi Kivi pienpuhdistamo)
- Kattotyyppi
- Harjakatto
- Katon kunto
- Hyvä, uusittu 2022
- Katemateriaali
- Lukkosaumapeltikatto
- Lisätietoa rakennusoikeudesta
- Vihdin kunnan rakennusvalvonta
- Kohteesta on energiatodistus
- Ei lain edellyttämää energiatodistusta
- Tie perille
- Kyllä
- Paikallistiedot
- Kauppa 5,4 km
- Koulut
- Ótalammen koulu 5,1 km
- Kaavatilanne
- Yleiskaava
- Kuntotarkastus tehty
- 17.02.2022
- Rakennusvaihe
- Valmis
- Asbestikartoitus
- Ei
Tehdyt remontit
2019-2020
Sisäpinnat on kauttaaltaan uusittu / kunnostettu ja talotekniikkaa uusittu merkittävästi – remontti tehtiin perusteellisesti alakerran makuuhuoneessa sattuneen tulipalon ja savuvahingon takia. Tällöin uudistettu talotekniikan osalta mm. sähköt, IV-putket ja IV-kone, vesiputket, näkyvät viemärin osat.
Alakerran pukuhuone, khh, kylpyhuone ja sauna tehty
2022
Murretun harjan ulkoverhous
Watman vedensuodattimien huolto ja tarkastus
Tuuletusviemärin vuotavan liitoksen korjaus
Lämminvesivaraaja vaihdettu uuteen
Piharemontti
Uusi porakaivo ja porakaivopumppu
Ikkunoiden vesipellit + ikkunankarmien maalaus ulkopuolelta.
Kattoremontti, tiilikatto vaihdettu lukkosaumapeltikattoon.
Uudet lukot ulko-oviin ja Yale älylukko arkieteisen oveen.
2023
Radonmittaus suoritettu, tulos erinomainen.
Katetun terassin tolppien vaihto, rimoitukset, portaat ja kaiteet.
Takaterassin rakentaminen
Pintarappaus tehty muutamaan ulkoseinään ja tukimuuriin.
Yläpihan sadevesiputkien kuvaus + paineavaus
Ulkoseinien maalaus
Ulko-ovien maalaus
Ilmalämpöpumppujen asentaminen molempiin kerroksiin (Daikin Perfera 30).
2024
Jätevesijärjestelmä uusittu (Iisi Kivi pienpuhdistamo)
Yläpohjassa uusittu IV-kanavan ja tuuletusviemärin eristeet + höyrynsulun paikkaus.
Ulkoportaat tukimuurin viereen.
2025
Alakerran kylpyhuoneen epäsuora valaistus.
