Unikkotie 22 A
01300, Tikkurila, 06Viertola, Vantaa
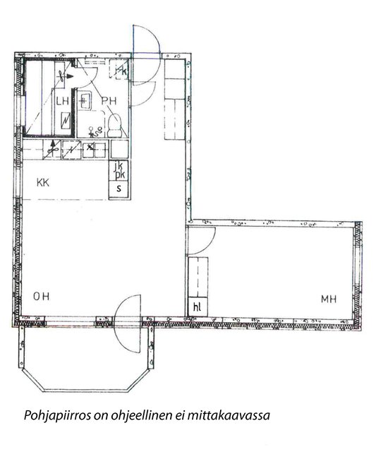
2h,avok,s,lasitettu parveke
195 000 € (3 900 € / m²)
50 m²

Tätä asuntoa myy Laila Lindroos, tj, rkm, LKV
Vantaan Kotiovi Oy LKV

Sijainti
Asuntoesittely
TOIMIVA JA VALOISA YLIMMÄN KEROKSEN SAUNALLINEN KAKSIO
Tämä viehättävä kaksio Vantaan Tikkurilassa tarjoaa mukavaa asumista hissitalon ylimmän kerroksen kulmahuoneistossa. Asunto on hyvässä kunnossa ja siinä on avokeittiö, oma sauna sekä etelään suuntautuva lasitettu parveke, joka tuo valoa ja avaruutta.
Asunto Oy Talvineilikka on hyvin hoidettu taloyhtiö, jossa on tehty useita tärkeitä remontteja vuosien varrella. Tulevat korjaukset varmistavat, että talo pysyy kunnossa myös tulevaisuudessa.
Sijainti on erinomainen: Tikkurilan monipuoliset palvelut, kuten kaupat, kirjasto ja uimahalli, ovat kävelymatkan päässä. Liikenneyhteydet ovat loistavat, sillä Dixin/Tikkurilan juna-asema on lähellä, ja bussipysäkki löytyy myös läheltä. Alueella on hyvät ulkoilumahdollisuudet, ja esimerkiksi Tikkurilan rantapuisto tarjoaa kauniit puitteet vapaa-aikaan.
Tartu tilaisuuteen ja tule tutustumaan tähän kodikkaaseen asuntoon, joka tarjoaa rauhallista asumista keskeisellä paikalla!
Lisätietoa: KOTIOVI LKV p. 040 5023495 / Laila Lindroos
[email protected]Perustiedot
- Sijainti
- Unikkotie 22 A, 01300, Tikkurila, 06Viertola, Vantaa
- Omistusmuoto
- Omistusasunto
- Huoneluku
- 2
- Asuinpinta-ala
- 50 m²
- Kokonaispinta-ala
- 50 m²
- Pinta-alan peruste
- Yhtiöjärjestyksen mukainen, (Pinta-ala ei ole tarkistusmitattu ja todellinen pinta-ala voi olla suurempi tai pienempi, kuin ilmoitettu)
- Kohteen tyyppi
- Kerrostalo
- Kerros
- 3 / 3
- Rakennusvuosi
- 1989
- Kohde myydään vuokrattuna
- Ei
- Vapautuminen
- Sopimuksen mukaan
Hinta ja kustannukset
- Velaton hinta
- 195 000 €
- Myyntihinta
- 172 490,91 €
- Velkaosuus
- 22 509,09 €
- Yhtiövastike
- Hoitovastike 257,50 € / kk (5,15 € / m²), Rahoitusvastike 165,38 € / kk (3,31 € / m²), Yhtiövastike yhteensä 422,88 € / kk
- Autopaikkamaksu
- 15 € / kk
- Vesimaksu
- 20 € / hlö / kk
- Neliöhinta
- 3 900 € / m²
- Lisätietoja maksusta
- Laajakaistamaksu 1.3 €/kk
Tilat ja materiaalit
- Keittiön lattiat
- Laminaatti
- Keittiön seinät
- Maali
- Keittiön varusteet
- Jääkaappipakastin, liesi, liesituuletin, ja astianpesukone
- Kylpyhuoneen seinät
- Kaakeli
- Kylpyhuoneen lattiat
- Laatta
- Kylpyhuoneen varusteet
- WC-istuin, suihku, suihkuseinä, peilikaappi, pesuallas, allaskaappi, ja bidee-suihku
- Makuuhuoneiden lukumäärä
- 1
- Makuuhuoneiden seinät
- Maali
- Makuuhuoneiden lattiat
- Laminaatti
- Olohuoneen seinät
- Maali
- Olohuoneen lattiat
- Laminaatti
- Kohteen säilytystilat
- Kaapistot ja kellarikomero
- Sauna
- Kyllä
- Kiuas
- Sähkökiuas
Lisätiedot
- Asunnon kunto
- Tyydyttävä
- Parveke
- Lasitettu parveke
- Parvekkeen ilmansuunta
- Etelä
- Hissi
- Kyllä
- Muut tilat
- Eteisessä liukuovellinen kaapisto
- Lisätietoa lattioiden pintamateriaaleista
- Lattiapinnat jo hieman kuluneet
- Muut kaupan kannalta merkittävät tiedot
- Hissitalon kulmahuoneisto ylinmässä kerroksessa
Taloyhtiö ja kiinteistö
- Taloyhtiön nimi
- Asunto Oy Talvineilikka
- Isännöitsijätoimisto
- Aamu & Isännöintipiste Oy
- Isännöitsijän nimi
- Topi Virtanen
- Isännöitsijän sähköposti
- [email protected]
- Isännöitsijän puhelin
- 030 410 8640
- Tontin pinta-ala
- 4 566 m²
- Tontin omistus
- Oma
- Rakennusmateriaali
- Betoni
- Lämmitysjärjestelmä
- Kaukolämpö
- Ilmanvaihto
- koneellinen poisto
- Vesijohto
- Kunnallisvesi
- Viemäröinti
- Kunnallinen viemäriverkosto
- Kattotyyppi
- Harjakatto
- Katemateriaali
- Pelti
- Lisätietoja kiinteistönhoidosta
- Huoltoyhtiö
- Kiinteistönhoidon lisätiedot
- Kotikatu Tikkurila
- Taloyhtiössä on
- Kaapeli-tv, kuivaushuone, urheiluvälinevarasto, kellarikomero, väestönsuoja, ja lastenvaunuvarasto
- Lunastusoikeus yhtiöllä
- Ei
- Lunastusoikeus osakkaille
- Ei
- Kohteesta on energiatodistus
- Kyllä
- Energialuokka
- D2018
- Energiatodistuksen voimassaolo
- 21.7.2033
- Liikenneyhteydet
- Bussipysäkki lähellä ja juna-asema lähellä
- Lisätietoja liikenneyhteyksistä
- Dixin/Tikkurilan juna-asema on lähellä
- Piha-autopaikkoja
- 41 kpl
- Kaavatilanne
- Asemakaava
- Asbestikartoitus
- Ei
Tehdyt remontit
2002 Vesikaton pinnoitteiden maalus
2003 Parvekkeiden ja ikkunoiden maalaus
2003 Elementtisaumojen uusiminen
2007 Pysäköintialueen asfaltointi
2008 Varastorakennusken katon uusinta
2010 Lämmönvaihtimen uusinta
2010 Etelä ja itäsivun teräspuikkoaidan asennus
2010 Hormiston nuohous
2011 Asfalttikorjauksia parkkialueela
2011 Patteriverkoston tasapainoitus ja lämmönsäätö
2011 Patteriventtiilien vaihto
2012 Porrashuoneiden huoltokorjaukset
2012 Lukkosarjoituksen uusinta
2012 Parvekkeiden tasakattojen korjaus
2012 Vesikaton pinnoitteen uusiminen
2014 Vesivahinko korjauksia
2015 Poistoilmakoneiden uusiminen
2016 Pihan oleskselu- ja leikkialueen kunnostus
2017 Terassiaitojen uusiminen sekä pihakorjaukset
2020 Piha-aitojen korjaus
2020 Jätekatoksen huoltokorjaukset
2021 Viemäräiden huuhtelu
2021 Ilmastokanavien nuohous
2021 Salaojien huuhtelu ja kuvaaminen
2021 Aluevalaistuksen huolto
2022Pää- ja kiinteistösähkökeskusten huolto
2022 Käyttövesi ja viemäriverkoston kuntotutkimus
2022 Märkätilaremontin hankesuunnitelma.
2023 D-portaan laatan korjaus/reikien täyttö
2023 Märkätilaremontin toteutussuunnitelma.
2024-2025 Märkätilaurakka (kph/sauna) poislukien huoneistot 2, 6, 3, 15, 28, 32, 39.
2025 Siirretty syöksytorvet tuloilmaventtiilien päältä sivuun
2025 huoneiston D 36 erilliswc:n vesivahingon korjaus märkätilaurakan yhteydessä.
2025 Ilmanvaihdon lisätyöt märkätilaurakan yhteydessä.
-Sadevesiviemäreiden huuhtelu ja kuvaus. Yhden sadevesikaivon teleskoopin lyhennys
Tulevat remontit
2025 Katon paikkamaalaukset
2025 Ilmanvaihdon lisätyöt
2025 Hissin peruskorjaus
2025 Huoneistojen parvekkeiden kuntotutkimus
2026 Huoneistojen ikkunoiden, parveke-ovien ja elementtisaumojen uusiminen
2026 Porraskäytävien laastisaumojen korjaus
2026 Lämpimän kiertovesijärjestelmän seuranta- ja lisätutkimukset