Tampereentie 120 B
13600, Puistonmäki, Hämeenlinna
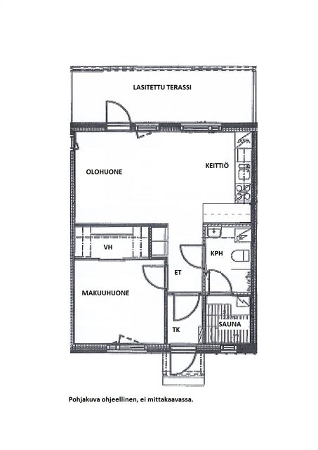
2h+k+sauna+kph+vh+lasitettu terassi
142 000 € (2 840 € / m²)
50 m²

Tätä asuntoa myy Petri Autio, Toimitusjohtaja/Yrittäjä, Kiinteistönvälittäjä LKV, LVV, KiAT, YJEAT, IAT
Autiotalot LKV Oy

Sijainti
Asuntoesittely
Ihastuttava rivitalokaksio Puistonmäessä odottaa uusia asukkaita! Tämä vuonna 2011 valmistunut päätyhuoneisto tarjoaa modernia asumismukavuutta ja on erinomaisessa kunnossa. Asunnon 50 neliötä on käytetty tehokkaasti, ja tilava lasitettu terassi tuo lisätilaa ympäri vuoden.
Koti on varustettu omalla saunalla, joka tarjoaa rentouttavia hetkiä arjen kiireiden keskellä. Keittiöstä löytyy kaikki tarvittava, kuten integroitu astianpesukone ja keraaminen liesi, mikä tekee ruoanlaitosta vaivatonta. Tilava vaatehuone. Varustukseen kuuluu myös ilmalämpöpumppu.
Puistonmäen alueella on hyvät liikenneyhteydet ja kattavat pyöräilyreitit, mikä tekee liikkumisesta helppoa ja vaivatonta. Keskustan palvelut ovat kävelyetäisyydellä. Upea Vanajaveden rantaulkoilureitti on ihan vieressä.
Tartu tilaisuuteen ja tule tutustumaan tähän viehättävään kotiin!
Lisätiedot ja esittelyt Petri Autio p. 040 456 0550 tai [email protected]
Perustiedot
- Sijainti
- Tampereentie 120 B, 13600, Puistonmäki, Hämeenlinna
- Omistusmuoto
- Omistusasunto
- Huoneluku
- 2
- Asuinpinta-ala
- 50 m²
- Kokonaispinta-ala
- 50 m²
- Pinta-alan peruste
- Yhtiöjärjestyksen mukainen, Isännöitsijäntodistuksen mukainen, (Pinta-ala ei ole tarkistusmitattu ja todellinen pinta-ala voi olla suurempi tai pienempi, kuin ilmoitettu)
- Lisätiedot pinta-alasta
- Ei tarkistusmitattu. Pinta-ala voi siis olla edellä mainittua pienempi tai suurempi.
- Kohteen tyyppi
- Rivitalo
- Kerros
- 1 / 1
- Rakennusvuosi
- 2011
- Kohde myydään vuokrattuna
- Ei
- Vapautuminen
- Sopimuksen mukaan
Tilat ja materiaalit
- Keittiön lattiat
- Laminaatti
- Keittiön seinät
- Laatta ja maali
- Keittiön varusteet
- Jääkaappipakastin, erillisuuni, liesi, astianpesukone (Integroitu), ja liesituuletin
- Liesi
- Keraaminen liesi
- Kylpyhuoneen seinät
- Kaakeli
- Kylpyhuoneen lattiat
- Laatta
- Kylpyhuoneen varusteet
- WC-istuin, suihkuseinä, pesuallas, allaskaappi, peili, pesukoneliitäntä, ja suihku
- Makuuhuoneiden lukumäärä
- 1
- Makuuhuoneiden seinät
- Maali
- Makuuhuoneiden lattiat
- Laminaatti
- Olohuoneen seinät
- Maali ja tapetti
- Olohuoneen lattiat
- Laminaatti
- Kohteen säilytystilat
- Kaapistot, vaatehuone ja kellarikomero
- Sauna
- Kyllä
- Kiuas
- Sähkökiuas
Lisätiedot
- Asunnon kunto
- Erinomainen
- Näkymät
- Läpitalon päätyhuoneisto.
- Terassi
- Kyllä
- Lisätietoja terassista
- Katettu, lasitettu terassi.
- Hissi
- Ei
- Muuta kauppaan kuuluvaa
- Ilmalämpöpumppu.
Taloyhtiö ja kiinteistö
- Taloyhtiön nimi
- Asunto Oy Hämeenlinnan Vanajanlaakso
- Isännöitsijätoimisto
- Autiotalot Isännöinti Oy
- Isännöitsijän nimi
- Tuomas Nopanen
- Isännöitsijän sähköposti
- [email protected]
- Isännöitsijän puhelin
- 050 473 1006
- Tontin pinta-ala
- 2 116 m²
- Tontin omistus
- Oma
- Rakennusmateriaali
- Puu ja kivi
- Lämmitysjärjestelmä
- Sähkö
- Ilmanvaihto
- Koneellinen ilmanvaihto
- Vesijohto
- Kunnallisvesi
- Viemäröinti
- Kunnallinen viemäriverkosto
- Kattotyyppi
- Harjakatto
- Katemateriaali
- Tiili
- Lisätietoja kiinteistönhoidosta
- Huoltoyhtiö
- Kiinteistönhoidon lisätiedot
- KH-kiinteistöala
- Taloyhtiössä on
- Kaapeli-tv ja kellarikomero
- Lunastusoikeus yhtiöllä
- Ei
- Lunastusoikeus osakkaille
- Ei
- Kohteesta on energiatodistus
- Kyllä
- Energialuokka
- D2018
- Energiatodistuksen voimassaolo
- 16.5.2031
- Liikenneyhteydet
- Sujuvat yhteydet omalla autolla ja hyvät pyöräilytiet
- Taloyhtiön autopaikat
- Autotallit erillisinä osakkeina.
- Autotallit
- 9
- Piha-autopaikkoja
- 6 kpl
- Taloyhtiöllä sauna
- Ei
- Kaavatilanne
- Asemakaava
- Lisätiedot kaavoituksesta
- Hml kaupunki
- Asbestikartoitus
- Ei
- Taloyhtiön kiinnitykset
- 620 000 €
- Taloyhtiön kiinnitysten päivämäärä
- Isännöitsijäntodistuksen päivämäärän mukainen
Tehdyt remontit
2012 Pihan asfaltointi
2020 Yläpohjan tiivistyskorjaus tehty syksyllä 2020 rakennuttajan toimesta
2022 IV-kanavien nuohous ja säätö
Normaalit huolto- ja kunnossapitotyöt.
Tulevat remontit
Rakennetekninen kuntoarvio 2025-2026 kunnossapitotarveselvityksen tueksi.
