Tammenkannontie 165
21420, Lieto
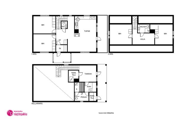
Tupakeittiö+4mh+th/ala-aula+khh+ph/wc+s+2wc+yk aula+erill varastorak/katos 2 autolle
279 000 €
124 m²

Tätä asuntoa myy Jukka Iso-Seppälä, Myyntiedustaja
Kiinteistönvälitys Näytönpaikka Oy

Sijainti
Asuntoesittely
2000-LUVUN OMAKOTITALO PERHEELLE LIEDOSSA!
Miltä kuulostaisi koti, jossa metsän rauha ja kolmen kerroksen mahdollisuudet yhdistyvät toimivaksi kokonaisuudeksi – juuri sellaiseksi kuin perheesi elämäntilanne kaipaa?
Tämä Liedossa sijaitseva omakotitalo tervehtii noin 1,4 hehtaarin omalla kallioisella rinnetontillaan! Nyt alkuperäiseltä omistajalta vapautuva koti on huolella pidetty ja tarjoaa kaiken toivottavan. Rakennus on valmistunut vuonna 2000 ja sen 124 m²:n asuintilat jakautuvat kolmeen tasoon – käytännöllisesti ja kodikkaasti.
Alimmassa kerroksessa on oma sisäänkäyntinsä, joka helpottaa kuraisempina keleinä. Löydät pesuhuoneen, saunan, kodinhoitohuoneen sekä takkavarauksella varustetun oleskelutilan: mikä paikka arjen rauhoittumiselle tai vaikka nuorison omaksi valtakunnaksi! Keskikerroksessa on tupakeittiö, kaksi makuuhuonetta sekä erillinen wc. Yläkerrassa odottaa kaksi makuuhuonetta lisää - sekä aulatila, josta voisi tulla vaikkapa työtilakin.
Ja pihapiiri? Siellä jatkuu toivelistalaisen tarina: lämmin varasto ja kahden auton katos (yhteensä n. 66 m²), erillinen puuvaja ja varastorakennus – sekä ympärillä kaunis, suojaisa tontti, joka tarjoaa yksityisyyttä ja tilaa arjen unelmille.
Liedon palvelut lähellä, ja yhteydet Turun suuntaan ihanteelliset.
Kodin parhaat puolet pähkinänkuoressa:
•Kolme kerrosta – mahdollisuuksia muokata tiloja eri elämäntilanteisiin
•Noin 1,4 hehtaarin suojaisa rinnetontti luonnonhelmassa
•Alakerran oma sisäänkäynti, takkavaraus ja puulämmitteinen sauna
•2 auton katos + lämmin varasto + erillinen puuvaja
•4 makuuhuonetta ja tilava yläaula
•Käytännöllinen kodinhoitohuone ja 2 wc:tä
Tämä ei ole vain talo – tämä on kokonaisuus, jota on helppo kutsua kodiksi.
Varaa oma esittelyaikasi, niin mennään yhdessä tutustumaan paikan päälle! Mikäli oma kotisi on myymättä, annan siitä maksuttoman hinta-arvion myyntisuunnitelman kera, joten kaikki hoituu. Ota yhteyttä!
Jukka Iso-Seppälä
+358 40 300 4345
[email protected]Perustiedot
- Sijainti
- Tammenkannontie 165, 21420, Lieto
- Huoneluku
- 6
- Asuinpinta-ala
- 124 m²
- Muu pinta-ala
- 10 m²
- Kokonaispinta-ala
- 134 m²
- Pinta-alan peruste
- Pinta-ala ei ole tarkistusmitattu ja todellinen pinta-ala voi olla suurempi tai pienempi, kuin ilmoitettu
- Lisätiedot pinta-alasta
- Ei tarkistusmitattu. Pinta-ala voi siis olla edellä mainittua pienempi tai suurempi.
- Kohteen tyyppi
- Omakotitalo
- Kerros
- 3
- Rakennusvuosi
- 2000
- Käyttöönottovuosi
- 2000
- Kohde myydään vuokrattuna
- Ei
- Vapautuminen
- Sopimuksen mukaan
Hinta ja kustannukset
- Myyntihinta
- 279 000 €
- Keskimääräinen lämmityskustannus
- 150 € / kk
- Vesi ja jätevesi (€/kk)
- 23 €
- Puhtaanapito (€/kk)
- 20 €
- Tiemaksut (€/vuosi)
- 303 €
- Kiinteistövero (€/vuosi)
- 610 €
- Sähköliittymä siirtyy
- Kyllä
- Neliöhinta
- 2 250 € / m²
- Lisätietoja maksusta
- Öljynkulutus n. 1200 l/v (lämmitetty paljon puulla). Sähkön kulutus n. 6000-7000 kWh/v.
Tilat ja materiaalit
- Keittiön kuvaus
- Hyväkuntoinen Parma-keittiö.
- Keittiön lattiat
- Laminaatti
- Keittiön seinät
- Tapetti
- Keittiön varusteet
- Jääkaappi, liesi, liesituuletin, ja astianpesukone
- Liesi
- Keraaminen liesi
- Kylpyhuone
- Alkuperäiset pesutilat.
- Kylpyhuoneen seinät
- Kaakeli
- Kylpyhuoneen lattiat
- Laatta
- Kylpyhuoneen varusteet
- WC-istuin, suihku, pesukoneliitäntä, ja lattialämmitys
- WC Lukumäärä
- 2
- Erillinen WC
- Erilliset wc:t ensimmäisessä ja toisessa kerroksessa. Kellarikerroksessa wc-istuin pesuhuoneen yhteydessä. Yläkerran wc:ssä lattiakaivo, varaus suihkulle.
- WC:n lattiat
- Muovimatto
- WC:n seinät
- Kaakeli
- Makuuhuoneet
- Hyväkuntoiset makuuhuoneet, laminaatit uusittu 2009, yläkerran makuuhuoneet tapetoitu 2009 ja toinen alakerran makuuhuone 2010.
- Makuuhuoneiden lukumäärä
- 4
- Makuuhuoneiden seinät
- Tapetti
- Makuuhuoneiden lattiat
- Laminaatti
- Olohuone
- Siistikuntoinen olohuone/tupakeittiö, varaava takka/leivinuuni, laminaatti uusittu 9/2025.
- Olohuoneen seinät
- Tapetti
- Olohuoneen lattiat
- Laminaatti
- Kodinhoitohuoneen varusteet
- Lattialämmitys, pyykkikaapit, pöytätaso, ja silityspöytä/taso
- Kodinhoitohuoneen seinät
- Paneeli ja osalaatoitus
- Kodinhoitohuoneen lattiat
- Laatta
- Kodinhoitohuone
- Ikkunallinen kodinhoitohuone alakerrassa.
- Kohteen säilytystilat
- Lämmin ulkovarasto, vinttikomero, kylmä ulkovarasto ja kaapistot
- Sauna
- Kyllä
- Kiuas
- Sähkökiuas
- Saunan kuvaus
- Aluperäinen, vähän käytetty.
- Takka
- Varaava takka, takkavaraus ja leivinuuni
Lisätiedot
- Asunnon kunto
- Hyvä
- Terassi
- Kyllä
- Lisätietoja terassista
- Terassiparveke kiertää taloa kahdella sivulla.
- Muut tilat
- Kellarikerroksen takkahuone/aula takkavaraus, lattiat laatta, seinissä osalaatoitus, pesuallas ja kurapiste.
- Muuta kauppaan kuuluvaa
- Polttopuut kuuluvat kauppaan
Taloyhtiö ja kiinteistö
- Tontin pinta-ala
- 14 000 m²
- Tontin omistus
- Oma
- Tontin tyyppi
- Rinnetontti
- Tontin myyntityyppi
- Koko tontti
- Rakennusmateriaali
- Puu ja lautaverhous
- Lämmitysjärjestelmä
- Öljy Puu
- Ilmanvaihto
- Koneellinen ilmanvaihto
- Vesijohto
- Kunnallisvesi
- Viemäröinti
- Imeytyskenttä ja 3 säiliötä
- Kattotyyppi
- Harjakatto
- Katon kunto
- Hyvä
- Katemateriaali
- Tiili
- Lisätietoa rakennusoikeudesta
- Liedon kaupunki, kaavoitus.
- Kohteesta on energiatodistus
- Ei lain edellyttämää energiatodistusta
- Lisätietoja energiatodistuksesta
- Myyjä toimittaa energiatodistuksen kaupantekotilaisuuteen mennessä.
- Liikenneyhteydet
- Sujuvat yhteydet omalla autolla
- Tie perille
- Kyllä
- Kaavatilanne
- Yleiskaava
- Kaavoitustiedot
- Liedon kaupunki.
- Rakennusvaihe
- Valmis
- Muut rakennukset
- Autokatos ja liiteri
- Lisätietoa muista rakennuksista
- Autokatos/lämmin varasto yhteensä 66 m2, josta lämpimät varastot 30 m2. Erillinen puuvaja/varasto.
Tehdyt remontit
Puuvaja maalattu 2023, asuinrakennuksen puuosat maalattu 2024, autotalli maalattu 2024.
