Töyrytie 6 C
00630, Maunula, Helsinki
2-3 h, k
188 000 € (2 932,92 € / m²)
64,1 m²

Tätä asuntoa myy Mari Varis, LKV, KiAT, Kaupanvahvistaja
Neliöt Liikkuu LKV Oy Ab

Sijainti
Asuntoesittely
Maunulan paras taloyhtiö vuonna 2021!
”Kuin yhtä suurta perhettä” – Suomen parhaaksi valitussa taloyhtiössä kukoistaa yhteisöllisyys!
Näin asukkaat kertoivat kun heitä haastateltiin Kotitaloon kun taloyhtiö voitti Suomen paras taloyhtiö tittelin vuonna 2021
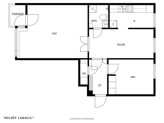
Tässä asunnossa on keittiö ja ruokailutila erikseen, jonka tarvittaessa voi muuttaa huoneeksi.
Keittiön ja ruokailutilan seinä ei ole kantava, joten voit tehdä myös avokeittiön ruokailutilasta kuten moni tehnytkin.
Hyvänkokoinen makuuhuone ja iso valoisa olohuone tuovat ihanaa 50-luvun tunnelmaa.
Olohuoneesta on käynti pienelle parvekkeelle.
Kylpyhuone on remontoitu linjasaneerauksen yhteydessä vuonna 2002 - 2004.
Maunulan alueella arki sujuu vaivattomasti, sillä läheltä löytyvät kaikki tarvittavat palvelut, kuten kaupat, koulut ja päiväkodit. Keskuspuiston ja Pirkkolan liikuntapuiston läheisyys tarjoaa erinomaiset mahdollisuudet ulkoiluun ja liikuntaan ympäri vuoden.
Tartu tilaisuuteen ja remontoi tästä asunnosta juuri sinun näköisesi koti!
Esittelypyynnöt [email protected] tai soita Marille numeroon 0400 460852.Perustiedot
- Sijainti
- Töyrytie 6 C, 00630, Maunula, Helsinki
- Omistusmuoto
- Omistusasunto
- Huoneluku
- 2
- Asuinpinta-ala
- 64,1 m²
- Kokonaispinta-ala
- 64,1 m²
- Pinta-alan peruste
- Yhtiöjärjestyksen mukainen, Isännöitsijäntodistuksen mukainen, (Pinta-ala ei ole tarkistusmitattu ja todellinen pinta-ala voi olla suurempi tai pienempi, kuin ilmoitettu)
- Lisätiedot pinta-alasta
- Ei tarkistusmitattu. Pinta-alat saattavat tämän ikäisissä kohteissa (yhtiö rekisteröity ennen 01.01.1992) poiketa olennaisestikin asuinrakennusten nykyisten mittaustapojen ja standardien (SFS 5139) mukaan laskettavasta asuintilojen pinta-alasta. Pinta-ala voi siis olla edellä mainittua pienempi tai suurempi.
- Kohteen tyyppi
- Kerrostalo
- Kerros
- 2 / 3
- Rakennusvuosi
- 1952
- Käyttöönottovuosi
- 1952
- Kohde myydään vuokrattuna
- Ei
- Vapautuminen
- Heti
Hinta ja kustannukset
- Velaton hinta
- 188 000 €
- Myyntihinta
- 186 655,52 €
- Velkaosuus
- 1 344,48 €
- Yhtiövastike
- Hoitovastike 448,70 € / kk (7 € / m²), Rahoitusvastike 36,54 € / kk (0,57 € / m²), Yhtiövastike yhteensä 485,24 € / kk
- Autopaikkamaksu
- 20 € / kk
- Saunamaksu
- 20 € / kk
- Vesimaksu
- 25 € / hlö / kk
- Neliöhinta
- 2 932,92 € / m²
- Lisätietoja maksusta
- Taloyhtiön hallitukselle on annettu valtuutus periä (tai olla perimättä) ylimääräistä vastiketta yhtiön taloudellisen aseman tai maksuvalmiuden sitä vaatiessa
Tilat ja materiaalit
- Keittiön kuvaus
- Keittiö on täysin remontin tarpeessa.
- Keittiön lattiat
- Muovimatto
- Keittiön seinät
- Maali
- Keittiön varusteet
- Jääkaappipakastin ja liesituuletin
- Liesi
- Sähköhella
- Kylpyhuone
- Kylpyhuone on täysin saneerattu linjasaneerauksen yhteydessä 2002 - 2004.
- Kylpyhuoneen seinät
- Kaakeli
- Kylpyhuoneen lattiat
- Laatta
- Kylpyhuoneen varusteet
- WC-istuin, suihku, peilikaappi, ja pesuallas
- Makuuhuoneet
- Iso makuuhuone.
- Makuuhuoneiden lukumäärä
- 1
- Makuuhuoneiden seinät
- Maali
- Makuuhuoneiden lattiat
- Muovimatto
- Olohuone
- Ihanan iso olohuone, josta käynti pienelle parvekkeelle.
- Olohuoneen seinät
- Maali
- Olohuoneen lattiat
- Parketti
- Kohteen säilytystilat
- Häkkivarasto ja kaapistot
- Sauna
- Ei
Lisätiedot
- Asunnon kunto
- Välttävä
- Lisätietoja kunnosta
- Asunto tarvitsee täydellisen remontin.
- Näkymät
- Olohuoneesta takapihalle ja muista huoneista kadulle.
- Parveke
- Ulostyönnetty parveke
- Terassi
- Ei
- Hissi
- Ei
- Muut tilat
- Asunto on yhtiöjärjestyksen mukaan 2-3 h ja jos tarve toiselle makuuhuoneelle, niin se on mahdollista toteuttaa.
- Lisätietoa seinien pintamateriaaleista
- Seinät maalattu ja osittain tapetoitu.
Taloyhtiö ja kiinteistö
- Taloyhtiön nimi
- Asunto Oy Vesakko Bostads Ab
- Isännöitsijätoimisto
- Isännöitsijätoimisto Fallenius Oy
- Isännöitsijän nimi
- Pia Akselin
- Isännöitsijän puhelin
- 050 325 8696
- Tuotot
- 117513.64
- Taloyhtiön lisätiedot
- Yhtiökokokous 14.5.2024 päätti hallituksen esittämästä ikkunasaneeraushankkeesta, että ikkunoiden kuntoa ja hankkeen laajuutta selvitetään lisää. Yhtiökokous 15.5.2025 päätti enintään 200.000,00 euron hoitolainan nostamisesta vesivahinkokorjauksen rahoittamiseksi. Sähkösuunnittelu etenee, ja urakka on tarkoitus kilpailuttaa 2025. Asiasta pidettiin ensimmäinen infotilaisuus 3.9.2025 ja toinen infotilaisuus 10.11.2025. Tarkoitus on pitää asiasta päättävä ylimääräinen yhtiökokous loppuvuoden 2025 aikana.
- Tontin pinta-ala
- 21 641 m²
- Tontin omistus
- Vuokra
- Maanvuokraaja
- Helsingin kaupunki
- Tontin vuosivuokra
- 231 482,70 €
- Vuokra-aika päättyy
- 31.12.2060
- Rakennusmateriaali
- Tiili
- Lämmitysjärjestelmä
- Kaukolämpö
- Ilmanvaihto
- Painovoimainen ilmanvaihto
- Vesijohto
- Kunnallisvesi
- Viemäröinti
- Kunnallinen viemäriverkosto
- Kattotyyppi
- Harjakatto
- Katemateriaali
- Tiili
- Lisätietoja kiinteistönhoidosta
- Talonmies
- Taloyhtiössä on
- Askarteluhuone, kellarikomero, pesutupa, vinttikomero, pyörävarasto, ja urheiluvälinevarasto
- Lunastusoikeus yhtiöllä
- Ei
- Lunastusoikeus osakkaille
- Ei
- Kohteesta on energiatodistus
- Kyllä
- Energialuokka
- D2018
- Energiatodistuksen voimassaolo
- 4.5.2033
- Liikenneyhteydet
- Bussipysäkki lähellä, sujuvat yhteydet omalla autolla, hyvät pyöräilytiet, kaupunkiliikenneyhteys ja hyvä kulkuyhteys
- Lisätietoja liikenneyhteyksistä
- Maunulassa ajavat bussilinjat 23, 53, 63, 66, 67, 67N ja 553. Bussilinjat 23, 53, 63 ja 67N palvelevat Metsäpurontietä ja Männikkötietä. Bussilinja 23 tarjoaa yhteyden Pasilan ja Maunulan välille ja bussilinja 63 tarjoaa yhteyden Mannerheimintien ja Maunulan välille. Poikittaislinjat tarjoavat yhteyksiä niin itään kuin länteenkin. Myös rautatieasemille on kätevät yhteydet bussilinjoilla; bussilinjat 23 ja 63 Ilmalan rautatieasemalle, linjat 66 ja 67 Käpylän asemalle, linjat 553 Pukinmäen ja Malmin asemille sekä linjat 53 Oulunkylän ja Pitäjänmäen asemille. Raide - Jokeri kulkee myös Maunulan läpi.
- Paikallistiedot
- Maunulan alueen suurin vetonaula on sen välitön läheisyys Keskuspuistoon ja Pirkkolan liikuntapuistoon. Tämä tarjoaa erinomaiset ulkoilu- ja liikuntamahdollisuudet ympäri vuoden. Paloheinän ulkoilualueet ovat myös helposti saavutettavissa. Maunulasta löytyy 1950-luvun viehättäviä, rapattuja kerrostaloja sekä pientaloja, kuten rivitaloja ja omakotitaloja. Rivitaloalueita pidetään erityisen idyllisinä. Palvelut ja yhteisöllisyys: Alueella on hyvät peruspalvelut, kuten kauppoja (esim. S-market), terveyskeskus, kirjasto ja kouluja, mukaan lukien Maunulan lukio, joka tunnetaan "matikkalukiona". Moderni Maunula-talo toimii alueen monitoimikeskuksena, joka edistää paikallista yhteisöllisyyttä ja tarjoaa monipuolista ohjelmaa. Liikenneyhteydet: Julkiset liikenneyhteydet ovat hyvät, ja Helsinkiin pääsee nopeasti niin busseilla, autolla kuin pyörälläkin. Myös lentokentälle on suhteellisen nopea yhteys.
- Palvelut
- Maunulassa on ruokakauppa, posti, kirjasto ja ruokapaikkoja runsaasti sekä terveyskeskus, apteekki, hammaslääkäri ja myös sairaala.
- Koulut
- Maunulan ala-aste ja yhteiskoulu ja Helsingin matematiikkalukio myös lähellä.
- Lisätietoja huoneiston autopaikasta
- Autopaikat jonotuksen mukaan.
- Autotallit
- 34
- Piha-autopaikkoja
- 14 kpl
- Taloyhtiöllä sauna
- Kyllä
- Kaavatilanne
- Asemakaava
- Lisätiedot kaavoituksesta
- Helsingin kaupunki rakennusvalvonta, kartta.hel.fi, Puh.09 310 1691 Suojelukohde: AK/s Asuinkerrostalojen korttelialue, joka on rakennustaiteellisesti ja kulttuurihistoriallisesti arvokas alue.
- Kuntotutkimus tehty
- 05.08.2020
- Asbestikartoitus
- Ei
- Taloyhtiön kiinnitysten päivämäärä
- Isännöitsijäntodistuksen päivämäärän mukainen
Tehdyt remontit
Peruskorjauksia:
-Männikkötie 10:n ja Töyrytie 6:n katot uusittu 1985-1991
-Töyrytie 8:n ja Vesakkotie 1-7:n katot uusittu 1993
-Kaukolämpökalusteet uusittu 1995
-Patteriventtiilit 1996-1997
-Kellarin vesijohdot ja viemärit sekä tonttijohdot uusittu 2000
-Putkisaneeraus 2002-2004
-Julkisivujen ja parvekkeiden kuntotutkimus 2004
-Julkisivu- ja parvekesaneeraus 2006-2007
-Porraskäytävien maalauskorjaus 2007-2008
-Jätekatokset ja Vesakkotie 5 alipainetuulettimien asennus2008
-Männikkötie 10 kohdalla sokkelin vedeneristystyö 2010
-Kaukolämmön alajakokeskuksen uusiminen 2011
-Ilmanvaihtohormien nuohoustyö 2013
-Patteriventtiilien uusimistyö 2014
-Kahden löylyhuoneen saneeraus 2014
-Pihavalaistuksen parantaminen 2007 ja 2014
-Pihasaneeraushanke 2015
-Pihan maisemointihanke 2016
-Liikesiiven vesikatteen uusimistyö 2016
-Vedonparantajien asentaminen Vesakkotie 3 taloon 2016
-Männikkötien ja Töyrytien saunanperuskorjaus 2018
-Yhtiön kerhohuoneen saneeraus 2019
-Vedonparantajien asentaminen loppuihin rakennuksiin 2020
-Smartpost – pakettiautomaatin hankkiminen yhtiöön 2020
-Yhtiön omistaman liiketilan (ex NL Aquan tila) saneeraus 2020
- Kiinteistön kuntoarvion teettäminen 2020
-Autotallien ovien kunnostustyöhanke 2021
-Kerhohuoneen lattiapinnoitteen uusimistyöhanke 2021
-Tiilikatojen puhdistus- ja pinnoitustyö kaikissa taloissa 2022
-Maalämpöjärjestelmän hankeselvitys 2022
-Sähkösaneerauksen hankesuunnittelutyö 2022-2023
-Ikkunoiden kunnostushankkeen hankesuunnittelutyö 2023
-Lämpimän käyttöveden kierron korjaussuunnittelua/tot.2023
-Sähkösaneeraushankkeen suunnittelutyön kilpailutus 2024
Tulevat remontit
Kunnossapitotarveselvitys 2025 - 2029.
Kellaritason ikkunakarmien maalaus ja huoneistoikkunoiden ja parvekeovien huoltomaalaus.
Pohjaviemärien kuvaus ja huuhtelu.
Lippojen bitumikatteiden uusinta
Sähköremontin suunnittelu
Ilmanvaihtokanavien nuohous
Sähköremontti
Pihasaneerauslaina päättyy
Ulko-ovet, julkisivujen puuosat
Pyykkituvan kunnostus
Julkisivun, parvekkeiden
hormien kuntotutkimus,
asuntojen märkätilojen tutkimus
Parvekkeiden huoltomaalaus
Saunat- laina päättyy
Kuntotutkimuksen päivitys
