Sykelenkki 2 A
90670, Kivikkokangas, Oulu
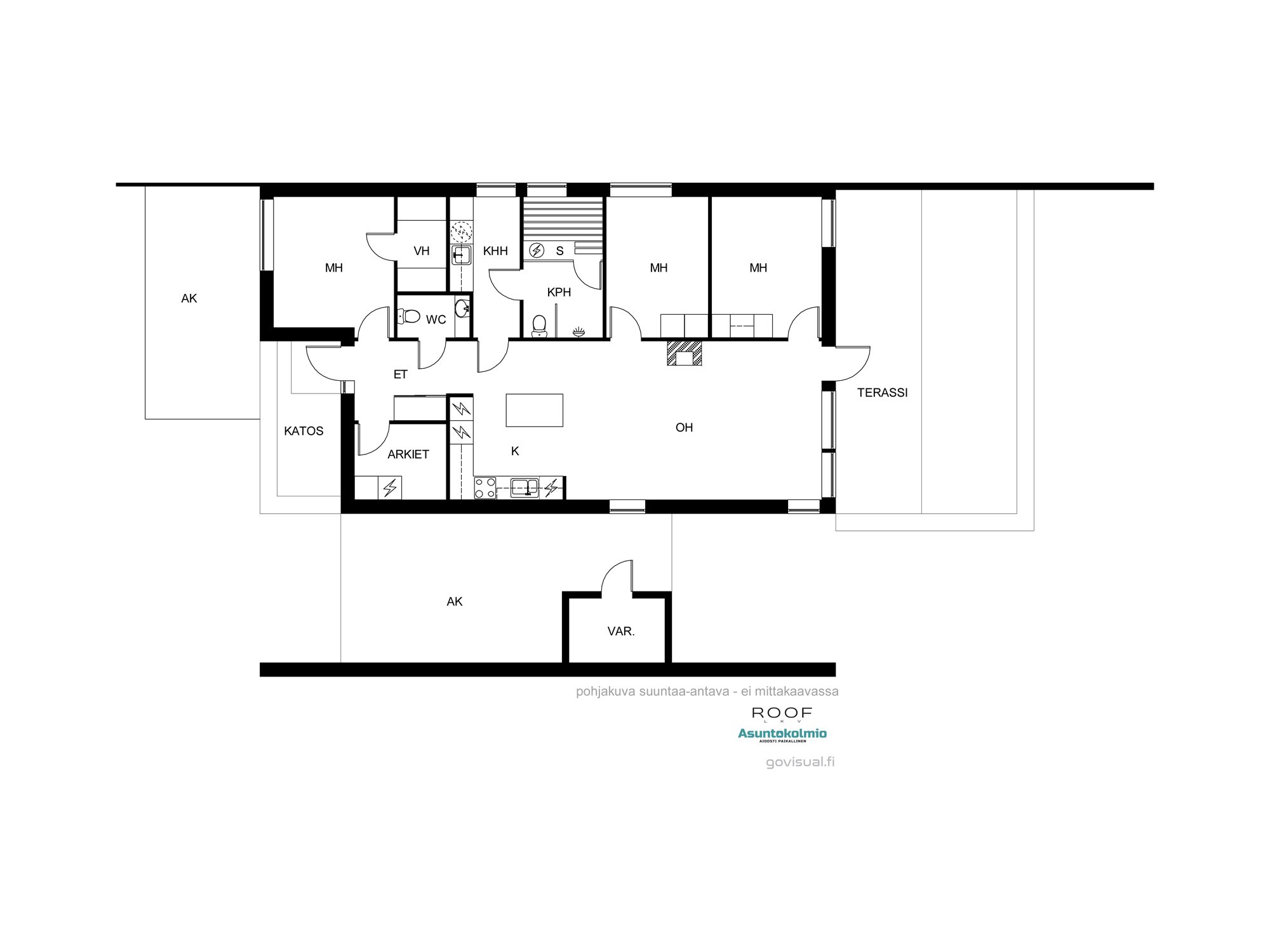
4h,k,kph,s,khh,wc,vh,arkiet,ak,ap,var
318 000 € (3 228,43 € / m²)
98,5 m²

Tätä asuntoa myy Karri Rytilahti, Myyntipäällikkö LKV, BBA
Roof Oulu | Asuntokolmio Oy

Sijainti
Asuntoesittely
Arvostetun ja laadustaan tunnetun Rakennusliike Puroilan rakennuttama iso, yksitasoinen 98,5m2 erillistalokoti käytännössä yhdeltä koko Uuden Hiukkavaaran parhaalta sijainnilta metsän reunasta!
Tällaisella takapihan sijainnilla varustettuja vastaavia erillistalokoteja ei koko Hiukkavaarassa montaa ole. Puuaidoin rajattu parhaan ilmansuunnan suuntainen takapiha on niin suojainen, ettei sinne näe käytännössä mistään.
Puroilan toteuttamille kodeille ominaisesti asunnossa on erittäin toimiva pohjaratkaisu, kaksi autopaikkaa suoraan asunnon edessä joista toinen katoksessa sekä poikkeuksellisen hyvässä kunnossa olevat ajattoman kauniit materiaali- sekä kalustevalinnat. Kaikki kodin kiintokalusteet ovat laadukasta Puustellia ja ylipäätään kotiin on tehty rakennusvaiheessa reilusti tasoa parantavia muutostöitä ja esimerkiksi kuivien tilojen lattiat ovat joko laattaa tai vaaleaa saarniparkettia. Laadukkaasta keittiöstä saarekkeineen löytyy reilusti niin lasku- kuin kaappitilaakin, ruokapöydälle oma selkeä paikkansa ja olohuonekin on helppo kalustaa. Kiinteiden kalusteiden, erillisen kodinhoitohuoneen, käytännöllisen arkieteisen ja vaatehuoneen ansiosta säilytystilaakin löytyy reilusti.
Asunto on tekniikaltaan täydellisen moderni. Koko huoneisto lämpenee kaukolämmöllä toteutetulla vesikiertoisella lattialämmityksellä ja on luonnollisesti varustettu koneellisella tulo/poisto ilmanvaihdolla. Asunnosta löytyy viilentävä ilmalämpöpumppu kesähelteille sekä olohuoneessa asuntotyypille harvinainen varaava takka talvipakkasille tunnelmaa luomaan. Yhtiössä on laadittu edellytykset sähköautojen latausaseman asentamiseksi, joten sekin tarvittaessa onnistuu. Yhtiöllä ei ole lainaa, joten se on täysin velaton.
Sijainniltaan Sykelenkki on loistava. Metsän reunaan, esimerkiksi hiihtoladulle, pääset käytännössä kotiovelta. Kivikkokankaalta pääset hetkessä Vaalantielle tai Raitotielle, joista on lyhyt matka Poikkimaantien sillalle ja sitä kautta hyvät kulkuyhteydet joka suuntaan. Esimerkiksi keskustaan ajat autolla alle vartissa, ja joukkoliikenneyhteydet ovat erinomaiset. Hiukkavaaratalosta löytyy mm. koulu, kirjasto sekä päiväkoti, ja matkaa sinne on vain reilu pari kilometriä. Hiukkavaaran keskuksesta löytyy myös urheilukenttä, padel-halli ja kuntosali. Myös päiväkoteja on parin kilometrin säteellä useita. Uuden Hiukkavaaran alue on nopeasti kasvava, ja palveluiden tarjonta alueella lisääntyy lähivuosina huomattavasti muun muassa juuri avatun K-Supermarketin sekä vuonna 2026 avattavan S-Marketin ansiosta. Kaupan yhteydestä löytyy myös apteekki ja Kotipizza.
Tätä upeaa kotia esitellään ensimmäisen kerran yksityisesittelyin sunnuntaina 19.10.
Ota rohkeasti yhteyttä, ja varaa oma esittelyaikasi!
Esittelyt ja lisätiedot:
Karri Rytilahti, Myyntipäällikkö LKV
p. 040 138 8311
[email protected]
Kaksi vahvaa yhdistyvät! Asuntokolmio on nyt osa Roof LKV:tä. Samat tutut välittäjät, nyt valtakunnallinen verkosto ja entistäkin tehokkaampi myyntikonsepti! Lue lisää https://www.asuntokolmio.fi/blogijuttu/asuntokolmio-on-nyt-osa-roofia/
Pohjakuva

Perustiedot
- Sijainti
- Sykelenkki 2 A, 90670, Kivikkokangas, Oulu
- Omistusmuoto
- Omistusasunto
- Huoneluku
- 4
- Asuinpinta-ala
- 98,5 m²
- Kokonaispinta-ala
- 98,5 m²
- Pinta-alan peruste
- Yhtiöjärjestyksen mukainen, Isännöitsijäntodistuksen mukainen
- Kohteen tyyppi
- Erillistalo
- Kerros
- 1 / 1
- Rakennusvuosi
- 2017
- Käyttöönottovuosi
- 2017
- Kohde myydään vuokrattuna
- Ei
- Vapautuminen
- Sopimuksen mukaan
Hinta ja kustannukset
Tilat ja materiaalit
- Keittiön kuvaus
- Puustellin kalusteet. Kaikki keittiön kaapinovet uusittu 10/2025.
- Keittiön lattiat
- Saarniparketti
- Keittiön seinät
- Maali ja välitilalaatoitus
- Keittiön varusteet
- Jääkaappi (integroitu), erillinen pakastin (integroitu), erillisuuni, liesi, liesituuletin, mikroaaltouuni (integroitu), astianpesukone (integroitu), ja keittiösaareke
- Liesi
- Induktioliesi
- Kylpyhuoneen seinät
- Kaakeli
- Kylpyhuoneen lattiat
- Laatta
- Kylpyhuoneen varusteet
- WC-istuin, suihkuseinä, ja suihku (sadesuihku)
- WC Lukumäärä
- 1
- WC:n lattiat
- Laatta
- WC:n seinät
- Maali ja kaakeli
- Makuuhuoneiden lukumäärä
- 3
- Makuuhuoneiden seinät
- Maali
- Makuuhuoneiden lattiat
- Saarniparketti
- Olohuoneen seinät
- Maali
- Olohuoneen lattiat
- Saarniparketti
- Kodinhoitohuoneen varusteet
- Pesukoneliitäntä, tila pesutornille, pesuallas, ja lattiakaivo
- Kodinhoitohuoneen seinät
- Maali ja välitilalaatoitus
- Kodinhoitohuoneen lattiat
- Laatta
- Säilytystilojen kuvaus
- Ulkovarasto (kiinteät säilytyjärjestelmät kuuluvat kauppaan). Vaatehuone (kiinteät säilytysjärjestelmät kuuluvat kauppaan). Kiinteät kaapistot.
- Sauna
- Kyllä
- Kiuas
- Sähkökiuas
- Takka
- Varaava takka
Lisätiedot
- Asunnon kunto
- Hyvä
- Terassi
- Kyllä
- Lisätietoja terassista
- Terassilla markiisi
- Muut tilat
- Eteisessä laattalattia ja liukuovikaapistot. Arkieteisessä laattalattia ja lattiakaivo (kiinteät säilytysjärjestelmät kuuluvat kauppaan).
- Muuta kauppaan kuuluvaa
- Niissä ikkunoissa, missä ne ovat: sälekaihtimet, verhokiskot, rullaverhot (pimentävät). Tavanomainen tarpeisto.
- Kauppaan ei kuulu
- Irtaimisto.
Taloyhtiö ja kiinteistö
- Taloyhtiön nimi
- Asunto Oy Oulun Sykelenkki
- Isännöitsijätoimisto
- Oiva Isännöinti Oulu Oy
- Isännöitsijän nimi
- Marja Iinatti
- Isännöitsijän sähköposti
- [email protected]
- Isännöitsijän puhelin
- 0107556336
- Tontin pinta-ala
- 8 532 m²
- Tontin omistus
- Vuokra
- Maanvuokraaja
- Oulun kaupunki
- Tontin tiedot
- Tontin vuokra sisältyy hoitovastikkeeseen
- Tontin vuosivuokra
- 16 300 €
- Vuokra-aika päättyy
- 01.01.2076
- Rakennusmateriaali
- Puu
- Lämmitysjärjestelmä
- vesikiertoinen lattialämmitys Kaukolämpö
- Ilmanvaihto
- Ilmanvaihtokone
- Kattotyyppi
- Pulpettikatto
- Katemateriaali
- Huopa
- Lisätietoja kiinteistönhoidosta
- Huoltoyhtiö
- Lunastusoikeus yhtiöllä
- Ei
- Lunastusoikeus osakkaille
- Ei
- Kohteesta on energiatodistus
- Kyllä
- Energialuokka
- C2013
- Energiatodistuksen voimassaolo
- 29.8.2027
- Taloyhtiöön kuuluu
- Yhtiön välittömään hallintaan jäävät jätekatos, tekninen tila sekä väestönsuojarakennus. Väestönsuojaa voidaan käyttää lisävarastotilana yhtiössä sovittavalla tavalla.
- Lisätietoja liikenneyhteyksistä
- Erinomaiset. Linjat 5, 11. Keskustaan bussilla alle puolessa tunnissa.
- Palvelut
- K-Supermarket Hiukkavaara, Apteekki & Kotipizza Hiukkavaara noin 2,4km. K-Supermarketin taakse valmistuu S-Market vuoden 2026 aikana. K-Supermarket Knuutilankangas noin 3,4km. Citymarket Rusko noin 6km.
- Koulut
- Hiukkavaaran koulu (monitoimitalo) noin 2,3km (vuosiluokat 1-9)
- Lisätietoja huoneiston autopaikasta
- Huoneistolle kuuluu asunnon yhteydessä sijaitseva autokatospaikka sekä toinen kattamaton autopaikka. 2022 yhtiökokouksessa on päätetty, että voi asentaa latausaseman osakkaan muutostyönä (osakkaan tulee huolehtia, että latausaseman tehoa pystyy rajoittamaan tarvittaessa).
- Taloyhtiön autopaikat
- Huoneistoihin kuuluu asunnon yhteydessä sijaitseva autokatospaikka sekä toinen kattamaton autopaikka.
- Kaavatilanne
- Asemakaava
- Lisätiedot kaavoituksesta
- [email protected]
Tehdyt remontit
2024: IV-kanavien nuohous.
Tulevat remontit
Huoltokirjan mukaiset toimenpiteet. IV-suodattimien vaihto 2x/vuosi. 2027: Huoltomaalauksia. 2026: 10v-tarkastus.