Sorsantie 65
65300, Kotiranta, Vaasa
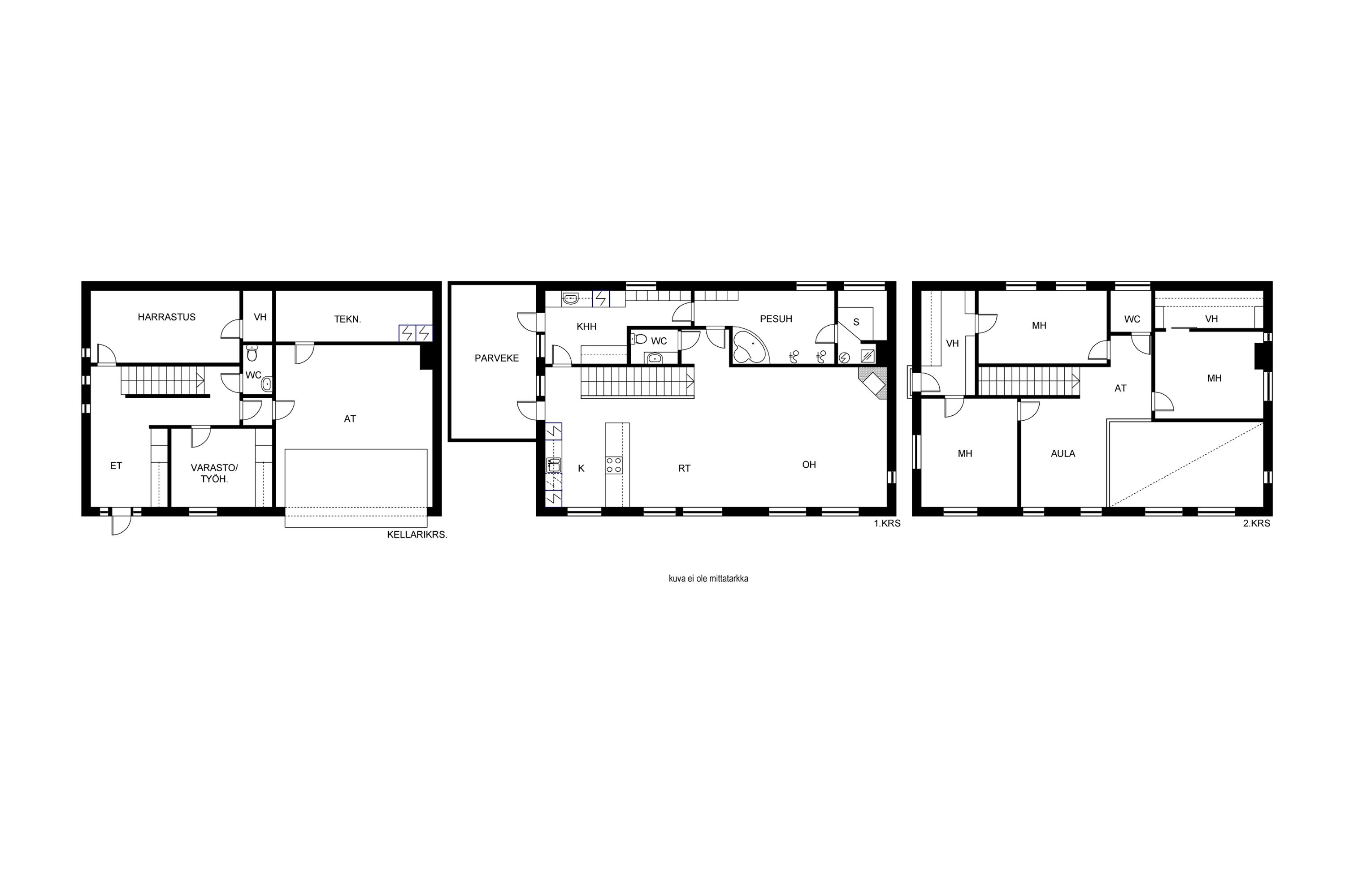
5h+k+s+khh+aula+eteinen+at+varasto+2x vaatehuone+3x wc
590 000 €
210,6 m²

Tätä asuntoa myy Jaana Högfors
Hima LKV

Sijainti
Asuntoesittely
Upea koti odottaa uusia asukkaita rauhallisella Kotirannan alueella Vaasassa. Tämä tilava ja valoisa kivitalo tarjoaa erinomaiset puitteet perhe-elämälle. Kolmikerroksinen talo on rakennettu vuonna 2013, ja se sijaitsee omalla 1080 m² tontilla. Asuinpinta-alaa on reilut 210 m², mikä takaa tilaa ja mukavuutta.
Talon sydän on avara olohuone, jossa on lämpöä varaava takka luomassa tunnelmaa. Keittiö on varusteltu nykyaikaisilla laitteilla, kuten erillisellä jääkaapilla, pakastimella ja kaasuliedellä. Keittiösaareke tarjoaa lisää työskentelytilaa ja tekee ruoanlaitosta nautinnon.
Makuuhuoneita on neljä, ja talossa on kolme wc:tä, mikä helpottaa arkea suuremmassakin perheessä. Kylpyhuoneista löytyy kaksi suihkua sekä valmius porealtaalle tai kylpyammeelle. Saunassa on varaus sähkökiukaalle, mutta puukiuas tuo perinteistä saunatunnelmaa.
Käytännöllisyyttä lisäävät kodinhoitohuone omalla uloskäynnillä sekä runsaasti säilytystilaa, kuten vaatehuoneet ja autotalli. Talon lämmitys hoituu maalämmöllä, joka on päivitetty vuonna 2024, ja koneellinen ilmanvaihto pitää sisäilman raikkaana.
Sijainti on erinomainen: rauhallinen asuinalue, mutta hyvien kulkuyhteyksien päässä. Läheltä löytyvät niin päiväkodit, koulut kuin kaupatkin. Tartu tilaisuuteen ja tee tästä talosta unelmiesi koti!
Ett fantastiskt hem väntar på nya invånare i det lugna bostadsområdet Kotiranta i Vasa. Detta rymliga och ljusa stenhus erbjuder utmärkta förutsättningar för familjeliv. Det trevåningshuset är byggt år 2013 och ligger på en egen tomt om 1 080 m². Boytan är drygt 210 m², vilket garanterar gott om utrymme och hög boendekomfort.
Husets hjärta är det rymliga vardagsrummet med en värmelagrande eldstad som skapar en trivsam atmosfär. Köket är utrustat med moderna vitvaror såsom separat kylskåp, frys och gasspis. Köksön ger extra arbetsyta och gör matlagningen till ett nöje.
Huset har fyra sovrum och tre wc, vilket underlättar vardagen även för en större familj. Badrummen är utrustade med två duschar samt förberedelse för bubbelbadkar eller badkar. I bastun finns beredskap för elaggregat, men en vedeldad bastuugn ger en traditionell bastustämning.
Praktiska lösningar inkluderar ett grovkök med egen utgång samt gott om förvaringsutrymmen såsom klädkammare och garage. Uppvärmningen sker med jordvärme, som uppdaterades år 2024, och den mekaniska ventilationen säkerställer ett friskt inomhusklimat.
Läget är utmärkt: ett lugnt bostadsområde med goda kommunikationer. I närheten finns daghem, skolor och affärer. Ta chansen och gör detta hus till ditt drömhem!
Pohjakuva

Perustiedot
- Sijainti
- Sorsantie 65, 65300, Kotiranta, Vaasa
- Huoneluku
- 5
- Asuinpinta-ala
- 210,6 m²
- Muu pinta-ala
- 122 m²
- Kokonaispinta-ala
- 332,6 m²
- Pinta-alan peruste
- Pinta-ala ei ole tarkistusmitattu ja todellinen pinta-ala voi olla suurempi tai pienempi, kuin ilmoitettu
- Lisätiedot pinta-alasta
- autotalli 122
- Kohteen tyyppi
- Omakotitalo
- Kerros
- 3
- Rakennusvuosi
- 2013
- Käyttöönottovuosi
- 2013
- Kohde myydään vuokrattuna
- Ei
- Vapautuminen
- Sopimuksen mukaan
Tilat ja materiaalit
- Keittiön lattiat
- Kivi ja graniitti
- Keittiön seinät
- Maali
- Keittiön varusteet
- Jääkaappi, erillinen pakastin, erillisuuni (mikro, grilli), astianpesukone, ja keittiösaareke
- Liesi
- Kaasuliesi ja induktioliesi
- Kylpyhuoneen seinät
- marmori
- Kylpyhuoneen lattiat
- graniitti
- Kylpyhuoneen varusteet
- Suihku (2kpl, valmius porealtaalle / kylpyammeelle) ja lattialämmitys
- WC Lukumäärä
- 3
- WC:n lattiat
- graniitti
- WC:n seinät
- marmori
- Makuuhuoneiden lukumäärä
- 4
- Makuuhuoneiden seinät
- Maali
- Makuuhuoneiden lattiat
- graniitti
- Olohuoneen seinät
- Maali
- Olohuoneen lattiat
- graniitti
- Kodinhoitohuoneen varusteet
- Pesukone, pesukoneliitäntä, lattialämmitys, pesuallas, kurapiste, lattiakaivo, silityspöytä/taso, pyykkikaapit, pöytätaso, ja tila pesutornille
- Kodinhoitohuoneen seinät
- marmori
- Kodinhoitohuoneen lattiat
- graniitti
- Kohteen säilytystilat
- Vaatehuone, kaapistot ja seinäkaapit
- Sauna
- Kyllä
- Kiuas
- Puukiuas
- Saunan kuvaus
- sähkökiukaalle varaus
- Takka
- Varaava takka
Lisätiedot
- Asunnon kunto
- Erinomainen
- Lisätietoja kunnosta
- Taloon on suunniteltu iso parveke/terassi olohuone/keittiö kerrokseen, jota ei ole tehty ja näin ollen lopputarkastus on myös vielä tekemättä.
- Parveke
- Ulostyönnetty parveke
- Parvekkeen ilmansuunta
- Länsi
Taloyhtiö ja kiinteistö
- Tontin pinta-ala
- 1 080 m²
- Tontin omistus
- Oma
- Tontin tyyppi
- Rinnetontti
- Tontin myyntityyppi
- Koko tontti
- Lisätiedot rakennusmateriaaleista
- Ontelolaatta välipohjat ja yläpohja
- Rakennusmateriaali
- Betoni ja valubetoniharkko
- Lämmitysjärjestelmä
- Maalämpö varaava takka
- Ilmanvaihto
- Koneellinen ilmanvaihto
- Vesijohto
- Kunnallisvesi
- Viemäröinti
- Kunnallinen viemäriverkosto
- Kattotyyppi
- Harjakatto
- Katemateriaali
- Pelti
- Kohteesta on energiatodistus
- Ei lain edellyttämää energiatodistusta
- Tie perille
- Kyllä
- Kaavatilanne
- Asemakaava
- Asbestikartoitus
- Ei
Tehdyt remontit
Maalampöpumppu vaihdettu 2024 tammikuu
