Saramäentie 34
20300, Raunistula, Turku
4h, k, wc, kph, s, vh, v, tek.tila, at
225 000 €
99,5 m²

Tätä asuntoa myy Jouni Paasio, Toimitusjohtaja
Kiinteistönvälitys Näytönpaikka Oy

Sijainti
Asuntoesittely
Tervetuloa tutustumaan omakotitaloon Turun arvostetulla Raunistulan alueella! Vuonna 1972 valmistunut koti omalla tontilla tarjoaa monipuoliset puitteet perhe-elämälle.
Sijainti, sijainti sijainti. Raunistula tunnetaan keskeisestä sijainnistaan, täältä on erinomaiset liikenneyhteydet keskustaan ja muualle Turkuun. Lähikaupat, koulut ja päiväkodit löytyvät kävelyetäisyydeltä, ja alueen ulkoilumaastot sekä liikuntamahdollisuudet houkuttelevat aktiiviseen arkeen.
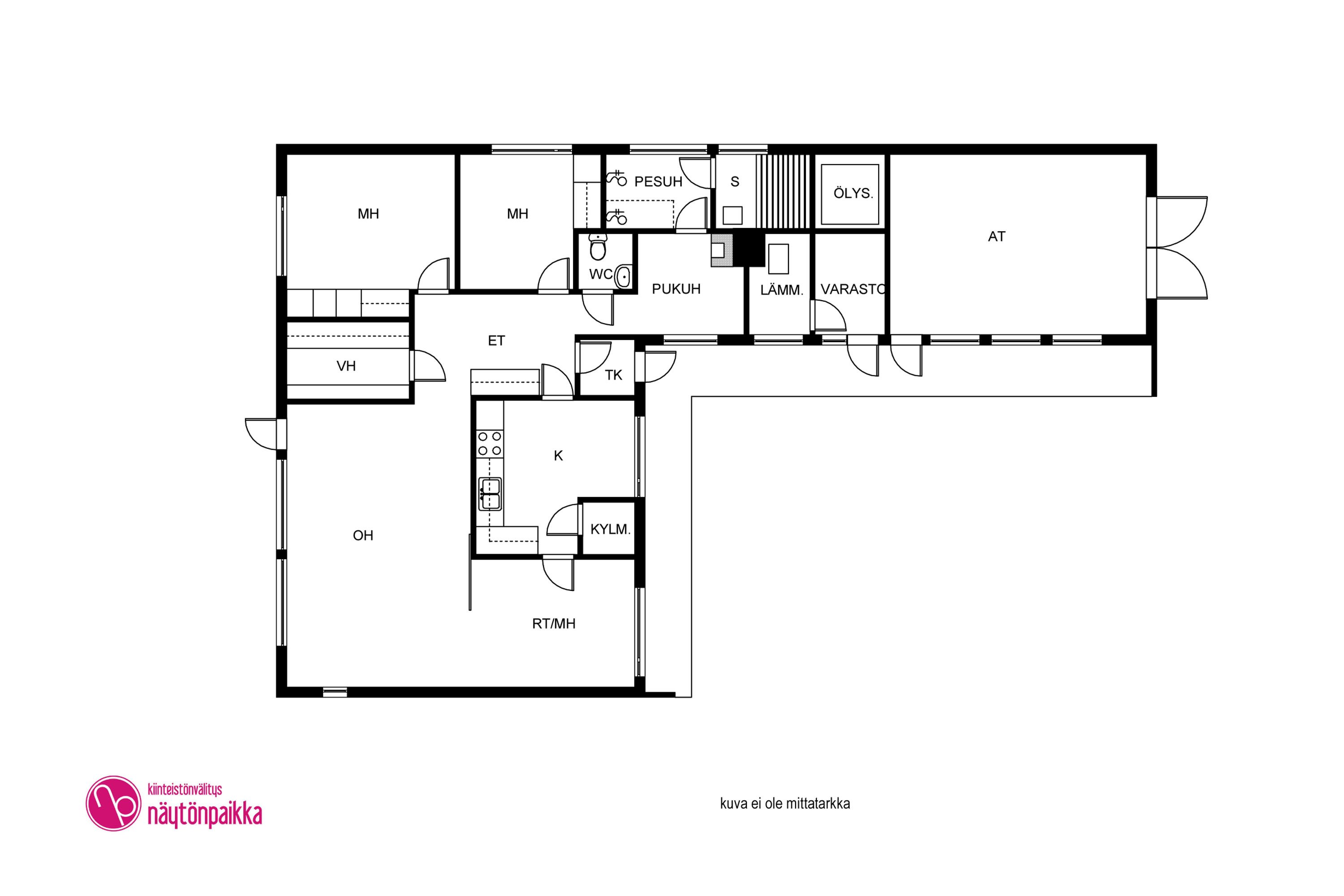
Pohjaratkaisu tarjoaa joustavuutta arjen tarpeisiin ja mahdollisuuden muokata tiloja perheen elämäntilanteen mukaan. Kodin yhdessä tasossa sijaitsevat tilat muodostuvat kolmesta makuuhuoneesta, takkahuoneesta, olohuoneesta, pukuhuoneesta, kylpyhuoneesta ja saunasta, erillisestä wc:stä, vaatehuoneesta, varastosta ja autotallista. Autotallissa lattialämmityksen lisäksi patterilämmitys.
Tämä koti on erinomainen valinta perheelle, joka arvostaa tilaa, toimivuutta ja sijaintia lähellä kaupungin palveluita mutta kuitenkin rauhallisessa ympäristössä.
Pohjakuva

Perustiedot
- Sijainti
- Saramäentie 34, 20300, Raunistula, Turku
- Huoneluku
- 4
- Asuinpinta-ala
- 99,5 m²
- Muu pinta-ala
- 53,5 m²
- Kokonaispinta-ala
- 153 m²
- Pinta-alan peruste
- Pinta-ala ei ole tarkistusmitattu ja todellinen pinta-ala voi olla suurempi tai pienempi, kuin ilmoitettu
- Lisätiedot pinta-alasta
- Ei tarkistusmitattu. Pinta-alat saattavat tämän ikäisissä kohteissa (rekisteröity ennen 01.01.1992) poiketa olennaisestikin asuinrakennusten nykyisten mittaustapojen ja standardien (SFS 5139) mukaan laskettavasta asuintilojen pinta-alasta. Pinta-ala voi siis olla edellä mainittua pienempi tai suurempi.
- Kohteen tyyppi
- Omakotitalo
- Kerros
- 1
- Rakennusvuosi
- 1972
- Käyttöönottovuosi
- 1972
- Kohde myydään vuokrattuna
- Ei
- Vapautuminen
- Sopimuksen mukaan
Tilat ja materiaalit
- Keittiön lattiat
- Korkki
- Keittiön varusteet
- Jääkaappipakastin, liesituuletin, liesi, astianpesukone, ja kylmiö
- Liesi
- Sähköhella
- Kylpyhuoneen seinät
- Kaakeli
- Kylpyhuoneen lattiat
- Laatta
- Kylpyhuoneen varusteet
- Pesukoneliitäntä, lattialämmitys, pesuallas, ja peili
- Makuuhuoneiden lattiat
- Parketti ja muovimatto
- Olohuoneen lattiat
- Parketti
- Kohteen säilytystilat
- Vaatehuone ja varasto
- Sauna
- Kyllä
- Kiuas
- Puukiuas ja sähkökiuas
Lisätiedot
- Asunnon kunto
- Hyvä
Taloyhtiö ja kiinteistö
- Tontin pinta-ala
- 621 m²
- Tontin omistus
- Oma
- Tontin tyyppi
- Tasamaatontti
- Tontin myyntityyppi
- Koko tontti
- Rakennusmateriaali
- Puu ja tiili
- Lämmitysjärjestelmä
- Öljy
- Ilmanvaihto
- Painovoimainen ilmanvaihto
- Vesijohto
- Kunnallisvesi
- Viemäröinti
- Kunnallinen viemäriverkosto
- Kattotyyppi
- Loiva harjakatto
- Katemateriaali
- Huopa
- Lisätietoa rakennusoikeudesta
- Rakennusoikeus 160m2+30m2
- Kohteesta on energiatodistus
- Kyllä
- Energialuokka
- F2018
- Tie perille
- Kyllä
- Kaavatilanne
- Asemakaava
- Asbestikartoitus
- Ei
Tehdyt remontit
2023: Viemäreiden kuvaus, viemärit pvc-muovia 2021: Huopakatto 2018: Ulko-ovet 2010: Kylpyhuone, sauna, wc
