Repolantie 12
01450, Vierumäki, Vantaa
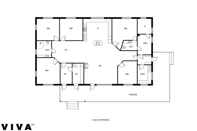
6h, k, khh, sauna, 2x kph, wc, aulatila, pukuhuone, 2x eteinen, tekninen tila + kahden auton autotalli
319 000 €
240 m²

Tätä asuntoa myy Pekka Kempas, Myyntipäällikkö, uudiskohteet YKV, LKV, LVV, KiAT
Uudenmaan Viva Oy

Sijainti
Asuntoesittely
Harvoin tarjolla yksitasoinen omakotitalo 240 m²/302 m² jossa kahden auton autotalli!
Tässä on mahdollisuus toteuttaa unelmiesi koti Vantaan Vierumäessä, rauhallisella ja halutulla asuinalueella.
Tämä tilava yksitasoinen 240 m²/302 m²:n omakotitalo ja kahden auton lämmin autotalli tarjoaa runsaasti tilaa suuremmallekin perheelle. Talo on valmistunut vuonna 2009, mutta rakentaminen on jäänyt kesken, ja kohteessa on ollut laaja vesivahinko. Tämä tarjoaa mahdollisuuden remontoida koti täysin oman maun mukaan ja nostaa sen arvoa merkittävästi.
Talon pohjaratkaisu on avara ja valoisa, ja olohuoneessa on takka.
Talon edustalla on tilava terassi, jossa paikka uima-altaalle. Tontti on oma 1 796 m² ja tarjoaa runsaasti oleskelutilaa.
Liikenneyhteydet ovat hyvät, ja lähistöltä löytyy bussipysäkki sekä sujuvat pyörätiet ja autoyhteydet.
Tämä on ainutlaatuinen tilaisuus sinulle, joka etsit projektia ja haluat rakentaa kodin omien unelmiesi mukaisesti. Tartu tilaisuuteen ja tee tästä talosta juuri sinun kotisi.
Pekka Kempas YKV, LKV
puh. 040 555 4178
[email protected]Pohjakuva

Perustiedot
- Sijainti
- Repolantie 12, 01450, Vierumäki, Vantaa
- Huoneluku
- 6
- Asuinpinta-ala
- 240 m²
- Kokonaispinta-ala
- 302 m²
- Pinta-alan peruste
- Pinta-ala ei ole tarkistusmitattu ja todellinen pinta-ala voi olla suurempi tai pienempi, kuin ilmoitettu
- Lisätiedot pinta-alasta
- Ei tarkistusmitattu. Pinta-ala voi siis olla edellä mainittua pienempi tai suurempi. Lupakuvat: Asuinrakennus: Tilavuus 926 m3 Kokonaisala264 m2 Kerrosala264 m2 Huoneistoala 240 m2 Autotalli: Huoneistoala: Tilavuus 237 m3 Kerrosala 72 m2 Huoneistoala 62 m2 22.09.2025 rakennus- ja huoneistorekisteriote: Asuinrakennus: Tilavuus 926 m3 Kerrosala264 m2 Kokonaisala264 m2 Huoneistoala240 m2 Talousrakennus: Tilavuus 237 m3 Kerrosala 72 m2 Kokonaisala 72 m2 12.06.2008 Rakennuslupa: Tilavuus 1163 m3 Kerrosala 336 m2 Kokonaisala 336 m2
- Kohteen tyyppi
- Omakotitalo
- Kerros
- 1
- Rakennusvuosi
- 2009
- Käyttöönottovuosi
- 2009
- Kohde myydään vuokrattuna
- Ei
- Vapautuminen
- Heti
Tilat ja materiaalit
- Keittiön kuvaus
- Kodinkoneiden ja sähkölasitteiden toimivuudesta ei ole tietoa. Osin keskeneräinen.
- Keittiön lattiat
- Kaakeli
- Keittiön seinät
- Maali
- Keittiön varusteet
- Erillinen pakastin, jääkaappi, mikroaaltouuni, uuni, liesi, ja liesituuletin
- Kylpyhuone
- Keskeneräiset.
- WC Lukumäärä
- 1
- Erillinen WC
- Keskeneräinen.
- WC:n lattiat
- Laatta
- WC:n seinät
- Kaakeli
- Makuuhuoneet
- Keskeneräiset tilat.
- Olohuone
- Olohuoneessa takka. Keskeneräinen tila.
- Kodinhoitohuoneen seinät
- Maali
- Kodinhoitohuoneen lattiat
- Laatta
- Kodinhoitohuone
- Keskeneräinen. Pesukoneliitäntä ja kaappi- ja työskentelytilaa. Vesipiste. Kodinkoneiden ja sähkölasitteiden toimivuudesta ei ole tietoa.
- Sauna
- Kyllä
- Saunan kuvaus
- Keskeneräinen.
- Takka
- Takka
Lisätiedot
- Asunnon kunto
- Välttävä
- Lisätietoja kunnosta
- Rakentamisen on jäänyt kesken ja kiinteistössä on ollut laaja vesivahinko. Osittainen käyttöönottokatselmus tehty.
- Terassi
- Kyllä
- Lisätietoja terassista
- Talon edessä terassi jossa myös keskeneräinen uima-allas.
- Muuta kauppaan kuuluvaa
- Omakotitalo ja autokatos.
Taloyhtiö ja kiinteistö
- Tontin pinta-ala
- 1 796 m²
- Tontin omistus
- Oma
- Tontin tyyppi
- Tasamaatontti
- Tontin myyntityyppi
- Koko tontti
- Tontin tiedot
- Kiinteistötunnus: 92-404-1-1033 tontti on 900 m2. Kiinteistötunnus: 92-404-1-1032 tontti on 896 m2.
- Käyttö/luovutusrajoitukset
- Kiinteistöt 92-404-1-1033 ja 92-404-1-1032 ovat tilana. Ostajan haettavaksi jää kiinteistön muodostaminen tontiksi.
- Lisätiedot rakennusmateriaaleista
- Puurunkoinen tiili vuoraus.
- Rakennusmateriaali
- Puu ja tiili
- Lämmitysjärjestelmä
- Sähkö Tyyppi: Suorasähkö
- Ilmanvaihto
- Koneellinen, LTO viilennys / jäähdytys (laitteiden kunnosta tai toimivuudesta ei ole tietoa)
- Vesijohto
- Kunnallisvesi
- Viemäröinti
- Kunnallinen viemäriverkosto
- Kattotyyppi
- Harjakatto
- Katemateriaali
- Tiili
- Rakennusoikeus
- 449
- Rakennusoikeus e-luku
- 0.25
- Kohteesta on energiatodistus
- Ei lain edellyttämää energiatodistusta
- Liikenneyhteydet
- Bussipysäkki lähellä, hyvä kulkuyhteys, hyvät pyöräilytiet ja sujuvat yhteydet omalla autolla
- Tie perille
- Kyllä
- Palvelut
- Lähellä
- Koulut
- Lähellä
- Kaavatilanne
- Asemakaava
- Kaavoitustiedot
- Asemakaava (ohjeellinen tonttijako) (092-Korso1). AO(o) Erillispientalojen korttelialue. Pientalon tontin rakennusoikeus on 25 prosenttia kerrosalaa tontin pintaalasta kuitenkin enintään 300 m2. Talousrakennuksen kerrosala saa olla enintään 60 m2, ja siitä saa lämmitettäviä tiloja, lukuun ottamatta auton säilytyspaikkaa, olla enintään 20 m2. Kaupallisia kasvihuoneita ei tontille saa rakentaa. Pientaloon saa sijoittaa ainoastaan yhden asuinhuoneiston, ellei kaavassa ole toisin määrätty. Jos tontin pinta-ala on suurempi kuin 1200 m2, saadaan kuitenkin pientaloon kaksi asuinhuoneistoa. Pientalon toisen kerroksen huoneistoala ei saa olla enempää kuin 50 prosenttia pääkerroksen huoneistoalasta.
- Rakennusvaihe
- Rakenteilla
- Asbestikartoitus
- Ei
- Muut rakennukset
- Autotalli
- Lisätietoa muista rakennuksista
- Keskeneräinen pihalla oleva uima-allas.
