Puistokatu 12
10900, Hanko
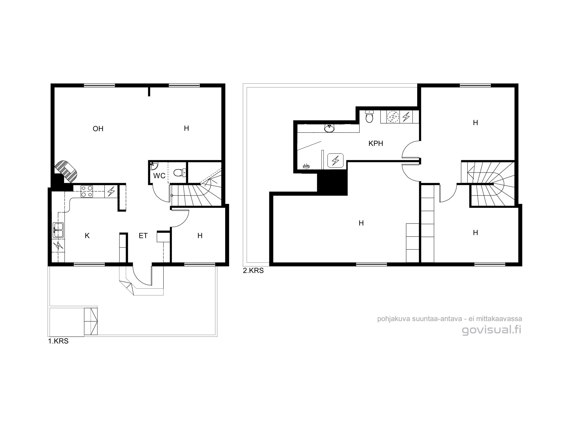
3h+k+wc+kph+3 vinttihuonetta+terassi
495 000 € (4 267,24 € / m²)
116 m²

Tätä asuntoa myy Nana Hyry, Unelmakauppias
YKV, LKV, LVV, FM
Kaupanvahvistaja
Hima & Huvila Oy

Sijainti
Asuntoesittely
Hurmaava kaksikerroksinen puutalohuoneisto Puistokadulla
Historian hurmaa, korkeita huoneita, ruutuikkunoita ja esiin jätettyjä hirsipalkkeja - olisiko tässä unelmiesi Hanko-koti? Tässä asunnossa on helppo astua ajassa sata vuotta taaksepäin ja kuvitella itsensä viettämään leppoisia kesäpäiviä Hangon kylpylävieraiden sekaan.
Koko taloyhtiö on remontoitu perusteellisesti noin 15 vuotta sitten, jolloin mm. uusittiin julkisivut, ikkunat, ovet, sähköt, pinnat, keittiöt ja kylpyhuoneet joka asuntoon. Nykyiset asukkaat ovat lisänneet tunnelmaa tarkkaan valituilla tapeteilla, joten sinun ei tarvitse kuin muuttaa sisään.
Alakerrassa on varsinaiset asuintilat: luonnonvalossa kylpevä tunnelmallinen olohuone ja ruokasali, kotoisa keittiö, erillinen wc ja pikku huone makuutilaksi tai vaikka työhuoneeksi. Yläkerrassa on kolme ullakkohuonetta vinokattojen alla - täällä nukkuu isompikin porukka! Yläkerrassa on myös huvilahenkeen sopiva kylpyhuone ja kodinhoitotila.
Asunnon edustalla on tilava terassi, jolle mahtuu hyvin niin ruokaryhmä kuin löhötuolitkin. Terassi jää taloyhtiön suojaisan sisäpihan puolelle, josta löytyy myös pihasauna. Pihalla riittää tilaa temmeltää ja nauttia vapaa-ajasta.
Talo on rakennettu vuonna 1890. Rakennuksen julkisivut on jäsennelty pilastereilla ja palkistoikkunoilla. Se edustaa 1800-luvun lopun asuinrakentamista ja on hieno osa Kylpyläpuiston puutalomiljöön katunäkymiä.
Sovi oma esittelysi ja tule ihastumaan!
Unelmakauppias Nana
Puh. 0400942052
[email protected]Pohjakuva

Perustiedot
- Sijainti
- Puistokatu 12, 10900, Hanko
- Omistusmuoto
- Omistusasunto
- Huoneluku
- 3
- Asuinpinta-ala
- 116 m²
- Kokonaispinta-ala
- 116 m²
- Pinta-alan peruste
- Yhtiöjärjestyksen mukainen, Isännöitsijäntodistuksen mukainen, (Pinta-ala ei ole tarkistusmitattu ja todellinen pinta-ala voi olla suurempi tai pienempi, kuin ilmoitettu)
- Lisätiedot pinta-alasta
- Asuinpinta-alaan on laskettu mukaan myös yläkerran vinttihuoneet sekä alakerran pikkuhuone. Nämä eivät ole virallisia asuinhuoneita, mutta niitä käytetään kuin asuintiloja. Lisäksi yläkerrassa on alle 160cm korkeaa tilaa, jota ei ole laskettu pinta-alaan mukaan. Täyskorkeiden tilojen pinta-alat: AK 59m²: oh+rt+k+wc+varasto/työtila+terassi YK 57m²: 3 vinttihuonetta+kph Virallisia asuinneliöitä huoneistossa on n. 62m². Pinta-aloja ei ole tarkistusmitattu.
- Kohteen tyyppi
- Puutalo-osake
- Kerros
- 1 / 2
- Rakennusvuosi
- 1890
- Käyttöönottovuosi
- 1890
- Kohde myydään vuokrattuna
- Ei
- Vapautuminen
- Sopimuksen mukaan
Hinta ja kustannukset
- Velaton hinta
- 495 000 €
- Myyntihinta
- 495 000 €
- Kokonaissähkön kulutustiedot
- 7600 kWh / vuosi
- Yhtiövastike
- Hoitovastike 290 € / kk, Yhtiövastike yhteensä 290 € / kk
- Neliöhinta
- 4 267,24 € / m²
- Lisätietoja maksusta
- Yhtiökokous on päättänyt teettää työsuunnitelman As Oy Hangon Siljan katon korjaamiseksi ja kuntokartoituksen As Oy Hangon Puistokatu 12:lle ja kattaa kustannukset (noin 6000 euroa) ylimääräisillä vastikkeilla. As Oy Hangon Puistokatu 12 ja As Oy Hangon Silja ovat päättäneet ostaa As Oy Hangon Viikingin omistaman 1/3 määräalan. Kokonaiskustannusarvio on enintään 55000 euroa ja nyt myytävän olevan huoneiston osuus tästä on 9075 euroa. Ostaja ottaa vastattavakseen tämän kustannuksen. Lisäksi As Oy Hangon Siljan tulevan kattoremontit kustannukset jakautuvat myös As Oy Hangon Puistokatu 12 osakkaille yhteisen sopimuksen mukaisesti. Alustava arvio on 40000 euroa, josta nyt myytävänä olevan huoneiston osuus on 6600 euroa. Päätöstä toteutuksesta ei ole vielä tehty. Ostaja ottaa vastattavakseen myös tämän kustannuksen.
Tilat ja materiaalit
- Keittiön kuvaus
- Tunnelmallisessa ja valoisassa keittiössä on korkea ruutuikkuna sisäpihalle päin. Valkoiset kaapistot sopivat hyvin vanhan talon henkeen. Varusteisiin kuuluu integroitu jääkaappi-pakastin (n. 3v vanha), integroitu astianpesukone (n. 3v vanha), keraaminen liesi, uuni ja liesituuletin (suodattimella). Työtasot puuta, välitila laattaa. Lattia parkettia, seinät maalattu.
- Kylpyhuone
- Yläkerran kylpyhuoneessa on ihanaa huvilatunnelmaa: vinokattoja, valkoista puupaneelia, esiin jätettyjä hirsipalkkeja ja puiset tasot pesualtaan alla ja kodinhoitopisteessä. Vanhat kalusteetkin istuvat tänne täydellisesti - tämän kylpyhuoneen voi todellakin sisustaa! Lattia laattaa, seinät maali/kaakeli. Suihkulle on oma syvennyksensä. Varusteisiin kuuluu wc-istuin, pk-liitäntä, suihku, suihkuseinä, pesuallas ja taso sekä työtaso. Sähköinen lattialämmitys.
- WC Lukumäärä
- 1
- Erillinen WC
- Alakerran erillisessä wc:ssä on wc-istuin, pesuallas, peilikaappi ja pyykinkuivausteline. Lattia laattaa, seinät maalattu. Sähköinen lattialämmitys.
- Makuuhuoneet
- Alakerran pieni sivuhuone toimii hyvin työhuoneena tai makuutilana. Lisäksi yläkerrassa on kaksi ihanaa ullakkohuonetta ja aulatila vinokattojen alla. Täällä komeat hirsipalkit saavat reilusti näkyä, ikkunasyvennykset ovat kuin taideteoksia ja valkoiset kattopaneelit heijastavat kauniisti luonnonvaloa ja tuovat lisää tilan tuntua. Huoneet ovat kaikki persoonallisia ja erilaisia. Lattiat parkettia, seinät tapetti/maali.
- Makuuhuoneiden lukumäärä
- 3
- Olohuone
- Upea olohuone ja viereinen ruokasali vievät ajatukset yli sadan vuoden taakse. Korkeat ruutuikkunat antavat valon tulvia sisälle ja leikkiä lattialla. Olohuoneen komistuksena on vanha kakluuni, jossa voi poltella kynttilöitä iltojen pimetessä (taloyhtiön kakluunit toistaiseksi pois käytöstä). Ruokasalin takaseinällä näyttävä huvilahenkinen tapetti. Lattia parkettia, seinät maali/tapaetti.
- Sauna
- Ei
Lisätiedot
- Asunnon kunto
- Hyvä
- Parveke
- Ei parveketta
- Terassi
- Kyllä
- Lisätietoja terassista
- Suojaisa terassi taloyhtiön sisäpihalle päin. Hyvin tilaa istuinryhmälle tai lököttelyyn.
- Piha
- Taloyhtiöillä on yhteinen suojaisa ja iso piha, jossa yhteiset pihakalusteet sekä tunnelmallinen pihasauna ja varasto. Pihaa kiertää kadun puolilta puuaita - vaaleanpunainen tietenkin!
- Hissi
- Ei
Taloyhtiö ja kiinteistö
- Taloyhtiön nimi
- Asunto Oy Hangon Puistokatu 12
- Isännöitsijätoimisto
- Omatoiminen
- Taloyhtiön lisätiedot
- - As Oy Hangon Puistokatu 12 ja As Oy Hangon Silja hallinnoidaan kokonaisuutena ja myös korjauskustannukset jaetaan molempien yhtiöiden kesken. Jatkossa on tarkoitus yhdistää taloyhtiöt yhdeksi. - Määräalan kaupan jälkeen on tarkoitus yhdistää määräalat yhdeksi tontiksi, mikä tuo tontille myös rakennusoikeutta.
- Tontin pinta-ala
- 2 148 m²
- Tontin omistus
- Oma
- Tontin tiedot
- Osa tontista on jaettu hallinnanjakosopimuksella As Oy Hangon Puistokatu 12:n, As Oy Hangon Siljan ja As Oy Hangon Viikingin kesken. As Oy Hangon Viikingin osuus tullaan lunastamaan.
- Rakennusmateriaali
- Hirsi
- Lämmitysjärjestelmä
- Sähkö Tyyppi: Sähköpatterit, kylpyhuoneessa ja wc:ssä sähköinen lattialämmitys Kustannukset: 7600 kWh / vuosi
- Ilmanvaihto
- Koneellinen ilmanvaihto lämmön talteenotolla
- Vesijohto
- Kunnallisvesi
- Viemäröinti
- Kunnallinen viemäriverkosto
- Kattotyyppi
- Harjakatto
- Katemateriaali
- Pelti
- Lisätietoja kiinteistönhoidosta
- Huoltoyhtiö
- Kiinteistönhoidon lisätiedot
- Kim Ehrstedt
- Taloyhtiössä on
- Urheiluvälinevarasto
- Lunastusoikeus yhtiöllä
- Ei
- Lunastusoikeus osakkaille
- Ei
- Kohteesta on energiatodistus
- Ei lain edellyttämää energiatodistusta
- Taloyhtiöön kuuluu
- Yhteinen piha-alue ja sauna-varastorakennus As Oy Hangon Siljan kanssa.
- Paikallistiedot
- As Oy Hangon Puistokatu 12 sijaitsee historiallisella Hangon Kylpyläpuiston alueella, jossa on useita hienoja puutalomiljöön katunäkymiä. Puistolampi ankkalampineen on lähes valloittanut viereisen korttelin ja sen takaa alkaa Casinon puisto suihkulähteineen ja hiekkarantoineen. Toisella puolella on uusi alikulkukäytävä, jota pitkin pääsee näppärästi kävellen tai pyörällä radan pohjoispuolen palveluihin sekä pohjoispuolen rannoille ja ulkoilumaastoihin.
- Palvelut
- Lähin uimaranta 500m, tenniskentät 500m, Itäsatama 900m, kävelykatu 400m, rautatieasema 250m.
- Lisätietoja taloyhtiön autonsäilytyspaikoista
- Asukkaat pysäköivät Tarhakadulle (maksuton pysäköinti).
- Taloyhtiöllä sauna
- Kyllä
- Asbestikartoitus
- Ei
- Lisätietoa asbestikartoituksesta
- Ei tietoa
Tehdyt remontit
Taloyhtiön mittava remontti 2009: ulkovuoraus uusittu, ovet ja ikkunat uusittu, sähköt uusittu, kaikki pinnat uusittu huoneistoissa, uudet kylpyhuoneet ja keittiöt, terassit rakennettu.
Talo maalattu ja korjattu vaihtoa tarvinneet osat 2021
Piha-aidat ja pihaa uudistettu 2025
Tulevat remontit
1. Korsmaninkadun puoleisen katon korjaustarpeen arviointi ja kattoremontti vuosien 2025 tai 2026 aikana (sis. kattotuolin kunnostus, lämpöeristyksen tarkistus, ilmanvaihdon parantaminen, mahdollinen aluskatteen asentaminen ja peltikatteen uusiminen, lumiesteiden asentaminen)
2. Puistokadun puoleisen katon korjaustarpeen arviointi ja mahdolliset korjaustoimenpiteet
3. Huoneiston I sisäkaton kunnostustarpeen arviointi (johtuen kattovuodosta)
4. Ilmastointikanavien huoltotarpeen arviointi ja mahdollinen puhdistus
5. Varmistetaan huoneistojen lämminvesivaraajien kunto
6. Yhtiön vastuulla olevien seinävaurioiden selvittäminen ja korjaaminen
7. Saunan kylpyhuoneen lämmityksen varmistaminen
8. Saunan vesivaraajan uusiminen tarpeen mukaan
9. Saunan hormin tarkistaminen ja mahdollinen kunnostaminen
10. Palovaroittimien tarkastaminen yhtiöiden toimesta
11. Asuinrakennuksen tuulettuvan alapohjan tuuletusluukkujen ritilöiden uusiminen
12. Kattorännien kunnon tarkistaminen
