Priikoolinnokka 64
37500, Hietaniemi, Lempäälä
Mökki, rantasauna, puuliiteri, grillikatos
349 000 €
50 m²

Tätä asuntoa myy Niko Korhonen, Asuntomyyjä, Osakas
Muutos LKV | Pirkanmaan Laatuvälitys Oy

Sijainti
Asuntoesittely
Nyt vapautumassa upealta paikalta, Pyhäjärven rannalta ympärivuotiseen käyttöön soveltuva vapaa-ajanviettopaikka.
Maisemat ovat silmiä hivelevät, tästä niemenkärjestä järvimaisemat avautuvat itään, etelään ja pohjoiseen! Sijainti on aivan mahtava, vain 5km Lempäälän keskustasta ja Tampereelle matkaa noin 30km! Päärakennuksessa avara oleskelutila, joka yhdistyy mukavasti keittiöön. Keittiössä kaikki nykyajan mukavuudet. Oleskelutilassa varaava takka, lisäksi lämmitykseen lattialämmitys. Yläkerrassa kaksi tilavaa makuuhuonetta. Mökissä sisäsauna, pesuhuone sekä sisä wc. Rannassa erillinen saunamökki, jossa majoittuu useampikin henkilö. Rantasauna on lähellä vesirajaa, josta on mukava pulahtaa laiturin kautta uimaan. Lapsille on tehty lisäksi oma loiva hiekkaranta!
Taloon vesi tulee omasta porakaivosta ja jätevedet on ohjattu omaan umpikaivoon sekä imeytyskenttään. Pihapiiri on suojainen ja helppohoitoinen, naapureita ei juuri näy. Kaikki arjen peruspalvelut ovat aivan vieressä!
Tämä on nähtävä paikan päällä, ole nopea, näitä paikkoja on harvoin tarjolla!
Lisätiedot ja esittelyt:
Niko Korhonen
Asuntomyyjä, osakas
044 3366 063
[email protected]
www.nikokorhonen.com
https://muutoslkv.fi/niko-korhonen
www.facebook.com/muutoslkvnikokorhonen
IG: @muutoslkvnikokorhonen
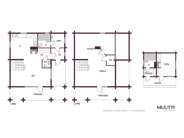
Pohjakuva

Perustiedot
- Sijainti
- Priikoolinnokka 64, 37500, Hietaniemi, Lempäälä
- Asuinpinta-ala
- 50 m²
- Muu pinta-ala
- 29 m²
- Kokonaispinta-ala
- 79 m²
- Lisätiedot pinta-alasta
- Pinta-alat perustuvat myyjältä saatuihin tietoihin ja rakennuspiirustuksista laskettuihin arvioihin. Pinta-aloja ei ole tarkistusmitattu, mitattaessa pinta-alat saattavat olla ilmoitettua suurempia tai pienempiä. Hinta ei ole pinta-alaperusteinen. Rakennuspiirustusten mukainen asuinrakennuksen kerrosala on 80 m². Saunarakennuksen kerrosala 20 m². Asuintilojen pinta-ala on laskettu rakennuspiirustuksista ja siihen on huomioitu kaikki asuinkäytössä olevat tilat, muihin tiloihin on laskettu parvi.
- Kohteen tyyppi
- Mökki tai huvila
- Kerros
- 2
- Rakennusvuosi
- 2000
- Lisätietoja rakennusvuodesta
- Lomarakennuksen ja saunarakennuksen rakennuslupapäätökset 1999. Lomarakennuksen muutoslupa matkailupalvelukäyttöön 2002. Luvat loppukatselmoitu 2004.
- Käyttöönottovuosi
- 2000
- Kohde myydään vuokrattuna
- Ei
- Vapautuminen
- Sopimuksen mukaan
Hinta ja kustannukset
- Velaton hinta
- 349 000 €
- Myyntihinta
- 349 000 €
- Sähköliittymä siirtyy
- Kyllä
- Neliöhinta
- 6 980 € / m²
- Lisätietoja maksusta
- Lisätietoja vastikkeista: Kiinteistövero 424,91 €/2024. Sähkön kokonaiskulutus ollut nykyisillä omistajilla n. 10 000 kWh/v. Piiroolinnokan tiemaksu n. 160 €/v. Jätehuolto paikallisen urakoitsijan taksoituksen mukaan. Esitetyt asumiskustannukset perustuvat nykykäyttöön ja voivat siten olla pienempiä tai suurempia, riippuen asukasmäärästä, asumistottumuksista sekä palveluntarjoajasta
Tilat ja materiaalit
- Keittiön lattiat
- Laatta
- Keittiön seinät
- Puu
- Keittiön varusteet
- Liesi, jääkaappipakastin, astianpesukone, ja liesituuletin / hormi
- Liesi
- sähköliesi
- Kylpyhuoneen seinät
- Kaakeli
- Kylpyhuoneen lattiat
- Laatta
- Kylpyhuoneen varusteet
- Lattialämmitys
- WC Lukumäärä
- 1
- WC:n lattiat
- Laatta
- WC:n seinät
- Puu
- Makuuhuoneiden lukumäärä
- 2
- Olohuone
- Avara olohuone josta upeat maisemat järvelle.
- Sauna
- Kyllä
- Kiuas
- Puukiuas
- Saunan kuvaus
- Kaksi saunaa toinen sisällä ja toinen rantamökillä.
Lisätiedot
- Asunnon kunto
- Hyvä
- Ranta
- Oma ranta
- Omaa rantaa (m)
- 30
- Lisätietoja rannasta
- Lapsiystävällinen hiekkaranta.
- Vesistön nimi
- Pyhäjärvi
- Kauppaan ei kuulu
- Irtain
Taloyhtiö ja kiinteistö
- Tontin pinta-ala
- 2 650 m²
- Tontin omistus
- Oma
- Tontin tyyppi
- Rantatontti
- Tontin myyntityyppi
- Koko tontti
- Tontin tiedot
- Upea suojainen rantatontti.
- Käyttö/luovutusrajoitukset
- Ostaja on tietoinen, että kiinteistön rantaan on saattanut muodostua vesijättöä. Ostaja ottaa mahdollisen lunastuksen vastattavakseen. Vesijätön lunastuksen hintaa ei voida määritellä etukäteen.
- Rakennusmateriaali
- Puu, betoni, hirsi ja puurunkoinen
- Lämmitysjärjestelmä
- Sähkö Tyyppi: sähköinen lattialämmitys sähköinen lattialämmitys
- Lisätietoja viemäristä
- wc vesi menee 5 m3 umpisäiliöön, harmaat vedet sakokaivoihin ja imeytyskenttiin.
- Kattotyyppi
- Harjakatot
- Katemateriaali
- Huopa
- Lisätietoa rakennusoikeudesta
- Loma-rakennuksen kerrosala saa olla enintään 80 m². Saunarakennuksen kerrosala saa olla enintään 20 m². Rakennuspaikalle saadaan rakentaa yksi yhden perheen loma-asunto, sauna, autotalli ja talousrakennus. Erillisten rakennusten lukumäärä saa olla enintään neljä. Rakennusoikeutta ei ole jäljellä.
- Lisätietoja energiatodistuksesta
- Kohteelle ei lain mukaan tarvita energiatodistusta.
- Tie perille
- Kyllä
- Kaavatilanne
- Rantakaava
- Kaavoitustiedot
- Loma-asuntojen korttelialue. Yleiskaava. Lempäälän kunta.
- Muut rakennukset
- saunarakennus
