Palovartijantie 9-11 C

00750, Suutarila, Helsinki
4h+ k
174 000 € (1 891,30 € / m²)
92 m²
Kohteen tyyppi
Kerrostalo
Rakennusvuosi
1976
Seuraava näyttö
Ei tiedossa
Yhtiövastike
556,80 € / kk
Tontti
Oma
Tätä asuntoa myy Jenni Polizzi, Myyntineuvottelija
Roof Helsinki | ROOF Group Oy
Asuntoesittely
Kaunis ja tilava kolmio etsii uutta omistajaa. Tämä valoisa ja kauniisti pidetty 92 m²:n kerrostalokoti hurmaa avaralla pohjaratkaisullaan ja kolmella makuuhuoneella – täydellinen perheelle, pareille tai tilaa arvostaville. Asunto on remontoitu ja säilyttää selkeän, käytännöllisen pohjaratkaisun, jossa yhdistyvät asumismukavuus ja toimivuus. Asunnossa on lasitettu parveke, hyvin varusteltu keittiö sekä erillinen WC ja kylpyhuone – moderni koti nykypäivän tarpeisiin. Säilytystilaa löytyy hyvin, ja sisätilat huokuvat siisteyttä ja viihtyisyyttä. Sijainti on erinomainen: rauhallinen ja vehreä alue, mutta lähellä kaikki arkeen tarvittava. Lähikaupat, päiväkodit, koulut ja ulkoilumahdollisuudet ovat kävelyetäisyydellä. Julkinen liikenne toimii mainiosti: juna-asema ja bussiyhteydet tekevät liikkumisesta nopeaa ja vaivatonta. Tämä asunto tarjoaa loistavan yhdistelmän tilaa, valoisuutta, mukavuutta ja sijaintia – kaikki samassa paketissa. Täydellinen koti sinulle, joka haluat yhdistää rauhallisen asuinympäristön ja sujuvat arjen yhteydet. TIEDUSTELUT JA YKSITYISESITTELYVARAUKSET: Jenni Polizzi / 045 640 8836 tai [email protected] OTATHAN YHTEYTTÄ JA VARAAT OMAN ESITTELYAJAN! I can provide services also in English. Get a roof. www.roof.fi
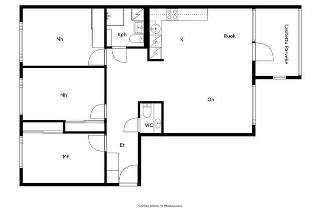
Pohjakuva
Perustiedot
Sijainti
Palovartijantie 9-11 C, 00750, Suutarila, Helsinki
Omistusmuoto
Omistusasunto
Huoneluku
4
Asuinpinta-ala
92 m²
Kokonaispinta-ala
92 m²
Pinta-alan peruste
Yhtiöjärjestyksen mukainen, Isännöitsijäntodistuksen mukainen, (Pinta-ala ei ole tarkistusmitattu ja todellinen pinta-ala voi olla suurempi tai pienempi, kuin ilmoitettu)
Lisätiedot pinta-alasta
Pinta-alaa ei ole tarkistusmitattu. Huoneiston pinta-alaa ei ole mitattu SFS5139 (Rakennuksen pinta-alat) määriteltyä huoneistoalan laskemisjärjestelmää käyttäen, huoneiston todellinen pinta-ala saattaa siis poiketa oleellisestikin yhtiöjärjestyksessä ilmoitetusta huoneiston pinta-alasta.
Kohteen tyyppi
Kerrostalo
Kerros
3 / 4
Rakennusvuosi
1976
Kohde myydään vuokrattuna
Ei
Vapautuminen
Sopimuksen mukaan
Hinta ja kustannukset
Velaton hinta
174 000 €
Myyntihinta
174 000 €
Yhtiövastike
Hoitovastike 460 € / kk (5 € / m²), Rahoitusvastike 92 € / kk (1 € / m²), Muu vastike 4,80 € / kk (Laajakaista), Yhtiövastike yhteensä 556,80 € / kk
Autopaikkamaksu
10 € / kk
Saunamaksu
10 € / kk
Vesimaksu
20 € / kk
Neliöhinta
1 891,30 € / m²
Lisätietoja maksusta
autopaikka kylmä 8e / kk autopaikka 10e / kk ulkoautopaikka 15e / kk
Kotivakuutus
Tilat ja materiaalit
Keittiön kuvaus
Seinä : Kaakeli, maalattu Lattia: Laminaatti Varustus: Jääkaappi,pakastin ,astianpesukone, liesi, uuni, hanat ,kaapistot, liesituuletin keraaminen
Kylpyhuone
Seinä: Kaakeli Lattia:aKakeli Varustus: Pesukoneliitäntä,wc, kaapistot, kaivot,suihkuseinäseinä, peilikaappi,allaskaappi, kaapisto,lattialämmitys.
Erillinen WC
Varustus: wc-hyllykkö, peili, pidee Lattia:Kaakeli Seinä: Maalattu
Makuuhuoneet
Lattia:Laminaatti Seinä:Maalattu / valokuvatapetti Varustus: Kaapistot
Makuuhuoneiden lukumäärä
3
Olohuone
Lattia: Laminaatti Seinä: Tapetti
Kohteen säilytystilat
Kellarikomero ja jäähdytetty kellari
Sauna
Ei
Lisätiedot
Asunnon kunto
Hyvä
Parveke
Lasitettu parveke
Hissi
Ei
Taloyhtiö ja kiinteistö
Taloyhtiön nimi
Asunto Oy Ruiskupolku
Isännöitsijätoimisto
Tapulin Huolto Oy
Isännöitsijän nimi
Hannu Huhta
Isännöitsijän sähköposti
[email protected]
Isännöitsijän puhelin
0407542820
Taloyhtiön lisätiedot
KPH-remonttiIaina/ Rahoituslaina 27 977,22e
Tontin pinta-ala
851,2 m²
Tontin omistus
Oma
Rakennusmateriaali
Betoni
Lämmitysjärjestelmä
Kaukolämpö
Kattotyyppi
Tasakatto
Katemateriaali
Kumibitumi
Lisätietoja kiinteistönhoidosta
Huoltoyhtiö
Kiinteistönhoidon lisätiedot
Vantaan Kiinteistöpalvelu Oy
Taloyhtiössä on
Jäähdytetty kellari, pesutupa, urheiluvälinevarasto, väestönsuoja, ja kellarikomero
Lunastusoikeus yhtiöllä
Ei
Lunastusoikeus osakkaille
Ei
Kohteesta on energiatodistus
Kyllä
Energialuokka
D2018
Liikenneyhteydet
Juna-asema lähellä, bussipysäkki lähellä ja sujuvat yhteydet omalla autolla
Paikallistiedot
Ruokakauppa n. 0,2 km Useita kouluja lähistöllä Puisto 0,5 km
Taloyhtiön autopaikat
autopaikka kylmä 8e / kk autopaikka 10e / kk ulkoautopaikka 15e / kk
Piha-autopaikkoja
37 kpl
Taloyhtiöllä sauna
Kyllä
Kaavatilanne
Asemakaava
Lisätiedot kaavoituksesta
Helsingin kaupunki p. 09 310 1691
Asbestikartoitus
Ei
Lisätietoa asbestikartoituksesta
Kohde on valmistunut ennen vuotta 1994. Asunnossa ei ole tehty asbestikartoitusta. Lukijan on syytä tiedostaa, että tämän ikäisen rakennuksen rakennusmateriaalit voivat sisältää haitallisia aineita, kuten mm. asbestia ja että ennen rakenteita rikkovaa remonttia tulee teetättää tarvittava haitta-ainetutkimus. Välitysliike kehottaa lukijaa tutustumaan vuonna 2016 uudistuneeseen asbestilakiin huolellisesti ennen mahdollisten saneeraustoimenpiteiden aloittamista.
Taloyhtiön kiinnitykset
515 631,86 €
Taloyhtiön kiinnitysten päivämäärä
Isännöitsijäntodistuksen päivämäärän mukainen
Tehdyt remontit
Vesikattokunnostus 1995 Ikkunoiden huoltomaalaus 1997 Viemärin osakunnostus 1998 Löylyhuoneiden kunnostus 1999 Etuikkunoiden asennus 2001 Antenniverkon kunnostus 2004 Julkisivujen ja parvekkeiden peruskorjaus 2004 Kaukolämmön alajakokeskus 2004 HTV liittyminen 2004 Parvekelasitukset 2004 Vesikattojen peruskorjaus 2007 Iv-kanavien puhdistus ja laitteiston säätö 2008 Pesulan koneiden uusiminen ja lattian kunnostus 2009 Yhteissaunaosastojen peruskorjaus 2010 Pohjaviemärin kunnostus A-B talo 2010 Päätyjen salaojien ja sokkelin kunnostus CD-talo 2012 Salaojakaivon tyhjennyspumppaamo (B-porras) 2013 Kylpyhuoneet A7/2011, D44/2012, B22/2012, C37/2012 2012 Kylpyhuoneet A4, B19, B26, B27 (4 kpl) 2013 Kylpyhuoneet A1, A3, A6, A10, D41 (5 kpl) 2014 Kylpyhuone B17 2015 Ikkunoiden ja parvekeovien tiivistys ja kunnostus 2015 Pihatien asfaltointi 2015 Iv-kanavien puhdistus 2015 Kompressorihuoneen ilmanvaihdon parannus 2015 Asfalttikorjauksia A- ja B-talojen edustoilta 2016 Kylpyhuoneet A2, A5, A8, A11, A12 2016 Kylpyhuoneet B14, B25, C38 2017 Pihavalotolppien muutos led-valoiksi 2017 Roskakatos uusittu. 2017 A-portaan päätyseinän elementtisaumausten uusiminen 2018 Kylpyhuone B 20 2018 Porraskäytävien maalauskunnostus 2019 Porraskäytävien valaistuksen uusiminen 2019 Julkisivujen saumaus 2019 Käyttövesiputkien kuntoarvio 2020 (viemäriputkien kuntoarviota ei ole tehty) Kylpyhuoneiden kuntoarvio (kuntoarvio tehty kylpyhuo- neisiin, joita taloyhtiö ei ole vielä remontoinut) 2020 Pesutuvan maalausremontti 2022 Kylpyhuoneet B 15, B 16, B18, B21, B 23, B 24, C 28, 2022 C 29, C 30, C 31, C 32, C 33, C 35, D 42, D 43, D 46, D 47, D 48 Saunojen lauteiden uusiminen 2023 Kylpyhuone A 9 2024 Julkisivujen -ja ikkunoidenkuntotutkimus 2024
Tulevat remontit
2025 Palovaroittimet 2025 Julkisivujen pesu Julkisivujen korjaussuunnittelu, 4000e 2025 Ilmanvaihtohormien nuohous 2025Lasten leikkipaikka ja yleiset piha-alueet tarkastetaan ja laaditaan kunnostussuunnitelma 5000e -Sähköpääkeskusten ja lämmönjakohuoneen kuntotarkastus ja kunnostus 3000e -Viemäriputkien painehuuhtelu ja kuvaus, 2000e -Lämmönvaihtimen kunnossapitohuoltokorjaus -Käyttövesiputkien uusintatutkimus 4000e Lukijan on huomattava, että kunnossapitotarve on hallituksen näkemys viiden vuoden aikana. Päätökset mahdollisesti käynnistettävien kunnossapitotöiden ja muutostöiden suunnittelusta, toteutuksesta sekä rahoituksesta tehdään yhtiökokouksessa erikseen. Kunnossapitotarve mainitut toimenpiteet saattavat aikaistua tai myöhentyä. Myyjä ei vastaa taloyhtiön myöhemmin päättämistä kunnossapito toimenpiteistä ja niistä aiheutuvista huoneistolle tulevista kustannuksista. Kustannusarviot löytyy myös eli lisättävä mainitut kustannusarviot ovat alustavia arvioita ja todelliset kustannukset selviävät vasta urakan valmistuttua. Kustannukset voivat olla arvioitua pienemmät tai suuremmat.