Pälvikuja 11
21210, Tikanmaa, Raisio
35 000 €
2 392 m²

Tätä asuntoa myy Rani Lohi, Kiinteistönvälittäjä LKV, KiAT, vastaava hoitaja, osakas
Huoneistomarkkinat Oy LKV

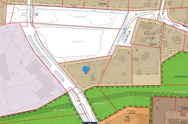
Sijainti
Asuntoesittely
LOISTAVA TILAISUUS UUDEN KODIN RAKENTAMISEEN
Tämä 2 392 m²:n tontti tarjoaa hyvän mahdollisuuden rakentaa koti juuri perheesi tarpeisiin luonnonläheiselle alueelle!
TILAA, RAUHAA JA MAHDOLLISUUKSIA
Tontilla sijaitsee purkukuntoinen omakotitalo sekä talousrakennus. Talossa ei ole asuttu vuosiin, ja purkukustannukset on huomioitu hinnassa.
Asemakaavamääräysten mukaan rakennusoikeuden enimmäismäärä on 300 m². Tontille saadaan rakentaa tontille osoitetun rakennusoikeuden lisäksi erilinen, kerrosalaltaan enintään 50 m² suuruinen talousrakennus autosuojaa, varastoa tai teknisiä tiloja varten.
Sijainti on erityisen toimiva lapsiperheille: Tikanmaan koulu ja Hakinmäen päiväkoti ovat aivan lähietäisyydellä. Raision keskustan monipuoliset palvelut ovat noin 3,5 kilometrin päässä ja helposti saavutettavissa autolla tai julkisilla. Bussipysäkit Raisiontien ja Kallastenkadun varrella takaavat sujuvat yhteydet eri suuntiin.
UUSI KOTI ALKAA TÄSTÄ
Tartu tilaisuuteen ja toteuta koti, joka vastaa perheesi tarpeita nyt ja tulevaisuudessa.
Rauhallinen sijainti, luonnonläheinen ympäristö ja hyvät yhteydet Raision keskustaan tekevät tästä tontista erinomaisen paikan uuden kodin rakentamiseen.
Myynti ja lisätiedot:
Susanna Ojala, 040 779 9507, [email protected]
Rani Lohi, 040 779 9511, [email protected]
Perustiedot
- Sijainti
- Pälvikuja 11, 21210, Tikanmaa, Raisio
- Kohteen tyyppi
- Omakotitalotontti
- Kohde myydään vuokrattuna
- Ei
- Vapautuminen
- Heti
Hinta ja kustannukset
- Velaton hinta
- 35 000 €
- Myyntihinta
- 35 000 €
- Kiinteistövero (€/vuosi)
- 435,19 €
- Sähköliittymä siirtyy
- Kyllä
Tilat ja materiaalit
Lisätiedot
- Asunnon kunto
- Välttävä
- Lisätietoja kunnosta
- Kiinteistöllä sijaitsee purkukuntoinen omakotitalo ja talousrakennus. Rakennuksilla ei ole kaupassa rahallista arvoa, vaan hinta perustuu ainoastaan tontin arvoon huomioiden purkukulut.
- Muut kaupan kannalta merkittävät tiedot
- Tontilla sijaitsee purkukuntoiset rakennukset.
Taloyhtiö ja kiinteistö
- Tontin pinta-ala
- 2 392 m²
- Tontin omistus
- Oma
- Tontin tyyppi
- Tasamaatontti
- Tontin myyntityyppi
- Koko tontti
- Lisätietoja viemäristä
- Tontilla on olemassa oleva viemäriliittymä. Mikäli rakennukset puretaan, on uudisrakentamisen yhteydessä on tehtävä uusi liittymissopimus. Viemäriliittymäsopimus tehtävä Raision Vesi Oy:n kanssa.
- Rakennusoikeus
- 300
- Lisätietoa rakennusoikeudesta
- Asemakaavamääräysten mukaan tontin koon ollessa yli 1500 m² rakennusoikeuden enimmäismäärä on 300 m². Tontille saadaan rakentaa tontille osoitetun rakennusoikeuden lisäksi erilinen, kerrosalaltaan enintään 50 m² suuruinen talousrakennus autosuojaa, varastoa tai teknisiä tiloja varten. Tarkemmat rakennustapamääräykset asemakaavamääräyksissä, joka on saatavissa välittäjältä.
- Kohteesta on energiatodistus
- Kohteella ei energiatodistuslain nojalla tarvitse olla energiatodistusta
- Lisätietoja liikenneyhteyksistä
- Erittäin hyvät, bussipysäkit Raisiontien ja Kallastenkadun varressa.
- Tie perille
- Kyllä
- Palvelut
- Raision keskustan palvelut noin 3,5 kilometrin etäisyydellä.
- Koulut
- Tikanmaan koulu (ala-aste) alle 100 metrin etäisyydellä, ylä-aste ja toisen asteen oppilaitokset Raision keskustan ympäristössä.
- Kaavatilanne
- Asemakaava
- Kaavoitustiedot
- Raision kaupunki.
- Asbestikartoitus
- Ei
Tehdyt remontit
Kiinteistöllä sijaitsee purkukuntoinen omakotitalo ja talousrakennus. Rakennuksilla ei ole kaupassa rahallista arvoa, vaan hinta perustuu ainoastaan tontin arvoon huomioiden purkukulut.
