Otavankatu 3 A
11130, Peltosaari, Riihimäki
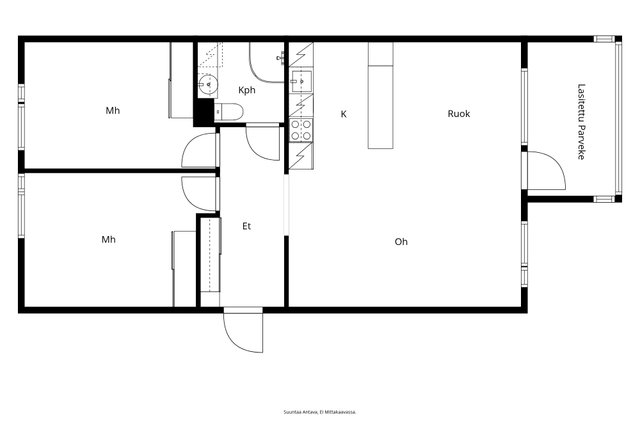
3h, k, kph / wc, lasitettu parveke
59 000 € (771,24 € / m²)
76,5 m²

Tätä asuntoa myy John Navarro, Myyntineuvottelija
Roof Helsinki | ROOF Group Oy

Sijainti
Asuntoesittely
Siistikuntoinen parvekkeellinen kolmio hyvällä sijainnilla Riihimäellä
Riihimäen Peltosaaren rauhallisella alueella sijaitsee valoisa ja tilava kolmannen kerroksen asunto, joka tarjoaa mukavat puitteet asumiseen. Asunnossa on avara olohuone, joka yhdistyy saumattomasti tyylikkääseen keittiöön. Suuret ikkunat ja lasitettu parveke tuovat runsaasti luonnonvaloa, tehden tilasta viihtyisän ja kutsuvan.
Keittiö on varustettu nykyaikaisilla kodinkoneilla ja tarjoaa runsaasti kaappi ja laskutilaa. Kylpyhuone on remontoitu modernisti, ja sen vaaleat sävyt luovat raikkaan tunnelman. Kaksi makuuhuonetta tarjoavat rauhallisen paikan levätä, ja niissä on hyvin säilytystilaa peililiukuovikaapistoissa.
Taloyhtiö Asunto Oy Riihenorsi on hyvin hoidettu, ja sen autopaikat ovat varustettu lämmitystolpilla. Läheltä löytyvät kaikki arjen palvelut, kuten K-Market ja Kauppakeskus Atomi, sekä hyvät julkiset liikenneyhteydet, jotka vievät sinut nopeasti Helsinkiin ja Tampereelle.
Tartu tilaisuuteen ja tule tutustumaan tähän viihtyisään kotiin, joka tarjoaa kaiken tarvittavan mukavaan asumiseen!Perustiedot
- Sijainti
- Otavankatu 3 A, 11130, Peltosaari, Riihimäki
- Omistusmuoto
- Omistusasunto
- Huoneluku
- 3
- Asuinpinta-ala
- 76,5 m²
- Kokonaispinta-ala
- 76,5 m²
- Pinta-alan peruste
- Isännöitsijäntodistuksen mukainen, Yhtiöjärjestyksen mukainen, (Pinta-ala ei ole tarkistusmitattu ja todellinen pinta-ala voi olla suurempi tai pienempi, kuin ilmoitettu)
- Lisätiedot pinta-alasta
- Huoneiston pinta-ala on yhtiöjärjestyksen, isännöitsijäntodistuksen ja myyjän ilmoituksen mukaan 76,5 m². Pinta-alaa ei ole tarkistusmitattu. Edellä mainittu pinta-ala saattaa tämän ikäisessä kohteessa poiketa olennaisestikin huoneiston nykyisen ja rakentamisaikaisen mittaustapojen ja standardien mukaan laskettavasta pinta-alasta. Huoneiston todellinen pinta-ala voi siis olla yhtiöjärjestyksessä, isännöitsijäntodistuksessa ja esitteessä mainittua pienempi tai suurempi.
- Kohteen tyyppi
- Kerrostalo
- Kerros
- 3 / 4
- Rakennusvuosi
- 1974
- Kohde myydään vuokrattuna
- Ei
- Vapautuminen
- Heti
Hinta ja kustannukset
- Velaton hinta
- 59 000 €
- Myyntihinta
- 44 708,58 €
- Velkaosuus
- 14 291,42 €
- Yhtiövastike
- Hoitovastike 501,79 € / kk, Rahoitusvastike 92,44 € / kk, Yhtiövastike yhteensä 594,23 € / kk
- Lisätietoja vastikkeista
- Huoneistokohtainen sähkö sisältyy hoitovastikkeeseen Asiakirjoista ei ilmene yhtiökokouksen valtuutusta ylimääräisten hoitovastikkeiden keräämiseen tai pääomavastikkeiden muuttamiseen.
- Saunamaksu
- 12 € / kk
- Vesimaksu
- 22 € / hlö / kk
- Neliöhinta
- 771,24 € / m²
- Lisätietoja maksusta
- Taloyhtiön autopaikat sijaitsevat Saturnuksenkadun parkkialueella, jonka hallinnointi ja paikkavaraukset hoidetaan taloyhtiön kautta. Kaikki autopaikat ovat varustettu lämmitystolpalla. Marras–huhtikuu: 15 €/kk, Touko–lokakuu: 10 €/kk. Avainpantti lämmitystolpan avaimeen: 20 € .Tällä hetkellä alueella on yksi vapaa autopaikka. Taloyhtiössä on suora sähkölämmitys ja huoneistokohtainen taloussähkö sisältyy hoitovastikkeeseen. Osakkeenomistajalle ei muodostu erillistä sähkölaskua, joten huoneiston keskimääräinen sähkökustannus on 0 €/kk
Tilat ja materiaalit
- Keittiön kuvaus
- Tyylikäs ja toimiva keittiö, jossa on hyvin kaappi ja laskutilaa. Vaaleat yläkaapit ja puunsävyiset alakaapit luovat ajattoman ilmeen, jota täydentää helppohoitoinen työtaso ja yhtenäinen välitila. Keittiö avautuu luontevasti oleskelutilaan, mikä tekee ruoanlaitosta ja seurustelusta sujuvaa.
- Keittiön lattiat
- Parketti
- Keittiön seinät
- Maali
- Keittiön varusteet
- Jääkaappipakastin, erillisuuni, uuni, astianpesukone, ja mikroaaltouuni
- Liesi
- Keraaminen liesi
- Kylpyhuone
- Tyylikkäästi remontoitu, vaaleasävyinen kylpyhuone, jossa isot valkoiset seinälaatat ja tummat lattialaatat luovat modernin ilmeen. Lasinen suihkuseinä jakaa tilan toimivasti ja pitää roiskevedet suihkun puolella. Tilassa on hyvä valaistus ja selkeä, pelkistetty linja.
- Kylpyhuoneen seinät
- Laatta
- Kylpyhuoneen lattiat
- Laatta
- Kylpyhuoneen varusteet
- Suihku, sadesuihku, wc-istuin, pesuallas, peilikaappi, ja allaskaappi
- Makuuhuoneet
- Asunnossa on kaksi vaaleasävyistä makuuhuonetta, jotka sijoittuvat rauhallisesti olohuoneen yhteydestä. Suuret ikkunat tuovat hyvin luonnonvaloa ja tilaan mahtuu mukavasti sänky sekä työpiste tai lipasto. Peililiukuovikaapistot tarjoavat runsaasti säilytystilaa ja tekevät huoneista avaran tuntuiset.
- Makuuhuoneiden lukumäärä
- 2
- Makuuhuoneiden seinät
- Maali
- Makuuhuoneiden lattiat
- Parketti
- Olohuone
- Avara ja valoisa olohuone, joka yhdistyy saumattomasti avokeittiöön. Suuret ikkunat ja parvekeovi tuovat runsaasti luonnonvaloa ja tekevät tilasta miellyttävän oleskelupaikan. Tilaan mahtuu hyvin sekä ruokapöytä että sohvaryhmä.
- Olohuoneen seinät
- Maali
- Olohuoneen lattiat
- Parketti
- Sauna
- Ei
Lisätiedot
- Asunnon kunto
- Hyvä
- Parveke
- Lasitettu parveke
- Terassi
- Ei
- Ranta
- Ei rantaa
- Hissi
- Ei
- Kohde on saaressa
- Ei
- Muut kaupan kannalta merkittävät tiedot
- taloyhtiöltä saatujen tietojen mukaan taloyhtiössä tai lähiympäristössä ei ole ollut tiedossa häiriöitä tai asumisviihtyvyyteen olennaisesti vaikuttavia seikkoja.
Taloyhtiö ja kiinteistö
- Taloyhtiön nimi
- Asunto Oy Riihenorsi
- Isännöitsijätoimisto
- Isännöintipalvelu Isarvo Oy Uusimaa
- Isännöitsijän nimi
- Saija Heinilä
- Isännöitsijän sähköposti
- [email protected]
- Isännöitsijän puhelin
- 040 189 9868
- Tuotot
- 0
- Taloyhtiön lisätiedot
- Taloyhtiöllä ei ole nostamattomia lainoja. Varsinainen yhtiökokous pidettiin 6.05.2024. Kokouksessa käsiteltiin AOYL ja yhtiöjärjestyksen edellyttämät asiat. Taloyhtiöllä on luotollinen pankkitili Nordeassa, limiitti 30 000 €, käyttöaste 0 € (31.12.2024). Taloyhtiölle on vahvistettu kiinnityksiä yhteensä 800 000 € Kiinnitysten määrä kattaa yhtiön lainat riittävästi, sillä lainakanta on 204 779,79 €.
- Tontin pinta-ala
- 1 474,5 m²
- Tontin omistus
- Oma
- Rakennusmateriaali
- Betoni
- Lämmitysjärjestelmä
- Suora sähkölämmitys
- Ilmanvaihto
- Koneellinen ilmanvaihto
- Vesijohto
- Kunnallisvesi
- Viemäröinti
- Kunnallinen viemäriverkosto
- Kattotyyppi
- Tasakatto
- Katemateriaali
- Huopa
- Lisätietoja kiinteistönhoidosta
- Huoltoyhtiö
- Taloyhtiössä on
- Ulkoiluvälinevarasto, kaapeli-tv, ja kellarikomero
- Lunastusoikeus yhtiöllä
- Ei
- Lunastusoikeus osakkaille
- Ei
- Kohteesta on energiatodistus
- Kyllä
- Energialuokka
- G2013
- Energiatodistuksen voimassaolo
- 8.12.2024
- Lisätietoja energiatodistuksesta
- Taloyhtiöllä ei ole voimassa olevaa energiatodistusta.
- Liikenneyhteydet
- Juna-asema lähellä
- Lisätietoja liikenneyhteyksistä
- Riihimäen rautatieasema ja matkakeskus sijaitsevat noin 600 m päässä, josta on tiheät junayhteydet Helsinkiin ja Tampereelle.
- Paikallistiedot
- Lähikauppa / päivittäistavarat Lähikahvila / -ravintola Koulut ja päiväkodit Julkiset liikenneyhteydet (juna/bussi/asema) Terveyspalvelut / apteekki Ulkoilu ja virkistys: puistot, lenkkimaastot, urheilupaikat
- Palvelut
- K-Market Peltosaari n. 200 m Prisma & Kauppakeskus Atomi n. 900 m
- Koulut
- Peltosaaren koulu, n. 800 m
- Huoneistoon kuuluu yhtiöjärjestyksen mukaan autopaikka
- Pihapaikka ja pistokkeellinen pihapaikka
- Lisätietoja huoneiston autopaikasta
- Taloyhtiön autopaikat ovat yhtiökohtaisia, eikä huoneistolle kuulu omaa autopaikkaa.
- Taloyhtiön autopaikat
- Taloyhtiössä on 22 autopaikkaa, kaikki kaavoitettuja ja toteutettuja. Autopaikat eivät ole osakepaikkoja, eikä huoneistolle kuulu omaa autopaikkaa. Paikat jaetaan taloyhtiön käytäntöjen mukaisesti.
- Taloyhtiöllä sauna
- Kyllä
- Kaavatilanne
- Asemakaava
- Lisätiedot kaavoituksesta
- Ostaja vastaa itse asemakaavan ja sitä koskevien määräysten tarkemmasta selvittämisestä ja niihin tutustumisesta. Asemakaavaan voi tutustua Riihimäen kaupungin karttapalvelussa tai kaupungin kaavoitusyksikössä. Riihimäen kaupunki - Puh. 019 758 4000
- Lisätietoja kunnossapitotarveselvityksestä
- Kunnossapitovastuut (yhtiöjärjestys 13 §) Vastuu osakkeenomistajien jälkikäteen rakentamien huoneistokohtaisten parvekelasien korjaamisesta, kunnossapidosta ja yhtiölle mahdollisesti aiheutuvista kustannuksista kuuluu osakkeenomistajille.
- Asbestikartoitus
- Ei
- Lisätietoa asbestikartoituksesta
- Kohde on valmistunut ennen vuotta 1994. Asunnossa ei ole tehty asbestikartoitusta. Lukijan on syytä tiedostaa, että tämän ikäisen rakennuksen rakennusmateriaalit voivat sisältää haitallisia aineita, kuten mm. asbestia ja että ennen rakenteita rikkovaa remonttia tulee teetättää tarvittava haitta-ainetutkimus. Välitysliike kehottaa lukijaa tutustumaan vuonna 2016 uudistuneeseen asbestilakiin huolellisesti ennen mahdollisten saneeraustoimenpiteiden aloittamista.
- Taloyhtiön kiinnitykset
- 800 000 €
- Taloyhtiön kiinnitysten päivämäärä
- Isännöitsijäntodistuksen päivämäärän mukainen
Tehdyt remontit
1999 Porraskäytävät ja paik.alue
2000 Elemmenttisaumat uusittu
2001 Ulko-ovien katokset, lukitus uusittu
2006 Lämminvesivaraaja uusittu
2007 Antenniverkon digikunnostus
2009 Julkisivu-, parveke- ja kattoremontti
2009 Kattoremontti
2009 Parvekekorjaus
2010 Pihakorjaus, ulkoseinien suojavahaus, iv-kanavien nuohous
2010 Ulkoseinien suojavahaus
2015 Talosauna remontoitu
2019 Ilmanvaihdon parantaminen saunatiloihin
2019 Putkistojen kuntokartoitus
2020 IV-kanavien nuohous ja säätö
2020 Kosteuskartoitus
2020 Kylpyhuonekorjauksia
2020 Katon kuntokarkoitus
2021 Kylpyhuonekorjauksia
2021 Julkisivunpesu
2022 Kylpyhuonekorjauksia
2022 Jätealueelle tehtiin aitaus
2025 Palovaroittimet asennettiin kaikkiin asuntoihin
Tulevat remontit
2025 Katon korjaus
2026 Märkätilakorjauksia tarpeen mukaan noin yksi vuodessa
2027 Sähköpattereiden vaihto uusiin
2027 Märkätilakorjauksia tarpeen mukaan noin yksi vuodessa
2028 Märkätilakorjauksia tarpeen mukaan noin yksi vuodessa
Lukijan on huomattava, että 2025–2028 on hallituksen näkemys kunnossapitotarpeista viiden vuoden aikana. Päätökset mahdollisesti käynnistettävien kunnossapitotöiden ja muutostöiden suunnittelusta, toteutuksesta sekä rahoituksesta tehdään yhtiökokouksessa erikseen. 2025–2028 mainitut toimenpiteet saattavat aikaistua tai myöhentyä. Myyjä ei vastaa taloyhtiön myöhemmin päättämistä kunnossapitotoimenpiteistä ja niistä aiheutuvista huoneistolle tulevista kustannuksista.
