Myllymäentie 2A
20810, Vähä-Heikkilä, TURKU, Turku
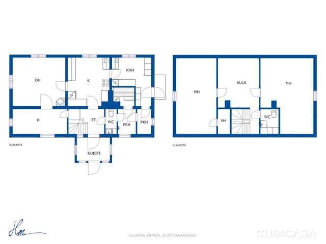
Asuinkerros:kuisti+et+k+oh+mh+khh+ph+s+wc Yläkerta:aula+2mh+wc. 2x erillinen Ulkovarasto, joista toisessa ollut pihasauna
369 000 €
120 m²

Tätä asuntoa myy Marko Karppinen, Kiinteistönvälittäjä LKV
Huoneistomarkkinat Oy LKV

Sijainti
Asuntoesittely
Idyllinen 1920-luvun omakotitalo lähes keskustassa. Tämä hurmaava 1920-luvun talo sijaitsee viehättävällä ja rauhallisella omakotitaloalueella, aivan keskustan tuntumassa. Kodin tunnelman luovat puuhella, kakluuni ja kauniit lankkulattiat, jotka henkivät vanhan talon lämpöä ja historiaa.
Oma, vehreä puutarhatontti on pääosin nurmikkoa, ja pihapiiristä löytyy omenapuita, kirsikka- ja luumupuita sekä katettu terassi, joka kutsuu viettämään aikaa ulkona.
Kiinteistö on käynyt läpi peruskorjauksen vuosina 1994–1999, ja sen jälkeen on tehty useita uudistuksia vuosien 2002–2020 välillä, kuten katon, keittiön ja pesuhuoneen uusiminen. Viimeisimpiä parannuksia ovat talon ulkomaalaus, katon maalaus sekä sadevesien poisohjaaminen.
Pohjaratkaisu on käytännöllinen. Yläkerrassa sijaitsevat kaksi tilavaa makuuhuonetta, aulatila ja erillinen wc. Alakerrasta löytyvät kuisti, eteinen, toinen wc, pesutilat ja sauna, sekä kodinhoitohuone, josta on myös käynti ulos. Lisäksi alakerrassa on yksi makuuhuone, tunnelmallinen olohuone kakluunilla sekä keittiö, jossa on perinteinen puuhella.
Perustiedot
- Sijainti
- Myllymäentie 2A, 20810, Vähä-Heikkilä, TURKU, Turku
- Huoneluku
- 4
- Asuinpinta-ala
- 120 m²
- Muu pinta-ala
- 10 m²
- Kokonaispinta-ala
- 130 m²
- Pinta-alan peruste
- Pinta-ala ei ole tarkistusmitattu ja todellinen pinta-ala voi olla suurempi tai pienempi, kuin ilmoitettu
- Lisätiedot pinta-alasta
- Edellisen omistajan antaman tiedon mukaan lämmin käytössä oleva lattia-ala on yhteensä n.130m² ( sisältää myös alle 160 cm olevat tilat ja em. pinta-aloja ei ole tarkistusmitattu, eikä ne välttämättä ole virallista huoneistoalaa ). Päärakennuksen ulkomitat ovat n. 12x7 m. Turun kaupungin Rakennus- ja huoneistorekisteriotteen mukaan Asuinhuoneistoala on 120 m² jonka lisäksi em. matalat tilat, sekä ulkovarastot.
- Kohteen tyyppi
- Omakotitalo
- Kerros
- 2
- Rakennusvuosi
- 1920
- Kohde myydään vuokrattuna
- Ei
- Vapautuminen
- Sopimuksen mukaan
Hinta ja kustannukset
- Myyntihinta
- 369 000 €
- Velkaosuus
- 0 €
- Yhtiövastike
- Hoitovastike 0 € / kk, Rahoitusvastike 0 € / kk, Korjausvastike 0 € / kk, Muu vastike 0 € / kk
- Vesimaksu
- 0 € / hlö
- Kiinteistövero (€/vuosi)
- 274,36 €
- Neliöhinta
- 3 075 € / m²
- Lisätietoja maksusta
- Omistajaperheen sähkönkulutus ollut n. 15.000 kWh / vuonna 2024 , joka sisältänyt käyttösähkön ja lämmityksen, sekä viilennyksen.
Tilat ja materiaalit
- Keittiön kuvaus
- Keittiö uusittu 2011. Astianpesukone ( uusittu -23 ) ja jääkaappi ( uusittu -22 ), induktioliesi ja integroidut mikro ja erillisuuni, sekä liesituuletin ja toimintakuntoinen puuhella. Työtasot kiveä.
- Keittiön lattiat
- Lankkulattia
- Keittiön seinät
- Maali ja tapetti
- Kylpyhuone
- Alakerran pesuhuone, on kokonaan laattaa ja lattialämmitys.
- WC Lukumäärä
- 2
- Erillinen WC
- Alakerran erillinen wc kokonaan laattaa, sekä lattialämmitys, pesuallas ja peili, sekä bidee-suihku. Yläkerran wc:n lattia laattaa, sekä seinät osin laattaa, pesuallas peili ja bidee-suihku.
- Makuuhuoneet
- Alakerran makuuhuoneessa lauta/lankkulattia ja yläkerrassa lattiat ovat kauttaaltaan laminaattia.
- Makuuhuoneiden lukumäärä
- 3
- Olohuoneen seinät
- Tapetti
- Olohuoneen lattiat
- Lankkulattia
- Kodinhoitohuone
- Khh:ssa lattia laattaa, lattialämmitys, pk-liitäntä, kaapistoa, käynti pihalle.
- Kohteen säilytystilat
- Kaapistot ja 2xulkovarasto
- Sauna
- Kyllä
- Saunan kuvaus
- 2023 uusittu puukiuas
- Takka
- Kakluuni ja puuhella
Lisätiedot
- Asunnon kunto
- Hyvä
- Lisätietoja kunnosta
- Hyvä
- Terassi
- Kyllä
- Lisätietoja terassista
- Katettu terassi.
- Muut tilat
- Kohteessa on tuulettuva alapohja.
Taloyhtiö ja kiinteistö
- Tontin pinta-ala
- 575 m²
- Tontin omistus
- Oma
- Tontin tyyppi
- Tasamaatontti
- Tontin myyntityyppi
- Koko tontti
- Tontin tiedot
- Kulkutie sorastettu ja takapihalla tilava 2020 valmistunut terassi katoksella. Etupihalla osin laatoitusta. Muuten puutarhatontti, jossa nurmikkoa, 2xomenapuu, kirsikka- ja luumupuu, sekä marjapensaita.
- Rakennusmateriaali
- Hirsi / puu / lautaverhous
- Lämmitysjärjestelmä
- Sähköinen lattialämmitys ( alakerran khh+pukuh+ph+wc ) ilmalämpöpumppu ja puuhella, kakluuni ( nyt sähkövastuksella ja voi ottaa myös puilla käyttöön ) ja patterit.
- Ilmanvaihto
- Painovoimainen ( yläkerran wc-tilassa koneellinen poisto )
- Vesijohto
- Kunnallisvesi
- Viemäröinti
- Kunnallinen viemäriverkosto
- Kattotyyppi
- Harjakatto
- Katemateriaali
- Pelti
- Rakennusoikeus
- 160
- Kohteesta on energiatodistus
- Kyllä
- Energialuokka
- D2018
- Energiatodistuksen voimassaolo
- 19.6.2029
- Lisätietoja liikenneyhteyksistä
- Lähimmät pysäkit n. 100 m
- Palvelut
- Alueen palvelut.
- Koulut
- Alueen koulut ja päiväkodit
- Kaavatilanne
- Asemakaava
- Kaavoitustiedot
- Turun Kaupunki
- Kuntotarkastus tehty
- 13.10.2025
- Asbestikartoitus
- Ei
- Lisätietoa muista rakennuksista
- Erillinen varastorakennus etupihalla, sekä takapihalla ( tämä ollut joskus pihasauna käytössä )
Tehdyt remontit
Edellisten omistajien toimesta peruskorjausta / laajennus -94-99: alapohjaa eristetty uudelleen ja seiniin lisätty villaa 50mm, uusittiin vesijohdot, viemärit, sähköt. Ikkunat ( suurelta osin ), otettiin yläkerta asuinkäyttöön ja rakennettiin kuisti. Sen jälkeen on uusittu katto 2002 ( ruoteet, aluskate ja peltikate ), osin uusittu laudoitusta 2004 ja 2011 on uusittu keittiö, pesuhuone ja sauna.
Nykyinen omistaja:
Toukokuu-heinäkuu 2020: pääkaton syöksytorvista toteutettu sadevesien johtaminen putkilla alatontille pihakaivoon ja omenapuun alle
Huhtikuu 2020: rakennettu pihaterassi ja katos
Touko-kesäkuu 2020: ulkoverhouksen maalaus. Hilseilevän maalin poisto, homepesu juuriharjalla, pintojen suojaus, ulkoverhouksen maalaus, räystäänalustan maalaus, otsalautojen maalaus. Toteuttaja Peintre Oy, luovutus- ja takuupöytäkirja 16.6.2020
Touko-kesäkuu 2020: Peltikaton maalaus. Halkeilevan maalin poisto, ruostekohtien hionta, katon pesu, pintojen suojaus, ruostepohjamaalaus, katon maalaus. Toteuttaja Peintre Oy, luovutus- ja takuupöytäkirja 16.7.2020
Elo-syyskuu 2020: etupihan laatoitus