Marsinkuja 5 B
01480, Mikkola, Vantaa
3 h + k + kph + eril.wc + parveke
90 000 € (1 118,01 € / m²)
80,5 m²

Tätä asuntoa myy John Navarro, Myyntineuvottelija
Roof Helsinki | ROOF Group Oy

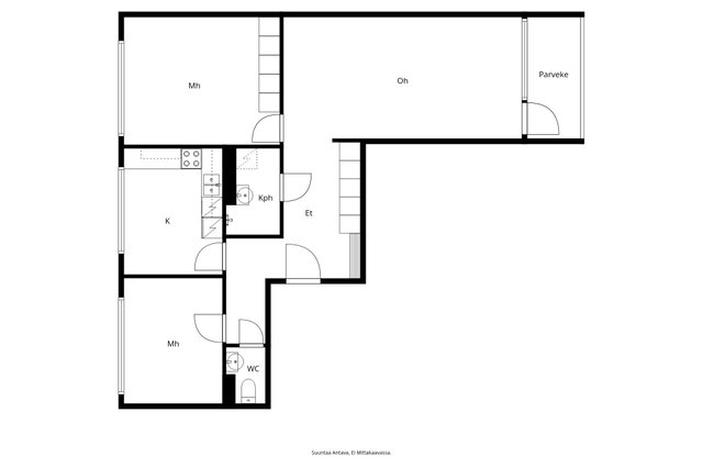
Sijainti
Asuntoesittely
Kolmannen kerroksen tilava koti rauhallisella alueella
Marsinkuja 5:n kolmannessa kerroksessa sijaitseva asunto tarjoaa rauhallisen ja luonnonläheisen ympäristön, jossa arki sujuu mukavasti. Tämä 80,5 neliöinen koti on ihanteellinen valinta perheille tai niille, jotka arvostavat vehreää ympäristöä ja hyviä kulkuyhteyksiä.
Asunnossa on kaksi tilavaa makuuhuonetta, valoisa olohuone ja käytännöllinen keittiö, joissa kaikissa on runsaasti luonnonvaloa. Kylpyhuone ja erillinen wc ovat alkuperäiskuntoisia, mutta tarjoavat mahdollisuuden päivittää tilat omien toiveiden mukaan.
Alueella on erinomaiset ulkoilu ja liikuntamahdollisuudet, ja julkinen liikenne toimii sujuvasti, sillä lähin bussipysäkki on vain kivenheiton päässä. Koivukylän juna-asema tarjoaa suorat yhteydet Helsingin keskustaan ja lentokentälle.
Taloyhtiössä on sauna ja mahdollisuus vuokrata autopaikka. Tämä koti on loistava tilaisuus niille, jotka etsivät viihtyisää ja rauhallistaPerustiedot
- Sijainti
- Marsinkuja 5 B, 01480, Mikkola, Vantaa
- Omistusmuoto
- Omistusasunto
- Huoneluku
- 3
- Asuinpinta-ala
- 80,5 m²
- Kokonaispinta-ala
- 80,5 m²
- Pinta-alan peruste
- Isännöitsijäntodistuksen mukainen, (Pinta-ala ei ole tarkistusmitattu ja todellinen pinta-ala voi olla suurempi tai pienempi, kuin ilmoitettu)
- Lisätiedot pinta-alasta
- Pinta-ala ei tarkistusmitattu. Pinta-alat saattavat tämän ikäisissä kohteissa (yhtiö rekisteröity ennen 01.01.1992) poiketa olennaisestikin asuinrakennusten nykyisten mittaustapojen ja standardien (SFS 5139) mukaan laskettavasta asuintilojen pinta-alasta. Pinta-ala voi siis olla edellä mainittua pienempi tai suurempi.
- Kohteen tyyppi
- Kerrostalo
- Kerros
- 3 / 3
- Rakennusvuosi
- 1977
- Kohde myydään vuokrattuna
- Ei
- Vapautuminen
- Heti
Hinta ja kustannukset
- Velaton hinta
- 90 000 €
- Myyntihinta
- 53 998,41 €
- Velkaosuus
- 36 001,59 €
- Yhtiövastike
- Hoitovastike 503,13 € / kk (6,25 € / m²), Rahoitusvastike 315 € / kk, Yhtiövastike yhteensä 818,13 € / kk
- Lisätietoja vastikkeista
- Hoitovastike: Maksuperuste: pinta-ala Yksikköhinta: 6,25 € / m² Asunnon pinta-ala: 80,5 m² Rahoitusvastike 315 € / kk Perustuu taloyhtiön RL1-lainaan 33 €/osake + 19 €/osake = 52 €/osake/kk Huoneistolla 6 osaketta → 52 € × 6. Hallituksella valtuudet periä 1-2 kk vastikkeet tarvittaessa. Rahastoidaan enintään lainan lyhennyksiin käytetyt lainaosuusuoritukset. Hallituksella valtuudet muuttaa rahoitusvastiketta kesken tilikauden tarvittaessa.
- Autopaikkamaksu
- 10 € / kk
- Saunamaksu
- 20 € / kk
- Vesimaksu
- 21 € / hlö / kk
- Neliöhinta
- 1 118,01 € / m²
- Lisätietoja maksusta
- Taloyhtiön hallitukselle on annettu valtuutus periä (tai olla perimättä) ylimääräistä vastiketta yhtiön taloudellisen aseman tai maksuvalmiuden sitä vaatiessa
Tilat ja materiaalit
- Keittiön kuvaus
- Keittiö on selkeälinjainen ja käytännöllinen kokonaisuus, jossa on hyvin kaappi ja työskentelytilaa. Suuret ikkunat tuovat tilaan runsaasti luonnonvaloa ja näkymät vehreälle pihalle. Vaaleat pinnat ja alkuperäiset kaapistot tarjoavat neutraalin pohjan, jota voi helposti päivittää oman maun mukaan.
- Keittiön lattiat
- Laminaatti
- Keittiön seinät
- Maali ja laatta
- Keittiön varusteet
- Jääkaappipakastin, liesituuletin, astianpesukone, kaksialtainen tiskiallas, ja uuni
- Liesi
- Sähköhella
- Kylpyhuone
- Asunnossa on erillinen wc sekä suihkullinen kylpyhuone. Tilat ovat pääosin alkuperäiskuntoisia ja vaativat päivitystä, mutta tarjoavat selkeän pohjan remontointia varten. Vaaleat seinälaatat ja tumma lattialaatta kylpyhuoneessa luovat neutraalin lähtökohdan.
- Kylpyhuoneen seinät
- Laatta
- Kylpyhuoneen lattiat
- Laatta
- Kylpyhuoneen varusteet
- WC-istuin, suihku, pesuallas, ja peilikaappi
- WC Lukumäärä
- 1
- Erillinen WC
- Käytännöllinen erillinen WC, jossa on pesuallas, peili ja bidee-suihku. Vaaleat pinnat ja selkeä rakenne tekevät tilasta toimivan arjen tarpeisiin. Tila on peruskuntoinen ja tarjoaa hyvän pohjan mahdolliselle pintojen päivitykselle.
- WC:n lattiat
- Muovimatto
- WC:n seinät
- Maali
- Makuuhuoneet
- Asunnossa on kaksi tilavaa ja valoisaa makuuhuonetta. Suuret ikkunat tuovat runsaasti luonnonvaloa ja avarat näkymät ympäröivään puistomaisemaan. Vaaleat seinät ja uudehko laminaattilattia tekevät huoneista helposti sisustettavat ja raikkaat.
- Makuuhuoneiden lukumäärä
- 2
- Makuuhuoneiden seinät
- Maali
- Makuuhuoneiden lattiat
- Laminaatti
- Olohuone
- Valoisa ja selkeälinjainen olohuone, jossa suuri ikkunaseinä tuo runsaasti luonnonvaloa ja avaran tunnelman. Huone on helppo sisustaa omien tarpeiden ja tyylin mukaan, ja vaaleasävyiset pinnat korostavat tilan avaruutta.
- Olohuoneen seinät
- Maali
- Olohuoneen lattiat
- Laminaatti
- Sauna
- Ei
Lisätiedot
- Asunnon kunto
- Tyydyttävä
- Näkymät
- Rauhallinen ja vehreä näkymä metsäiseen maisemaan. Pihapiiri on avara ja luonnonläheinen, ja parvekkeelta näkee suoraan taloyhtiön omalle piha-alueelle sekä leikkipaikalle. Luonnon tuoma yksityisyys ja vihreys tekevät parvekkeesta täydellisen paikan rentoutumiselle.
- Parveke
- Ulostyönnetty parveke
- Parvekkeen ilmansuunta
- Itä ja kaakko
- Terassi
- Ei
- Ranta
- Ei rantaa
- Hissi
- Ei
- Kohde on saaressa
- Ei
- Lisätietoa seinien pintamateriaaleista
- tasoitettu ja maalattu betonipinta Värisävy lämmin oranssi/okra
- Lisätietoa lattioiden pintamateriaaleista
- Maalattu betonilattia
- Lisätietoa katon pintamateriaaleista
- tasoitettu ja maalattu betonipinta Värisävy lämmin oranssi/okra
Taloyhtiö ja kiinteistö
- Taloyhtiön nimi
- As. Oy Vantaan Marsinkuja 5
- Isännöitsijätoimisto
- Isännöinti Kärkkäinen Oy
- Isännöitsijän nimi
- Mika Kärkkäinen
- Isännöitsijän sähköposti
- [email protected]
- Isännöitsijän puhelin
- 050 5476738
- Tuotot
- 2340
- Taloyhtiön lisätiedot
- Taloyhtiöllä ei ole nostamattomia lainoja. Taloyhtiöllä ei ole käytössä luottolimiittiä. Yhtiön kiinteistöön on vahvistettu panttikirjoja yhteensä 4.000.000,00 euron arvosta. Niistä 1.059.675,69 euroa on rahalaitoksella vakuutena yhtiön vastuista. Yhtiössä on aiemmin siirretty joitakin ei-kiireellisiä huolto- ja korjaustöitä taloudellisen tilanteen vuoksi. Hoitovastiketta on korotettu talousarvion mukaisesti tilikaudelle 2025, eikä isännöitsijän mukaan ole tällä hetkellä tiedossa lisäkorotustarpeita. Siirretyt työt on osittain toteutettu ja osittain huomioitu vuosien 2025–2027 PTS-suunnitelmassa.
- Tontin pinta-ala
- 80,5 m²
- Tontin omistus
- Oma
- Rakennusmateriaali
- Betoni
- Lämmitysjärjestelmä
- Kaukolämpö
- Ilmanvaihto
- Koneellinen ilmanvaihto
- Vesijohto
- Kunnallisvesi
- Viemäröinti
- Kunnallinen viemäriverkosto
- Kattotyyppi
- Aumakatto
- Katemateriaali
- Huopa
- Lisätietoja kiinteistönhoidosta
- Huoltoyhtiö
- Taloyhtiössä on
- Pesutupa
- Lunastusoikeus yhtiöllä
- Ei
- Lunastusoikeus osakkaille
- Ei
- Kohteesta on energiatodistus
- Kyllä
- Energialuokka
- D2007
- Lisätietoja energiatodistuksesta
- Energialuokka D (ET 200). Energiatodistus on vanhentunut, uutta on tilattu.
- Taloyhtiöön kuuluu
- Kylmäkellari pois käytöstä vuonna 2017.
- Liikenneyhteydet
- Bussipysäkki lähellä, kaupunkiliikenneyhteys ja juna-asema lähellä
- Lisätietoja liikenneyhteyksistä
- Lähin bussipysäkki – n. 150–200 m (yhteydet Tikkurilaan, Korsoon ja Koivukylään) Koivukylän juna-asema – n. 1,9 km (I- ja P-junat → Helsinki, Lentokenttä)
- Paikallistiedot
- Asunto sijaitsee rauhallisella ja luonnonläheisellä Mikkolan alueella, jossa arjen palvelut löytyvät kävelyetäisyydeltä. Lähikaupat (K-Market ja Alepa), päiväkodit sekä Mikkolan koulu ovat noin 400–600 metrin säteellä. Alueella on hyvät ulkoilu- ja liikuntamahdollisuudet sekä vehreät puistoalueet aivan vieressä. Julkinen liikenne toimii sujuvasti HSL-linjoilla, ja lähin bussipysäkki sijaitsee aivan talon läheisyydessä tarjoten yhteydet Tikkurilan ja Korson suuntaan. Alue sopii hyvin niin perheille kuin rauhallista asuinympäristöä arvostaville.
- Palvelut
- Alepa Mikkola K‑Market Mikkola Lidl Koivukylä
- Koulut
- Mikkolan koulu Koivukylän koulu
- Huoneistoon kuuluu yhtiöjärjestyksen mukaan autopaikka
- Pihapaikka ja pistokkeellinen pihapaikka
- Lisätietoja huoneiston autopaikasta
- Autopaikka (pistoke): 15 €/kk, varattavissa taloyhtiöltä.
- Taloyhtiön autopaikat
- Autopaikat yhtiön omistuksessa Pistokepaikka: 15 €/kk Kylmä autopaikka: 10 €/kk
- Sähköpistokepaikkoja
- 12 kpl
- Piha-autopaikkoja
- 25 kpl
- Taloyhtiöllä sauna
- Kyllä
- Kaavatilanne
- Asemakaava
- Lisätiedot kaavoituksesta
- Kohde sijaitsee lentomelualueen tuntumassa, mutta ei lentomelualueella. Lauri Korpisen katu 9 - 0137 Vantaan kaupunki +358 9 839 11 [email protected]
- Kuntotutkimus tehty
- 31.12.2024
- Lisätietoja kunnossapitotarveselvityksestä
- Taloyhtiö on laatinut kunnossapitotarveselvityksen, joka on käsitelty hallituksessa 12.2.2025. Selvityksen mukaan tuleville vuosille on arvioitu seuraavat kunnossapitotarpeet: 2028: Märkätilojen kuntokatselmus 2028: Vesikaton huolto ja kunnostus/uusiminen 2030: Ikkunoiden uusiminen Lukijan on huomattava, että 2028–2030 on hallituksen näkemys kunnossapitotarpeista viiden vuoden aikana. Päätökset mahdollisesti käynnistettävien kunnossapitotöiden ja muutostöiden suunnittelusta, toteutuksesta sekä rahoituksesta tehdään yhtiökokouksessa erikseen. 2028–2030 mainitut toimenpiteet saattavat aikaistua tai myöhentyä. Myyjä ei vastaa taloyhtiön myöhemmin päättämistä kunnossapitotoimenpiteistä ja niistä aiheutuvista huoneistolle tulevista kustannuksista.
- Asbestikartoitus
- Ei
- Lisätietoa asbestikartoituksesta
- Kohde on valmistunut ennen vuotta 1994. Asunnossa ei ole tehty asbestikartoitusta. Lukijan on syytä tiedostaa, että tämän ikäisen rakennuksen rakennusmateriaalit voivat sisältää haitallisia aineita, kuten mm. asbestia ja että ennen rakenteita rikkovaa remonttia tulee teetättää tarvittava haitta-ainetutkimus. Välitysliike kehottaa lukijaa tutustumaan vuonna 2016 uudistuneeseen asbestilakiin huolellisesti ennen mahdollisten saneeraustoimenpiteiden aloittamista
- Taloyhtiön kiinnitykset
- 4 000 000 €
- Taloyhtiön kiinnitysten päivämäärä
- Isännöitsijäntodistuksen päivämäärän mukainen
Tehdyt remontit
1995 Elementtisaumojen uusiminen
1999 Jätekatoksen uusiminen
1999 Parvekeovien uusiminen
2001 Julkisivujen ja parvekkeiden uusiminen
2007 Talosaunojen saneeraus
2010 Kaapeliverkkoon liittyminen
2017 Kylmäkellari poistettu käytöstä
2017 Lämmitysenergiatehokkuuden parannus
2017 Katon paikkakorjauksia
2018 Ulkovalaistuksen uusiminen Led-valoiksi
2023 Katon paikkakorjauksia
2024 Ilmanvaihtojärjestelmän puhdistus, mittaus ja säätö
2025 Salaojitus ja patolevyt
