Mökkitite 74

82350, Tikkala, Tohmajärvi
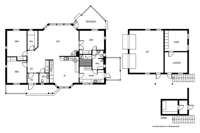
4h, k, kph, s, khh, wc2, vh,
174 000 €
135 m²
Kohteen tyyppi
Omakotitalo
Rakennusvuosi
2003
Seuraava näyttö
Ei tiedossa
Tontti
Oma
Tätä asuntoa myy Ohto Mettälä, Asuntomyyjä, KiLAT
Huoneistokeskus Oy | Joensuu
Asuntoesittely
Viihtyisä omakotitalo Tikkalassa – tilaa, rauhaa ja monipuoliset puitteet arkeen ja vapaa-aikaan Noin 30 minuutin ajomatkan päässä Joensuusta sijaitseva Tikkala tarjoaa maaseudun rauhaa ja hyvät palvelut lähellä. Alueella on koulu, päiväkoti, liikuntasali, pururata ja kuntoportaat aivan lähietäisyydellä. Uimarannalle on matkaa noin 800 metriä, ja kiinteistöllä on lisäksi oma venepaikkaoikeus. Vuonna 2003 rakennettu omakotitalo tarjoaa toimivat ja avarat tilat isommallekin perheelle. Asuinpinta-alaa on 135 m² ja lisäksi 74 m² muita tiloja. Kodissa on kolme makuuhuonetta, olohuone, keittiö, kaksi wc:tä, vaatehuone, kodinhoitohuone, kylpyhuone ja sauna. Talo on suunniteltu hyvällä ja toimivalla pohjaratkaisulla. Pihapiiri on hyvin hoidettu ja monipuolinen: pihalta löytyvät tynnyrisauna, kahden auton autotalli, jonka yhteydessä on kellaritila ja nukkuma-aitta, sekä puuliiteri ja kasvihuone. Talon takaosaa ja sivustaa kiertää laaja katettu terassi, jonka yhteydessä on palju. Tilan koko on noin 9700 m², ja se tarjoaa runsaasti omaa rauhaa sekä tilaa harrastaa. Tontilla on myös puustoa ja hyvät mahdollisuudet esimerkiksi puutarhanhoitoon tai vapaa-ajan puuhiin.
Perustiedot
Sijainti
Mökkitite 74, 82350, Tikkala, Tohmajärvi
Huoneluku
4
Asuinpinta-ala
135 m²
Muu pinta-ala
74 m²
Kokonaispinta-ala
209 m²
Pinta-alan peruste
Pinta-ala ei ole tarkistusmitattu ja todellinen pinta-ala voi olla suurempi tai pienempi, kuin ilmoitettu
Lisätiedot pinta-alasta
Asuinrakennuksen kerrosala 150m2.
Kohteen tyyppi
Omakotitalo
Kerros
1
Rakennusvuosi
2003
Lisätietoja rakennusvuodesta
Käyttöönottokatselmus tehty 22.12.2003.
Käyttöönottovuosi
2003
Kohde myydään vuokrattuna
Ei
Vapautuminen
Sopimuksen mukaan
Hinta ja kustannukset
Myyntihinta
174 000 €
Kokonaissähkön kulutustiedot
15000 kWh / vuosi
Tiemaksut (€/vuosi)
105,72 €
Kiinteistövero (€/vuosi)
531,70 €
Sähköliittymä siirtyy
Kyllä
Neliöhinta
1 288,89 € / m²
Kotivakuutus
Tilat ja materiaalit
Keittiön kuvaus
Kylmäkoneet Miele, Keraaminen liesi Upo, astianpesukone Bosch.
Keittiön lattiat
Laminaatti
Keittiön seinät
Maali
Keittiön varusteet
Jääkaappi, erillinen pakastin, astianpesukone, ja liesituuletin
Liesi
Keraaminen liesi
Kylpyhuoneen seinät
Kaakeli
Kylpyhuoneen lattiat
Laatta
Kylpyhuoneen varusteet
WC-istuin, suihku (kaksi suihkua), suihkuseinä, lattialämmitys, peilikaappi, pesuallas, allaskaappi, ja bidee-suihku
WC Lukumäärä
1
WC:n lattiat
Laatta
WC:n seinät
Maali ja osalaatoitus
Makuuhuoneet
Kahdessa makuuhuoneessa laattalattia
Makuuhuoneiden lukumäärä
3
Makuuhuoneiden seinät
Tapetti
Makuuhuoneiden lattiat
Laminaatti ja laatta
Olohuone
Olohuoneesta kulku suoraan ulos
Olohuoneen seinät
Tapetti ja maali
Olohuoneen lattiat
Laminaatti
Kodinhoitohuoneen varusteet
Pesukoneliitäntä, lattialämmitys, pesuallas, lattiakaivo, lastenhoitopöytä/taso, silityspöytä/taso, kurapiste, pöytätaso, ja keskuspölynimuri
Kodinhoitohuoneen seinät
Kaakeli
Kodinhoitohuoneen lattiat
Laatta
Kohteen säilytystilat
Kaapistot
Sauna
Kyllä
Kiuas
Sähkökiuas
Takka
Takka
Lisätiedot
Asunnon kunto
Hyvä
Parveke
Ei parveketta
Terassi
Kyllä
Lisätietoja terassista
Terassilla Palju
Kohde on saaressa
Ei
Kauppaan ei kuulu
Polttopuut eivät kuulu kauppaan
Taloyhtiö ja kiinteistö
Tontin pinta-ala
9 790 m²
Tontin omistus
Oma
Tontin tyyppi
Tasamaatontti
Tontin myyntityyppi
Koko tontti
Tontin tiedot
Tilalla puustoa UPM:n suuntaa antavan metsäarvion mukaisesti 8 200 euron arvosta.
Käyttö/luovutusrajoitukset
Loppukatselmuspöytäkirjoja ei ole Tohmajärven kunnan rakennusvalvonnan mukaan saatavilla.
Rakennusmateriaali
Puu
Lämmitysjärjestelmä
Sähkö Tyyppi: Vesikiertoinen lattialämmitys Kustannukset: 15000 kWh / vuosi Puu Poistoilmalämpöpumppu Lattialämmitys Uuni
Ilmanvaihto
Koneellinen ilmanvaihto
Vesijohto
Kunnallisvesi
Viemäröinti
Kunnallinen viemäriverkosto
Kattotyyppi
Harjakatto
Katon kunto
Hyvä
Katemateriaali
Tiili
Rakennusoikeus
350
Lisätietoa rakennusoikeudesta
Rakennusoikeutta kunnanrakennusvalvonnan mukaan jäljellä 106m2
Kohteesta on energiatodistus
Ei lain edellyttämää energiatodistusta
Liikenneyhteydet
Bussipysäkki lähellä ja sujuvat yhteydet omalla autolla
Tie perille
Kyllä
Kaavatilanne
Osayleiskaava
Kaavoitustiedot
Tikkalan osayleiskaava, AO (Erillispientalovaltainen asuntoalue).
Kuntotarkastus tehty
17.08.2015
Rakennusvaihe
Valmis
Muut rakennukset
Autotalli
Lisätietoa muista rakennuksista
Kiinteistöllä autotalli jonka yhteydessä lämmin varastotila, kellari sekä nukkuma-aitta, auto/venekatos. puuliiteri, kasvihuone jolla oma terassi, tynnyrisauna.