Länsimetsäntie 29 B

65280, Gerby, Vaasa
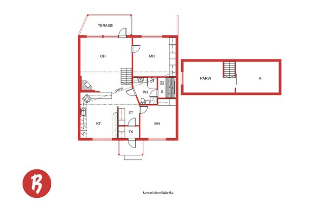
3-4 H + K + S + PARVI + LASITETTU TERASSI
185 000 € (2 312,50 € / m²)
80 m²
Kohteen tyyppi
Rivitalo
Rakennusvuosi
2004
Seuraava näyttö
Ensiesittely 21.12.2025 klo 12.50 - 13.20
Yhtiövastike
186 € / kk
Tontti
Vuokra
Tätä asuntoa myy Roy Jakobsson
Asunto Björndahl Vaasa LKV Oy
Asuntoesittely
Tämä valoisa ja tilava rivitaloasunto sijaitsee rauhallisella Gerbyn asuinalueella. Vuonna 2004 valmistunut koti tarjoaa erinomaiset puitteet perhe-elämälle. Asunnon 80 + 19,5 neliömetriä jakautuvat kahteen kerrokseen, ja lisätilaa tuo lasitettu eteläterassi, joka toimii mukavana lisähuoneena lähes ympäri vuoden. HETI VAPAA! Asunnossa on hyvä ja toimiva pohjaratkaisu. Keittiö on tilava ja käytännöllinen. Sieltä löytyy runsaasti laskutilaa vaativammallekin kotikokille. Kolme makuuhuonetta tarjoaa mukavasti tilaa perheenjäsenille tai vaikkapa kotitoimistolle. Olohuoneen lämpöä ja tunnelmaa lisää varaava takka, joka on oiva lisä talven kylmiin iltoihin. Asunnosta löytyy myös ilmanlämpöpumppu, joka viilentää kesähelteillä, ja tuo mukavuutta ja energiatehokkuutta ympäri vuoden. Sauna ja kylpyhuone ovat tilavat ja hyvin varustellut. Koko alakerran lattialämmitys tuo mukavuutta arkeen. Asuntoon kuuluu myös keskuspölynimuri, ulkovarasto, autokatos- ja pihapaikka, mitkä helpottavat arjen sujuvuutta. Alueella on hyvät liikenneyhteydet, ja lähistöltä löytyvät niin bussipysäkit kuin erinomaiset pyörätiet. Gerby on tunnettu viihtyisästä ja perheystävällisestä ympäristöstään. Läheltä löytyvät päiväkoti ja koulu tekevät tästä kodista erinomaisen vaihtoehdon lapsiperheille. Tämä koti on erinomainen valinta perheelle, joka arvostaa tilaa ja mukavuutta rauhallisella alueella. Tartu tilaisuuteen ja tee tästä asunnosta uusi kotisi! Soita Roy Jakobsson 050 3645 111 ja varaa itsellesi yksityisesittely! ___________ Denna ljusa och rymliga radhuslägenhet ligger i det lugna bostadsområdet Gerby. Huset är byggt 2004 och erbjuder utmärkta förutsättningar för familjelivet. Lägenhetens 80 + 19,5 kvadratmeter är fördelade på två våningar, och det inglasade terrassen mot säder ger extra utrymme, vilket fungerar som ett trivsamt extra rum nästan året runt. GENAST LEDIG! Lägenheten har en trivsam och funktionell planlösning. Köket är både rymligt och praktiskt. Där finns rikligt med arbetsyta även för den mest krävande hemmakocken. Tre sovrum erbjuder gott om plats för familjemedlemmar eller kanske ett hemmakontor. Vardagsrummets värme och atmosfär förstärks av en ackumulerande spis, vilket är ett utmärkt tillskott under kalla vinterkvällar. Lägenheten har också en luftvärmepump som kyler under sommarhettan, och ger komfort och energieffektivitet året runt. Bastun och badrummet är rymliga och välutrustade. Golvvärme i hela nedervåningen ger komfort i vardagen. Lägenheten har även en centraldammsugare, ett uteförråd, en biltaksplats och en parkeringsplats, vilket underlättar vardagens smidighet. Området har goda transportförbindelser, och i närheten finns både busshållplatser och utmärkta cykelvägar. Gerby är känt för sin trivsamma och familjevänliga miljö. I närheten finns daghem och skola, vilket gör detta hem till ett utmärkt alternativ för barnfamiljer. Detta hem är ett utmärkt val för en familj som värdesätter utrymme och komfort i ett lugnt område. Ta tillfället i akt och gör denna lägenhet till ditt nya hem! Ring Roy Jakobsson 050 3645 111 och boka en privat visning!
Perustiedot
Sijainti
Länsimetsäntie 29 B, 65280, Gerby, Vaasa
Omistusmuoto
Omistusasunto
Huoneluku
4
Asuinpinta-ala
80 m²
Muu pinta-ala
19,5 m²
Kokonaispinta-ala
99,5 m²
Pinta-alan peruste
Yhtiöjärjestyksen mukainen, Isännöitsijäntodistuksen mukainen, (Pinta-ala ei ole tarkistusmitattu ja todellinen pinta-ala voi olla suurempi tai pienempi, kuin ilmoitettu)
Kohteen tyyppi
Rivitalo
Kerros
1 / 2
Rakennusvuosi
2004
Käyttöönottovuosi
2004
Kohde myydään vuokrattuna
Ei
Vapautuminen
Heti
Hinta ja kustannukset
Velaton hinta
185 000 €
Myyntihinta
185 000 €
Kokonaissähkön kulutustiedot
11500 kWh / vuosi
Yhtiövastike
Hoitovastike 180 € / kk (2,25 € / m²), Muu vastike 6 € / kk (TV- ja mediavastike), Yhtiövastike yhteensä 186 € / kk
Neliöhinta
2 312,50 € / m²
Kotivakuutus
Tilat ja materiaalit
Keittiön lattiat
Parketti
Keittiön seinät
Lasikuitutapetti
Keittiön varusteet
Jääkaappi, erillinen pakastin, liesi, liesituuletin, ja uuni
Liesi
Keraaminen liesi
Kylpyhuoneen seinät
Kaakeli
Kylpyhuoneen lattiat
Laatta
Kylpyhuoneen varusteet
WC-istuin, suihku, suihkuseinä, lattialämmitys, peilikaappi, pesuallas, allaskaappi, ja bidee-suihku
Makuuhuoneiden lukumäärä
3
Makuuhuoneiden seinät
Tapetti ja maali
Makuuhuoneiden lattiat
Parketti ja laminaatti
Olohuoneen seinät
Tapetti
Olohuoneen lattiat
Parketti
Kohteen säilytystilat
Kylmä ulkovarasto
Sauna
Kyllä
Kiuas
Sähkökiuas
Takka
Varaava takka
Lisätiedot
Asunnon kunto
Hyvä
Terassi
Kyllä
Lisätietoja terassista
Lasitettu terassi.
Muuta kauppaan kuuluvaa
Asunnossa on keskuspölynimuri.
Taloyhtiö ja kiinteistö
Taloyhtiön nimi
Asunto Oy Vaasan Länsimetsäntie 29 B
Isännöitsijän nimi
Håkan Bodö / Hallituksen pj
Isännöitsijän puhelin
0500-763031
Tontin pinta-ala
1 856 m²
Tontin omistus
Vuokra
Maanvuokraaja
Vaasan Kaupunki
Tontin tiedot
Vaasan Kaupungin rakennusvalvonta.
Tontin vuosivuokra
2 350 €
Vuokra-aika päättyy
31.12.2053
Rakennusmateriaali
Puu
Lämmitysjärjestelmä
Sähkö Tyyppi: Lattialämmitys suora sähkö Kustannukset: 11500 kWh / vuosi Lattialämmitys Ilmalämpöpumppu
Ilmanvaihto
Koneellinen IV lämmön talteenotolla
Vesijohto
Kunnallisvesi
Viemäröinti
Kunnallinen viemäriverkosto
Kattotyyppi
Harjakatto
Katemateriaali
Tiili
Lisätietoja kiinteistönhoidosta
Asukkaat
Taloyhtiössä on
Ulkovarasto
Lunastusoikeus yhtiöllä
Ei
Lunastusoikeus osakkaille
Ei
Kohteesta on energiatodistus
Kyllä
Energialuokka
C2018
Energiatodistuksen voimassaolo
6.6.2035
Liikenneyhteydet
Bussipysäkki lähellä, sujuvat yhteydet omalla autolla, hyvät pyöräilytiet ja hyvä kulkuyhteys
Huoneistoon kuuluu yhtiöjärjestyksen mukaan autopaikka
Pistokkeellinen katospaikka ja pihapaikka
Autokatokset
4
Piha-autopaikkoja
4 kpl
Kaavatilanne
Asemakaava
Lisätiedot kaavoituksesta
Vaasan Kaupungin kaavoitusosasto.
Asbestikartoitus
Ei
Tehdyt remontit
Terassikatot vaihdettu B4, B5 2009 Terassien lasitus 2009 Raput öljykäsitelty 2010 Lisätty pihamursketta 2010 Yleisalueen istutuksia 2010 Suojakatos asennettu ILP ulkoyksikölle 2011 Teknillisen tilan tiivistys 2011 Terassikatot vaihdettu B6, B7 2012 Ränniä tiivistetty 2012 Takapihaprojekti 2013 Asuntojen vesimittarit vaihdettu 2014 LVI/ilmastointi puhdistus ja säätö/tasapainotus 2015 Päävesimittari vaihdettu 2015 Katto pesty 2016 Kattotiilien vaihto 10-15 kpl 2016 Talon maalaaminen 2016 Etupihan muuria aloitettu 2016 Salaoja+oja kaivuu etupiha 2017 Katot, sammal poisto 2017 Ilmastointiputkien lisäeristys asunnoissa B4 ja B5 2018 Autokatoksen pohjan parannus 2019 Päävesimittari vaihdettu etäluettavaan 2021 Bio Comp tiilien käsittely autokatos 2021 Kuistien lumiesteiden kiinnityksien korjaus, kattotiilien vaihtoa, bituminauha vaihdettu 2022 Vaihdettu kaikkien terassien valokatteet 2022 BioComp tiilien käsittely / putsaus kattotiilet as. 6-7 pohjoispuoli 2023 Energiatodistus laadittu 2025 Nuohoukset hoidetaan joka vuosi Ja paljon muuta huoltotoimenpiteitä tehty vuosien aina.
Tulevat remontit
Lähinnä huoltotoimenpiteitä Vesivaraajien vaihto, Ilmalämpöpumpunvaihto, Pihan asfaltointi?