Koskiharjuntie 9
16800, Hämeenkoski, Hollola
5h,takkah,k,s
69 000 €
185 m²

Tätä asuntoa myy Kirsi Suominen, LKV, YKV, Kaupanvahvistaja
LKV Osaava

Sijainti
Asuntoesittely
Tilava koti Hämeenkoskella
Tämä viehättävä omakotitalo Hämeenkoskella tarjoaa tilaa ja mukavuutta isommallekin perheelle. 1 1/2- kerroksinen talo on rakennettu vuonna 1979 ja sijaitsee omalla 1745 m² rinnetontilla. Asuintilojen pinta-alaa on 185 m² ja lisäksi löytyy runsaasti varastotilaa sekä kahden auton katos. Sisätiloissa on takka, joka tuo lämpöä ja tunnelmaa talon sydämeen. Saunaosasto tarjoaa rentoutumismahdollisuuksia, ja yläkerran parveke avautuu kauniisti kaakkoon.
Sijainti on erinomainen: lähikaupat, apteekki ja kirjasto ovat vain 700 metrin päässä ja ala-asteelle on matkaa 2,2 kilometriä. Hollolan kuntakeskuksen palvelut, kuten yläaste ja lukio ovat noin 20 kilometrin päässä.
Tartu tilaisuuteen ja tule tutustumaan tähän monipuoliseen kotiin, joka tarjoaa erinomaiset puitteet perhe-elämälle rauhallisessa ympäristössä.Perustiedot
- Sijainti
- Koskiharjuntie 9, 16800, Hämeenkoski, Hollola
- Huoneluku
- 6
- Asuinpinta-ala
- 185 m²
- Muu pinta-ala
- 73 m²
- Kokonaispinta-ala
- 258 m²
- Pinta-alan peruste
- Pinta-ala ei ole tarkistusmitattu ja todellinen pinta-ala voi olla suurempi tai pienempi, kuin ilmoitettu
- Lisätiedot pinta-alasta
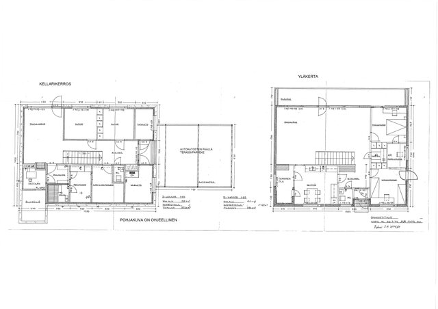
- Asuintilat n. 185 m², joihin on luettu yläkerrasta k,2m, ompeluh, vh,eteinen, tuulikaappi ja WC ja alakerrasta takkah, 2h,eteinen,s,pesuh,khh,pukuh,WC. Muut tilat n. 26 m², joihin on luettu yläkerrasta nykyinen tekninen tila (entiset kylmiö ja talousvarasto) ja alakerrasta 2 varastoa, pannuhuone sekä 2-auton autokatokset.
- Kohteen tyyppi
- Omakotitalo
- Kerros
- 2
- Rakennusvuosi
- 1979
- Käyttöönottovuosi
- 1979
- Kohde myydään vuokrattuna
- Ei
- Vapautuminen
- 1-2 kk omistusoikeuden siirtymisestä
Hinta ja kustannukset
- Myyntihinta
- 69 000 €
- Keskimääräinen lämmityskustannus
- 210 € / kk
- Kiinteistövero (€/vuosi)
- 594 €
- Sähköliittymä siirtyy
- Kyllä
- Neliöhinta
- 372,97 € / m²
- Lisätietoja maksusta
- Lämmityskustannus n. 210 €/kk (n. 2500 €/v) on muodostunut polttopuun ostamisesta. Lisäksi sähkön vuosikulutus on noin 6000 kWh/v, joka sisältää taloussähkön sekä satunnaisen vesivaraajan lämmittämisen, sillä pääasiassa vesivaraaja lämpiää puilla.
Tilat ja materiaalit
- Keittiön lattiat
- Muovimatto
- Keittiön seinät
- Maali
- Keittiön varusteet
- Jääkaappipakastin (ostettu 2011), astianpesukone (Asennetaan ehjä kone kuvassa olevan rikkinäisen tilalle), liesi (ostettu 2011), liesituuletin, erillinen pakastin (pieni pakastearkku keittiössä), ja jääkaappi (pieni erillinen jääkaappi keittiössä)
- Liesi
- Keraaminen liesi
- Kylpyhuoneen seinät
- Kaakeli
- Kylpyhuoneen lattiat
- Laatta
- Kylpyhuoneen varusteet
- Suihku
- WC Lukumäärä
- 2
- WC:n lattiat
- Laatta
- WC:n seinät
- Muovitapetti ja kaakeli
- Makuuhuoneiden seinät
- Maali ja tapetti
- Makuuhuoneiden lattiat
- Laminaatti ja muovimatto
- Olohuoneen seinät
- Tapetti
- Olohuoneen lattiat
- Parketti
- Kodinhoitohuoneen varusteet
- Pesukoneliitäntä (Pesukoneen jätevedet on johdettu alakerran WC:n viemäriin)
- Kodinhoitohuoneen seinät
- Kaakeli ja tapetti
- Kodinhoitohuoneen lattiat
- Muovimatto
- Kohteen säilytystilat
- Vaatehuone, kylmä ulkovarasto ja kaapistot
- Sauna
- Kyllä
- Kiuas
- Sähkökiuas
- Takka
- Takka ja avotakka johon lisätty takkasydän (ei varaava)
Lisätiedot
- Parveke
- On parveke
- Parvekkeen ilmansuunta
- Kaakko
- Parvekkeen (tai parvekkeiden) kokonaispinta-ala
- 20 m²
- Terassi
- Kyllä
- Lisätietoja terassista
- Autokatoksen päällä on terassi. Terassin lattiana on autokatoksen kattopinnoite.
- Piha
- Rinnetontti nurmella
- Ranta
- Ei rantaa
- Hissi
- Ei
- Muuta kauppaan kuuluvaa
- Polttopuut kuuluvat kauppaan
- Muut kaupan kannalta merkittävät tiedot
- Metallinen 4000 litran öljysäiliö on käytetty tyhjäksi vuonna 2013. Säiliössä ei ole uudenlaista täyttöpäätä.
Taloyhtiö ja kiinteistö
- Tontin pinta-ala
- 1 745 m²
- Tontin omistus
- Oma
- Tontin tyyppi
- Rinnetontti
- Tontin myyntityyppi
- Koko tontti
- Rakennusmateriaali
- Betoni, puu ja tiiliverhoilu
- Lämmitysjärjestelmä
- Lämmityskattila puilla. 1500 litran vesivaraajaa voi lämmittää myös sähköllä. Takka
- Ilmanvaihto
- Painovoimainen ilmanvaihto
- Vesijohto
- Kunnallisvesi
- Viemäröinti
- Kunnallinen viemäriverkosto
- Kattotyyppi
- Harjakatto
- Katemateriaali
- Pelti
- Rakennusoikeus
- 349
- Rakennusoikeus e-luku
- 0.2
- Kohteesta on energiatodistus
- Ei lain edellyttämää energiatodistusta
- Lisätietoja liikenneyhteyksistä
- Useimmin kulkevat linja-autot (mm. pikavuorot) Koski-kartanon kohdalla (12-tie), kävellen 1,5 km. Linja-autot myös 0,7 km.
- Tie perille
- Kyllä
- Palvelut
- Ruokakauppa, apteekki, kirjasto 0,7 km. Terveyspalvelut Hollolan kuntakeskuksessa n. 20 km tai Lammin keskustassa 14 km
- Koulut
- Ala-aste 2,2 km, Yläaste ja lukio Hollolan kuntakeskuksessa n. 20 km
- Kaavatilanne
- Asemakaava
- Kaavoitustiedot
- Asemakaava (ohjeellinen tonttijako), vahvistamispv 13.4.1973. Yleiskaava, vahvistamispv 10.5.2021
- Rakennusvaihe
- Valmis
- Asbestikartoitus
- Ei
Tehdyt remontit
Edellisten omistajien aikaan on joskus uusittu vesikatto (ei aluskatetta). Vuosiluvusta ei ole tietoa. Putkitettu teräspiippu asennettu lämmityskattilalle 2011. Piippu pellitetty 2011. Avotakkaan asennettu takkasydän 2023. Käyttövesiputket uusittu 2014.
