Konkolankatu 14
33820, Rautaharkko, Tampere
4h, 2k, 2wc, pukuhuone, pesuhuone, sauna, varastotiloja.
186 000 €
170 m²

Tätä asuntoa myy Niko Korhonen, Asuntomyyjä, Osakas
Muutos LKV | Pirkanmaan Laatuvälitys Oy

Sijainti
Asuntoesittely
Tämä viehättävä omakotitalo Tampereen Rautaharkossa tarjoaa tilavan ja kodikkaan asuinympäristön perheelle, joka arvostaa sekä rauhallista asuinaluetta että kaupungin läheisyyttä. Vuonna 1953 valmistunut talo sijaitsee 1014 m² Tampereen kaupungin vuokratontilla. Vuokrasopimus on uusittu ja on voimassa vuoteen 2051. Talo on kokenut vuosien varrella lukuisia remontteja, kuten käyttövesiputkien ja viemärien uusimisen vuonna 2013 sekä osittain ikkunoiden ja ulko-ovien uusimisen vuonna 2019.
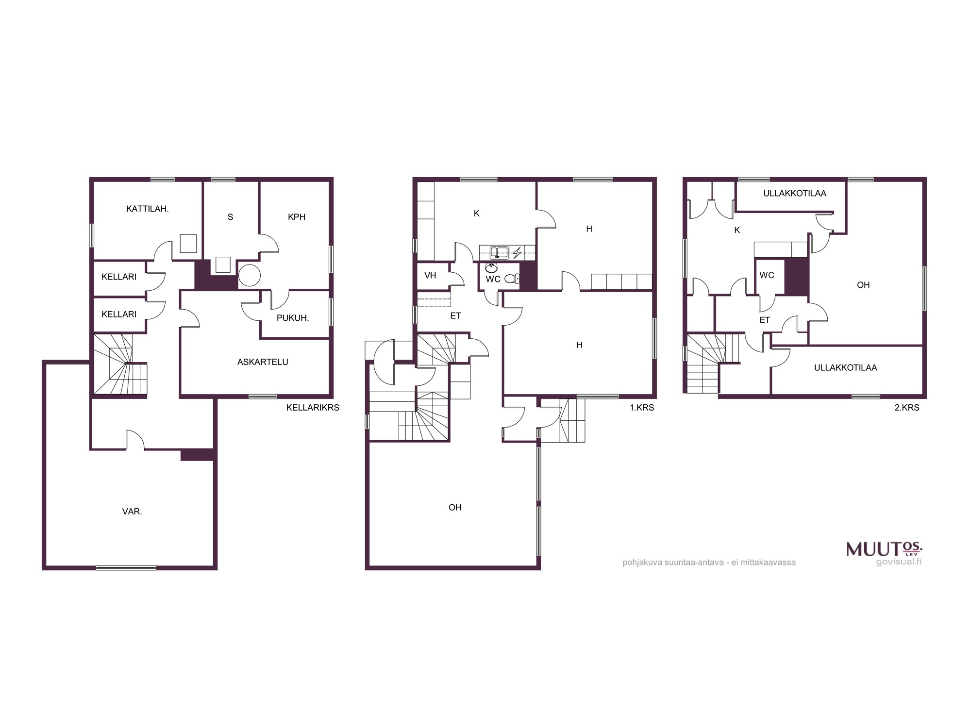
Talon sisätilat ovat avarat ja valoisat. Keskikerroksessa on kaksi makuuhuonetta, avara olohuone, keittiö ja talon toinen wc. Yläkerrassa yksiö omalla wc:llä ja keittiöllä. Alakerrassa pesuhuone ja saunatilat sekä paljon varastotiloja.
Puutarha ja piha-alue ovat ihanteelliset lasten leikkeihin tai puutarhaharrastuksiin. Autotalli on rakennettu tontin rajalle, toinen puoli on naapurin käytössä. Talon lämmitysjärjestelmä toimii öljyllä.
Rautaharkko on rauhallinen asuinalue, josta on hyvät kulkuyhteydet Tampereen keskustaan. Läheltä löytyvät niin koulut, päiväkodit kuin monipuoliset palvelutkin. Prismaan matkaa noin kilometri. Tämä koti tarjoaa ihanteelliset puitteet perhe-elämälle, ja se on valmis toivottamaan uudet asukkaat tervetulleiksi.
Tartu tilaisuuteen ja tee tästä talosta oma unelmiesi koti!
Lisätiedot ja esittelyt:
Niko Korhonen
Asuntomyyjä, osakas
044 3366 063
[email protected]
www.nikokorhonen.com
https://muutoslkv.fi/niko-korhonen
www.facebook.com/muutoslkvnikokorhonen
IG: @muutoslkvnikokorhonen
Pohjakuva

Perustiedot
- Sijainti
- Konkolankatu 14, 33820, Rautaharkko, Tampere
- Huoneluku
- 4
- Asuinpinta-ala
- 170 m²
- Muu pinta-ala
- 90 m²
- Kokonaispinta-ala
- 260 m²
- Pinta-alan peruste
- Pinta-ala ei ole tarkistusmitattu ja todellinen pinta-ala voi olla suurempi tai pienempi, kuin ilmoitettu
- Lisätiedot pinta-alasta
- Pinta-alat perustuvat myyjältä saatuihin tietoihin ja rakennuspiirustuksista laskettuihin arvioihin. Pinta-aloja ei ole tarkistusmitattu, mitattaessa pinta-alat saattavat olla ilmoitettua suurempia tai pienempiä. Hinta ei ole pinta-alaperusteinen. Asuintilojen pinta-ala on laskettu rakennuspiirustuksista ja siihen on huomioitu kaikki asuinkäytössä olevat tilat, muihin tiloihin on laskettu ullakot, varastotilat, tekniset tilat ja askartelutila.
- Kohteen tyyppi
- Omakotitalo
- Kerros
- 3
- Rakennusvuosi
- 1953
- Lisätietoja rakennusvuodesta
- Asuinrakennuksen laajentamiseen saatu lupa 304/76 vuonna 1976, joka loppukatselmoitu 1976. Kaikista kiinteistöllä sijaitsevista rakennuksista ei ole saatavilla alkuperäisiä rakennuslupa-asiakirjoja eikä tietoa loppukatselmuksista.
- Kohde myydään vuokrattuna
- Ei
- Vapautuminen
- Sopimuksen mukaan
Hinta ja kustannukset
- Myyntihinta
- 186 000 €
- Neliöhinta
- 1 094,12 € / m²
- Lisätietoja maksusta
- Kiinteistövero 112,19 €/2025 Öljyä mennyt noin 3500 l/vuosi. Sähköä mennyt noin 670 €/vuosi. Vesi ja jätevesi kulutuksen mukaan. Hulevesimaksu kaupungin taksoituksen mukaan, noin 60 €/vuosi Jätehuolto paikallisen urakoitsijan taksoituksen mukaan. Esitetyt asumiskustannukset perustuvat nykykäyttöön ja voivat siten olla pienempiä tai suurempia, riippuen asukasmäärästä, asumistottumuksista sekä palveluntarjoajasta.
Tilat ja materiaalit
- Keittiön lattiat
- Muovimatto
- Keittiön seinät
- Kaakeli
- Keittiön varusteet
- Jääkaappipakastin ja astianpesukone
- Liesi
- Sähköhella
- Kylpyhuoneen seinät
- Muovimatto ja kaakeli
- Kylpyhuoneen lattiat
- epoksi pinnoite
- Kylpyhuoneen varusteet
- Suihkukaappi ja pesukoneliitäntä
- WC Lukumäärä
- 2
- WC:n lattiat
- Muovimatto
- WC:n seinät
- Tapetti
- Makuuhuoneiden lukumäärä
- 3
- Makuuhuoneiden seinät
- Tapetti
- Makuuhuoneiden lattiat
- Muovimatto
- Olohuoneen seinät
- Tapetti
- Olohuoneen lattiat
- puu
- Sauna
- Kyllä
- Kiuas
- Puukiuas
- Takka
- Takka
Lisätiedot
- Asunnon kunto
- Hyvä
- Piha
- Autotalli rakennettu rajalle.
Taloyhtiö ja kiinteistö
- Tontin pinta-ala
- 1 014 m²
- Tontin omistus
- Vuokra
- Tontin tyyppi
- Tasamaatontti
- Tontin myyntityyppi
- Koko tontti
- Maanvuokraaja
- Tampereen kaupunki
- Tontin vuosivuokra
- 1 588,56 €
- Vuokra-aika päättyy
- 30.04.2051
- Rakennusmateriaali
- Betoni ja puu
- Lämmitysjärjestelmä
- Öljy Takka
- Ilmanvaihto
- Painovoimainen ilmanvaihto
- Vesijohto
- Kunnallisvesi
- Viemäröinti
- Kunnallinen viemäriverkosto
- Kattotyyppi
- Harjakatto
- Katemateriaali
- Pelti
- Lisätietoa rakennusoikeudesta
- Asemakaavan mukainen sallittu kerrosala asuinrakennukselle 180 m² ja talousrakennukselle 40 m². Jäljellä olevaa rakennusoikeutta ei pystytä yksiselitteisesti määrittelemään, koska se vaatisi nykyisen rakennuksen tarkistusmittausta.
- Kohteesta on energiatodistus
- Ei lain edellyttämää energiatodistusta
- Tie perille
- Kyllä
- Kaavatilanne
- Asemakaava
- Kaavoitustiedot
- Sitova tonttijako. Yleiskaava. Tampereen kaupunki.
- Asbestikartoitus
- Ei
- Lisätietoa asbestikartoituksesta
- Asbestikartoituksen tarve on huomioitava kaikessa remontoinnissa.
- Muut rakennukset
- Autotalli
- Lisätietoa muista rakennuksista
- Autotallirakennuksen arvioitu rakennusvuosi 1963.
Tehdyt remontit
1980 pintaremonttia sisällä
1984 ulkomaalaus
1985 pesuhuoneen ja saunan lattiaan akryylibetoni
1987 yläkerran keittiön kaapistot uusittu
1988 alakerran keittiön kaapistot, hella ja jääkaappi/pakastin uusittu, olohuoneen seinät
1988 pesu- ja pukuhuoneen seinät muovimatto
1992 pesuhuoneen 2 seinää kaakeloitu
1992 alakerran monitoimitilan katto, seinät ja lattia uusittu
1992 keittiön katto paneloitu
1995 ikkunapuitteet kyllästetty
1996 vesikatto ja -kuorut uusittu
1998 tonttijohto ja vesimittari uusittu
2000 autotallin katto ja -kourut uusittu, maalaus
2000 makuuhuoneen maalaus ja levytys
2000 yläkerran keittiön hana uusittu
2001 pannuhuoneeseen uusittu kattila, öljysäiliö, pumppu ja automaatio
2006 pesuhuoneen suihkuhana uusittu
2007 alakerran huoneen lattiaan lamelli, levytys, maalaus, tapetointi
2007 sähköliitäntä uusittu maakaapeliin
2008 talon ulkomaalaus
2008 yläkerran kunnostus, levytys, lamelli, maalaus, tapetointi, hella, porrashuoneen maalaus
2009 sähkömittarit vaihdettu kaukoluettaviksi
2009 suihkunurkka alakertaan, ulkoseinään ullakolle säleiköt
2012 jääkaappi/pakastin uusittu
2013 käyttövesiputket, viemärit ja vesikalusteet uusittu
2013 kiuas uusittu
2014 keskuspölynimurin letku uusittu
2015 autotallin oven uusintapanelointi, maalaus ja lattia
2015 alakäytävän maalaus ja matto
2016 keskuspölynimurin uusinta
2019 ulko-ovet ja olohuoneen ikkunat uusittu
2020 autotallin itä-, pohjois- ja länsi maalattu
2024 kiuas uusittu
2025 vesimittari etäluettavaksi
