Koivulantie 24
12600, Läyliäinen, Loppi
4h, k, 2xph, 2xwc, 2xsauna, vh, takkah, 2xylh, varasto, autotalli
257 000 €
263 m²

Tätä asuntoa myy Can Zhang, Myyntineuvottelija
Roof Hyvinkää | ROOF LKV Keski-Uusimaa Oy

Sijainti
Asuntoesittely
Tämä vuonna 1999 valmistunut omakotitalo sijaitsee omalla 4443 m2 tontilla luonnonrauhan keskellä.
Kaksikerroksinen koti tarjoaa runsaasti tilaa ja monipuolisia mahdollisuuksia isommallekin perheelle.
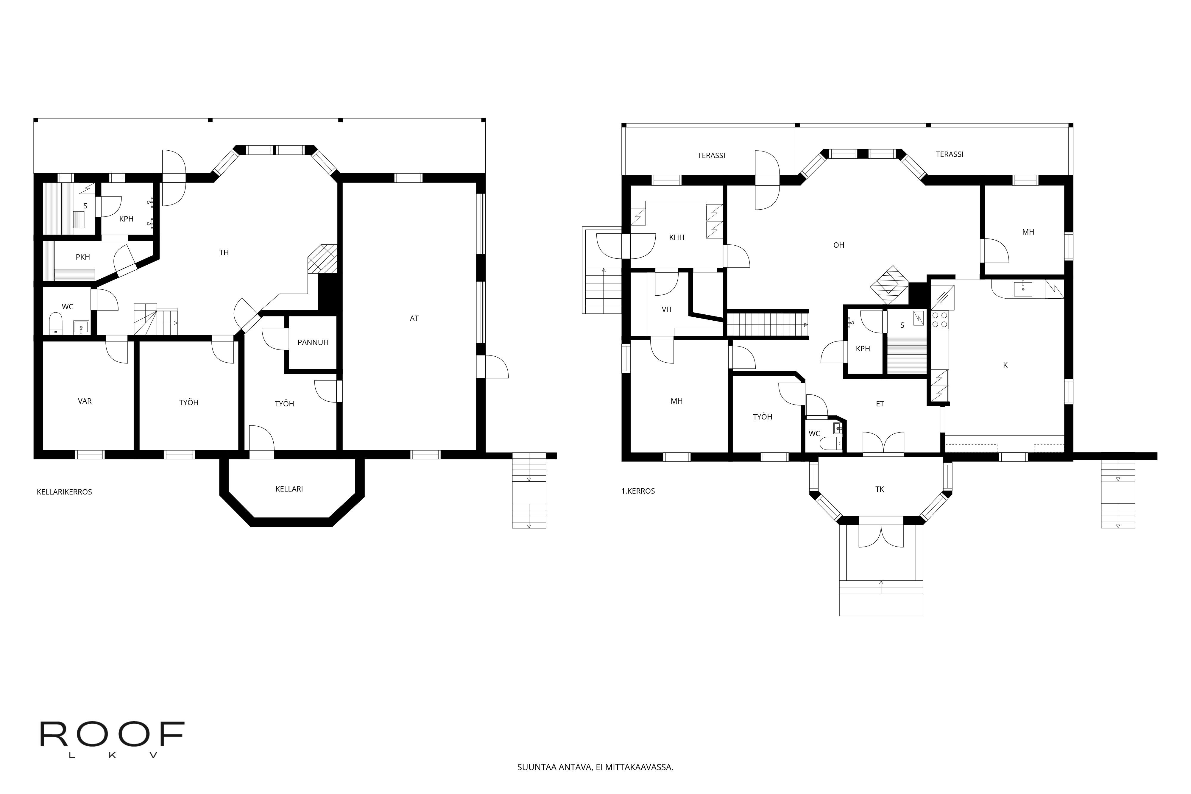
Yläkerrassa sijaitsevat veranta, eteinen, olohuone, kolme makuuhuonetta sekä tilava keittiö, jossa on leivinuuni ja puuhella. Lisäksi yläkerrasta löytyvät puusauna, suihku, kodinhoitohuone, vaatehuone ja erillinen wc.
Alakerrasta löytyvät toinen olohuone, sähkösauna, suihku, wc, työhuone, josta on käynti autotalliin ja kylmäkellariin, sekä kaksi varastohuonetta - joista toisen voi halutessaan muuttaa helposti lisämakuuhuoneeksi.
Lämmityksestä huolehtii vuonna 2020 asennettu maalämpö vesikiertoisella lattialämmityksellä. Lisäksi talossa on useita tulisijoja, jotka tuovat lämpöä ja tunnelmaa. Rakennuksessa on koneellinen ilmanvaihto lämmön talteenotolla ja energialuokka on C2018.
Pihapiiri on vehreä ja monipuolinen. Pihalla on läpivirtaava lampi sekä tunnelmallinen kota, jossa voi viettää iltaa ympäri vuoden. Lisäksi käytössä on tilava, noin 48,5 m² autotalli.
Tämä koti yhdistää maalaisrauhan ja toimivan arjen - maalämpö, tilavat asuintilat ja luonnonläheinen ympäristö tekevät asumisesta mukavaa ja sujuvaa.
Lopen keskusta ja sen monipuoliset palvelut ovat noin 10-15 kilometrin päässä, ja yhteydet Riihimäen ja Hämeenlinnan suuntiin ovat hyvät. Matkat lähimpiin kaupunkeihin ovat sujuvat: Hyvinkäälle on noin 25 km, Riihimäelle noin 30 km ja Helsinkiin noin 60 km.
Palvelut Suomeksi, service in English and in Chinese!
ESITTELY & MYYNTI:
Can (Kani) Zhang
050 571 3471
[email protected]Pohjakuva

Perustiedot
- Sijainti
- Koivulantie 24, 12600, Läyliäinen, Loppi
- Huoneluku
- 5
- Asuinpinta-ala
- 263 m²
- Muu pinta-ala
- 61 m²
- Kokonaispinta-ala
- 324 m²
- Lisätiedot pinta-alasta
- Epävirallisen rakennus- ja huoneistorekisterioteen mukaan (24.10.2025) huoneistoala on 263 m2, kerrosala on 229 m2 ja kokonaisala 363 m2. Lisäksi talousrakennuksen kerrosala on 29 m2. Muut tilat pääpiirustuksen (pohja) mukaan: Autotalli 48,5 m2 Lämmönjakohuone 3,5 m2 Kellari 9,3 m2 Pinta-alaa ei ole tarkistusmitattu. Edellä mainitut pinta-alat saattavat tämän ikäisessä kohteessa poiketa olennaisestikin asuinrakennusten nykyisten mittaustapojen ja standardien mukaan laskettavasta asuintilojen pinta-alasta. Asuinrakennuksen todellinen asuinpinta-ala voi siis olla esitteessä mainittua pienempi tai suurempi. Ainoa tapa varmistua todellisista pinta-aloista on teettää pinta-alojen tarkistus
- Kohteen tyyppi
- Omakotitalo
- Kerros
- 2
- Rakennusvuosi
- 1999
- Lisätietoja rakennusvuodesta
- Epävirallisen rakennus- ja huoneistorekisterioteen mukaan (24.10.2025) käyttöönottopäivämäärä on 30.03.1999. Loppukatselmuspöytäkirja 17.07.2001
- Käyttöönottovuosi
- 1999
- Kohde myydään vuokrattuna
- Ei
- Vapautuminen
- Sopimuksen mukaan
Hinta ja kustannukset
- Myyntihinta
- 257 000 €
- Tiemaksut (€/vuosi)
- 108,40 €
- Kiinteistövero (€/vuosi)
- 420,86 €
- Sähköliittymä siirtyy
- Kyllä
- Neliöhinta
- 977,19 € / m²
- Lisätietoja maksusta
- Likasäiliön tyhjennys on suoritettu kaksi kertaa vuodessa, kustannus noin 150 € / kerta. Kiinteistössä on oma sähkön tuotanto, ja vuoden aikana on ostettu sähköä verkosta 10 672,42 kWh sekä myyty ylituotantoa 1 846 kWh. Kiinteistöverotus tarkistetaan vuosittain ja muutokset veroon ovat mahdollisia. Kulutusperusteiset kustannukset voivat vaihdella merkittävästikin riippuen mm. sopimuksista, kulutustottumuksista ja henkilömääristä. Todelliset kustannukset voivat siis olla ilmoitettua suuremmat tai pienemmät. Lämmityskulut vaihtelevat jonkin verran kuukausittain. Talviaikaan alakerran ja yläkerran takkaa sekä keittiön leivinuunia on käytetty säännöllisesti lämmitykseen. Talossa on lisäksi maalämpö sekä aurinkopaneelit. Viime vuoden toteutuneet sähkönkulut löytyvät liitteestä.
Tilat ja materiaalit
- Keittiön kuvaus
- Varustus: Induktioliesi, Liesituuletin, Uuni, Hana, Kaapisto, Allas, Astianpesukone, Jääkaappipakastin, Leivinuuni ja liesi Seinämateriaali: Laatta, Maali Lattiamateriaali: Laatta
- Kylpyhuone
- Molemmissa kerroksissa kylpyhuone ja sauna. Varustus: Suihku, Lattialämmitys. Seinämateriaali: Laatta Lattiamateriaali: Laatta
- Erillinen WC
- Molemmissa kerroksissa erillinen WC. Varustus: Allas, Allaskaappi, Peilikaappi, Bidee, WC-istuin, Lattialämmitys. Seinämateriaali: Osalaatoitus Lattiamateriaali: Laatta
- Makuuhuoneet
- Makuuhuone 1 Varustus: Vaatehuone Seinämateriaali: Maali Lattiamateriaali: Laminaatti Makuuhuone 2 Seinämateriaali: Tapetti Lattiamateriaali: Kumimatto Makuuhuone 3 Seinämateriaali: Tapetti Lattiamateriaali: Kumimatto Makuuhuone 4 Lattiamateriaali: Kumimatto
- Olohuone
- Varustus: Takka Seinämateriaali: Maali, Lasikuitutapetti Lattiamateriaali: Parketti
- Sauna
- Kyllä
- Saunan kuvaus
- Molemmissa kylpyhuoneissa sauna
- Takka
- Takka
Lisätiedot
- Asunnon kunto
- Hyvä
- Muut kaupan kannalta merkittävät tiedot
- Montako avainta huoneistoon on (+ turvalukon avaimet)? - 2 avaimet. Alhaalla älylukko Pihalla läpivirtaava lampi
Taloyhtiö ja kiinteistö
- Tontin pinta-ala
- 4 443 m²
- Tontin omistus
- Oma
- Tontin tyyppi
- Rinnetontti
- Tontin myyntityyppi
- Koko tontti
- Lisätiedot rakennusmateriaaleista
- Rakennuksen lämmönlähteenä on maalämpö ja puu. Lämmönkehityslaitteena toimii maalämpöpumppu sekä tulisijat. Maalämpöpumppu on asennettu vuonna 2020. Uusimisen yhteydessä porattiin uusi lämpökaivo (240 m), ja aiemmin viereisessä lammessa sijainnut lämpöputkisto on poistettu käytöstä. Suurin osa putkistosta on myös poistettu lammesta.
- Rakennusmateriaali
- Asuinkerros puuta pohjakerros harkkoa
- Lämmitysjärjestelmä
- Maalämpö
- Ilmanvaihto
- koneellinen tulo- ja poistoilmanvaihtojärjestelmä lämmöntalteenotolla
- Vesijohto
- Kaivo
- Viemäröinti
- Umpisäiliö
- Lisätietoja viemäristä
- Jätevesihuolto: Umpisäiliö (5 m³, wc-vedet), harmaat vedet: 2-kpl saostuskaivoa + maahanimeyttämö
- Kattotyyppi
- Harjakatto
- Katemateriaali
- Pelti
- Lisätietoa rakennusoikeudesta
- Alueelle voidaan rakentaa erillispientaloja ja niihin liittyviä talousrakennuksia, palveluja ja ympäristöä häiritsemättömiä työtiloja. Kullekin rakennuspaikalle saa rakentaa yhden enintään kaksiasuntoisen ja enintään kaksikerroksisen asuinrakennuksen tai kytketyn pientalon. Toinen asunto (sivuasunto) voi sijaita erillään päärakennuksesta. Rakennuspaikan rakennusten yhteenlaskettu kerrosala saa olla enintään 10 % rakennuspaikan pinta-alasta, kuitenkin vähintään 300 m2 ja enintään 600 m2. Asuinkäyttöön tarkoitetun rakennuksen kerrosala saa olla enintään 400 m2. Erillinen sivuasunto saa olla kerrosalaltaan enintään 100 m2:n suuruinen ja kerrosluvultaan enintään 1?. Rakennuspaikan on oltava vähintään 2000 m2 lukuun ottamatta vedenhankintaa varten tärkeitä tai vedenhankintaan soveltuvia pohjavesialueita, joilla rakennuspaikan vähimmäiskoko on 5000 m2. Numero osoittaa alueen rakennuspaikkojen enimmäismäärän.
- Kohteesta on energiatodistus
- Kyllä
- Energialuokka
- C2018
- Energiatodistuksen voimassaolo
- 1.9.2033
- Lisätietoja liikenneyhteyksistä
- Alueelta on hyvät liikenneyhteydet niin omalla autolla kuin julkisilla. Läheinen tieverkosto mahdollistaa sujuvan liikkumisen esimerkiksi Riihimäen ja Hämeenlinnan suuntiin, ja bussiyhteydet kulkevat Lopen keskustan kautta.
- Tie perille
- Kyllä
- Palvelut
- Koulu: Lähin alakoulu n. 1,5 km Lukio: n. 12 km Päiväkoti: n. 1,5 km Ruokakauppa: n. 1,5 km Terveysasema: n. 14 km Lopen keskustan monipuoliset palvelut, kuten kaupat, koulut, päiväkoti, kirjasto ja terveysasema, sijaitsevat vain lyhyen ajomatkan päässä Koivulantieltä. Päivittäiset palvelut löytyvät kätevästi läheltä, mikä tekee arjesta sujuvaa. Matkat lähimpiin kaupunkeihin ovat sujuvat: Hyvinkäälle on noin 25 km, Riihimäelle noin 30 km ja Helsinkiin noin 60 km.
- Kaavatilanne
- Yleiskaava
- Kaavoitustiedot
- Lisätietoja kaavoituksesta antaa Lopen kunta: www.loppi.fi Lukijan tulee tutustua lähialueen kaavoitushankkeisiin ja muihin alueen tietoihin sekä palveluihin huolellisesti Lopen kunnan karttapalvelun kautta: loppi.karttatiimi.fi Tilanne 24.10.2025: Ei ole tiedossa tai vireillä olevia kaavoja.
- Kuntotarkastus tehty
- 28.08.2023
- Rakennusvaihe
- Valmis
- Lisätietoa muista rakennuksista
- Kylmä varasto, kota. Kylmä ulkovarasto noin v. 2001. Naapurin suostumuksella rakennettu “rajaan kiinni”. Kota: uusi tulisija noin v. 2010
Tehdyt remontit
2019 Jätevesijärjestelmä puhdistettu
2019 Suihkutiloja parannettu
2020 Lämpöpumppu ja käyttövesipumppu uusittu maalämpöön
2020 Ilmastointi nuohottu
Lähivuosina:
Keittiön kaapinovet on maalattu, osin välitilan laatoitus uusittu ja allas sekä hana on vaihdettu uusiin.
Alakerran olohuoneessa on uusittu lattia ja maalattu seinät.
Yläkerran yhdessä makuuhuoneessa lattia on tehty uusiksi ja seinät maalattu.
Lisäksi olohuoneen seinät on maalattu, mikä raikastaa tilan ilmeen.
