Kohonkuja 8
55910, Rautio, Imatra
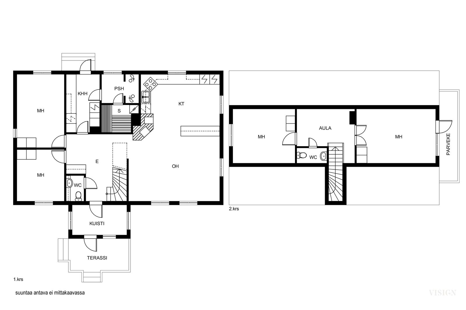
5h+k+khh+s+kph+2wc
168 000 €
150 m²

Tätä asuntoa myy Riitta Niskanen, Kiinteistönvälittäjä, LKV
Huoneistokeskus Oy | Imatra

Sijainti
Asuntoesittely
Etsitkö tilavaa ja kodikasta omakotitaloa? Tämä rauhallisella pientaloalueella sijaitseva, siistikuntoinen, vuonna 2002 valmistunut koti tarjoaa loistavat puitteet isommallekin perheelle. Neljä makuuhuonetta; kaksi alakerrassa ja yläkerrassa kaksi lisää, yläkerrassa myös talon toinen wc. Kodikas tupakeittiö / olohuone ja tilan keskiössä muhkea leivinuuni/takka. Saunatilat uudistettu 2015, kylpyhuone kahdella suihkulla. Kodinhoitohuoneen kautta kulku takapihalle, suojaisa, vehreä piha-alue kuin luotu lasten leikeille! Kiinteistöllä lisäksi talousrakennus/autotalli. Tule tutustumaan ja ihastumaan! Immalanjärven uimaranta ja laavu lyhyen kävelymatkan päässä.
Pohjakuva

Perustiedot
- Sijainti
- Kohonkuja 8, 55910, Rautio, Imatra
- Huoneluku
- 5
- Asuinpinta-ala
- 150 m²
- Muu pinta-ala
- 23 m²
- Kokonaispinta-ala
- 173 m²
- Lisätiedot pinta-alasta
- Pinta-alat rakennuspiirustuksista.
- Kohteen tyyppi
- Omakotitalo
- Kerros
- 2
- Rakennusvuosi
- 2002
- Käyttöönottovuosi
- 2002
- Kohde myydään vuokrattuna
- Ei
- Vapautuminen
- 1kk kaupanteosta
Hinta ja kustannukset
Tilat ja materiaalit
- Keittiön lattiat
- Vinyyli
- Keittiön seinät
- lasikuitutapetti
- Keittiön varusteet
- Liesituuletin, astianpesukone, jääkaappi, liesi, keittiösaareke, ja pakastekaappi, kiinteät valaisimet
- Liesi
- Induktioliesi
- Kylpyhuoneen seinät
- Kaakeli
- Kylpyhuoneen lattiat
- Laatta
- Kylpyhuoneen varusteet
- Lattialämmitys, suihku, ja kiinteät valaisimet
- WC Lukumäärä
- 2
- WC:n lattiat
- Laatta
- WC:n seinät
- Kaakeli
- Makuuhuoneiden lukumäärä
- 4
- Makuuhuoneiden seinät
- Lasikuitutapetti
- Makuuhuoneiden lattiat
- Vinyyli ja parketti
- Olohuoneen seinät
- Lasikuitutapetti
- Olohuoneen lattiat
- Vinyyli
- Kodinhoitohuoneen varusteet
- Lattialämmitys, pöytätaso, pesukoneliitäntä, lattiakaivo, pyykkikaapit, silityspöytä/taso, ja pesuallas
- Kodinhoitohuoneen seinät
- Kaakeli
- Kodinhoitohuoneen lattiat
- Laatta
- Säilytystilojen kuvaus
- talossa 3 vinttitilaa, autotallissa vinttitila, pihavarastossa vinttitilaa
- Kohteen säilytystilat
- Ullakko, ulkovarasto, ja talossa 3 vinttitilaa, autotallissa vinttitila pihavarastossa vinttitilaa
- Sauna
- Kyllä
- Kiuas
- Puukiuas
- Takka
- Takka
Lisätiedot
- Asunnon kunto
- Hyvä
- Muut tilat
- alakerran makuuhuoneet vinyylilattia, yläkerran makuuhuoneet parkettia
- Muuta kauppaan kuuluvaa
- Lisätietoja sisältyvistä varusteista: ilmalämpöpumppu, istutukset, jätesäiliö, kiinteät valaisimet, lämminvesivaraaja, matontamppausteline, sälekaihtimet/rullaverhot, verhotangot
Taloyhtiö ja kiinteistö
- Tontin pinta-ala
- 1 332 m²
- Tontin omistus
- Oma
- Tontin tyyppi
- Tasamaatontti
- Tontin myyntityyppi
- Koko tontti
- Käyttö/luovutusrajoitukset
- asuinkäyttö
- Rakennusmateriaali
- Puu
- Lämmitysjärjestelmä
- Puu Ilmalämpöpumppu Sähkö Tyyppi: sähköinen lattialämmitys, sähköpatterilämmitys uuni/takka, sähköinen lattialämmitys, sähköpatterilämmitys
- Kattotyyppi
- Harjakatto
- Katemateriaali
- Tiili
- Lisätietoa rakennusoikeudesta
- Kaavan mukainen rakennusoikeus 148m2. 2001 myönnetyllä rakennusluvalla kohteella on poikkeuslupa rakennusoikeuden ylitykseen, 191 m2.
- Lisätietoja liikenneyhteyksistä
- paikallisliikenne Niskapietiläntieltä
- Tie perille
- Kyllä
- Palvelut
- lähin ruokauppa Rautionkylässä, lisää Vuoksenniskalla
- Koulut
- Vuoksenniskan koulu
- Kaavatilanne
- Asemakaava
- Kaavoitustiedot
- Imatran kaupunki 020 617 2210
- Muut rakennukset
- Autotalli ja talousrakennus
- Lisätietoa muista rakennuksista
- talousrakennus 18m2 2002, autotalli n.2002 grillikatos 2010
