Kirvesmiehenkatu 1 D
80100, Mutala, Joensuu
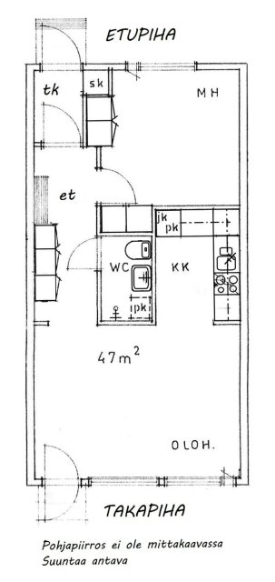
2h+kk+kph
39 500 € (840,43 € / m²)
47 m²

Tätä asuntoa myy Petri Nieminen
LKV OGZ | Jokaisen Huoneistokauppa Oy *

Sijainti
Asuntoesittely
47m² 2h+kk huoneisto omaan tai vuokrakäyttöön
Mutalan kaupunginosassa rauhallisella paikalla taloyhtiössä sijaitseva kaksio, omaan tai vuokrakäyttöön.
Huoneisto on varsin peruskuntoinen, keittokomero alkuperäisin kiintokalustein, varustettuna jääkaapilla, liesiuunilla, sekä liesituulettimella varustettuna, työtasot laminaattia välitila muovimattoa.
Olohuone on avara, makuuhuone tilava, käytävälle sopisi reilusti komeroita. Pesutilat muovipinnoin.
Tästä tällaisenaan vuokrakäyttöön, tai fixauksen jälkeen ihan omaan käyttöön.
Lisätiedot Petri Nieminen 040 837 5508
Kohde heti kaupasta vapaana.Perustiedot
- Sijainti
- Kirvesmiehenkatu 1 D, 80100, Mutala, Joensuu
- Omistusmuoto
- Omistusasunto
- Huoneluku
- 2
- Asuinpinta-ala
- 47 m²
- Kokonaispinta-ala
- 47 m²
- Pinta-alan peruste
- Isännöitsijäntodistuksen mukainen, (Pinta-ala ei ole tarkistusmitattu ja todellinen pinta-ala voi olla suurempi tai pienempi, kuin ilmoitettu)
- Kohteen tyyppi
- Rivitalo
- Kerros
- 1 / 1
- Rakennusvuosi
- 1974
- Käyttöönottovuosi
- 1974
- Kohde myydään vuokrattuna
- Ei
- Vapautuminen
- Heti
Tilat ja materiaalit
- Keittiön kuvaus
- Alkuperäisin laakaovin
- Keittiön lattiat
- Muovimatto
- Keittiön seinät
- Maali
- Keittiön varusteet
- Jääkaappi, liesi, uuni, ja liesituuletin
- Liesi
- Valurautaliesi
- Kylpyhuone
- Muovipinnoin
- Kylpyhuoneen seinät
- Muovimatto
- Kylpyhuoneen lattiat
- Muovimatto
- Kylpyhuoneen varusteet
- WC-istuin, suihku, pesukoneliitäntä, pesuallas, ja peili
- Makuuhuoneet
- pohjoisen suuntaan avautuva
- Makuuhuoneiden lukumäärä
- 1
- Makuuhuoneiden seinät
- Maali ja tapetti
- Makuuhuoneiden lattiat
- Muovimatto
- Olohuone
- Avara lännensuuntaan avautuva, paljon ikkunapintaa.
- Olohuoneen seinät
- Maali ja tapetti
- Olohuoneen lattiat
- Muovimatto
- Kohteen säilytystilat
- Kellarikomero ja häkkivarasto
- Sauna
- Ei
- Takka
- Ei takkaa
Lisätiedot
- Asunnon kunto
- Tyydyttävä
- Lisätietoja kunnosta
- Huoneiston pinnoissa normaalista käytöstä johtuvaa kulumaa.
- Näkymät
- Olohuoneesta omalle aidatulle pihalle etelän suuntaan, makuuhuoneesta pohjoisen suuntaan
- Parveke
- Ei parveketta
- Terassi
- Ei
- Piha
- Nurmikkoa
- Hissi
- Ei
- Lisätietoa seinien pintamateriaaleista
- maalattua levyä/tapetti
- Lisätietoa lattioiden pintamateriaaleista
- muovimattoa
- Lisätietoa katon pintamateriaaleista
- haltex-Paneelit , pesutilassa paneelikatto uusittu ehken putkiremontin yhteydessä.
- Kauppaan ei kuulu
- Kattovalaisin olohuoneessa
- Muut kaupan kannalta merkittävät tiedot
- Asunto sijaitsee rauhallisessa osassa taloyhtiötä-
Taloyhtiö ja kiinteistö
- Taloyhtiön nimi
- Asunto Oy Korppilanpuisto
- Isännöitsijätoimisto
- Karjalan Tilipalvelu Oy
- Isännöitsijän nimi
- Iiro Lippo
- Isännöitsijän puhelin
- 010 423 8450
- Taloyhtiön lisätiedot
- Rakennukset puurunkoisia / lautaverhoiltuja, loivat harjakatot profiilipeltikatteella, suorasähkölämmitteisiä, ilmanvaihdot painovoimaiset.
- Tontin pinta-ala
- 9 528,6 m²
- Tontin omistus
- Oma
- Tontin tiedot
- Tasainen
- Rakennusmateriaali
- Puu
- Lämmitysjärjestelmä
- Sähkö
- Ilmanvaihto
- Painovoimainen ilmanvaihto
- Vesijohto
- Kunnallisvesi
- Viemäröinti
- Kunnallinen viemäriverkosto
- Kattotyyppi
- Harjakatto
- Katemateriaali
- Pelti
- Lisätietoja kiinteistönhoidosta
- Huoltoyhtiö
- Kiinteistönhoidon lisätiedot
- Talohuolto K Tahvanainen Oy Melatie 11A10, 80160 Joensuu
- Taloyhtiössä on
- Pesutupa, kuivaushuone, kellarikomero, yhtiön laajakaista elisa25m/10m, ja kaapeli-tv
- Lunastusoikeus yhtiöllä
- Ei
- Lunastusoikeus osakkaille
- Ei
- Kohteesta on energiatodistus
- Kyllä
- Energialuokka
- F2018
- Lisätietoja energiatodistuksesta
- Isännöintitodistuksessa E-luokka merkitty E
- Liikenneyhteydet
- Bussipysäkki lähellä, sujuvat yhteydet omalla autolla ja hyvät pyöräilytiet
- Lisätietoja huoneiston autopaikasta
- Jonottamalla
- Taloyhtiön autopaikat
- Jonottamalla
- Lisätietoja taloyhtiön autonsäilytyspaikoista
- Vieraspysäköintipaikka
- Taloyhtiöllä sauna
- Kyllä
- Kaavatilanne
- Asemakaava
- Lisätiedot kaavoituksesta
- Joensuun kaupunki rakennusvalvonta https://www.joensuu.fi/kaavoitus
- Asbestikartoitus
- Ei
Tehdyt remontit
Katot 1985, Yläpohjan lisälämmöneristäminen 1986, uudet ulko-ovet 1987, asfaltointi 1993, Exec-lukot 1996, sähköpatterit 1996, putkiremontti 1999, digi-tv 2002, IV-kanavien puhdistus 2004, yleisten tilojen lukot 2005, taloyhtiön lämminvesivaraajat 2007, autopistokekellot 2007, sähköpattereiden uusinta 2010, ulko-ovien uusiminen ja lukkojen vaihto 2012, piharemontti 2013, E-talon sadevesikourun uusiminen 2013, uusittu muiden talojen sadevesikourut 2014, IV-kanavien puhdistus 2015, lämpimän käyttöveden esilämmitys lämpöpumppu -tekniikalla 2016, edellä mainittu kauppa purettu 2018, viemärikaivojen pinnoitus 2018, loput autolämmityskoteloista uusittu 2019, lukitusjäjestelmä uusittu Abloy Sento 2021, kattoremontti 2023,
Yhtiön hallitus on päättänyt tilata yhtiöiden viemäreiden sukituksen suunnittelun , toteutus suunnittelulle syksyllä 2025. Toteutuksesta ei ole päätöksiä eikä päätöstä tuoda kevään 2025 yhtiökokoukseen.
