Kipinäkatu 8
70620, Niirala, Kuopio
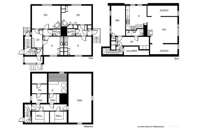
5h, 3 keittiötä, 3 wc, 2 makuualkovia, kh, s, kellaritilat ja varastot
165 000 €
147 m²

Tätä asuntoa myy Irja Savolainen, Kiinteistönvälittäjä, LKV
Huoneistokeskus Oy | Kuopio

Sijainti
Asuntoesittely
OMAKOTITALO NIIRALASTA
Monien mahdollisuuksien kotitalo etu-Niiralasta 891 m2 vuokratontilla, joka koostuu tällä hetkellä kolmesta asunnosta omilla sisäänkäynnillään. Kaunis ja perinteinen puutarhapiha odottaa uusia asukkaitaan. Kohde on jo kuntotarkastettu. Alkuperäinen rakennusvuosi on 1948 ja kohde on ollut saman suvun hallussa alusta saakka.
Elämä Niiralan alueella on helppoa, kaikki tarvittava löytyy kävelymatkojen päästä ja uusi Citymarket kohta läheltä. Kaunis puutaloympäristö luo viihtyvyyttä arkeen.
Huoneisto 1 sijaitsee alakerrassa ja koostuu 24 m2 yksiöstä. Huoneisto 2 löytyy alakerrasta ja koostuu keittiöstä, olohuoneesta, makuuhuoneesta sekä "pikkumakuu- tai työtilasta". Huoneisto 3 sijaitsee talon 2. kerroksessa ja tämä puoli on mittavimmin remontoitu. Tilat täällä koostuvat olohuoneesta, makuuhuoneesta, keittiöstä ja kh/wc. Lisäksi on rakennettu kaksi tunnelmallista makuutilaa, joissa viistot katot.
Kellaritiloissa on takkahuone, sauna, kylpyhuone, pukuhuone sekä kellarit.
Kohde on sähkölämmitteinen. Lisäksi lämpöä antaa Tulikiven takka/leivinuuni.
Soita ja kysy lisää niin neuvotellaan elämäsi kaupat!Perustiedot
- Sijainti
- Kipinäkatu 8, 70620, Niirala, Kuopio
- Huoneluku
- 5
- Asuinpinta-ala
- 147 m²
- Kokonaispinta-ala
- 147 m²
- Pinta-alan peruste
- Pinta-ala ei ole tarkistusmitattu ja todellinen pinta-ala voi olla suurempi tai pienempi, kuin ilmoitettu
- Lisätiedot pinta-alasta
- Ei tarkistusmitattu. Pinta-alat saattavat tämän ikäisissä kohteissa (rekisteröity ennen 01.01.1992) poiketa olennaisestikin asuinrakennusten nykyisten mittaustapojen ja standardien (SFS 5139) mukaan laskettavasta asuintilojen pinta-alasta. Pinta-ala voi siis olla edellä mainittua pienempi tai suurempi.
- Kohteen tyyppi
- Omakotitalo
- Kerros
- 3
- Rakennusvuosi
- 1948
- Käyttöönottovuosi
- 1948
- Kohde myydään vuokrattuna
- Ei
- Vapautuminen
- sop. mukaan/1-2 kk kaupasta
Tilat ja materiaalit
- Keittiön kuvaus
- - asunnossa 1 jääkaappi, pakastin, sähköliesi - asunnossa 2 jkp/pak, sähköliesi, astianpesukone - asunnossa 3 kaunis uudistettu keittiö, jossa induktioliesi, jkp/pak, vuonna 2024 uusittu astianpesukone
- Kylpyhuone
- - asunnossa 1 wc/kh (suihkukaappi) - asunnossa 2 wc, jossa peili, allaskaappi, pesuallas, pesukoneliittymä, uusittu vuonna 2022 - asunnossa 3 suihku, wc, peili, hyllyt, allaskaappi, pesuallas
- WC Lukumäärä
- 3
- Sauna
- Kyllä
Lisätiedot
- Asunnon kunto
- Tyydyttävä
- Lisätietoja kunnosta
- Myyjä hoitaa kuntoon myynnin alkaessa.
- Kohde on saaressa
- Ei
- Muut tilat
- Kellarikerroksessa takkahuone (Tulikiven leivinuuni/takka), sauna, kylpyhuone, pukuhuone, kellari- ja varastotiloja. Yläkerran huoneistossa uusittu varaava takka.
- Muuta kauppaan kuuluvaa
- Polttopuut kuuluvat kauppaan
Taloyhtiö ja kiinteistö
- Tontin pinta-ala
- 891 m²
- Tontin omistus
- Vuokra
- Tontin myyntityyppi
- Koko tontti
- Maanvuokraaja
- Kuopion kaupunki
- Vuokra-aika päättyy
- 31.12.2040
- Rakennusmateriaali
- Puu
- Lämmitysjärjestelmä
- Puu Sähkö
- Ilmanvaihto
- Painovoimainen ilmanvaihto
- Vesijohto
- Kunnallisvesi
- Viemäröinti
- Kunnallinen viemäriverkosto
- Kattotyyppi
- Harjakatto
- Katemateriaali
- Pelti
- Kohteesta on energiatodistus
- Ei lain edellyttämää energiatodistusta
- Lisätietoja energiatodistuksesta
- Myyjä hoitaa kuntoon myynnin aloituksen yhteydessä.
- Kiinteistöön kuuluu
- Vuokraoikeudellinen tontti, joka muodostuu kolmesta (3) eri asunnosta omilla sisäänkäynneillään. Kohde on ollut alkuperäisestä rakennusvuodestaan saakka saman suvun hallussa. Taustalla kiinteistöyhtymä, jonka mukaan omistusosuudet seuraavasti: - alakerran huoneistolle 1 kooltaan 24 m2 osuus 1/5 - alakerran huoneistolle 2 kooltaan 68 m2 osuus 1/5 - yläkerran huoneistolle 3 kooltaan 55 m2 osuus 30/100 (3/5)
- Liikenneyhteydet
- Hyvät pyöräilytiet, kaupunkiliikenneyhteys, sujuvat yhteydet omalla autolla ja bussipysäkki lähellä
- Tie perille
- Kyllä
- Koulut
- Haapaniemen alakoulu, Minna Canthin koulu, keskustan koulut
- Kaavatilanne
- Asemakaava
- Kaavoitustiedot
- Kuopion Kaupunki p. 017 182 111
- Kuntotarkastus tehty
- 02.09.2025
- Kuntotutkimus tehty
- 02.09.2025
- Rakennusvaihe
- Valmis
- Asbestikartoitus
- Ei
Tehdyt remontit
Yläkerran laajennus ja muutostyöt vuonna 1991.