Karppitie 14
01490, Nikinmäki, Vantaa
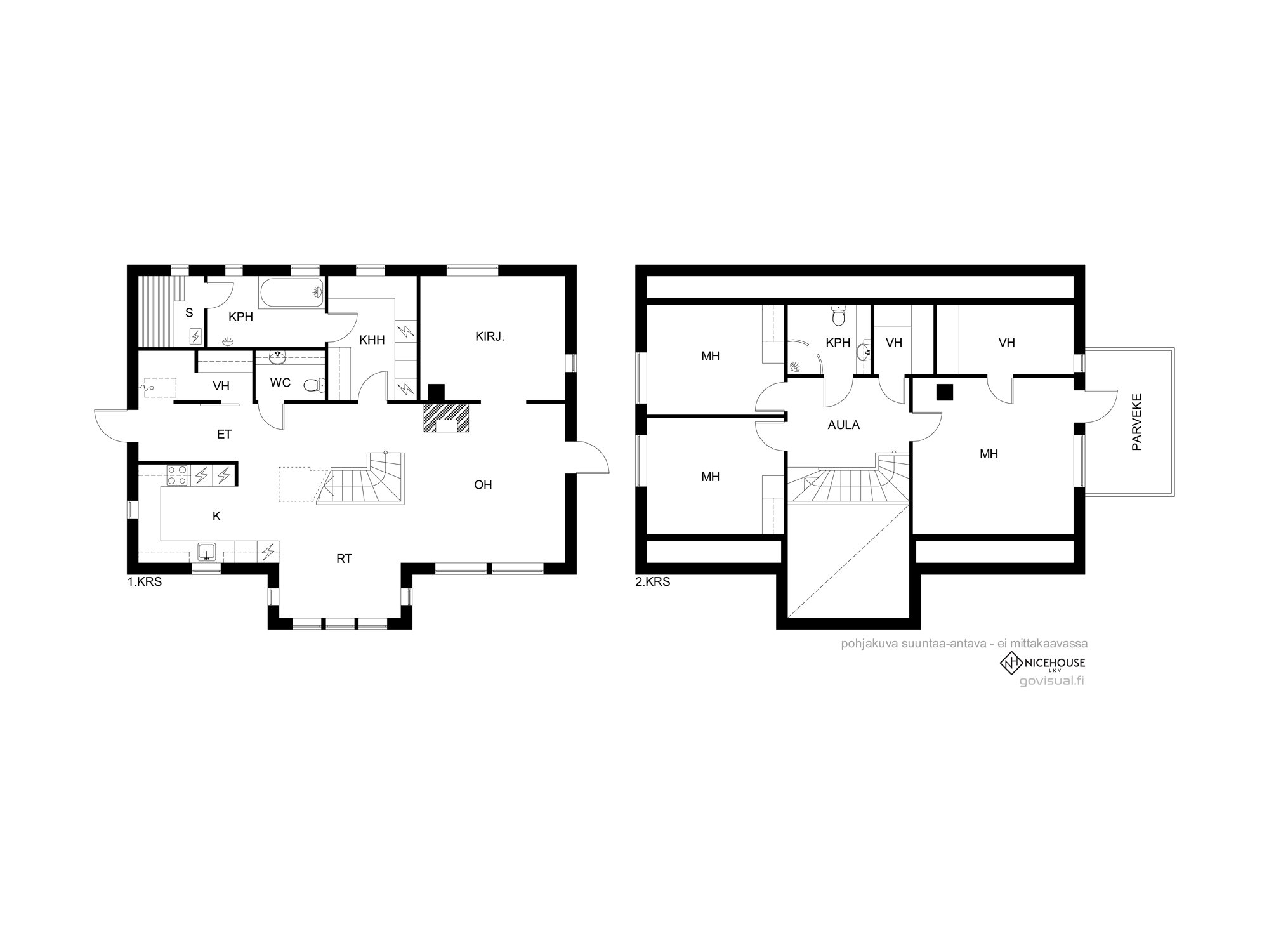
5h, k, kphx2, s, khh, erill.wc, vhx3, aula
462 000 €
160,5 m²

Tätä asuntoa myy Heidi Litmanen, Kiinteistönvälittäjä
LKV ja LVV -pätevyys, KiAT
Nicehouse LKV Oy

Sijainti
Asuntoesittely
Tämä tilava ja viihtyisä omakotitalo Nikinmäessä tarjoaa erinomaisen mahdollisuuden rauhalliseen asumiseen kauniin luonnon keskellä. Talo sijaitsee Nikinmäen yhdellä parhaista paikoista pienellä sekä rauhallisella kadulla ja tontti rajoittuu kallioiseen metsään. Oma 1000 neliömetrin suojaisa tontti tarjoaa runsaasti tilaa ulkoiluun ja vapaa-ajan viettoon.
Olohuoneessa on tyylikäs varaava takka, joka luo lämpöä ja tunnelmaa kylminä iltoina. Keittiötä on päivitetty vuonna 2019 ja se on varustettu laadukkailla kodinkoneilla. Ylä- ja alakerrassa on omat ilmalämpöpumppunsa. Alakertaan sijoittuu yksi kodin makuuhuoneista, joka toimii nykyään arkiolohuoneena. Alakerrassa on myös kodinhoitohuone, kylpyhuone, sauna sekä eteisen yhteydessä oleva käytännöllinen vaatehuone kuraeteisellä. Yläkerran rauhasta löytyvät kolme muuta makuuhuonetta, kaksi vaatehuonetta sekä pienempi kylpyhuone ja wc.
Lisäksi talossa on etelään suuntautuva parveke ja suuri terassialue, jotka ovat täydellisiä paikkoja nauttia auringosta ja ulkoilmasta. Autokatos ja lämmin varasto tuovat lisää käytännöllisyyttä arkeen.
Nikinmäki on rauhallinen ja yhteisöllinen asuinalue, jossa on hyvät palvelut ja liikenneyhteydet. Läheltä löytyvät muun muassa K-Supermarket, päiväkodit ja koulut. Alueen kauniit metsä- ja peltomaisemat houkuttelevat ulkoilemaan, ja hyvät pyörätiet tekevät liikkumisesta vaivatonta.
Tartu tilaisuuteen ja tee tästä talosta unelmiesi koti!
Ota yhteyttä ja sovi esittelysi:
Heidi Litmanen
Kiinteistönvälittäjä
LKV, LVV, KiAT
NiceHouse LKV
puh 044 293 7471
[email protected]
Pohjakuva

Perustiedot
- Sijainti
- Karppitie 14, 01490, Nikinmäki, Vantaa
- Huoneluku
- 5
- Asuinpinta-ala
- 160,5 m²
- Muu pinta-ala
- 8 m²
- Kokonaispinta-ala
- 168,5 m²
- Pinta-alan peruste
- Pinta-ala ei ole tarkistusmitattu ja todellinen pinta-ala voi olla suurempi tai pienempi, kuin ilmoitettu
- Lisätiedot pinta-alasta
- Asuinpinta-ala 160,5, kerrosala 194 m2. Lämmin varasto 8 m2.
- Kohteen tyyppi
- Omakotitalo
- Kerros
- 2
- Rakennusvuosi
- 2009
- Kohde myydään vuokrattuna
- Ei
- Vapautuminen
- Sopimuksen mukaan
Hinta ja kustannukset
- Myyntihinta
- 462 000 €
- Kokonaissähkön kulutustiedot
- 14000 kWh / vuosi
- Kiinteistövero (€/vuosi)
- 814,47 €
- Sähköliittymä siirtyy
- Kyllä
- Neliöhinta
- 2 878,50 € / m²
- Lisätietoja maksusta
- Sähkönkulutus: Sähkön kokonaiskulutusarvio ollut nykyisellä asukkaalla 14.000 kWh/v. Sähkön kulutus ja hinta ovat riippuvaisia muun muassa sähkösopimuksesta, asukasmäärästä, lämpötilasta ja asukkaiden kulutustottumuksista. Kiinteistövero 814,47 euroa/v. Vesimaksu: HSY:n voimassa olevan taksan mukaan rakennuksen kokoon ja veden kulutukseen perustuen (tyypillisesti n.10-25 €/hlö/kk; riippuen toki käyttömäärästä). Jätehuolto: maksut HSY:n hinnaston mukaisesti riippuen jäteastian koosta ja tyhjennysvälistä.
Tilat ja materiaalit
- Keittiön kuvaus
- Keittiön alakaapit, tasot, allas ja hana vaihdettu 2019
- Keittiön lattiat
- Laatta
- Keittiön seinät
- Kaakeli
- Keittiön varusteet
- Erillisuuni (kiertoilmauuni, AEG), liesi (Miele), liesituuletin (Savo), astianpesukone, ja jääkaappipakastin (side-by-side jääpalakoneella)
- Liesi
- Induktioliesi
- Kylpyhuone
- Alakerran kph: suihku, kylpyamme, hana Yläkerran kph: suihku, suihkuseinä, wc-istuin, pesuallas, allaskaapisto, peili
- Kylpyhuoneen seinät
- Kaakeli
- Kylpyhuoneen lattiat
- Laatta
- WC Lukumäärä
- 1
- WC:n lattiat
- Laatta
- WC:n seinät
- Kaakeli
- Makuuhuoneiden lukumäärä
- 4
- Olohuone
- Avara olohuone, jossa on tyylikäs varaava takka. Olohuoneen vieressä on huone, joka toimii esim. arkiolohuoneena, työhuoneena, vierashuoneena tai siitä voi tehdä makuuhuoneen.
- Olohuoneen seinät
- Maali
- Olohuoneen lattiat
- Parketti
- Kodinhoitohuoneen varusteet
- Pesukoneliitäntä, pöytätaso, pesuallas, lattialämmitys, ja lattiakaivo
- Kodinhoitohuoneen seinät
- Maali
- Kodinhoitohuoneen lattiat
- Laatta
- Kohteen säilytystilat
- Lämmin ulkovarasto, kaapistot ja kolme vaatehuonetta
- Sauna
- Kyllä
- Kiuas
- Sähkökiuas
- Takka
- Varaava takka
Lisätiedot
- Asunnon kunto
- Tyydyttävä
- Lisätietoja kunnosta
- Hyvässä peruskunnossa oleva vuonna 2009 valmistunut omakotitaloa, joka vaatii pintaremonttia.
- Parveke
- Ulostyönnetty parveke
- Parvekkeen ilmansuunta
- Etelä
- Terassi
- Kyllä
- Lisätietoja terassista
- Terassia laajennettu vuonna 2015
Taloyhtiö ja kiinteistö
- Tontin pinta-ala
- 1 000 m²
- Tontin omistus
- Oma
- Tontin tyyppi
- Rinnetontti
- Tontin myyntityyppi
- Koko tontti
- Rakennusmateriaali
- Puu
- Lämmitysjärjestelmä
- Sähkö Tyyppi: Sähkökattila/vesikiertoinen lattialämmitys, ilmalämpöpumppux2 Kustannukset: 14000 kWh / vuosi Ilmalämpöpumppux2, varaava takka
- Ilmanvaihto
- Koneellinen ilmanvaihto
- Vesijohto
- Kunnallisvesi
- Viemäröinti
- Kunnallinen viemäriverkosto
- Kattotyyppi
- Harjakatto
- Katemateriaali
- Tiili
- Rakennusoikeus
- 200
- Lisätietoa rakennusoikeudesta
- Sallittu rakennusoikeus 200+40 m2
- Rakennusoikeus e-luku
- 0.2
- Kohteesta on energiatodistus
- Kyllä
- Energialuokka
- C2018
- Energiatodistuksen voimassaolo
- 23.10.2035
- Kiinteistöön kuuluu
- Asuinrakennus, autokatos ja lämmin varasto
- Liikenneyhteydet
- Bussipysäkki lähellä, hyvät pyöräilytiet ja sujuvat yhteydet omalla autolla
- Tie perille
- Kyllä
- Paikallistiedot
- Nikinmäki on kauniiden pelto- ja metsäalueiden ympäröimä pientalovaltainen kaupunginosa Vantaalla. Se sijaitsee kaupungin koillisosassa, rajautuen lännessä Keravanjokeen ja muissa ilmansuunnissa Sipooseen. Nikinmäki on erittäin rauhallinen ja yhteisöllinen alue ja se on yksi Vantaan vauraimpia asuinalueita. Alueella viihdytään ja suurin osa asukkaista muuttaakin alueen sisällä. Urheluharrastajalle ja luonnossaliikkujalle lähistöltä löytyvät erinomaiset mahdollisuudet; mm. Talma Ski, Keinukallion urheilupuisto ja uusi XO Center, Sipoonkorven kansallispuisto, useampia uimarantoja, Keravanjoen varren ulkoilureitti, eikä tulevaan Elmon urheilupuistoonkaan ole pitkä matka. Lapsiperheiden suosikkielementtejä ovat alueen rauhallisuus, luonnonläheisyys, uudehkot leikkipuistot ja urhelukentät sekä tasokkaat päiväkodit ja koulut.
- Palvelut
- K-Supermarket Nikinmäki Lidl Metsola Crossfit sali Nikinmäen Tähti pizzeria Vihervimma Oy puutarhamyymälä
- Koulut
- Jokivarren koulu Nikinmäen opetuspiste Jokivarren koulu Leppäkorven yhtenäiskoulu Ruusuvuoren koulu LUMOn lukio
- Kaavatilanne
- Asemakaava
- Kaavoitustiedot
- Vantaan Kaupunki
- Kuntotarkastus tehty
- 15.10.2025
- Rakennusvaihe
- Valmis
- Muut rakennukset
- Autokatos
- Lisätietoa muista rakennuksista
- Autokatos/lämmin varasto
Tehdyt remontit
Kaksi ilmalämpöpumppua / yksi ulkoyksikkö asennettu 2023
