Kalevankatu 57 A
00180, Hietalahti, Helsinki
3h, avok, kph, vh, parveke
499 000 € (6 653,33 € / m²)
75 m²

Tätä asuntoa myy Minna Uski, Kiinteistönvälittäjä, LKV, LVV, KIAT
SK Real Estate | SK & Co. Oy

Sijainti
Asuntoesittely
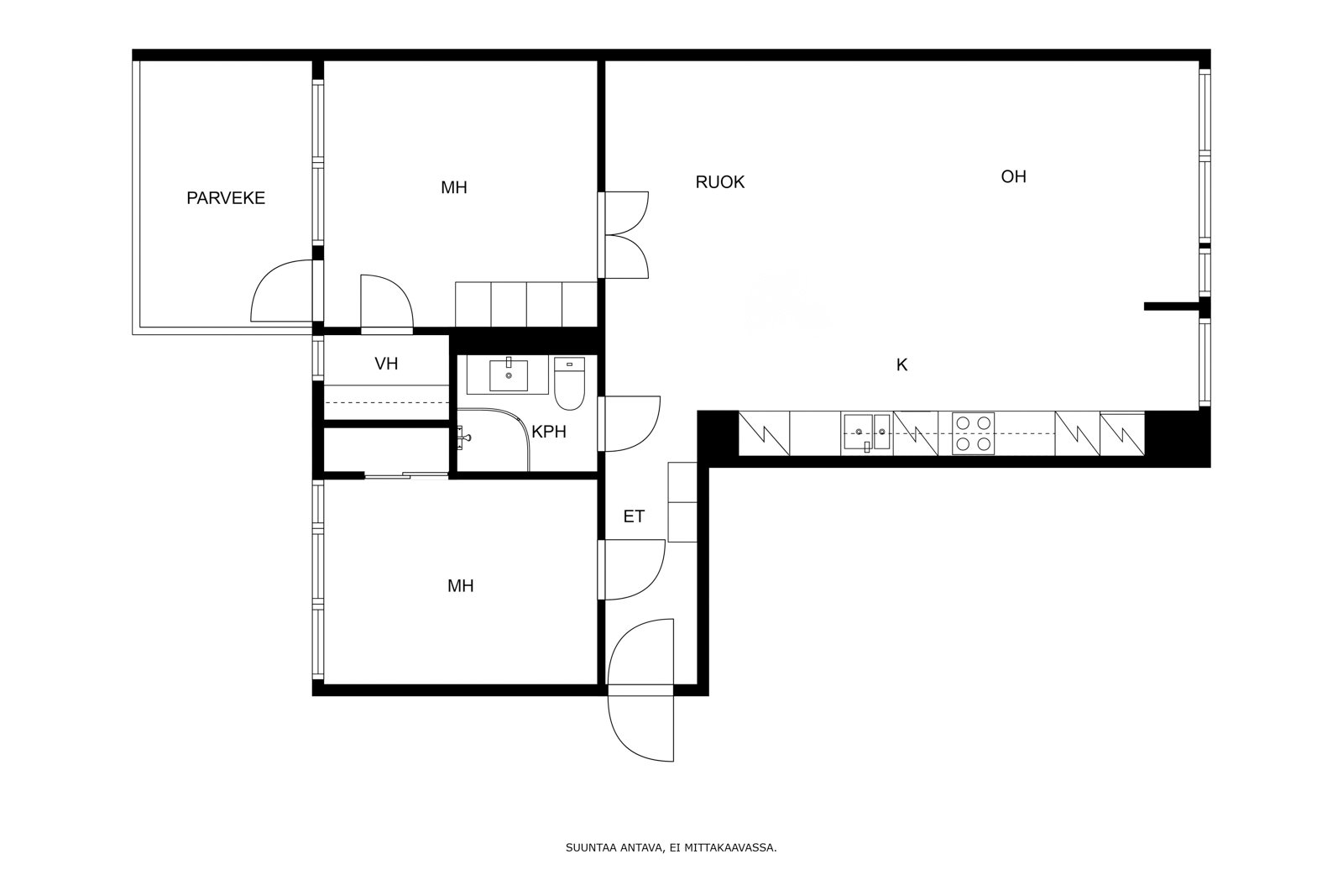
Valoisa ja toimivapohjainen ylimmän kerroksen asunto, omalla tontilla!
Tervetuloa tutustumaan tähän valoisaan ja toimivapohjaiseen ylimmän kerroksen asuntoon keskellä kaupunkia. Asunnon yhteydessä on mahdollisuus ostaa myös autohallipaikka, myyntihinta 40 000,00 euroa.
Asunnon sydän on tilava olohuoneen, ruokailutilan ja keittiön muodostama kokonaisuus, jossa on runsaasti tilaa sekä arkeen että yhdessäoloon. Keittiössä on moderni ilme ja hyvät työskentelysekä säilytystilat. Olohuoneesta avautuvat näkymät kadun puolelle, ja suuret ikkunat tuovat runsaasti luonnonvaloa.
Asunnossa on kaksi makuuhuonetta rauhalliselle sisäpihalle päin, joista toisen yhteydessä on vaatehuone ja käynti parvekkeelle. Parveke on tilava ja osittain suojaisa - mainio paikka nauttia aamukahvit tai kesäpäivän rauhasta kaupungin kattojen yllä.
Kylpyhuone on remontoitu vuonna 2002-2003 putkiremontin yhteydessä ja siinä on modernit, siistit pinnat sekä käytännöllinen suihkutila. Säilytystilaa on mukavasti, ja asunnossa on erillinen eteinen ja vaatehuoneen lisäksi huoneistokohtaiset varastot kellarikerroksessa.
Taloyhtiössä asukkaiden käytössä ovat saunaosasto, pesutupa ja ulkoiluvälinevarasto. Jokaiselle asunnolle kuuluu yhtiöjärjestyksen mukaan talouskellari ja säilytyskomero. Asunto sijaitsee hissillisessä talossa viidennessä (5/5) kerroksessa, ja rauhallinen sisäpihan ympäristö lisää viihtyvyyttä.
Asunto sijaitsee Hietalahdessa, Kalevankatu 57:ssä. Yhtiö on valinnaisella vuokratontilla, mutta tämän asunnon osalta tonttiosuus on lunastettu. Asuinalue tarjoaa urbaania elämää parhaimmillaan: lähikaupat, kahvilat, ravintolat ja Hietalahden kauppahalli ovat kävelyetäisyydellä, ja liikenneyhteydet ovat sujuvat niin julkisilla kuin omalla autollakin. Hietalahdenranta ja meren läheisyys tuovat oman lisänsä viihtyisään ja arvostettuun asuinympäristöön.
Tässä kodissa yhdistyvät toimivuus, valoisuus ja kaupungin syke - tervetuloa tutustumaan!
LISÄTIEDOT JA YKSITYISESITTELYT:
| Minna Uski
| Kiinteistönvälittäjä, LKV, LVV
| Puh. 044 328 624
| [email protected]
Asuntoportaalien (Etuovi.com, Oikotie.fi ja Tori.fi) tiedot ovat rajalliset ja erilaiset keskenään. Tilaathan välittäjältä kohteen virallisen myyntiesitteen sekä muut asiapaperit sähköpostilla tai soittamalla.Pohjakuva

Perustiedot
- Sijainti
- Kalevankatu 57 A, 00180, Hietalahti, Helsinki
- Omistusmuoto
- Omistusasunto
- Huoneluku
- 3
- Asuinpinta-ala
- 75 m²
- Muu pinta-ala
- 9 m²
- Kokonaispinta-ala
- 84 m²
- Lisätiedot pinta-alasta
- Yhtiöjärjestyksen mukaan 75 m² +parv. 9 m². Pinta-alaa ei ole tarkistusmitattu. Edellä mainitut pinta-alat saattavat tämän ikäisessä kohteessa poiketa olennaisestikin asuinrakennusten nykyisten mittaustapojen ja standardien mukaan laskettavasta asuintilojen pinta-alasta. Asuinrakennuksen todellinen asuinpinta-ala voi siis olla esitteessä mainittua pienempi tai suurempi. Ainoa tapa varmistua todellisista pinta-aloista on teettää pinta-alojen tarkistusmittaus. Kohteen hinta ei määräydy pinta-alan perusteella.
- Kohteen tyyppi
- Kerrostalo
- Kerros
- 5 / 5
- Rakennusvuosi
- 1960
- Käyttöönottovuosi
- 1960
- Kohde myydään vuokrattuna
- Ei
- Vapautuminen
- Sopimuksen mukaan
Hinta ja kustannukset
- Velaton hinta
- 499 000 €
- Myyntihinta
- 499 000 €
- Yhtiövastike
- Hoitovastike 537,60 € / kk (6,40 € / m², 84 m² mukaan (75 m² +parv. 9 m²)), Yhtiövastike yhteensä 537,60 € / kk
- Lisätietoja vastikkeista
- Varsinainen yhtiökokous 14.5.2025: - Valtuutettiin yksimielisesti hallitus perimään tarvittaessa 1-2 kuukauden ylimääräistä hoito- ja pääomavastiketta vastaava määrä taloudellisen tilanteen niin vaatiessa. - Päätettiin, että lainanlyhennysrahastoa voidaan kartuttaa enintään lainojen lyhennysten ja / tai huoneistokohtaisten hankeosuussuoritusten määrää vastaavalla summalla.
- Autopaikkamaksu
- 100 € / kk
- Saunamaksu
- 20 € / kk
- Vesimaksu
- 22 € / hlö / kk
- Neliöhinta
- 6 653,33 € / m²
- Lisätietoja maksusta
- Autopaikkavuokra (asukkaat): 100,00 € / hlö / kk Autopaikkavuokra (ulkopuoliset): 120,00 € / hlö / kk
Tilat ja materiaalit
- Keittiön kuvaus
- VARUSTUS: Induktioliesi, liesituuletin, integroitu uuni, integroitu mikroaaltouuni, hana, kaapisto, pesuallas, integroitu astianpesukone, jääkaappipakastin, kiinteät valaisimet. SEINÄT: Maali. VÄLITILA: Lasi. LATTIA: Parketti.
- Kylpyhuone
- VARUSTUS: Suihku, suihkuseinä, wc-istuin, hana, pesuallas, lattialämmitys, allaskaluste, peili, kiinteä valaisin. SEINÄT / LATTIA: Laatta.
- Makuuhuoneet
- MAKUUHUONE 1 - Makuuhuoneesta käynti tilavalle sisäpihan puoleiselle parvekkeelle. Makuuhuoneen yhteydessä vaatehuone. VARUSTUS: Kaapisto, ikkunoissa sälekaihtimet. SEINÄT: Maali. LATTIA: Parketti. MAKUUHUONE 2 - VARUSTUS: Liukuovikaapisto, ikkunoissa sälekaihtimet. SEINÄT: Maali. LATTIA: Parketti.
- Makuuhuoneiden lukumäärä
- 2
- Olohuone
- VARUSTUS: Ikkunoissa sälekaihtimet. SEINÄT: Maali. LATTIA: Parketti.
- Säilytystilojen kuvaus
- Asunnon yhteyteen kuuluu säilytyskomero vintillä, sekä pieni talouskellari kellarikerroksessa.
- Sauna
- Ei
Lisätiedot
- Asunnon kunto
- Hyvä
- Parveke
- Ulostyönnetty parveke
- Hissi
- Kyllä
- Muut tilat
- ETEINEN: VARUSTUS: Kaapisto. SEINÄT: Maali. LATTIA: Parketti.
Taloyhtiö ja kiinteistö
- Taloyhtiön nimi
- Asunto Oy Helsingin Kalevanranta
- Isännöitsijätoimisto
- Isännöitsijätoimisto Fallenius Oy
- Isännöitsijän nimi
- Danny Fallenius
- Isännöitsijän sähköposti
- [email protected]
- Isännöitsijän puhelin
- 050 321 8503
- Tontin pinta-ala
- 1 091,4 m²
- Tontin omistus
- Oma
- Tontin tiedot
- Yhtiö sijaitsee valinnaisella vuokratontilla. Tämän huoneiston osalta tonttiosuus on lunastettu. YHTIÖJÄRJESTYS 6 §: Yhtiö voi tonttia koskevan vuokrasopimuksen mukaisesti ostaa vuokra-alueena olevasta tontista murto-osia. Kunkin osakehuoneiston osakkeenomistajalla on oikeus maksaa huoneistokohtainen osuus 3 §:ssä tarkoitetun tontin lunastushinnasta yhtiölle, jonka tulee tämän jälkeen seuraavana vuokrasopimuksen mukaisena mahdollisena ajankohtana hankkia vastaava murto-osa tontista. Yhtiökokouskutsussa on tiedusteltava kaikilta yhtiössä asuinhuoneiston hallintaan oikeuttavien osakkeiden omistajilta, haluavatko nämä maksaa kokonaan huoneistokohtaisen osuutensa tontin lunastushinnasta, jolloin yhtiö tekee vastaavan lunastuksen yhtiön hallinnassa olevasta tontista vuokrasopimuksen mukaisesti.
- Käyttö/luovutusrajoitukset
- Myytävä huoneisto - Yhtiöllä ei ole lunastusoikeutta. Osakkailla ei ole lunastusoikeutta. Muut rajoitukset - Lunastusoikeus varasto-, autotalli- ja autohalliosakkeisiin (Yhtiöjärjestys 18 §).
- Rakennusmateriaali
- Tiili ja betoni
- Lämmitysjärjestelmä
- Kaukolämpö
- Ilmanvaihto
- Painovoimainen ilmanvaihto
- Kattotyyppi
- Harjakatto
- Katemateriaali
- Kupari
- Lisätietoja kiinteistönhoidosta
- Huoltoyhtiö
- Kiinteistönhoidon lisätiedot
- Kiinteistöpalvelu Rajala Oy
- Lunastusoikeus yhtiöllä
- Ei
- Lunastusoikeus osakkaille
- Ei
- Kohteesta on energiatodistus
- Kyllä
- Energialuokka
- F2018
- Energiatodistuksen voimassaolo
- 21.5.2033
- Taloyhtiöön kuuluu
- Yhtiön välittömään hallintaan jäävät kellarikerroksessa sijaitsevat seuraavat tilat: Saunaosasto 31 m² Pesutupa 12 m² Ulkoiluvälinevarasto nro 1 15 m² Ulkoiluvälinevarasto nro 2 7 m² Väestösuoja 55 m² Lämmönjakohuone 21 m² Sähkökeskus 4 m² Varastotilaa 2 kpl yht. 11 m²
- Palvelut
- PALVELUT: Hietalahden alue tarjoaa laajan kattauksen päivittäisiä palveluita aivan kävelymatkan päässä. Lähistöllä sijaitsevat muun muassa S-market, Lidl ja KMarket. Alueelta löytyy myös erikoisliikkeitä, kahviloita ja ravintoloita joka makuun - muun muassa legendaarinen Hietalahden kauppahalli on vain muutaman korttelin päässä. Alueella toimii useita kivijalkamyymälöitä, kampaamoja, apteekkeja ja liikuntakeskuksia. Myös Kampin ja keskustan palvelut ovat nopeasti saavutettavissa. PÄIVÄKODIT JA KOULUT: Alueella on useita päiväkoteja, kuten Päiväkoti Hietalahti ja Päiväkoti Loru, sekä useita kunnallisia ja yksityisiä vaihtoehtoja hieman laajemmalla säteellä. Lähimmät peruskoulut ovat Helsingin Saksalainen koulu ja Ressun peruskoulu, ja myös lukioita ja muita oppilaitoksia on runsaasti lähistöllä. Keskustan monipuoliset koulutusmahdollisuudet ovat helposti saavutettavissa. LIIKENNEYHTEYDET: Kalevankatu 57:n sijainti tarjoaa hyvät liikenneyhteydet. Raitiovaunupysäkit ovat aivan kulman takana, ja bussiyhteydet kulkevat pitkin Lönnrotinkatua sekä Mechelininkatua. Kampin metroasema ja linja-autoasema sijaitsevat kävelyetäisyydellä, ja pyöräilijälle alue tarjoaa hyvät väylät ympäri kaupunkia. Myös autolla liikkuminen on vaivatonta - pääväylät ja tunneliyhteydet ovat lähellä.
- Lisätietoja huoneiston autopaikasta
- Asunnon yhteydessä on mahdollisuus ostaa myös autohallipaikan nro 9 hallintaan oikeuttava osake, myyntihinta 40 000,00 euroa.
- Taloyhtiön autopaikat
- Yhtiön hallinnassa 13 kpl ulkoautopaikkaa. Autotallit ja hallipaikat ovat osakasomistuksessa.
- Autotallit
- 6
- Piha-autopaikkoja
- 13 kpl
- Autohallipaikat
- 25 kpl
- Taloyhtiöllä sauna
- Kyllä
- Kaavatilanne
- Asemakaava
- Lisätiedot kaavoituksesta
- Helsingin kaupunki asemakaavoitus Kansakoulukatu 3, 00100 Helsinki p. 09 310 1691 / https://kartta.hel.fi/
- Lisätietoja kunnossapitotarveselvityksestä
- Lukijan on huomattava, että kunnossapitotarveselvitys on hallituksen näkemys kunnossapitotarpeista viiden vuoden aikana. Päätökset mahdollisesti käynnistettävien kunnossapitotöiden ja muutostöiden suunnittelusta, toteutuksesta sekä rahoituksesta tehdään yhtiökokouksessa erikseen. Kunnossapitotarveselvityksessä mainitut toimenpiteet saattavat aikaistua tai myöhentyä. Myyjä ei vastaa taloyhtiön myöhemmin päättämistä kunnossapitotoimenpiteistä ja niistä aiheutuvista huoneistolle tulevista kustannuksista.
- Asbestikartoitus
- Ei
- Taloyhtiön kiinnitykset
- 1 276 000 €
- Taloyhtiön kiinnitysten päivämäärä
- Isännöitsijäntodistuksen päivämäärän mukainen
Tehdyt remontit
Tilikaudella on tehty normaaleja huoltotoimenpiteitä sekä vahinkokorjauksia.
Autohallin kaivonkaulusten ja kansien uusiminen tammikuussa 2025.
2024: Kiinteiden ikkunapainikkeiden lisäys huoneistojen ikkunoihin.
2022: Tonttivesijohdon uusiminen.
2021: Sähköautojen latauksen selvitys. Märkätilojen kartoitus. Ikkunoiden puuosien huoltokäsittely. Lämmitysverkoston perussäätö ja patteriventtiilien uusiminen
2020: Jäteastiasuojien hankinta.
2016: IV-kanavien puhdistus ja suodatinvaihto.
2015: Lämmönsiirtimen uusinta.
2014-2015: Kadun puolen huoneistoikkunat, sisäpihan julkisivun vanhat huoneistoikkunat, porrashuoneiden ovet ja ikkunat kunnostettu.
2006: Parvekkeiden rakentaminen sisäpihan puolelle.
2002-2003: Putkiremontti ja ilmanvaihtoremontti.
2000: Ikkunoiden kunnostaminen.
1994: Pihakannen uusinta vesieristyksineen, autotallin ilmastointi.
Tulevat remontit
2025
- Yleisten tilojen / autotallissa olevien alkuperäisten vesi- ja viemäriputkien uusinta.
- Autohallin kaivojen kaulusten ja kansien uusiminen.
- Autohallin viemärien saneeraus sukittamalla.
- Vanhojen vesijohtojen uusiminen autohalliin.
- Tonttiviemärin sukitus.
- Erottimen ja pienvesipumppaamon tarkistus ja mahdolliset korjaustoimenpiteet.
- Palovaroittimien asentaminen asuinhuoneistoihin.
2028-29
- Kiinteistön puurakenteisten ikkunoiden huoltotyöt.
- Ikkunoiden huoltokäsittely.
