Kahvipavunkuja 6 A
00990, Aurinkolahti, Vuosaari, Helsinki
3h+k+s+lasitettu parveke
330 000 € (4 583,33 € / m²)
72 m²

Tätä asuntoa myy Duarte Tammilehto, Myyntineuvottelija
Roof Helsinki | ROOF Group Oy

Sijainti
Asuntoesittely
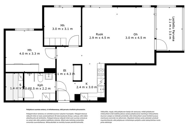
Tässä vuonna 2017 valmistuneessa yhtiössä sijaitsevassa kodissa on toimiva ja selkeä pohjaratkaisu. Asunnon sydämen muodostaa olohuoneen ja ruokailutilan yhdistelmä, josta on käynti lasitetulle parvekkeelle. Parveke tarjoaa mukavasti lisätilaa arkeen ja mahdollisuuden nauttia ulkoilmasta pitkälle syksyyn.
Keittiö on omassa kulmassaan, mutta avoimessa yhteydessä ruokailutilaan. Kaapistoja ja laskutilaa on hyvin, ja kodinkoneet on sijoiteltu käytännöllisesti
Asunnossa on kaksi makuuhuonetta, joista molemmissa on kaapistot säilytystä varten. Eteinen jatkaa samaa linjaa tarjoten lisää kaappitilaa.
Kylpyhuone on tilava, ja sinne mahtuu hyvin pesukone. Kylpyhuoneen yhteydessä on oma sauna, joka kutsuu rentoutumaan päivän päätteeksi. Asunnon kokonaisuutta täydentää valoisa ja rauhallinen tunnelma.
Asunnon yhteydessä mahdollista ostaa myös parkkihallista autopaikka erillisellä osakesarjalla.
Aurinkolahti on moderni ja viihtyisä kaupunginosa meren äärellä. Alue tunnetaan pitkästä hiekkarannastaan, rantabulevardista ja venesatamasta, jotka tarjoavat erinomaiset puitteet vapaa-ajan viettoon ympäri vuoden. Läheltä löytyvät monipuoliset palvelut, kuten kaupat, koulut ja päiväkodit, sekä liikuntamahdollisuudet niin ulkona kuin sisätiloissa. Alueelta on hyvät liikenneyhteydet metrolla ja bussilla, ja omalla autolla liikkuminen on sujuvaa. Aurinkolahdessa yhdistyvät merellinen ympäristö ja toimiva arki.
TIEDUSTELUT JA YKSITYISESITTELYVARAUKSET:
Duarte Tammilehto / 050 341 1676 tai [email protected]
OTATHAN YHTEYTTÄ JA VARAAT OMAN ESITTELYAJAN!
I can provide services also in English.
Get a roof.
www.roof.fi
Pohjakuva

Perustiedot
- Sijainti
- Kahvipavunkuja 6 A, 00990, Aurinkolahti, Vuosaari, Helsinki
- Omistusmuoto
- Omistusasunto
- Huoneluku
- 3
- Asuinpinta-ala
- 72 m²
- Kokonaispinta-ala
- 72 m²
- Pinta-alan peruste
- Yhtiöjärjestyksen mukainen, Isännöitsijäntodistuksen mukainen, (Pinta-ala ei ole tarkistusmitattu ja todellinen pinta-ala voi olla suurempi tai pienempi, kuin ilmoitettu)
- Lisätiedot pinta-alasta
- Ei tarkistusmitattu. Pinta-ala voi siis olla edellä mainittua pienempi tai suurempi.
- Kohteen tyyppi
- Kerrostalo
- Kerros
- 1 / 6
- Rakennusvuosi
- 2017
- Käyttöönottovuosi
- 2017
- Kohde myydään vuokrattuna
- Ei
- Vapautuminen
- Sopimuksen mukaan
Hinta ja kustannukset
- Velaton hinta
- 330 000 €
- Myyntihinta
- 330 000 €
- Yhtiövastike
- Hoitovastike 304,56 € / kk (4,23 € / m²), Yhtiövastike yhteensä 304,56 € / kk
- Lisätietoja vastikkeista
- Autohallipaikan hoitovastike on 25 euroa /kk
- Vesimaksu
- 20 € / hlö /kk ennakko, tasaus kulutuksen mukaan
- Neliöhinta
- 4 583,33 € / m²
- Lisätietoja maksusta
- Varsinaisessa yhtiökokouksessa 6.6.2025: - Päätettiin lisäksi myöntää hallitukselle valtuudet tarvittaessa periä tai olla perimättä 1-2 kuukauden hoito- ja/tai pääomavastike tai muuttaa pääomavastiketta vastaamaan mahd. muuttuneita lainanhoitokuluja, mikäli taloyhtiön taloudellinen tilanne niin vaatii/sallii. - Päätettiin rahastoida lainanlyhennysrahastoon osakkaiden ylimääräiset lainaosuussuoritukset. - Pääomavastikkeet tuloutetaan.
Tilat ja materiaalit
- Keittiön kuvaus
- Varustus: jääkaappi, pakastin, astianpesukone (Bosch), kiertoilmauuni (Bosch), liesituuletin (Savo), spottivalot Lattiamateriaali: parketti Seinä: maalattu Välitila: kaakeli
- Kylpyhuone
- Varustus: peilikaappi, allaskaappi, suihkuseinä, pyykkikaappi, säädettävät/himmennettävät kattovalot, pyykinpesukoneliitäntä. Lattia: kaakeli, lattialämmitys Seinä: kaakeli
- Makuuhuoneet
- Lattia: parketti Seinä: maalattu
- Makuuhuoneiden lukumäärä
- 2
- Olohuone
- Lattia: parketti Seinä: maalattu
- Kohteen säilytystilat
- Häkkivarasto
- Sauna
- Kyllä
- Saunan kuvaus
- Saunassa kuituvalot ja Harvian kiuas.
Lisätiedot
- Asunnon kunto
- Hyvä
- Näkymät
- Kävelykatu
- Parveke
- Lasitettu parveke
- Hissi
- Kyllä
- Muut tilat
- Eteinen, jossa liukuovikaapisto ulkovaatteille, lattia parketti, seinät maalattu
- Muut kaupan kannalta merkittävät tiedot
- Kesällä sopivan viileä Helsingin Kaupungin ympäristöterveysyksikön päällikkö on 18.6.2019 päättänyt määrätä tupakkalain (549/2016) 79 §:n mukaisen tupakointikiellon Asunto Oy Helsingin Arabican huoneistoparvekkeille ja huoneistopihoille. Päätös on voimassa toistaiseksi. Huoneiston haltija vastaa siitä, että hänen huoneistossaan noudatetaan ympäristöterveysyksikön päällikön antamaa määräystä. Osakkaan on ilmoitettava taloyhtiölle (isännöitsijätoimistoon) kaikista huoneistoremonteistaan kirjallisesti n. 4 viikkoa etukäteen ennen töiden aloittamista. Töitä ei saa aloittaa ennen taloyhtiön lupaa. Ilmoitusvelvollisuus on laaja ja sen ulkopuolelle jäävät käytännössä ainoastaan maalaus- ja tapetointityöt. Ilmoituksessa tulee olla riittävä selvitys remontista, esim. työselitys, suunnitelmat ja tekoajankohdat. Valmis lomakepohja löytyy isännöitsijätoimiston internet-sivuilta: www.aamu.io. Taloyhtiölle tulee antaa kohtuullinen aika käsitellä ilmoitusta. Yhtiöllä on oikeus asettaa työlle valvoja, jonka kohtuullisista kustannuksista vastaa remonttiin ryhtyvä osakkeenomistaja.
Taloyhtiö ja kiinteistö
- Taloyhtiön nimi
- Asunto Oy Helsingin Arabica
- Isännöitsijätoimisto
- Aamu & Isännöintipiste Oy
- Isännöitsijän nimi
- Tero Pitkänen
- Isännöitsijän sähköposti
- [email protected]
- Isännöitsijän puhelin
- 030 410 8615 (mpm/pvm)
- Taloyhtiön lisätiedot
- Yhtiöjärjestys 4 § Huoneistopihojen hoitovastuu: Huoneistojen B21, B22, B23 ja B24 hallintaan oikeuttavat osakkeet tuottavat oikeuden hallita liitekarttaan sinisellä rajattua huoneistokohtaista piha-aluetta. Asuntopihan hoitovastuu kuuluu em. huoneistolle. 5 § Parvekkeet ja terassit: Kukin osakkeenomistaja vastaa itse hallinnassaan olevien tilojen ja alojen (kuten terassien ja parvekkeiden) siivouksesta, puhtaanapidosta ja ylläpidosta sekä niistä aiheutuvista kustannuksista. Jätteet: Yhtiö huolehtii tavanomaisesta talousjätehuollosta hoitovastikkeella katettavana kustannuksena. Jos jonkin osakashallinnassa olevan tilan käytöstä aiheutuu ongelmajätettä tai poikkeuksellisen paljon jätettä (esim. pakkausjätettä), osakas vastaa itse tällaisen jätteen käsittelystä tai korvaa yhtiölle ylimääräiset kustannukset.
- Tontin pinta-ala
- 13 189 m²
- Tontin omistus
- Oma
- Rakennusmateriaali
- Betoni
- Lämmitysjärjestelmä
- Kaukolämpö
- Ilmanvaihto
- Koneellinen ilmanvaihto ja jäähdytysjärjestelmä: iv viilennys
- Kattotyyppi
- Tasakatto
- Katemateriaali
- Bitumikermi
- Lisätietoja kiinteistönhoidosta
- Huoltoyhtiö
- Kiinteistönhoidon lisätiedot
- Kiinteistöpalvelu Räsänen Oy
- Lunastusoikeus yhtiöllä
- Ei
- Lunastusoikeus osakkaille
- Ei
- Kohteesta on energiatodistus
- Kyllä
- Energialuokka
- C2013
- Energiatodistuksen voimassaolo
- 5.9.2027
- Taloyhtiöön kuuluu
- Kuivaushuone B-rappu, Kerhohuone A-rappu, lastevaunuvarasto A- rappu, pyöräkellari A-rappu Kerhohuoneeseen oma ovikoodi ja varaus tehdään yhtiön varausjärjestelmän kautta. 10/10M kiinteistöliittymä Saunalahti Ilmanvaihtojärjestelmä: Koneellinen/LTO Jäähdytysjärjestelmä: IV viilennys Hallinnanjako- ja rasitesopimukset (maininnat YJ 4 §:ssä) Yhteiset tilat: Yhtiön rakennuksessa sijaitsevat ulkoiluvälinevarastot ja kerhotila ovat hallinnanjakosopimusten perusteella myös muiden yhtiöiden tai kiinteistöjen asukkaiden käytössä. Yhteinen piha-alue, pyörävarasto ja jätehuoneet: ovat yhtiön osakkaiden käytössä hallinnanjakosopimuksen mukaisesti. Ajoväylä ja ajoramppi: Kiinteistöllä 91-54-99-10 on rasitesopimuksen perusteella oikeus käyttää yhtiön tontilla sijaitsevaa ajoneuvojen kulkuväylää ja ajoramppia pysäköintihalliin kulkuyhteytenään. Yhtiö kuuluu osapuolena 27.8.2019 allekirjoitettuun hallinnanjakosopimukseen, jossa sovitaan kiinteistön 91-54-99-9 hallinnonjaosta koskien yhteiskäytössä olevien autohallin, piha-alueen ja jätehuoneiden hallinnointia ja kustannusten jakoa. Tontin nro 9 kokonaispintaalasta 13 189 m² Asunto Oy Helsingin Arabican yksinomainen hallinta-alue on 800 m².
- Lisätietoja liikenneyhteyksistä
- Julkinen liikenne on sujuvaa ja monipuolista. Vuosaari-metroasema sijaitsee noin kilometrin päässä, josta matka Helsingin keskustaan taittuu noin 20 minuutissa. Lähistön pysäkeiltä kulkevat useat bussilinjat, kuten 90, 96, 90A, 96N, 90N ja 560, jotka täydentävät metroyhteyksiä. Myös yöliikenne palvelee alueen asukkaita. Autolla liikkuminen on helppoa: Vuosaaresta on hyvät yhteydet Kehä I:lle, Kehä III:lle ja Itäväylälle.
- Paikallistiedot
- Kahvipavunkuja 6 sijaitsee merellisessä ja luonnonläheisessä Aurinkolahdessa, jossa kaikki arjen tärkeät palvelut ja vapaa-ajan mahdollisuudet ovat kävelyetäisyydellä. Vieressä sijaitsee Columbus-kauppakeskus, jonka monipuolisesta tarjonnasta löytyvät muun muassa K-Supermarket, S-Market, Lidl, Alko, Tokmanni, Lindex, Hesburger, Subway, R-Kioski sekä apteekki. Lähistöllä on uimahalli, useita kuntosaleja, Aurinkolahden hiekkaranta sekä Uutelan luonnonsuojelualue kauniine ulkoilureitteineen.
- Taloyhtiön autopaikat
- Pysäköinti: 45 autopaikkaa ja 2 moottoripyöräpaikkaa (erillisinä osakkeina).
- Kaavatilanne
- Asemakaava
- Asbestikartoitus
- Ei
- Taloyhtiön kiinnitykset
- 14 883 120 €
- Taloyhtiön kiinnitysten päivämäärä
- Isännöitsijäntodistuksen päivämäärän mukainen
Tehdyt remontit
2024
Parvekelasituksien tarkastus
Ilmanvaihtokanavien nuohous ja ilmamäärien säätö
Porrashuoneiden kerroksien lasienpesut ulkopuolelta
Kameravalvonta autohalliin
2022
Kameravalvonta autohalliin
Sähköautolatausinfra autohalliin
2021 ja 2022
B portaan IV koneen (TK2) jäähdytysyksikön kompressorin uusiminen ( YIT takuu)
2021
Autohallin porraskäytävän oven automatisointi
A-rapun hissin käyttöjärjestelmän uusiminen (vakuutuskorvaus saatu)
2018-2020 Rakennuttajan vastuulle kuuluvat vuosikorjaukset
2018 Asuntokauppalain mukainen vuositarkastuskokous
Tulevat remontit
2025 Laaja kuntoarvio
2025-2027 Porrashuoneiden huoltomaalaus
2025-2028 Normaaleja vuosihuoltoja ja -korjauksia, yhtiö valmistunut vuonna 2017
Lukijan on huomattava, että kunnossapitotarveselvitys on hallituksen näkemys kunnossapitotarpeista viiden vuoden aikana. Päätökset mahdollisesti käynnistettävien kunnossapitotöiden ja muutostöiden suunnittelusta, toteutuksesta sekä rahoituksesta tehdään yhtiökokouksessa erikseen. Kunnossapitotarveselvityksessä mainitut toimenpiteet saattavat aikaistua tai myöhentyä. Myyjä ei vastaa taloyhtiön myöhemmin päättämistä kunnossapitotoimenpiteistä ja niistä aiheutuvista huoneistolle tulevista kustannuksista.
