Kaakamonkaari 27
33720, Hervantajärvi, Tampere
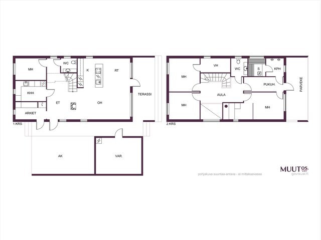
5h, k, khh, 2xerill.wc, kph/s, arkieteinen, vh, var, ak
478 000 €
142 m²

Tätä asuntoa myy Janne Savolainen, Kiinteistönvälittäjä LKV, Yrittäjä, Kaupanvahvistaja
Muutos LKV | JS Invest Oy

Sijainti
Asuntoesittely
Nyt on tarjolla todella upea, laadukas ja näyttävä omakotitalo Hervantajärven kasvavalta alueelta mahtavien ulkoilumaastojen välittömästä läheisyydestä!
Tämä talo on tyylikkäästi rakennettu, hieno kokonaisuus, joka on suunniteltu erityisesti lapsiperheen tarpeita ajatellen. Talon alakerrassa sijaitsee kivitasoilla varustettu saarekekeittiö, valoisa ja avara olohuone, yksi makuuhuone sekä kodinhoitohuone. Sisäänkäyntejä on kaksi ja toisen yhteydessä on reilulla säilytystilalla varustettu arkieteinen. Yläkertaan on sijoitettu kolme makuuhuonetta, kaksi vaatehuonetta sekä upeat pesutilat. Yläkerrassa on myös iso parveke. Talon molemmissa kerroksissa on erilliset wc:t. Pintamateriaalit ovat huolella valittuja ja talo on kauttaaltaan harmoninen kokonaisuus.
Autokatoksen yhteydessä on poikkeuksellisen tilava lämmin varasto, säilytystilaa on varmasti riittävästi. Lämmitysmuotona on luonnollisesti maalämpö ja A-energialuokan talossa sähkönkulutus on ollut erittäin maltillista. Viilennys on myös toteutettu maaviileän kautta. Energialuokka on myös mahdollistanut sen, että vielä tämän vuoden tonttivuokra on puoleen hintaan, joten asumiskustannukset ovat tässä talossa todella pienet.
Hervantajärvi on yksi Tampereen uusimpia ja kehittyvimpiä asuinalueita ja arkkitehtuurin lähtökohtana on ollut luonnon yhdistäminen urbaaniin asumiseen. Mahtavat lenkkimaastot ja rauhallisuus ovatkin Hervantajärveä leimaavia asioita ja kulkuyhteydet niin ratikalla, bussilla kuin autollakin ovat sujuvat. Lähikauppa sijaitsee muutaman sadan metrin päässä.
Ota yhteyttä ja sovi oma esittelysi tähän kauniiseen kotiin!
Lisätiedot ja esittelyt:
Janne Savolainen
Kiinteistönvälittäjä LKV, yrittäjä
Kaupanvahvistaja
045 6588 124
[email protected]
TAI
Atte Miikkulainen
Kiinteistönvälittäjä LKV, yrittäjä
040 019 6062
[email protected]
Perustiedot
- Sijainti
- Kaakamonkaari 27, 33720, Hervantajärvi, Tampere
- Huoneluku
- 5
- Asuinpinta-ala
- 142 m²
- Muu pinta-ala
- 17,7 m²
- Kokonaispinta-ala
- 159,7 m²
- Lisätiedot pinta-alasta
- Pinta-alat perustuvat myyjältä saatuihin tietoihin ja rakennuspiirustuksista laskettuihin arvioihin. Pinta-aloja ei ole tarkistusmitattu, mitattaessa pinta-alat saattavat olla ilmoitettua suurempia tai pienempiä. Hinta ei ole pinta-alaperusteinen. Rakennuspiirustusten mukainen kerrosala 153+37 m2, kerrosala (250 mm) 149+37 m2 ja huoneistoala 146 m2. Asuintilojen pinta-ala on laskettu rakennuspiirustuksista ja siihen on huomioitu kaikki asuinkäytössä olevat tilat, muihin tiloihin on laskettu varasto.
- Kohteen tyyppi
- Omakotitalo
- Kerros
- 2
- Rakennusvuosi
- 2021
- Lisätietoja rakennusvuodesta
- Lupatunnus 21-0471-R, myönnetty 28.04.2021. Yhden asunnon talon rakentaminen. Lopputarkastus pidetty 02.12.2021.
- Käyttöönottovuosi
- 2021
- Kohde myydään vuokrattuna
- Ei
- Vapautuminen
- Sopimuksen mukaan
Hinta ja kustannukset
- Myyntihinta
- 478 000 €
- Kiinteistövero (€/vuosi)
- 805,59 €
- Sähköliittymä siirtyy
- Kyllä
- Neliöhinta
- 3 366,20 € / m²
- Lisätietoja maksusta
- Tontin vuokra on vielä toistaiseksi puoleen hintaan, koska talo on A-energialuokassa. Normaali tontin vuokra on kaksinkertainen ilmoitettuun vuokraan nähden. Alennettu vuokra on vielä vuoden 2026 loppuun saakka. Sähkönkulutus ollut vuonna 2025 noin 9000 kwh, joka sisältää paljun lämmityksen sekä täyssähköauton latauksen. Puhtaanapito paikallisen jätehuoltoyrityksen taksoituksen mukaan. Vesi- ja jätevesi kulutuksen mukaan. Hulevesimaksu paikallisen taksoituksen mukaan. Esitetyt asumiskustannukset perustuvat nykykäyttöön ja voivat siten olla pienempiä tai suurempia, riippuen asukasmäärästä, asumistottumuksista sekä palveluntarjoajasta.
Tilat ja materiaalit
- Keittiön kuvaus
- Todella upea saarekekeittiö! Varustus: jääkaappi (integroitu), pakastin (integroitu), liesituuletin (integroitu liesitasoon), astianpesukone (integroitu). Liesi: induktio, erillisuuni. Työtasot: kivi. Lattia: betoni. Seinät: maalattu.
- Kylpyhuone
- Tyylikäs saunaosasto yläkerrassa. Varustus: suihku (x2). Lattia: laatta. Seinät: kaakeli.
- Erillinen WC
- Molemmissa kerroksissa erilliset wc:t. Lattia: laatta. Seinät: kaakeli, maalattu.
- Makuuhuoneet
- Neljä makuuhuonetta. Yläkerran yhdessä makuuhuoneessa vaatehuone, yhdessä pukeutumistila. Lattia: laminaatti, betoni. Seinät: maalattu.
- Olohuone
- Valoisa ja avara olohuone! Lattia: betoni. Seinät: maalattu.
- Kodinhoitohuone
- Käytännöllinen, erillinen kodinhoitohuone. Varustus: pesukoneliitäntä, pesuallas, pyykkikaapit. Lattia: laatta. Seinät: maalattu.
- Säilytystilojen kuvaus
- Runsaasti säilytystilaa. Autokatoksen yhteydessä lämmin, iso varastotila.
- Sauna
- Kyllä
- Saunan kuvaus
- Oma sauna. Lattia: laatta. Seinät: puu. Kiukaan tyyppi: sähkökiuas.
- Takka
- Takka ja aduron takka
Lisätiedot
- Asunnon kunto
- Hyvä
- Parveke
- On parveke
- Parvekkeen ilmansuunta
- Etelä
- Terassi
- Kyllä
- Muut tilat
- Pukuhuone.
- Muuta kauppaan kuuluvaa
- Sälekaihtimet/rullaverhot (lähes kaikissa ikkunoissa).
- Kauppaan ei kuulu
- Irtain
Taloyhtiö ja kiinteistö
- Tontin pinta-ala
- 468 m²
- Tontin omistus
- Vuokra
- Tontin tyyppi
- Tasamaatontti
- Tontin myyntityyppi
- Koko tontti
- Maanvuokraaja
- Tampereen kaupunki
- Tontin vuosivuokra
- 1 421,88 €
- Vuokra-aika päättyy
- 31.03.2071
- Rakennusmateriaali
- Puu
- Lämmitysjärjestelmä
- Maalämpö Vesikiertoinen lattialämmitys
- Ilmanvaihto
- Koneellinen ilmanvaihto
- Vesijohto
- Kunnallisvesi
- Viemäröinti
- Kunnallinen viemäriverkosto
- Kattotyyppi
- Harjakatto
- Katemateriaali
- Pelti
- Lisätietoa rakennusoikeudesta
- Kaavan mukainen kokonaisrakennusoikeus 160+v40 m², rakennuspiirustusten/rakennusluvan mukainen käytetty rakennusoikeus 153+v37 m².
- Kohteesta on energiatodistus
- Kyllä
- Energialuokka
- A2018
- Energiatodistuksen voimassaolo
- 1.12.2031
- Lisätietoja energiatodistuksesta
- E-luku: 65
- Tie perille
- Kyllä
- Kaavatilanne
- Asemakaava ja yleiskaava
- Kaavoitustiedot
- Sitova tonttijako. Lisätiedot: Tampereen kaupunki.
