Käikäläntie 58

16800, Hämeenkoski, Hollola
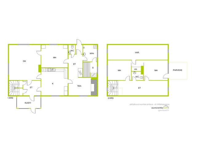
4h+k+et+takkah.+vh+2xwc+psh+s+kuisti+autotalli+2x kellari+teknt.
55 000 €
146 m²
Kohteen tyyppi
Omakotitalo
Rakennusvuosi
1953
Seuraava näyttö
Ei tiedossa
Tontti
Oma
Tätä asuntoa myy Henri Vilén, Kiinteistövälittäjä, toimitusjohtaja
Lammin Kiinteistökeskus LKV
Asuntoesittely
Vuonna 1953 rakennettu osin hirsi ja osin puurunkoinen kaksikerroksinen talo sijaitsee omalla 2150 m² tontilla. Talo mukautuu monenlaisiin elämäntilanteisiin – perheille tai tilaa arvostaville pariskunnille. Talon asuinpinta-ala on 146 m² ja taloa on peruskorjattu ja laajennettu vuonna 1978. Laajennuksen myötä taloon on saatu takkahuone, eteinen, wc, pesuhuone ja sauna. Sauna ja pesuhuone on remontoitu vuonna 2000, ja saunassa on varaus puukiukaalle. Talon kellarikerroksessa on autotalli, kaksi kellaria/verstasta ja tekninen tila. Talossa on kolme makuuhuonetta, joista kaksi sijaitsee yläkerrassa ja yksi alakerrassa. Talon lämmitys hoituu sähköllä ja puulla. Alakerran makuuhuoneessa on pönttöuuni, keittiössä leivinuuni ja takkahuoneessa on takka.
Perustiedot
Sijainti
Käikäläntie 58, 16800, Hämeenkoski, Hollola
Huoneluku
4
Asuinpinta-ala
146 m²
Muu pinta-ala
34 m²
Kokonaispinta-ala
180 m²
Pinta-alan peruste
Pinta-ala ei ole tarkistusmitattu ja todellinen pinta-ala voi olla suurempi tai pienempi, kuin ilmoitettu
Lisätiedot pinta-alasta
Ei tarkistusmitattu. Pinta-alat saattavat tämän ikäisissä kohteissa (rekisteröity ennen 01.01.1992) poiketa olennaisestikin asuinrakennusten nykyisten mittaustapojen ja standardien (SFS 5139) mukaan laskettavasta asuintilojen pinta-alasta. Pinta-ala voi siis olla edellä mainittua pienempi tai suurempi.
Kohteen tyyppi
Omakotitalo
Kerros
2
Rakennusvuosi
1953
Kohde myydään vuokrattuna
Ei
Vapautuminen
Sopimuksen mukaan
Hinta ja kustannukset
Myyntihinta
55 000 €
Kokonaissähkön kulutustiedot
17950 kWh / vuosi
Sähkölämmityskulut keskimäärin
300 € / kk
Keskimääräinen lämmityskustannus
300 € / kk
Vesi ja jätevesi (€/kk)
20 €
Puhtaanapito (€/kk)
10 €
Tiemaksut (€/vuosi)
65 €
Kiinteistövero (€/vuosi)
173 €
Sähköliittymä siirtyy
Kyllä
Neliöhinta
376,71 € / m²
Kotivakuutus
Tilat ja materiaalit
Keittiön kuvaus
Talon kylmälaite (kylmiö) sijaitsee keittiön viereisessä käytävässä.
Keittiön lattiat
Muovimatto
Keittiön seinät
Tapetti
Keittiön varusteet
Liesi, leivinuuni, ja liesituuletin
Liesi
Valurautaliesi
Kylpyhuone
Pesuhuone remontoitu v. 2000.
Kylpyhuoneen seinät
Kaakeli
Kylpyhuoneen lattiat
Laatta
Kylpyhuoneen varusteet
Suihku, pesuallas, peilikaappi, ja pesukoneliitäntä
WC Lukumäärä
2
WC:n lattiat
Muovimatto
WC:n seinät
Tapetti
Makuuhuoneet
Kaikissa makuuhuoneissa kokolattiamatto ja tapetoidut seinät. Kaksi makuuhuonetta sijaitsee talon yläkerrassa. Alakerran makuuhuoneessa pönttöuuni.
Makuuhuoneiden lukumäärä
3
Makuuhuoneiden seinät
Tapetti
Makuuhuoneiden lattiat
Kokolattiamatto
Olohuoneen seinät
Tapetti
Olohuoneen lattiat
Kokolattiamatto
Sauna
Kyllä
Kiuas
Sähkökiuas
Saunan kuvaus
Sauna remontoitu v. 2000. Saunassa varaus puukiukaalle.
Takka
Takka
Lisätiedot
Asunnon kunto
Tyydyttävä
Muut tilat
Takkahuoneessa tiili/paneliseinät.
Taloyhtiö ja kiinteistö
Tontin pinta-ala
2 150 m²
Tontin omistus
Oma
Tontin tyyppi
Rinnetontti
Tontin myyntityyppi
Koko tontti
Rakennusmateriaali
Hirsi ja puu
Lämmitysjärjestelmä
Sähkö Tyyppi: Sähköpatterit Kustannukset: 17950 kWh / vuosi Puu
Vesijohto
Vesikaivo naapurin puolella
Lisätietoja vesiputkesta
Vesikaivoon ei virallista käyttöoikeutta.
Viemäröinti
Umpisäiliö
Lisätietoja viemäristä
Noin 7 m3 umpisäiliö
Kattotyyppi
Harjakatto
Katemateriaali
Pelti
Kohteesta on energiatodistus
Ei lain edellyttämää energiatodistusta
Palvelut
Hämeenkosken keskustan palvelut noin 1,9 km.
Koulut
Hämeenkosken ala-aste noin 1 km.
Kaavatilanne
Yleiskaava
Rakennusvaihe
Valmis
Asbestikartoitus
Ei
Tehdyt remontit
Talo on peruskorjattu v. 1978, jolloin vanha rossipohja on purettu ja tilalle valettu betonilaatta. Samalla taloon on asennettu 100 mm eristevilla, julkisivu verhoiltu ja taloa laajennettu. Laajennuksessa taloon lisättiin takkahuone, eteinen, wc, pesuhuone ja sauna. Pesuhuone ja sauna remontoitu v. 2000.