Järvensivuntie 13 B
33100, Järvensivu, Tampere
3h+k+kph+wc+vh+lasitettu parveke
298 000 € (3 568,86 € / m²)
83,5 m²

Tätä asuntoa myy Petri Autio, Toimitusjohtaja/Yrittäjä, Kiinteistönvälittäjä LKV, LVV, KiAT, YJEAT, IAT
Autiotalot LKV Oy

Sijainti
Asuntoesittely
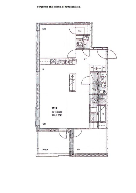
Tämä valoisa ja erittäin hyväkuntoinen hissitalon 3. kerroksen huoneisto sijaitsee suositulla Järvensivun alueella Tampereen keskustan tuntumassa. Vuonna 2006 valmistuneessa Asunto Oy Tampereen Tammiterassissa sijaitseva asunto tarjoaa modernia asumismukavuutta ja erinomaiset kulkuyhteydet – lähellä on niin bussipysäkki kuin sujuvat yhteydet autollakin.
Asunnossa on avara olohuone/keittiö, kaksi makuuhuonetta, oma sauna, kaksi wc:tä ja lasitettu parveke, jolta avautuvat näkymät etelään ja länteen. Asunnon varustukseen kuuluu myös ilmalämpöpumppu.
Yhtiössä on huolehdittu kunnossapidosta säännöllisesti, ja tulevat remontit on suunniteltu huolella. Asukkaiden käytössä on muun muassa urheiluvälinevarasto ja kuivaushuone. Mahdollisuus ostaa erillinen autohallipaikka, jossa sähköauton latausmahdollisuus (hp. 16 000 €).
Tartu tilaisuuteen ja tule tutustumaan tähän upeaan kotiin, joka yhdistää kaupunkiasumisen ja luonnonläheisyyden parhaat puolet!
Lisätiedot Petri Autio p. 040 456 0550 tai [email protected].
Perustiedot
- Sijainti
- Järvensivuntie 13 B, 33100, Järvensivu, Tampere
- Omistusmuoto
- Omistusasunto
- Huoneluku
- 3
- Asuinpinta-ala
- 83,5 m²
- Kokonaispinta-ala
- 83,5 m²
- Pinta-alan peruste
- Yhtiöjärjestyksen mukainen, Isännöitsijäntodistuksen mukainen, (Pinta-ala ei ole tarkistusmitattu ja todellinen pinta-ala voi olla suurempi tai pienempi, kuin ilmoitettu)
- Kohteen tyyppi
- Kerrostalo
- Kerros
- 3 / 8
- Rakennusvuosi
- 2006
- Käyttöönottovuosi
- 2006
- Kohde myydään vuokrattuna
- Ei
- Vapautuminen
- Sopimuksen mukaan
- Lisätietoja vapautumisesta
- Vapautuu kaupanteosta 2kk.
Hinta ja kustannukset
- Velaton hinta
- 298 000 €
- Myyntihinta
- 298 000 €
- Yhtiövastike
- Hoitovastike 409,15 € / kk (4,90 € / m²), Yhtiövastike yhteensä 409,15 € / kk
- Vesimaksu
- 20 € / hlö / kk
- Neliöhinta
- 3 568,86 € / m²
- Lisätietoja maksusta
- Taloyhtiön hallitukselle on annettu valtuutus periä (tai olla perimättä) ylimääräistä vastiketta yhtiön taloudellisen aseman tai maksuvalmiuden sitä vaatiessa
Tilat ja materiaalit
- Keittiön lattiat
- Parketti
- Keittiön seinät
- Laatta ja maali
- Keittiön varusteet
- Jääkaappi, jääkaappipakastin, liesituuletin, liesi, ja astianpesukone
- Liesi
- Keraaminen liesi
- Kylpyhuoneen seinät
- Kaakeli
- Kylpyhuoneen lattiat
- Laatta
- Kylpyhuoneen varusteet
- WC-istuin, suihku, suihkuseinä, pesukoneliitäntä, lattialämmitys, peilikaappi, pesuallas, allaskaappi, ja bidee-suihku
- WC Lukumäärä
- 1
- WC:n lattiat
- Laatta
- WC:n seinät
- Kaakeli
- Makuuhuoneiden lukumäärä
- 2
- Makuuhuoneiden seinät
- Maali
- Makuuhuoneiden lattiat
- Parketti
- Olohuoneen seinät
- Maali
- Olohuoneen lattiat
- Parketti
- Kohteen säilytystilat
- Vaatehuone ja häkkivarasto
- Sauna
- Kyllä
- Kiuas
- Sähkökiuas
Lisätiedot
- Asunnon kunto
- Erinomainen
- Parveke
- Lasitettu parveke
- Parvekkeen ilmansuunta
- Etelä ja länsi
- Hissi
- Kyllä
- Muuta kauppaan kuuluvaa
- Ilmalämpöpumppu.
Taloyhtiö ja kiinteistö
- Taloyhtiön nimi
- Asunto Oy Tampereen Tammiterassi
- Isännöitsijätoimisto
- Kiinteistö-Tahkola Tampere Oy
- Isännöitsijän nimi
- Fanni Mustajärvi
- Isännöitsijän sähköposti
- fanni.mustajä[email protected]
- Isännöitsijän puhelin
- 0207 488 317
- Tontin pinta-ala
- 2 186 m²
- Tontin omistus
- Vuokra
- Maanvuokraaja
- Tampereen kaupunki
- Tontin vuosivuokra
- 42 058,64 €
- Vuokra-aika päättyy
- 30.10.2064
- Rakennusmateriaali
- Betoni ja tiili
- Lämmitysjärjestelmä
- Kaukolämpö
- Ilmanvaihto
- Tulo- ja poistoilmanvaihto lämmön talteenotolla
- Vesijohto
- Kunnallisvesi
- Viemäröinti
- Kunnallinen viemäriverkosto
- Kattotyyppi
- Tasakatto
- Katemateriaali
- Huopa
- Lisätietoja kiinteistönhoidosta
- Huoltoyhtiö
- Taloyhtiössä on
- Urheiluvälinevarasto, kaapeli-tv, ja kuivaushuone
- Lunastusoikeus yhtiöllä
- Ei
- Lunastusoikeus osakkaille
- Ei
- Kohteesta on energiatodistus
- Kyllä
- Energialuokka
- D2018
- Energiatodistuksen voimassaolo
- 15.10.2034
- Liikenneyhteydet
- Bussipysäkki lähellä, sujuvat yhteydet omalla autolla, hyvä kulkuyhteys ja kaupunkiliikenneyhteys
- Lisätietoja huoneiston autopaikasta
- Mahdollisuus ostaa erillinen autohallipaikka, hp. 16 000 €.
- Piha-autopaikkoja
- 12 kpl
- Autohallipaikat
- 30 kpl
- Kaavatilanne
- Asemakaava
- Lisätiedot kaavoituksesta
- Tampereen kaupunki
- Taloyhtiön kiinnitykset
- 4 507 100 €
- Taloyhtiön kiinnitysten päivämäärä
- Isännöitsijäntodistuksen päivämäärän mukainen
Tehdyt remontit
Kunnossapitotarveselvityksen mukaan:
2013 Kuntoarviot, Pesu- ja WC-tilojen kuntokartoitus.
2016 Ilmastointijärjestelmien korjaukset, Ilmanvaihtokanavien puhdistus, ilmamäärien säätö, laitteiden huolto, Ulkopuolisten rakenteiden korjaukset, Pihan puurakenteiden huoltokäsittely sis. lahovauriokorjauksia, Porraskäytävätilojen korjaukset,Porraskäytävän ja kellarikäytävien seinien maalausta.
2017 Korjaussuunnittelun, -valvonnan, ym. veloitukset, Julkisivujen, parvekkeiden ja vesikaton kuntoarvio.
2018 Kattorakenteiden korjaukset, Kattoluukkujen uusiminen.
2021 Sisäpuolisten lukostojen, sulkijoiden, ym. korjaukset, Lukitusten uusiminen elektroniseksi lukitukseksi, Osakashallinnassa olevien huoneistojen märkätilojen vesieristeiden korjaukset,
Pesu- ja WC-tilojen kuntokartoitus.
2022 Ulkopuolisten rakenteiden korjaukset. Parvekkeiden sisäpuolisia korjauksia.
2023 Ulkoseinien korjaukset. Elementtisaumojen osittainen uusiminen. Sähköjärjestelmien korjaukset. Porraskäytävien valaisimien uusinta.
Tulevat remontit
Kunnossapitotarveselvityksen mukaan:
2025 Muiden sisäpuolisten rakenteiden korjaukset. Porrashuoneen maalauskunnostus. Turva- ja valvontajärjestelmien korjaukset. Palovaroittimet taloyhtiön vastuulle. Piha-aitojen, porttien ym. korjaukset. Pihan puutarhatyöt ja kunnostaminen
2026 Ilmastointijärjestelmien korjaukset, Ilmanvaihtokanavien puhdistus, ilmamäärien säätö, laitteiden huolto.
2027 Kuntoarviot, Pesu- ja WC-tilojen kuntokartoitus.
2028 Lämmitysjärjestelmien korjaukset. Lämmönjakolaitteiston uusiminen, patteri- ja linjasäätöventtiilien uusiminen, lämmitysverkoston perussäätö (suunnittelu ja toteutus).
Toistuvat huolto/ tarkastus: Palovaroittimien uusiminen 2035. Rakennusautomaatiojärjestelmien korjaukset. Kiinteistöautomaatiolaitteiden/lämmönjakolaitteiston tarkastus- ja huoltokäynti 1 krt / vuosi, Vesi- ja viemärijärjestelmien korjaukset. Sadevesikaivojen hiekkapesien tyhjennys 1 krt / vuosi.
Muiden erityislaitteiden ja koneiden korjaukset. Huoneistokohtaisten lämmöntalteenottolaitteiden suodattimien vaihto 2 krt/vuosi ja laitteiden huolto 1 krt/vuosi, Kattorakenteiden korjaukset Vesikaton huoltokäynti 1 krt / vuosi.
