Itäinen Suursuonkuja 3 A
04130, Nikkilä, Sipoo
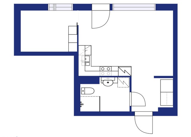
1h, avok., alkovi, kph
109 000 € (3 205,88 € / m²)
34 m²

Tätä asuntoa myy Nina Lång, Kiinteistönvälittäjä LKV, KiAT
KOTI LKV | Uudenmaan Laatuvälitys Oy

Sijainti
Asuntoesittely
Tervetuloa tutustumaan tähän selkeäpohjaiseen ja viihtyisään kotiin! Vuonna 2016 valmistuneessa, omalla tontilla sijaitsevassa taloyhtiössä asuminen on huoletonta ja kustannustehokasta – vastike on edullinen ja yhtiö on nykyaikainen sekä hyvin hoidettu.
Asunnon pohjaratkaisu on toimiva ja arkea helpottava. Keittiö ja oleskelutila muodostavat luontevan kokonaisuuden, jossa on helppo viihtyä . Kylpyhuone on moderni sekä käytännöllinen. Erillinen makuualkovi toimii kuten makuuhuonekin ja liukuovella saat myös yksityisyyttä.
Taloyhtiössä on hissi ja esteettömyys on huomioitu jo suunnitteluvaiheessa – kulku on sujuvaa ja ratkaisut sopivat hyvin myös liikuntaesteisille. Tämä tekee kodista erinomaisen vaihtoehdon monenlaisiin elämäntilanteisiin.
Sijainti on Nikkilässä erinomainen: palvelut, kaupat ja terveyskeskus ovat kävelyetäisyydellä. Samalla ympäristö tarjoaa runsaasti luontoa, ulkoilureittejä ja vehreitä maisemia, jotka kutsuvat liikkumaan ja rentoutumaan ympäri vuoden. Nikkilän kehittyvä keskusta yhdistää pienen paikkakunnan rauhan ja toimivan arjen.
Tämä koti sopii loistavasti niin omaan käyttöön kuin sijoitukseen – moderni taloyhtiö, hyvä sijainti ja vaivaton asuminen tekevät tästä kokonaisuudesta erittäin houkuttelevan.
Perustiedot
- Sijainti
- Itäinen Suursuonkuja 3 A, 04130, Nikkilä, Sipoo
- Omistusmuoto
- Omistusasunto
- Huoneluku
- 1
- Asuinpinta-ala
- 34 m²
- Kokonaispinta-ala
- 34 m²
- Pinta-alan peruste
- Yhtiöjärjestyksen mukainen, Isännöitsijäntodistuksen mukainen, (Pinta-ala ei ole tarkistusmitattu ja todellinen pinta-ala voi olla suurempi tai pienempi, kuin ilmoitettu)
- Lisätiedot pinta-alasta
- Ei tarkistusmitattu. Pinta-ala voi siis olla edellä mainittua pienempi tai suurempi.
- Kohteen tyyppi
- Kerrostalo
- Kerros
- 3 / 5
- Rakennusvuosi
- 2016
- Käyttöönottovuosi
- 2016
- Kohde myydään vuokrattuna
- Kyllä
- Vapautuminen
- 30.4.2026 mennessä
Hinta ja kustannukset
- Velaton hinta
- 109 000 €
- Myyntihinta
- 109 000 €
- Yhtiövastike
- Hoitovastike 163,20 € / kk, Yhtiövastike yhteensä 163,20 € / kk
- Autopaikkamaksu
- 20 € / kk
- Vesimaksu
- 22 € / hlö /kk ennakko, tasaus kulutuksen mukaan
- Neliöhinta
- 3 205,88 € / m²
- Lisätietoja maksusta
- Taloyhtiön hallitukselle on annettu valtuutus periä (tai olla perimättä) ylimääräistä vastiketta yhtiön taloudellisen aseman tai maksuvalmiuden sitä vaatiessa
Tilat ja materiaalit
- Keittiön kuvaus
- Kaunis avokeittiö, Varustus: jääkaappi/pakastin, liesituuletin, astianpesukone. Liesi: keraaminen (varusteltu turvakytkimellä/ajastimella.). Työtasot: laminaatti. Lattia: parketti. Seinät: maalattu.
- Kylpyhuone
- Tilava kylpyhuone. Varustus: suihkuseinä, lattialämmitys, wc-istuin, suihku, peili. Lattia: laatta. Seinät: kaakeli.
- Makuuhuoneet
- Virallisesti alkovina kirjattu erillinen huone/tila, jossa vaatekaapistot. Lattia: parketti. Seinät: maalattu.
- Olohuone
- Valoisa olohuone yhdistyy avokeittiön kanssa avoimeksi tilaksi. Lattia: parketti. Seinät: maalattu.
- Kohteen säilytystilat
- Häkkivarasto
Lisätiedot
- Asunnon kunto
- Erinomainen
- Näkymät
- Vapaat ja suojaisat näkymät.
- Parveke
- Ei parveketta
- Hissi
- Kyllä
- Muut tilat
- Tilava sisääntuloeteinen
- Lisätietoa liikuntarajoituksista
- Rakennuksessa on otettu huomioon esteettömyys, turvallisuus ja hissillisen talon asumisen helppous.
Taloyhtiö ja kiinteistö
- Taloyhtiön nimi
- Asunto Oy Sipoon Toivola
- Isännöitsijätoimisto
- REIM Isännöinti, Porvoo
- Isännöitsijän nimi
- Martin Lydman
- Isännöitsijän puhelin
- 020 744 1762
- Tontin pinta-ala
- 5 010 m²
- Tontin omistus
- Oma
- Rakennusmateriaali
- Betoni
- Lämmitysjärjestelmä
- Kaukolämpö
- Ilmanvaihto
- Koneellinen ilmanvaihto
- Kattotyyppi
- Tasakatto
- Katemateriaali
- Pelti
- Lisätietoja kiinteistönhoidosta
- Huoltoyhtiö
- Kiinteistönhoidon lisätiedot
- Seiskaysi Oy
- Taloyhtiössä on
- Kaapeli-tv, kellarikomero, väestönsuoja, urheiluvälinevarasto, ja pyörävarasto
- Lunastusoikeus yhtiöllä
- Ei
- Lunastusoikeus osakkaille
- Ei
- Kohteesta on energiatodistus
- Kyllä
- Energialuokka
- C2013
- Energiatodistuksen voimassaolo
- 2.12.2025
- Sähköpistokepaikkoja
- 39 kpl
- Taloyhtiöllä sauna
- Ei
- Kaavatilanne
- Asemakaava
- Taloyhtiön kiinnitykset
- 5 099 360 €
- Taloyhtiön kiinnitysten päivämäärä
- Isännöitsijäntodistuksen päivämäärän mukainen
Tehdyt remontit
2020 Pyörävaraston rakentaminen
2017 Vuositakuukorjauksia
Tulevat remontit
2025 Kuntoarvio, jonka pohjalta tehdään seuraavien viiden – kymmenen vuoden kunnossapitotarvesuunnitelma
2025 Rakennuksen katon perushuolto
2025 Roskakatoksen aidan korjaus
2025 – 2026 Etupihan aidan kunnostuksen suunnittelu ja kunnostus
