Hyttitie 6 D
80170, Utra, Joensuu
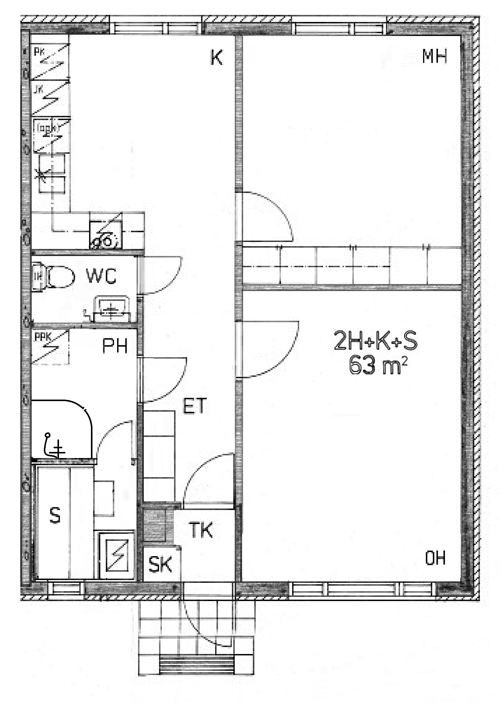
2h+k+ph+s+wc
69 000 € (1 095,24 € / m²)
63 m²
Tätä asuntoa myy Martti Liimatta
LKV OGZ | Jokaisen Huoneistokauppa Oy *

Sijainti
Asuntoesittely
Omalla tontilla olevan taloyhtiön 2h+k+s rivitalon päätyhuoneisto 63 m² !
Tässäpä tarjolla omalla tontilla olevan rivitaloyhtiön (rv. 1990) PÄÄTYHUONEISTO ja HETI KAUPASTA KÄYTTÖÖSI VAPAUTUVA mukava ja siistikuntoinen koti esim. ensikodiksi tai sijoittajalle.
Sijainniltaan ja kulkuyhteyksiltään vaivattomalla paikalla esim. lähin ruokakauppa Utran S-Market n. 550 m. Paikallisliikenteen pysäkille matkaa vain n. 200 m. Mukavat virkistysalueet aivan lähettyvillä esim. Utran saarille matkaa n. 1 km.
Asunnon lattiat saaneet uuden vinyylipinnan hetki sitten, pesuhuone ja sauna remontoitu 2012. Taloyhtiön putkiremonttikin tehty 2021-2022.
Asunnon seinäpinnat kaivannee uutta pintaa maalaten / tapetoiden.
Keittiökin mukavassa kunnossa jossa on täyskorkeat jää- ja pakastinkaapit.
Todella tilava makuuhuone jossa ei tarvitse kulkea sivuttain ja seinällinen vaatekaappeja.
Taloyhtiön yhteinen sisäpihan alue on kunnostettu viihtyisäksi jossa niin vanhemmat kuin myös leikki-ikäisetkin viihtyvät.
Otappa yhteyttä: J Ryhänen 050 4955 139Pohjakuva

Perustiedot
- Sijainti
- Hyttitie 6 D, 80170, Utra, Joensuu
- Omistusmuoto
- Omistusasunto
- Huoneluku
- 2
- Asuinpinta-ala
- 63 m²
- Kokonaispinta-ala
- 63 m²
- Pinta-alan peruste
- Yhtiöjärjestyksen mukainen, Isännöitsijäntodistuksen mukainen, (Pinta-ala ei ole tarkistusmitattu ja todellinen pinta-ala voi olla suurempi tai pienempi, kuin ilmoitettu)
- Kohteen tyyppi
- Rivitalo
- Kerros
- 1 / 1
- Rakennusvuosi
- 1990
- Käyttöönottovuosi
- 1990
- Kohde myydään vuokrattuna
- Ei
- Vapautuminen
- Heti
Tilat ja materiaalit
- Keittiön lattiat
- Vinyyli
- Keittiön seinät
- Maali ja tapetti
- Keittiön varusteet
- Jääkaappi, erillinen pakastin, ja liesi
- Liesi
- Keraaminen liesi
- Kylpyhuone
- • 2012 Remontoitu ja vaihdettu lattiakaivo • Kääntyvät, kaarevat suihkuovet • Seinäkaapisto
- Kylpyhuoneen seinät
- Kaakeli
- Kylpyhuoneen lattiat
- Laatta
- Kylpyhuoneen varusteet
- Suihku, pesukoneliitäntä, ja suihkuseinä ovet
- WC Lukumäärä
- 1
- WC:n lattiat
- Muovimatto
- WC:n seinät
- Tapetti
- Makuuhuoneet
- Yhden seinän leveydeltä kaapistorivi.
- Makuuhuoneiden lukumäärä
- 1
- Makuuhuoneiden seinät
- Maali ja tapetti
- Makuuhuoneiden lattiat
- Vinyyli
- Olohuoneen seinät
- Maali ja tapetti
- Olohuoneen lattiat
- Vinyyli
- Kohteen säilytystilat
- Seinäkaapit ja erillinen lämmin varastokomero
- Sauna
- Kyllä
- Kiuas
- Sähkökiuas
- Saunan kuvaus
- • 2012 remontoitu • Ikkuna.
Lisätiedot
- Asunnon kunto
- Tyydyttävä
- Terassi
- Kyllä
- Lisätietoja terassista
- Ulko-oven vieressä valokatteella katettu terassi.
- Lisätietoa seinien pintamateriaaleista
- Seinissä pääasiassa tapettia. Osa seinistä maalattua levyä. Seinäpinnat kaipaa uusimista oman tarpeen mukaan.
- Lisätietoa lattioiden pintamateriaaleista
- Huonetilojen lattiapinnat uusittu vinyylipintaiseksi 2025.
- Lisätietoa katon pintamateriaaleista
- Kuivien huonetilojen katot ruiskupinnoitettuja, kosteissa tiloissa MDF-paneeli ja saunassa puupaneeli.
- Muut kaupan kannalta merkittävät tiedot
- Hyvät ulkoilumahdollisuudet. Ulkoilureiteille pääsee vaivattomasti ja Utran saaren virkistysalue n. 1 km:n päässä.
Taloyhtiö ja kiinteistö
- Taloyhtiön nimi
- Asunto Oy Joensuun Utranhovi
- Isännöitsijätoimisto
- Joensuun Isännöinti-Ykköset Oy
- Isännöitsijän nimi
- Juha Rossi
- Isännöitsijän sähköposti
- [email protected]
- Isännöitsijän puhelin
- 010 406 4983
- Tontin pinta-ala
- 7 311 m²
- Tontin omistus
- Oma
- Rakennusmateriaali
- Puu, tiili ja tiiliverhoilu
- Lämmitysjärjestelmä
- Kaukolämpö
- Ilmanvaihto
- Koneellinen ilmanvaihto
- Vesijohto
- Kunnallisvesi
- Viemäröinti
- Kunnallinen viemäriverkosto
- Kattotyyppi
- Harjakatto
- Katemateriaali
- Pelti
- Lisätietoja kiinteistönhoidosta
- Huoltoyhtiö
- Taloyhtiössä on
- Kaapeli-tv, ulkoiluvälinevarasto, varastokomero (Lämpimiä tiloja), pesutupa, ja kuivaushuone
- Lunastusoikeus yhtiöllä
- Ei
- Lunastusoikeus osakkaille
- Ei
- Kohteesta on energiatodistus
- Ei lain edellyttämää energiatodistusta
- Liikenneyhteydet
- Bussipysäkki lähellä ja hyvät pyöräilytiet
- Lisätietoja liikenneyhteyksistä
- Bussipysäkit n. 200 m.
- Palvelut
- Lähin kauppa Utran S-market n. 550 m.
- Sähköpistokepaikkoja
- 30 kpl
- Taloyhtiöllä sauna
- Ei
- Kaavatilanne
- Asemakaava
- Asbestikartoitus
- Ei
Tehdyt remontit
• 2004 Ulkomaalaus • 2010-2011 Ulkopuolisten puuosien osittainen maalaus, jätekatkoksen uusiminen ja lämmitystolppien pistorasioiden uusiminen • 2012 Kuntoarvion laatiminen • 2013 Tonttipuiden kaato • 2015 Vesikaton kuntokartoitus, naapurin puoleisen raja-aidan uusiminen • 2015-2016 Vesikaton kunnostus, varaston ovien kunnostus, lukituksen muutos (sento) • 2016-2017 Ikkunoiden kunnostus, katon pesu ja huoltomaalaus • 2021-2022 Käyttövesiputkiremontti • 2023 Rännien korjauksia • 2025 IV-kanavien nuohous ja säätö
Tulevat remontit
Kunnossapitotarveselvityksessä ehdotettu vuosille 2025-2029 seuraavat kunnostustarpeet:
• Leikkipaikan kiikkujen kiinnitys, parkkipaikan paikkakorjaukset, mattotelineen korjaus.
• Rakennusten puuosien huoltomaalausta
• Loppujen kourujen/rännien uusiminen/korjaus
• Palovaroittimien asennus 2025 aikana
