Heikinkatu 20 as
55100, Imatrankoski, Imatra
3h+k+s
139 000 € (1 654,76 € / m²)
84 m²

Tätä asuntoa myy Oskari Lääperi, Kiinteistönvälittäjä LKV, LVV
RE/MAX Asuntomeklarit | T:mi Oskari Lääperi

Sijainti
Asuntoesittely
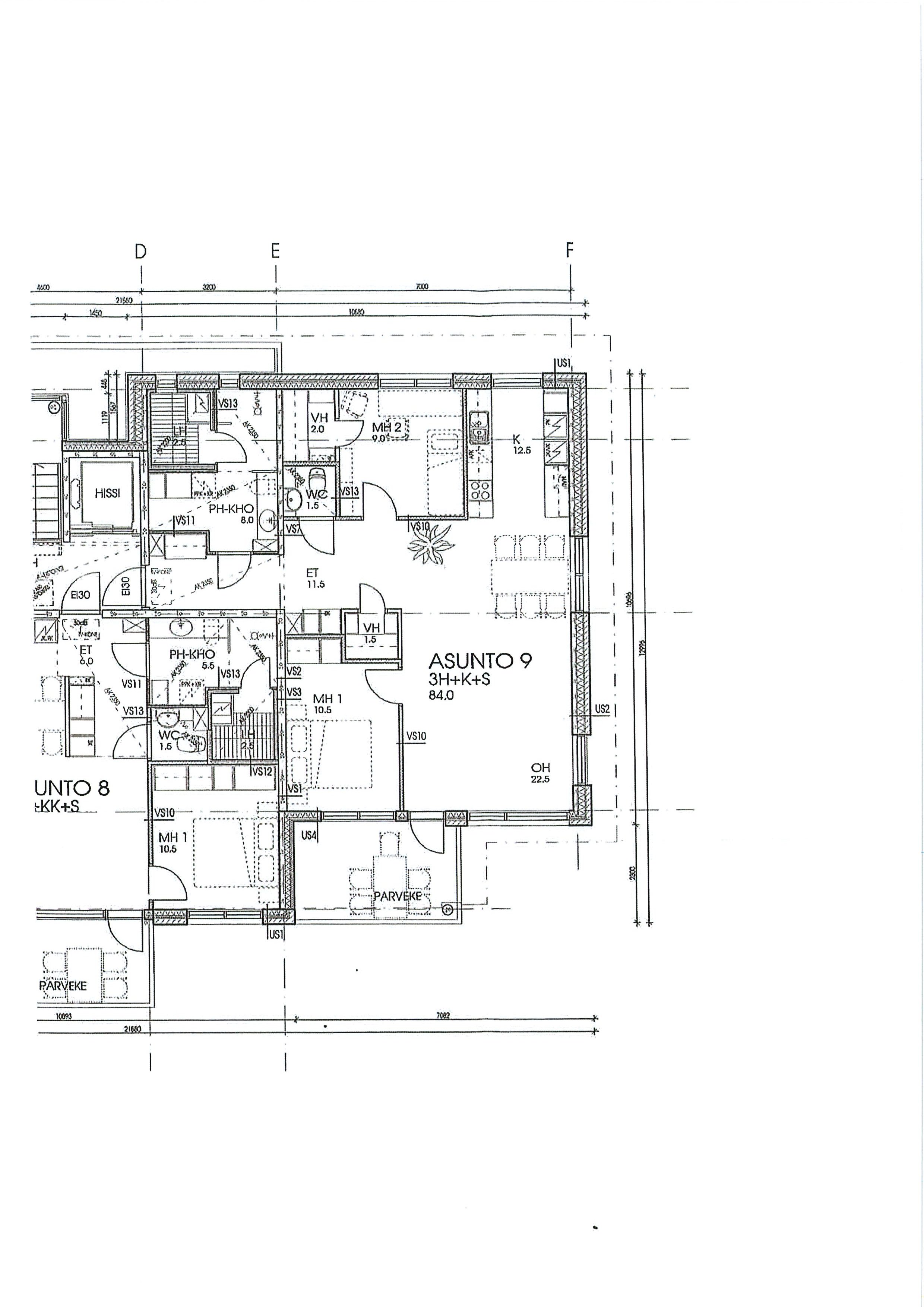
Tämä upea, erinomaisessa kunnossa oleva huoneisto sijaitsee Imatrankosken keskustassa. Asunto Oy Poutapesän ylimmän kerroksen (4/4) asunnossa on tilavat 84 neliötä, jotka tarjoavat mukavuutta ja viihtyisyyttä. Asunnossa on kaksi makuuhuonetta, olohuone, keittiö sekä oma sauna. Lisäksi asunnossa on jäähdytys ja iso parveke ilta-aurinkoon.
Rakennus on valmistunut vuonna 2006 ja siinä on hissi, mikä tekee liikkumisesta vaivatonta. Taloyhtiöllä on oma tontti, ja energialuokka on A2013, mikä kertoo energiatehokkuudesta.
Imatrankosken alue tarjoaa monipuoliset palvelut ja kauniit ulkoilumahdollisuudet aivan käden ulottuvilla. Tämä asunto on täydellinen valinta sinulle, joka arvostat laadukasta asumista ja keskeistä sijaintia.
Mahdollisuus saada autopaikka ja asunto heti vapaa!
Pohjakuva

Perustiedot
- Sijainti
- Heikinkatu 20 as, 55100, Imatrankoski, Imatra
- Omistusmuoto
- Omistusasunto
- Huoneluku
- 3
- Asuinpinta-ala
- 84 m²
- Kokonaispinta-ala
- 84 m²
- Pinta-alan peruste
- Isännöitsijäntodistuksen mukainen
- Kohteen tyyppi
- Kerrostalo
- Kerros
- 4 / 4
- Rakennusvuosi
- 2006
- Käyttöönottovuosi
- 2006
- Kohde myydään vuokrattuna
- Ei
- Vapautuminen
- Heti
Tilat ja materiaalit
- Keittiön lattiat
- Parketti
- Keittiön seinät
- Maali
- Keittiön varusteet
- Jääkaappi, erillinen pakastin, liesi, uuni, liesituuletin, astianpesukone, ja mikroaaltouuni
- Liesi
- Keraaminen liesi
- Kylpyhuoneen seinät
- Kaakeli
- Kylpyhuoneen lattiat
- Laatta
- Kylpyhuoneen varusteet
- WC-istuin, suihku, suihkuseinä, pesukoneliitäntä, lattialämmitys, peilikaappi, pesuallas, allaskaappi, ja bidee-suihku
- WC Lukumäärä
- 1
- WC:n lattiat
- Laatta
- WC:n seinät
- Kaakeli
- Makuuhuoneiden lukumäärä
- 2
- Makuuhuoneiden seinät
- Tapetti
- Makuuhuoneiden lattiat
- Parketti
- Olohuoneen seinät
- Tapetti
- Olohuoneen lattiat
- Parketti
- Kohteen säilytystilat
- Vaatehuone, kaapistot ja kellarikomero
- Sauna
- Kyllä
- Kiuas
- Sähkökiuas
Lisätiedot
- Asunnon kunto
- Erinomainen
- Näkymät
- Parveke länteen.
- Parveke
- Lasitettu parveke ja ulostyönnetty parveke
- Parvekkeen ilmansuunta
- Länsi
- Hissi
- Kyllä
Taloyhtiö ja kiinteistö
- Taloyhtiön nimi
- Asunto Oy Poutapesä
- Isännöitsijätoimisto
- Reim Lappeenranta Oy
- Isännöitsijän nimi
- Jari Joensuu
- Tontin pinta-ala
- 1 097 m²
- Tontin omistus
- Oma
- Rakennusmateriaali
- Betoni
- Lämmitysjärjestelmä
- Kaukolämpö
- Ilmanvaihto
- Koneellinen ilmanvaihto ja ilmastointilaite
- Vesijohto
- Kunnallisvesi
- Viemäröinti
- Kunnallinen viemäriverkosto
- Kattotyyppi
- Pulpettikatto
- Katemateriaali
- Pelti
- Lisätietoja kiinteistönhoidosta
- Huoltoyhtiö
- Kiinteistönhoidon lisätiedot
- Kosken Kiinteistöpalvelu Oy
- Taloyhtiössä on
- Kaapeli-tv, kuivaushuone, väestönsuoja, urheiluvälinevarasto, ja kellarikomero
- Kohteesta on energiatodistus
- Ei lain edellyttämää energiatodistusta
- Taloyhtiön autopaikat
- Autotallit ja -katos omina osakkeina.
- Autotallit
- 4
- Autokatokset
- 2
- Sähköpistokepaikkoja
- 7 kpl
- Taloyhtiöllä sauna
- Ei
- Kaavatilanne
- Asemakaava
