Arrankatu 2

37100, Asemantaka, Nokia
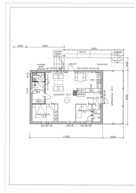
2mh, tupakeittiö, pesuhuone/wc, sauna, erillinen wc, vh, terassi, kylmä ulkovarasto
288 000 €
85 m²
Kohteen tyyppi
Omakotitalo
Rakennusvuosi
2025
Seuraava näyttö
Ei tiedossa
Tontti
Oma
Tätä asuntoa myy Toni Kaitasuo, Toimitusjohtaja, yrittäjä, LKV, LVV, KTM, ekonomi
Tampereen Arvohuoneistot Oy
Asuntoesittely
Löydä seuraava kotisi Nokian sydämestä, alueelta, jossa moderni ja viihtyisä omakotitalo odottaa asukkaitaan. Tämä uusi talo tarjoaa 85 neliömetriä tyylikästä ja valoisaa asuintilaa, johon kuuluu kaksi makuuhuonetta, avara tupakeittiö, erillinen wc, tilava pesuhuone/wc, ikkunallinen sauna sekä vaatehuone. Lisäksi löytyy erillinen kylmä ulkovarasto säilytystarpeisiin. Tämän kodin sydän on ehdottomasti sen tupakeittiö, joka on varustettu moderneilla ja laadukkailla kodinkoneilla. Tupakeittiön jatkeena on monikäyttöinen "lisätila", josta loihdit vaikkapa liukulasiseinän asentamalla upean ja monikäyttöisen työtilan! Tupakeittiössä näyttävä tulisija talvi-iltojen tunnelmointiin. Lisäksi talo on suunniteltu huomioiden valon merkitys – suuret ikkunat takaavat, että koti on aina täynnä luonnonvaloa. Energiatehokkuus on otettu huomioon talon suunnittelussa. Lämmitysjärjestelmänä toimii energiatehokas poistoilmalämpöpumppu. Talon sijainti on ihanteellinen: lähellä sijaitsevat koulu ja päiväkoti sekä Nokian keskustan monipuoliset palvelut. Lisäksi alueelta löytyvät hyvät liikenneyhteydet, joten liikkuminen on vaivatonta niin julkisilla kulkuvälineillä kuin omalla autollakin. Tämä koti tarjoaa upeat puitteet niin arkeen kuin juhlaankin. Se on suunniteltu vastaamaan nykyaikaisen perheen tarpeita, yhdistäen toimivuuden, viihtyisyyden ja energiatehokkuuden. Älä jätä tätä tilaisuutta käyttämättä – ota askel kohti unelmiesi kotia Nokialla. Myynti ja lisätiedot: Toni Kaitasuo LKV, LVV, KTM, ekonomi [email protected] 040-5279104 www.arvohuoneistot.fi
Pohjakuva
Perustiedot
Sijainti
Arrankatu 2, 37100, Asemantaka, Nokia
Huoneluku
3
Asuinpinta-ala
85 m²
Pinta-alan peruste
Pinta-ala ei ole tarkistusmitattu ja todellinen pinta-ala voi olla suurempi tai pienempi, kuin ilmoitettu
Lisätiedot pinta-alasta
Rakennuslupadokumenttien mukaan asuinrakennuksen huoneistoala on noin 85 m2 ja kerrosala on noin 100 m2 ja kerrosala 250mm on noin 94 m2. Kylmän varastorakennuksen kerrosala on noin 7 m2. Pinta-aloja ei ole tarkastusmitattu. Kauppahinta ei ole pinta-alaperusteinen.
Kohteen tyyppi
Omakotitalo
Kerros
1
Rakennusvuosi
2025
Kohde myydään vuokrattuna
Ei
Vapautuminen
Heti
Hinta ja kustannukset
Myyntihinta
288 000 €
Sähköliittymä siirtyy
Kyllä
Neliöhinta
3 388,24 € / m²
Lisätietoja maksusta
Varainsiirtovero 3%. Sähkön kulutus. Energiatodistuksen mukainen energian nettotarve on noin 11546 kwh/vuosi. Jätemaksut jätelaitoksen taksojen/roskien tyhjennyskertojen mukaan. Vesimaksut vesilaitoksen taksojen/kulutuksen mukaan. Kiinteistövero on ollut vuonna 2025 noin 354,53 € (kiinteistövero saattaa tästä vielä nousta). Hulevesimaksut kaupungin taksojen mukaan. Polttopuut. Nuohous.
Kotivakuutus
Tilat ja materiaalit
Keittiön kuvaus
Kaapistot, liesituuletin, astianpesukone, jääkaappi/pakastin, induktio keittotaso, erillisuuni, integroitu mikroaaltouuni. Keittiön lattia laminaattia. Työtasojen taustat pääosin välitilan levyä. Seinät pääosin tapettia.
Kylpyhuone
Suihku, wc-istuin, pesuallas/hana, pesukoneliitäntä. Lattia muovimattoa ja seinät kostean tilan levyä. (Pesuhuoneessa on sähkötoiminen mukavuuslattialämmitys).
Erillinen WC
Erillisen wc:n lattiat muovimattoa ja seinät levyä. Wc-istuin ja pesuallas/hana.
Makuuhuoneet
Makuuhuoneiden ja eteisen lattiat laminaattia ja seinät pääosin tapettia.
Olohuone
Lattia laminaattia ja seinät pääosin tapettia.
Kohteen säilytystilat
Kylmä ulkovarasto
Sauna
Kyllä
Saunan kuvaus
Saunan lattia muovimattoa ja seinät paneloitu, sähkökiuas, lasiovi, ikkuna.
Takka
Takka
Lisätiedot
Asunnon kunto
Uusi
Parveke
Ei parveketta
Terassi
Kyllä
Muut kaupan kannalta merkittävät tiedot
Harava-antenni. Kiinteistön sähkönkulutuksesta/energiankulutuksesta ei ole todelliseen asuinkäyttöön perustuvia kulutustietoja, koska kyseisessä talossa ei ole asuttu. Talossa on tulisija (ei varaava).
Taloyhtiö ja kiinteistö
Tontin pinta-ala
536 m²
Tontin omistus
Oma
Tontin tyyppi
Tasamaatontti
Tontin myyntityyppi
Koko tontti
Rakennusmateriaali
Puu
Lämmitysjärjestelmä
Poistoilmalämpöpumppu
Ilmanvaihto
Koneellinen poisto
Vesijohto
Kunnallisvesi
Viemäröinti
Kunnallinen viemäriverkosto
Kattotyyppi
Harjakatto
Katemateriaali
Pelti
Lisätietoa rakennusoikeudesta
Rakennusoikeus 250m2 (kerrosalaneliömetriä).
Kohteesta on energiatodistus
Kyllä
Energialuokka
B2018
Lisätietoja liikenneyhteyksistä
Linja-auto. Nokian rautatieasema.
Tie perille
Kyllä
Palvelut
Nokian keskustan palvelut.
Koulut
Alhoniityn koulu.
Kaavatilanne
Asemakaava
Kaavoitustiedot
Nokian kaupunki
Rakennusvaihe
Valmis
Asbestikartoitus
Ei