Annikintie 5 as
53500, Tirilä, Lappeenranta
2h+k+s
139 000 € (2 308,97 € / m²)
60,2 m²

Tätä asuntoa myy Oskari Lääperi, Kiinteistönvälittäjä LKV, LVV
RE/MAX Asuntomeklarit | T:mi Oskari Lääperi

Sijainti
Asuntoesittely
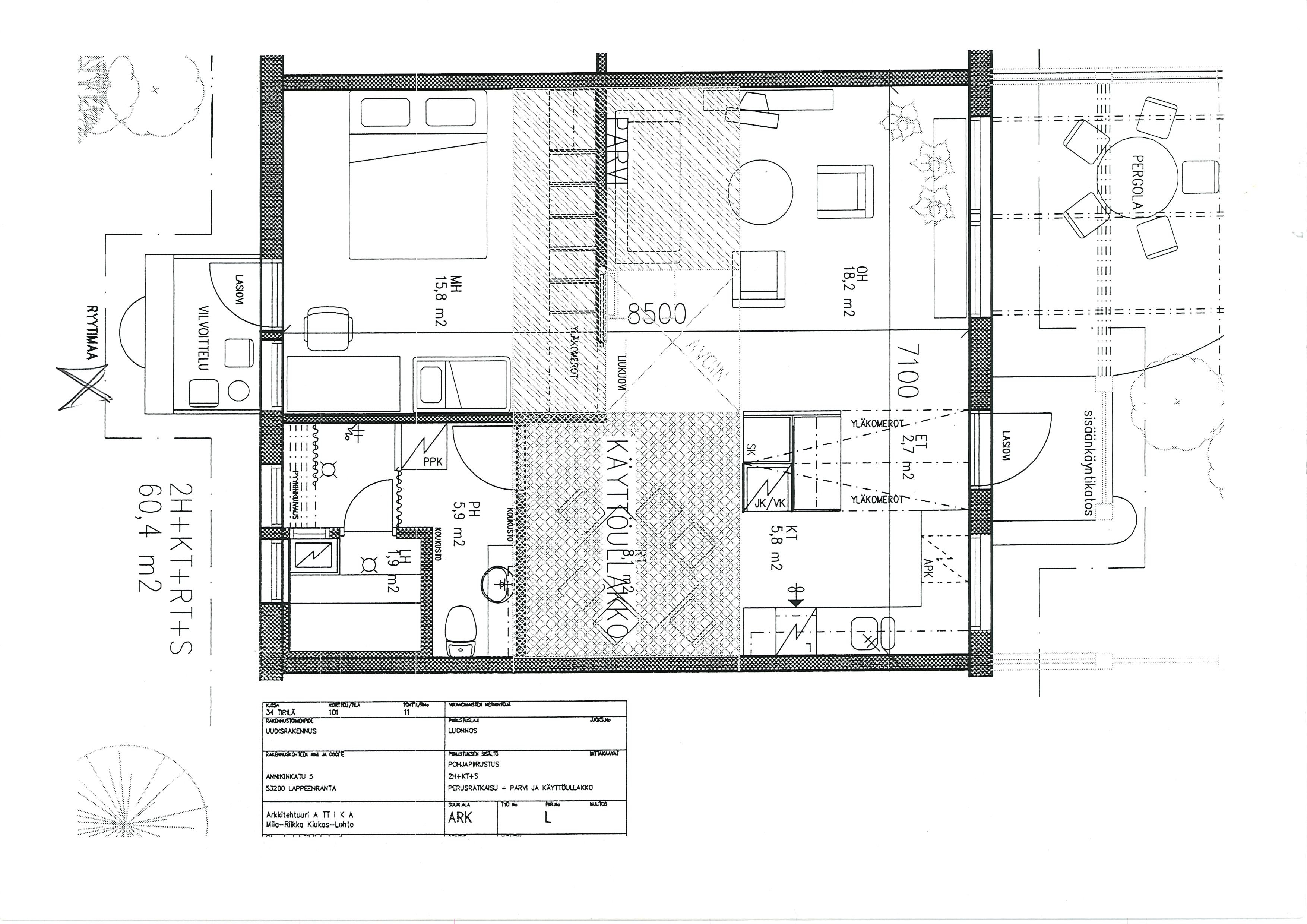
Tämä vuonna 2004 valmistunut rivitalokoti tarjoaa mukavaa asumista yhdessä tasossa. Kodin tilat ovat hyvässä kunnossa ja 60,2 neliön lisäksi käytössäsi on parvi, joka sopii mainiosti esimerkiksi työtilaksi tai lasten leikkipaikaksi.
Asunto Oy Lappeenrannan Annikintie 5 on pieni, viiden asunnon taloyhtiö, jossa on autopaikkoja on riittävästi.
Tirilän alue on rauhallinen ja viihtyisä, josta on yhteydet Lappeenrannan keskustaan. Tartu tilaisuuteen ja tee tästä asunnosta oma kotisi!
Pohjakuva

Perustiedot
- Sijainti
- Annikintie 5 as, 53500, Tirilä, Lappeenranta
- Omistusmuoto
- Omistusasunto
- Huoneluku
- 2
- Asuinpinta-ala
- 60,2 m²
- Kokonaispinta-ala
- 60,2 m²
- Pinta-alan peruste
- Isännöitsijäntodistuksen mukainen
- Lisätiedot pinta-alasta
- Pinta-alan lisäksi parvi, joka toimii nukkumatilana tai työhuoneena sekä lasten leikkitilana.
- Kohteen tyyppi
- Rivitalo
- Kerros
- 1 / 1
- Rakennusvuosi
- 2004
- Käyttöönottovuosi
- 2004
- Kohde myydään vuokrattuna
- Ei
- Vapautuminen
- Sopimuksen mukaan
Hinta ja kustannukset
- Velaton hinta
- 139 000 €
- Myyntihinta
- 136 637,39 €
- Velkaosuus
- 2 362,61 €
- Kokonaissähkön kulutustiedot
- 8.5 kWh / vuosi
- Yhtiövastike
- Hoitovastike 180,60 € / kk (3 € / m²), Rahoitusvastike 72,24 € / kk (1,20 € / m²), Yhtiövastike yhteensä 252,84 € / kk
- Lisätietoja vastikkeista
- Pääomavastike julkisivun maalauksesta.
- Vesimaksu
- 15 € / hlö /kk ennakko, tasaus kulutuksen mukaan
- Neliöhinta
- 2 308,97 € / m²
Tilat ja materiaalit
- Keittiön lattiat
- Laminaatti
- Keittiön seinät
- Maali
- Keittiön varusteet
- Jääkaappipakastin (2024), liesi, erillisuuni, astianpesukone, ja liesituuletin
- Liesi
- Keraaminen liesi
- Kylpyhuone
- Laatoitettu pesuhuone.
- Kylpyhuoneen seinät
- Kaakeli
- Kylpyhuoneen lattiat
- Laatta
- Kylpyhuoneen varusteet
- WC-istuin, suihku, suihkuseinä, pesukoneliitäntä, lattialämmitys, peilikaappi, pesuallas, allaskaappi, ja bidee-suihku
- Makuuhuoneiden lukumäärä
- 1
- Makuuhuoneiden seinät
- Tapetti
- Makuuhuoneiden lattiat
- Laminaatti
- Olohuoneen seinät
- Tapetti
- Olohuoneen lattiat
- Laminaatti
- Sauna
- Kyllä
- Kiuas
- Sähkökiuas
Lisätiedot
- Asunnon kunto
- Hyvä
Taloyhtiö ja kiinteistö
- Taloyhtiön nimi
- Asunto Oy Lappeenrannan Annikintie 5
- Isännöitsijätoimisto
- Isännöintitoimisto Kiinteistökulma Oy
- Isännöitsijän nimi
- Emmi Korttinen
- Tontin pinta-ala
- 1 384 m²
- Tontin omistus
- Oma
- Rakennusmateriaali
- Puu
- Lämmitysjärjestelmä
- Lattialämmitys Sähkö Tyyppi: Lattialämmitys koko asunnossa. Kustannukset: 8.5 kWh / vuosi
- Ilmanvaihto
- Koneellinen ilmanvaihto
- Vesijohto
- Kunnallisvesi
- Viemäröinti
- Kunnallinen viemäriverkosto
- Kattotyyppi
- Harjakatto
- Katemateriaali
- Tiili
- Lisätietoja kiinteistönhoidosta
- Asukkaat
- Kiinteistönhoidon lisätiedot
- Koneelliset lumityöt ulkopuoliselta.
- Taloyhtiössä on
- Ulkovarasto ja pyörävarasto
- Kohteesta on energiatodistus
- Kyllä
- Energialuokka
- E2018
- Energiatodistuksen voimassaolo
- 26.2.2029
- Huoneistoon kuuluu yhtiöjärjestyksen mukaan autopaikka
- Katospaikka
- Autokatokset
- 5
- Piha-autopaikkoja
- 5 kpl
- Taloyhtiöllä sauna
- Ei
- Kaavatilanne
- Asemakaava
