Ahvenkuja 4 D
02170, Haukilahti, Espoo
3h + k + kph
239 000 € (3 463,77 € / m²)
69 m²

Tätä asuntoa myy Axel Dressell, Myyntineuvottelija
Roof Espoo | ROOF LKV Espoo Oy

Sijainti
Asuntoesittely
Valoisa ja viihtyisä kolmioon Haukilahdessa!
Tervetuloa tutustumaan valoisaan ja viihtyisään kolmioon Haukilahdessa!
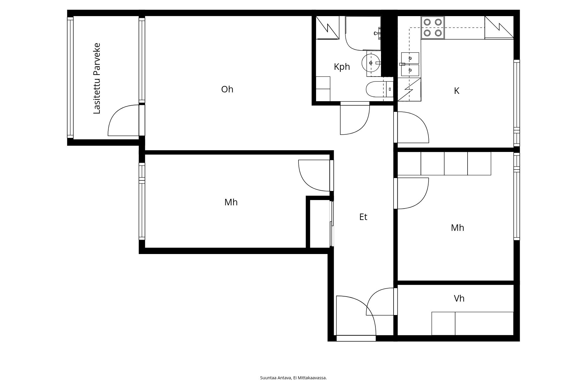
Toisessa kerroksessa sijaitseva viihtyisä päätyhuoneisto tarjoaa rauhallista asumista ja valoa koko päivän. Läpitalon huoneistossa on ikkunat molemmin puolin, ja olohuoneesta on käynti lasitetulle parvekkeelle. Sisäänkäynnin vierestä löytyy tilava vaatehuone, ja käytävällä on kaapisto peililiukuovilla.
Omalla tontilla sijaitseva Asunto Oy Espoon Ahvenpolku on valmistunut vuonna 1977. Yhtiössä on yhteensä 36 asuntoa ja 23 autopaikkaa, ja parhaillaan yhtiössä on valmistumassa salaojaremontti.
Espoon Haukilahdessa meri on aina lähellä – alue tunnetaan upeista rannoistaan, venesatamastaan ja tunnelmallisesta rantakahvilasta. Rauhallinen ja arvostettu asuinalue tarjoaa vihtyisää asumista ja loistavat ulkoilumahdollisuudet. Hyvät liikenneyhteydet ja läheiset Matinkylän ja Tapiolan palvelutarjonta tekevät Haukilahdesta täydellisen paikan yhdistää luonnonrauha ja kaupunkielämän mukavuudet.Pohjakuva

Perustiedot
- Sijainti
- Ahvenkuja 4 D, 02170, Haukilahti, Espoo
- Omistusmuoto
- Omistusasunto
- Huoneluku
- 3
- Asuinpinta-ala
- 69 m²
- Kokonaispinta-ala
- 69 m²
- Pinta-alan peruste
- Isännöitsijäntodistuksen mukainen, Yhtiöjärjestyksen mukainen, (Pinta-ala ei ole tarkistusmitattu ja todellinen pinta-ala voi olla suurempi tai pienempi, kuin ilmoitettu)
- Lisätiedot pinta-alasta
- Huoneiston pinta-ala on yhtiöjärjestyksen, isännöitsijäntodistuksen ja myyjän ilmoituksen mukaan 69 m2. Pinta-alaa ei ole tarkistusmitattu. Edellä mainittu pinta-ala saattaa tämän ikäisessä kohteessa poiketa olennaisestikin huoneiston nykyisen ja rakentamisaikaisen mittaustapojen ja standardien mukaan laskettavasta pinta-alasta. Huoneiston todellinen pinta-ala voi siis olla yhtiöjärjestyksessä, isännöitsijäntodistuksessa ja esitteessä mainittua pienempi tai suurempi.
- Kohteen tyyppi
- Kerrostalo
- Kerros
- 2 / 3
- Rakennusvuosi
- 1977
- Käyttöönottovuosi
- 1977
- Kohde myydään vuokrattuna
- Ei
- Vapautuminen
- Sopimuksen mukaan
Hinta ja kustannukset
- Velaton hinta
- 239 000 €
- Myyntihinta
- 239 000 €
- Yhtiövastike
- Hoitovastike 379,50 € / kk (5,50 € / m²), Yhtiövastike yhteensä 379,50 € / kk
- Autopaikkamaksu
- 22 € / kk
- Saunamaksu
- 10 € / kk
- Vesimaksu
- 26 € / hlö / kk
- Neliöhinta
- 3 463,77 € / m²
- Lisätietoja maksusta
- Autopaikka, lämmin 22 €/kk Autopaikka, kylmä 18 €/kk Taloyhtiön hallitukselle on annettu valtuutus periä (tai olla perimättä) ylimääräistä vastiketta yhtiön taloudellisen aseman tai maksuvalmiuden sitä vaatiessa
Tilat ja materiaalit
- Keittiön lattiat
- Vinyyli
- Keittiön seinät
- Maali
- Keittiön varusteet
- Jääkaappipakastin, erillisuuni, astianpesukone, ja liesituuletin (Suodati)
- Liesi
- Keraaminen liesi
- Kylpyhuoneen seinät
- Kaakeli
- Kylpyhuoneen lattiat
- Laatta
- Kylpyhuoneen varusteet
- WC-istuin, suihkukaappi, pesukoneliitäntä, peilikaappi, pesuallas, allaskaappi, ja bidee-suihku
- Makuuhuoneiden lukumäärä
- 2
- Makuuhuoneiden seinät
- Lasikuitutapetti ja maali
- Makuuhuoneiden lattiat
- Laminaatti
- Olohuoneen seinät
- Maali ja lasikuitutapetti
- Olohuoneen lattiat
- Laminaatti
- Kohteen säilytystilat
- Vaatehuone
Lisätiedot
- Asunnon kunto
- Tyydyttävä
- Parveke
- Lasitettu parveke
- Parvekkeen ilmansuunta
- Länsi
- Hissi
- Ei
Taloyhtiö ja kiinteistö
- Taloyhtiön nimi
- Asunto Oy Espoon Ahvenpolku - Bostads Ab Esbo Abborrstigen
- Isännöitsijätoimisto
- Kontu Isännöinti Oy
- Isännöitsijän nimi
- Juha Leksis
- Isännöitsijän puhelin
- 0923120607
- Tuotot
- 5596
- Tontin pinta-ala
- 4 621 m²
- Tontin omistus
- Oma
- Rakennusmateriaali
- Betoni
- Lämmitysjärjestelmä
- Kaukolämpö
- Ilmanvaihto
- Koneellinen poisto
- Vesijohto
- Kunnallisvesi
- Viemäröinti
- Kunnallinen viemäriverkosto
- Kattotyyppi
- Tasakatto
- Katemateriaali
- Huopa
- Lisätietoja kiinteistönhoidosta
- Huoltoyhtiö
- Kiinteistönhoidon lisätiedot
- Kiinteistöpalvelu Räsänen Oy Olarinluoma 10 02200 Espoo Puh: 010 2052525
- Taloyhtiössä on
- Urheiluvälinevarasto, kaapeli-tv, väestönsuoja, kuivaushuone, häkkivarasto, ja pesutupa
- Kohteesta on energiatodistus
- Kyllä
- Energialuokka
- E2018
- Energiatodistuksen voimassaolo
- 26.8.2034
- Taloyhtiöön kuuluu
- 2 kpl sauna. 1 Per rakennus.
- Lisätietoja liikenneyhteyksistä
- Linja-autopysäkki: Kuhatienahde noin 180 m Metroasema: Niittykummun metroasema A noin 830 m
- Palvelut
- S-market Haukilahti noin 360 m Lidl Pääkonttori noin 420 m Lidl Niittykumpu noin 480 m Kirjasto: Espoon kaupunginkirjasto Haukilahden kirjasto noin 660 m Terveyspalvelu: Espoon kaupunki Matinkylän terveysasema noin 1680 m Terveyspalvelu: Espoon kaupunki Matinkylän neuvola noin 1680 m
- Koulut
- Peruskoulu: Laajasalon peruskoulu noin 480 m Peruskoulu: Haukilahden koulu noin 500 m Peruskoulu: Toppelundin koulu noin 700 m Lukio: Etelä-Tapiolan lukio noin 1770 m
- Taloyhtiön autopaikat
- Autotallit ovat erillisiä osakesarjoja.
- Autotallit
- 15
- Piha-autopaikkoja
- 23 kpl
- Taloyhtiöllä sauna
- Kyllä
- Kaavatilanne
- Asemakaava
- Lisätiedot kaavoituksesta
- Haukilahden ostoskeskuksen alueen uudisrakentaminen: Haukilahden keskustaan suunnitellaan uusia asuntoja sekä liike- ja palvelutiloja purettavan ostos- ja kauppakeskuksen paikalle. Kaavamuutoksella halutaan parantaa jalankulkuympäristöä ja Ukkohauentien katujärjestelyjä. Uudisrakentaminen rajautuu Haukilahdenkadun ja Ukkohauentien väliselle alueelle. Paikalle tavoitellaan keskustamaisia asuintaloja ensimmäisen kerroksen liiketiloineen sekä uutta kaupunkiaukiota, jonka ympäristöön liiketilat keskittyvät. Kaupunkisuunnittelulautakunta on hyväksynyt kaavaehdotuksen kaupunginhallituksen käsiteltäväksi 27.11.2024. Hanna Kiema arkkitehti, asemakaavoitus +358 40 6365108 [email protected] Tekniikantie 15, Otaniemi Pysäköintinormien muutos Haukilahdessa: Asemakaavan muutoksen tavoitteena on muuttaa ja lieventää tonttien pysäköintimerkintöjä ja -määräyksiä. Käyttötarkoitus säilyy asuinkerrostalojen korttelialueena. Kaava etenee ehdotusvaiheeseen arviolta alkuvuodesta 2026. Juho Kuntsi asemakaavainsinööri +358 40 6343485 [email protected] Tekniikantie 15, Otaniemi
- Asbestikartoitus
- Ei
- Lisätietoa asbestikartoituksesta
- Kohde on valmistunut ennen vuotta 1994, eikä asbestikartoitusta ole tehty. Ennen vuotta 1994 valmistuneiden rakennusten korjaustöiden osalta otettava huomioon Laki eräistä asbestipurkutyötä koskevista vaatimuksista 684/2015 sekä Valtioneuvoston asetus asbestityön turvallisuudesta 798/2015. Mikäli huoneistossa aikoo tehdä tai teettää remontin, hänen tulee tietyissä tapauksissa teettää asbestikartoitus purettaviin materiaaleihin. Asbestikartoitusvelvollisuus ei koske rakennuksessa tehtäviä vähäisiä töitä, kuten reikien poraamista seiniin tai kattoon.
- Taloyhtiön kiinnitysten päivämäärä
- Isännöitsijäntodistuksen päivämäärän mukainen
Tehdyt remontit
Korjaukset tehty:
Kattokatteen uusinta 1992
Lämmönvaihtimen uusinta 1999
Patteriventtiilien vaihto 1999
Kellarissa olevien kylmävesiputkien uusinta 2001
Käyttövesien linjasulkujen vaihto kellarissa 2002
Exec-lukitukseen siirtyminen 2003
Kylmäkellareiden jäähdytysjärjestelmän uusinta 2003
Ulko-ovien koodilukituksen asennus 2003
Ilmanvaihtojärjestelmien puhdistus ja säätö 2004
Liittyminen HTV:hen 2004
Pihavalojen uusinta 2005
Parvekkeiden korjausmaalaus 2006
Autotallien ovien maalaus 2007
Lämmönjakohuoneen pääsulkujen uusinta 2007
Ikkunoiden ulkopuitteiden maalaus 2008
A- ja B-talojen eteläpäädyn ikkunoiden alapokien vaihto 2010
Molempien saunaosastojen uusinta 2011
Salaojien ja pohjaviemäreiden tarkastus ja huuhtelu 2011
Kylmiöiden purkaminen 2012
Katolla olevien IV-hormien uusinta 2012
C-portaan huippuimurin uusinta 2012
A-portaan edustan asfaltin paikkakorjaus 2013
Porraskäytävän valaistuksen uusinta 2014
Porraskäytävän maalaus 2014
Huippuimureiden vaihto ja ilmanvaihdon säätö 2015
Lasten leikkipaikkojen uusiminen 2015
Ikkunoiden ja parvekeovien uusinta 2015
Putkistojen kuntotutkimus 2018
Autotallien kynnysten uusinta 2018
Märkätilakartoitus 2018
Kiinteistön kuntoarvio 2018
Täydennys ja lisärakentamisen kannattavuuden selvittäminen 2019
Pihapuiden harventaminen 2019
Korvausilmasuodattimien vaihto 2019
Salaojakuvaukset 2020
Maalämpölausunto 2020
Pienimuotoiset kattokorjaukset 2020
Linjasaneerauksen hankesuunnitelman toteutus 2021
Julkisivun paikkakorjaus ja pesu sekä sokkeleiden maalaus 2021
Kattojen kuntoarvio 2024
Lämmitysjärjestelmän perussäätö sekä patteriventtiilien uusinta 2024
Ilmanvaihtokanavien nuohous ja säätö 2024
Tulevat remontit
Salaoja remontti (Käynnissä) 2025
Vesikattoremontti (Käynnissä)2025
Kuntoarvion uusinta 2025
Putkien kuntotutkimus 2025
Pysty ja vaaka viemärireiden kuvaukset ja huuhtelut 2025
Märkätilakartoitus 2025-2026
Porraskäytävien aulan lattian uusinta 2026
Lukitusuudistus 2027
Linjasaneerauksen toteutussuunnittelu (sis. Märkätilat, lämmitysjärjestelmän, sähkö ja datajärjestelmät) Autotallien ovien korjaus 2027
Lukijan on huomattava, että kunnossapitoselvitys on hallituksen näkemys kunnossapitotarpeista viiden
vuoden aikana. Päätökset mahdollisesti käynnistettävien kunnossapitotöiden ja
muutostöiden suunnittelusta, toteutuksesta sekä rahoituksesta tehdään yhtiökokouksessa
erikseen. Kunnossapitoselvityksessä mainitut toimenpiteet saattavat aikaistua tai myöhentyä. Myyjä ei vastaa
taloyhtiön myöhemmin päättämistä kunnossapito toimenpiteistä ja niistä aiheutuvista
huoneistolle tulevista kustannuksista.
