Lansankallionkuja 4 F
02630, Kilo, Espoo
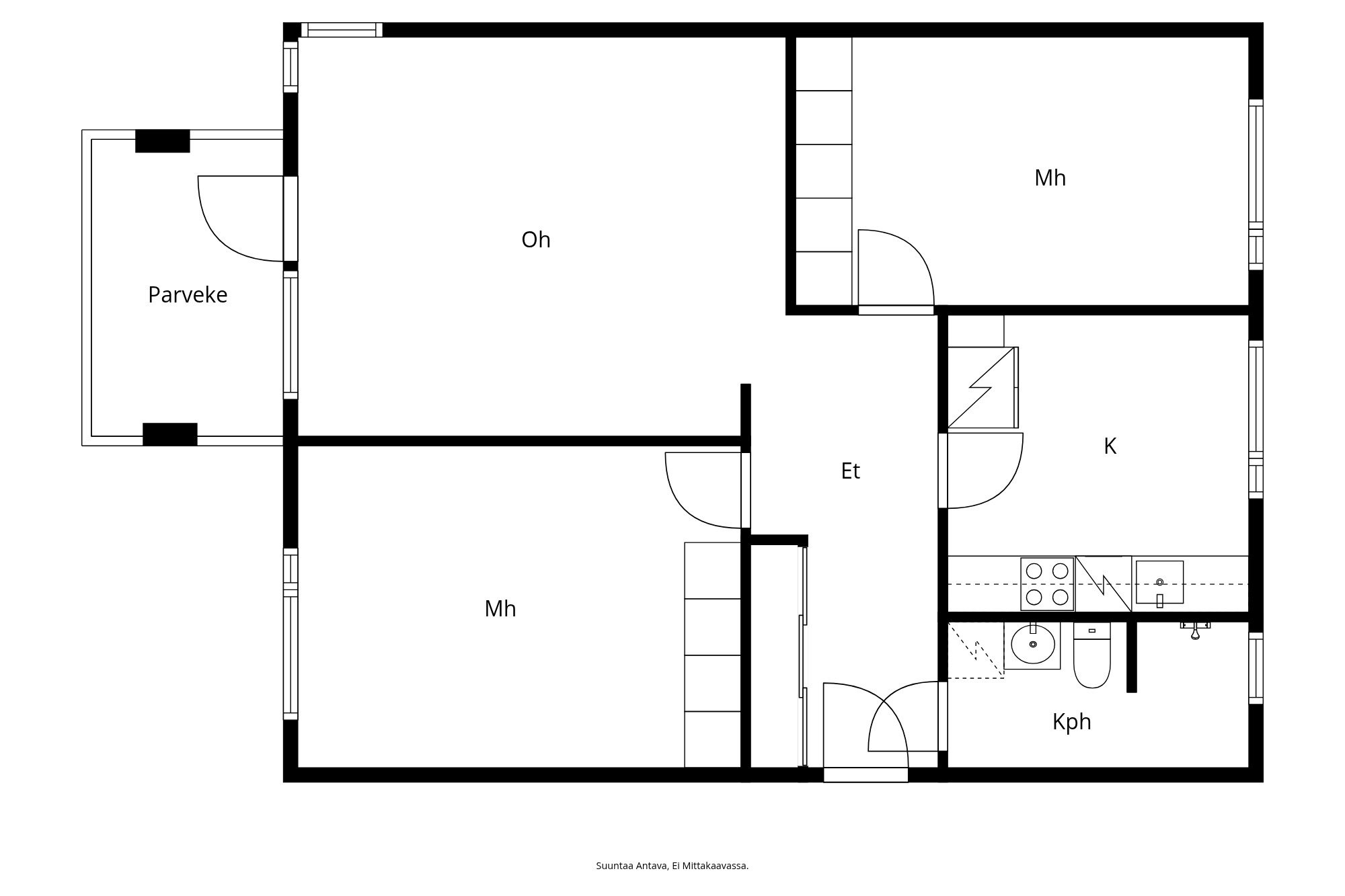
3h+k+kph+parveke
179 000 € (2 251,57 € / m²)
79,5 m²

Tätä asuntoa myy Miikka Susi
Roof Helsinki | ROOF Group Oy

Sijainti
Asuntoesittely
Tilava ja avara koti rauhallisella seudulla!
Tämä valoisa ja tilava 79,5 m²:n kolmio Espoon Kilossa tarjoaa mukavaa asumista rauhallisessa ympäristössä. Asunto sijaitsee vuonna 1984 rakennetun talon toisessa kerroksessa, ja sen parvekkeelta avautuvat vehreät näkymät. Olohuone on avara ja sieltä on käynti parvekkeelle, mikä tuo mukavasti luonnonvaloa sisään. Keittiö on remontoitu vuonna 2013 ja varustettu nykyaikaisilla laitteilla, kuten induktioliesi ja integroitu astianpesukone.
Tämän kodin sijainti on erinomainen, sillä se tarjoaa hyvät liikenneyhteydet niin julkisilla kuin omalla autollakin. Kilon juna-asemalta pääset Helsingin keskustaan ja bussiyhteydet Espoon kaupunkikeskuksiin ovat sujuvat. Läheltä löytyvät myös päivittäispalvelut, kaupat ja koulut.
Tartu tilaisuuteen ja tee tästä asunnosta unelmiesi koti rauhallisessa ja vehreässä ympäristössä!
Esittelypyynnöt ja tiedustelut:
Miikka Susi, ROOF LKV
040 575 5845,
[email protected]
Pohjakuva

Perustiedot
- Sijainti
- Lansankallionkuja 4 F, 02630, Kilo, Espoo
- Omistusmuoto
- Omistusasunto
- Huoneluku
- 3
- Asuinpinta-ala
- 79,5 m²
- Kokonaispinta-ala
- 79,5 m²
- Pinta-alan peruste
- Yhtiöjärjestyksen mukainen, Isännöitsijäntodistuksen mukainen, (Pinta-ala ei ole tarkistusmitattu ja todellinen pinta-ala voi olla suurempi tai pienempi, kuin ilmoitettu)
- Lisätiedot pinta-alasta
- Pinta-alan peruste: Yhtiöjärjestyksen mukainen ja isännöitsijäntodistuksen mukainen. Ei tarkistusmitattu. Pinta-alat saattavat tämän ikäisissä kohteissa (yhtiö rekisteröity ennen 01.01.1992) poiketa olennaisestikin asuinrakennusten nykyisten mittaustapojen ja standardien (SFS 5139) mukaan laskettavasta asuintilojen pinta-alasta. Pinta-ala voi siis olla edellä mainittua pienempi tai suurempi.
- Kohteen tyyppi
- Kerrostalo
- Kerros
- 2 / 3
- Rakennusvuosi
- 1984
- Kohde myydään vuokrattuna
- Ei
- Vapautuminen
- Heti
Hinta ja kustannukset
- Velaton hinta
- 179 000 €
- Myyntihinta
- 171 695,57 €
- Velkaosuus
- 7 304,43 €
- Yhtiövastike
- Hoitovastike 466,64 € / kk (0,19 € / os.), Rahoitusvastike 108,07 € / kk (0,04 € / os.), Yhtiövastike yhteensä 574,71 € / kk
- Autopaikkamaksu
- 12 € / kk
- Saunamaksu
- 14 € / kk
- Neliöhinta
- 2 251,57 € / m²
- Lisätietoja maksusta
- -Varsinainen yhtiökokous 24.4.2025 Päätettiin valtuuttaa hallitus perimään tarvittaessa enintään kahden (2) kuukauden ylimääräinen hoitovastike yhtiön taloudellisen tilanteen niin vaatiessa tai jättämään perimättä taloudellisen tilanteen niin salliessa. Päätös on voimassa tästä yhtiökokouksesta seuraavaan varsinaiseen yhtiökokoukseen asti. Päätettiin kartuttaa lainanlyhennysrahastoa enintään osakkaiden tilikauden aikana maksamien lainaosuussuoritusten sekä kertasuoritusten määrällä ja enintään tilikauden aikana pääomavastikkeena kerättyjen lainanlyhennysten määrällä. Taloyhtiön hallitukselle on annettu valtuutus periä (tai olla perimättä) ylimääräistä vastiketta yhtiön taloudellisen aseman tai maksuvalmiuden sitä vaatiessa
Tilat ja materiaalit
- Keittiön kuvaus
- Keittiö remontoitu 2013. LATTIA: laatta SEINÄT: maalattu VARUSTEET: Jääkaappipakastin, kalusteisiin upotettu uuni, induktioliesi ja integroitu astianpesukone, kivitaso.
- Kylpyhuone
- LATTIA: laatta SEINÄT: laatta VARUSTEET: suihku, wc-istuin, allaskaappi.
- Makuuhuoneet
- Tilavat makuuhuoneet, joissa paljon säilytystilaa. LATTIA: laminaatti SEINÄT: maalattu
- Olohuone
- Iso olohuone josta käynti parvekkeelle. LATTIA: laminaatti SEINÄT: maalattu
- Säilytystilojen kuvaus
- Peililiukuovikaapisto eteisessä ja makuuhuoneissa runsaasti kaappitilaa. Kellarissa häkkivarasto.
- Sauna
- Ei
Lisätiedot
- Asunnon kunto
- Tyydyttävä
- Parveke
- Ulostyönnetty parveke
- Hissi
- Ei
- Muut tilat
- Eteinen: Peililiukuovikaapisto LATTIA: laminaatti SEINÄT: maalattu
Taloyhtiö ja kiinteistö
- Taloyhtiön nimi
- Asunto Oy Lansantie
- Isännöitsijätoimisto
- Fluxio Isännöinti Oy
- Isännöitsijän nimi
- Kurt Dunderfelt
- Isännöitsijän puhelin
- 010 339 0533
- Tontin pinta-ala
- 8 160,5 m²
- Tontin omistus
- Oma
- Rakennusmateriaali
- Betoni
- Lämmitysjärjestelmä
- Kaukolämpö
- Ilmanvaihto
- Koneellinen poisto
- Vesijohto
- Kunnallisvesi
- Viemäröinti
- Kunnallinen viemäriverkosto
- Kattotyyppi
- Tasakatto
- Katemateriaali
- Huopa
- Lisätietoja kiinteistönhoidosta
- Huoltoyhtiö
- Taloyhtiössä on
- Väestönsuoja, pesutupa, kellarikomero, kaapeli-tv, urheiluvälinevarasto, ulkovarasto, ja askarteluhuone
- Lunastusoikeus yhtiöllä
- Ei
- Lunastusoikeus osakkaille
- Ei
- Kohteesta on energiatodistus
- Kyllä
- Energialuokka
- D2018
- Energiatodistuksen voimassaolo
- 14.1.2035
- Lisätietoja liikenneyhteyksistä
- Bussipysäkki lähellä, juna-asema lähellä, sujuvat yhteydet omalla autolla, hyvät pyöräilytiet ja hyvä kulkuyhteys Sujuvat yhteydet lähiliikenteen busseilla Espoon kaupunkikeskuksiin Leppävaaraan, Matinkylään ja Tapiolaan. Junayhteys Kilon rautatieasemalta Helsingin keskustaan noin 20 min.
- Paikallistiedot
- Palvelut
- K-Market Lansa n. 0,35 km. S-Market Nihtisilta n. 1,5 km. K-Supermarket Mankkaa n. 2,7 km. Kauppakeskus Sello n. 4,0 km. Kilon terveysasema n. 1,6 km. Sellon kirjasto n. 4,0 km.
- Koulut
- Kilonpuiston koulu (1.-9. lk) n. 1,7 km. Espoon yhteislyseo (lukio) n. 1,7 km.
- Lisätietoja huoneiston autopaikasta
- Taloyhtiön jokaiselle asunnolle on varattu sähköistetty autopaikka, vastike 14 €/kk. Mahdolliset toiset autopaikat jonottamalla taloyhtiöltä.
- Taloyhtiön autopaikat
- Tolppapaikka 29 Sähköistetty parkkipaikka 21
- Sähköpistokepaikkoja
- 49 kpl
- Piha-autopaikkoja
- 49 kpl
- Taloyhtiöllä sauna
- Kyllä
- Kaavatilanne
- Asemakaava
- Lisätiedot kaavoituksesta
- Espoon kaupunki p.(09) 816 21.
- Lisätietoja kunnossapitotarveselvityksestä
- 2025 Kaukolämpölaitteiston uusiminen 2025 Huoneistokohtaisten palovaroitinten asentaminen 2025 Kiinteistön peruskuntoarvion teettäminen 2026 Ulko-ovien uusiminen 2026 Lukitusjärjestelmän uudistaminen 2027 Terassien ja parvekkeiden kuntotarkastus 2027 Porrashuoneiden kunnostaminen 2027 Putkiston kuntotutkimus 2027 Julkisivujen elas sten saumojen uusiminen kokonaisuudessaan 2027 Katon kuntotarkastus 2027 Jätevesiviemäreiden huuhtelu ja kuvaus 2027 Sadevesi- ja salaojalinjojen huuhtelu ja kuvaus
- Asbestikartoitus
- Ei
- Lisätietoa asbestikartoituksesta
- Kohde on valmistunut ennen vuotta 1994, eikä asbestikartoitusta ole tehty. Ennen vuotta 1994 valmistuneiden rakennusten korjaustöiden osalta otettava huomioon Laki eräistä asbestipurkutyötä koskevista vaatimuksista 684/2015 sekä Valtioneuvoston asetus asbestityön turvallisuudesta 798/2015. Mikäli huoneistossa aikoo tehdä tai teettää remontin, hänen tulee tietyissä tapauksissa teettää asbestikartoitus purettaviin materiaaleihin. Asbestikartoitusvelvollisuus ei koske rakennuksessa tehtäviä vähäisiä töitä, kuten reikien poraamista seiniin tai kattoon.
- Taloyhtiön kiinnitykset
- 642 374 €
- Taloyhtiön kiinnitysten päivämäärä
- Isännöitsijäntodistuksen päivämäärän mukainen
Tehdyt remontit
1994 Kiinteistön peruskuntoarvion teettäminen
1996 Etelän puolen kattamattomien ikkunoiden saumaus + listoitus, kattopellitysten kiinnitystöitä ja saumausten korjaus
1997 Elementtisaumausten kunnostaminen/uusiminen
1998 Alakerran huoneistojen lattiapainaumien korjaustyöt, talo 2:n pintavesijärjestelmän parantaminen.
1998 C-portaan saunan ja kuivaushuoneen kosteusvaurioiden korjaustyöt
1999 Pohjoispuolen ikkunoiden saumaustenkorjaus + listoitus + kulmaikkunapaneeleiden huoltomaalaus, parvekeremontin suunnittelu
2000 A-B-portaan saunatilojen ja pesutuvan kosteusvaurioiden korjaustyöt
2001 Parveke-, sokkeli- ja porrashuoneiden sisäänkäyntien korjaukset
2002 Radonkorjaus huoneiston A1 osalta ja ikkunapaneeleiden kunnostus- ja maalaus työt, antenniverkon kunnostus ja satelliittiantennijärjestelmän asennus
2003 Ikkunoiden ulkopuoliset kunnostus- ja huoltomaalaustyöt
2004 Radonimurin asennus huoneiston E33 alapohjaan, koneellisen poistoilmajärjestelmän puhdistus ja säätö (Eveta-huolto)
2004 Kylpyhuoneiden vesieriste- ja -kalustetarkastus, laajakaistayhteyden hankkiminen taloyhtiölle
2005 Asfaltointikorjaus B -portaalta D-E-F -talolle, vesieriste- ja kalustekorjauksia huoneistoissa, kulkuväylän asfaltointikorjaus B-portaalta D-E-F -talolle, vesieriste- ja kalustekorjauksia huoneistoissa
2006 Kaukolämmön alajakokeskuksen uusiminen, pihakeinun ja alustan uusiminen, asfaltointitöitä P-alueella
2007 Lukitussaneeraus, leikkivälineiden hankintaa piha-alueelle, loppujen pihavalaisimien uusimistyö, katon kuntokatselmus
2008 Kuntokatselmus, pesukoneen uusiminen ja rahastimen hankinta, C-portaan edustan asfaltti ja tukimuuri
2009 Taloyhtiön laajakaistaverkon laajennus 48 porttiseksi
2009 Radonimureiden asennus F portaaseen, kattojen kunnostus (n. 2000 m2) (myrskypeltien asennus, kattopollarit ja tikkaiden turvakiskot ym.)
2009 Porrashuoneet ja kellariovet: Porrashuoneiden ja kellariovien huoltomaalaus
2009 Katto: Urakka-asiakirjojen teetättäminen kattojen kunnostustyötä varten, urakkakilpailu
2010 Hiekkalaatikon uusiminen: Uusitaan kerhohuoneen edustalla oleva- hiekkalaatikko ja laatikon hiekat
2010-2011 Ikkunat: Urakka-asiakirjojen teettäminen ikkunoiden ja parvekeovien uusimista varten, rakennusluvan haku
2012 F-portaan sisäänkäynnin betonikorjaus
2012 Pihapuiden kuntokartoitus
2012 Ikkunoiden ja parvekeovien uusiminen
2012 Parvekkeiden kunnostusta asukaskyselyn perusteella
2013 Patteriventtiilien ja -termostaattien, linjasulkujen uusinta sekä lämmitysjärjestelmän säätäminen.
2013 Märkätilat: Kylpyhuoneiden kuntotutkimus
2013 Ilmanvaihtokanaviston puhdistus ja ilmanvaihdon säätö. Poistoilmakoneiden huolto.
2013 Kylpyhuoneiden korjauksia: toteutussuunnittelu (toteutussuunnittelu): Tilataan korjaustyöselostus suunnittelijalta
2013 Kerhohuoneen kunnostus: Maalataan kerhohuone talkootyönä sekä uusitaan tilan kalustusta.
2013 Radonkorjaukset: Huoneistojen alapohjan tiivistykset
2013 Patteriventtiilien ja -termostaattien, linjasulkujen uusinta sekä lämmitysjärjestelmän säätäminen
2015 Putkiston kuntotutkimus
2016 Parkkialueen ja jätekatoksen suunnittelu: Pihan (esim. autopaikat) muutoksen suunnittelu
2016 Huippuimureiden uusinta: A-F rappujen huippuimurit uusittu
2016 Antenni-tv-verkon laitteiston päivitys
2016 Elementtisaumat (toteutussuunnittelu): Elementtisaumojen uusiminen
2016 Viemäreiden huuhtelu ja kuvaus (sadevesi, pohja- ja pystyviemärit)
2018 Parvekkeiden lattiapintojen kuntokartoitus: Kartoitetaan parvekelattioiden pintojen kunto
Sokkelin korjaus: kakkostalon ylärinteen puoleisen sokkelin vesieristys ja salaojitus, kakkostalon alarinteen puoleisen sokkelin tarkistus pistokokeella,
2018 ykköstalon ylärinteen sokkelin tarkastus pistokokeella
2019 Parvekkeen pinnoitteen kunnostus: Tehdään yhdelle kaikkein huonokuntoisimmalle parvekkeelle
2019 Katon kuntotarkastus
2019 Pihan kunnostuksen suunnittelun jatkaminen
2020 Ikkunavuotojen korjaus
2020 Pihan kunnostus
2021 A-varaston oven uusinta
2021 Putkiston kuntotutkimus: aiemman (2015) tehdyn tutkimuksen päivitys
2021 Saunaosastojen kunnostus
2022 Radonmittaus
2022 Ilmanvaihtokanavien puhdistus ja ilmamäärien säätö
2022 Elementtisaumojen kuntotutkimus
2022 Parvekkeiden pinnoitteiden kartoitus (asunnot B13, D29 ja E36)
2022 Leikkipaikan turvatarkastus sekä sen huonokuntoisen turva-alustan korvaaminen turvahiekalla
2023 Antenniverkoston kunnostus nykyaikaiseksi ketju 1000 verkoksi multimediarasioilla
2023 Yleisten tilojen palokatkojen tarkistus
2023 Parvekkeiden kuntokartoitus sekä korjaussuunnittelu
2024 Autopuomin asennus
2024 Parvekkeiden kunnostus
2024 Ulkovaraston huoltomaalaus
2024 Energiatodistuksen uusiminen
Tulevat remontit
Kunnossapitotarve seuraavan viiden vuoden aikana (V. 2025 – 2029), esitetty yhtiökokoukselle 24.4.2025. Suunnitellut toimenpiteet:
2025: Kaukolämpölaitteiston uusiminen
2025: Huoneistokohtaisten palovaroitinten asentaminen
2025: Kiinteistön peruskuntoarvion teettäminen
2026: Ulko-ovien uusiminen
2026: Lukitusjärjestelmän uudistaminen
2027: Terassien ja parvekkeiden kuntotarkastus
2027: Porrashuoneiden kunnostaminen
2027: Putkiston kuntotutkimus
2027: Julkisivujen elastisten saumojen uusiminen kokonaisuudessaan
2027: Katon kuntotarkastus
2027: Jätevesiviemäreiden huuhtelu ja kuvaus
2027: Sadevesi- ja salaojalinjojen huuhtelu ja kuvaus
